リルシアグランデ横濱吉野町[4階]
情報公開日:2025/12/03(残り15日)
次回更新日は情報公開日より15日以内
物件画像
画像提供元:株式会社Kanooy/横浜賃貸リサーチ
この物件のタグ
この物件にお問い合わせ
リルシアグランデ横濱吉野町[4階]の物件情報
| 賃料/管理費等 |
6.8万円(管理費等 1.5万円)
|
||
|---|---|---|---|
| 敷金 | 無料 | 礼金 | 6.8万円 |
| 種別/構造 | マンション/RC | 築年月 | 2023年09月 |
| 所在地 |
神奈川県横浜市南区宮元町1丁目
|
||
| 主要交通機関 |
横浜市ブルーライン/吉野町 徒歩4分 京急本線/南太田 徒歩6分 横浜市ブルーライン/蒔田 徒歩10分 |
||
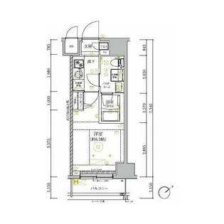
| 間取り | 1K | 面積 | 21.28m² |
| 間取り詳細 | 洋室 6.3帖 | 方位 | - |
| 階数/部屋番号 | 4階/地上10階建 | 駐車場 | 無し |
| 特徴 |
|
||
| 設備/条件 | エアコン、バス・トイレ別、浴室乾燥機、独立洗面台、温水洗浄便座、保証人不要・代行、分譲賃貸、IT重説 対応物件、インターネット対応、光ファイバー、システムキッチン、ガスコンロ、コンロ二口以上、2階以上の物件、室内洗濯機置場、バルコニー、エレベーター、都市ガス、敷地内ゴミ置き場、オートロック、TVドアホン、宅配ボックス、防犯カメラ | ||
| 備考 |
鍵交換:27500円/24Hサポート:17600円/引越虫駆除サービス:16500円/ペット飼育時:敷金1ヵ月増(償却)/短期解約違約金:1年未満総賃料1ヶ月/ 共用部には敷地内ごみ置き場・エレベータなどが揃っております。室内設備はエアコン・システムキッチン・ネット使用料不要などが揃っており、とても充実しています。防犯カメラが設置されており、犯罪やトラブルの抑止力になります。外装もおしゃれで快適な生活をおくることができるマンションです。住まい探しの際には、実際に住んでみた時のことを想像しながら進めていくことが大事です。より良い住まいをご提供致します。 保証会社:利用必須 初回:総賃料50%/年1万 ※物件に関する備考は各社異なりますのでご確認のうえお問い合わせください。 |
||
| 契約期間 | 2年 | ||
|---|---|---|---|
| 入居可能時期 |
お問い合わせください。
|
||
| 初期費用 |
お問い合わせください。
|
||
| 住宅保険 | お問い合わせください。 | 現状空室状況 | 居住中 |
情報提供元:株式会社Kanooy/横浜賃貸リサーチ
画像提供元:株式会社Kanooy/横浜賃貸リサーチ
※各種情報と現状に差異がある場合は、現状優先となります。取り扱い不動産会社が複数ある場合は、住宅保険等、一部条件が異なる場合もございますので、取扱店舗までご確認下さいませ。
この物件にお問い合わせ
周辺施設
| コンビニ |
セブン‐イレブン 横浜吉野町駅前店 ローソンストア100 横浜宮元町店 |
|||
|---|---|---|---|---|
| スーパー |
いなげや横浜東蒔田店 FUJI横浜南店 |
|||
| ドラッグストア |
仙寿堂薬局 ミナミファーマシー |
|||
| 保育園 |
薫学園 |
|||
|---|---|---|---|---|
| 幼稚園 |
お三の宮日枝幼稚園 |
|||
| 小学校 |
横浜市立 日枝小学校 |
|||
| 中学校 |
横浜市立共進中学校 |
|||
※周辺情報は不動産会社から提供された情報ではなく、弊サービスで独自に収集した情報です。
担当者のオススメポイント!
共用部には敷地内ごみ置き場・エレベータなどが揃っております。室内設備はシステムキッチン・エアコン・ネット使用料不要など大変充実しております。バストイレ別のマンションです。こちらはマンションタイプになります。脱衣所付きのマンションです。当社スタッフの豊富な経験から、住まい探しに関するお問い合わせを受け付けております。お客様のニーズにお応えできるよう努めて参りますので、まずはお気軽にご連絡下さい。
リルシアグランデ横濱吉野町[4階]の取扱会社情報 22件
| 取扱会社(1) | 株式会社Kanooy 横浜賃貸リサーチ | ||
|---|---|---|---|
| 住所 | 神奈川県横浜市港北区新横浜3丁目19-11 加瀬ビル 88-301 | ||
| 電話番号 | 045-620-0043 | 免許番号 | 神奈川県知事免許(2)第30928号 |
| 取引態様 | 仲介 | 物件管理番号 |
160110010057720 ※お問い合わせの際には、担当者へ物件管理番号をお伝えください。 |
| 物件に関する情報 |
物件の所在地 : 神奈川県横浜市南区宮元町1丁目 /
交通の利便 : 横浜市ブルーライン/吉野町 徒歩4分、京急本線/南太田 徒歩6分、横浜市ブルーライン/蒔田 徒歩10分 /
面積 : 21.28m² /
築年月 : 2023年09月 /
賃料 : 6.8万円 /
管理費又は共益費等 : 1.5万円 /
礼金等 : 1ヶ月 /
敷金 : 無料、保証金等 : -、 償却、敷引 : - /
住宅総合保険等の損害保険料 : - /
その他 : 鍵交換:27500円/24Hサポート:17600円/引越虫駆除サービス:16500円/ペット飼育時:敷金1ヵ月増(償却)/短期解約違約金:1年未満総賃料1ヶ月/
共用部には敷地内ごみ置き場・エレベータなどが揃っております。室内設備はエアコン・システムキッチン・ネット使用料不要などが揃っており、とても充実しています。防犯カメラが設置されており、犯罪やトラブルの抑止力になります。外装もおしゃれで快適な生活をおくることができるマンションです。住まい探しの際には、実際に住んでみた時のことを想像しながら進めていくことが大事です。より良い住まいをご提供致します。
保証会社:利用必須 初回:総賃料50%/年1万
/ 駐車場 : 無し
共用部には敷地内ごみ置き場・エレベータなどが揃っております。室内設備はシステムキッチン・エアコン・ネット使用料不要など大変充実しております。バストイレ別のマンションです。こちらはマンションタイプになります。脱衣所付きのマンションです。当社スタッフの豊富な経験から、住まい探しに関するお問い合わせを受け付けております。お客様のニーズにお応えできるよう努めて参りますので、まずはお気軽にご連絡下さい。
|
||
| 所属団体 |
(公社)神奈川県宅地建物取引業協会会員 (公社)全国宅地建物取引業協会連合会 公益社団法人首都圏不動産公正取引協議会 (公社)全国宅地建物取引業保証協会 |
||
| 取扱会社(2) | さくらde賃貸-new life- (株)さくらスタイル (情報提供媒体:SUUMO) | ||
|---|---|---|---|
| 住所 | 神奈川県横浜市神奈川区鶴屋町2-21-9三善ビル4階401 | ||
| 電話番号 | 045-317-2001 | 免許番号 | 神奈川県知事(3)第28256号 |
| 取引態様 | 仲介 | 物件管理番号 |
100467825403 ※お問い合わせの際には、担当者へ物件管理番号をお伝えください。 |
| 物件に関する情報 |
物件の所在地 : 神奈川県横浜市南区宮元町1 /
交通の利便 : ブルーライン/吉野町駅 歩4分、京急本線/南太田駅 歩6分、ブルーライン/蒔田駅 歩8分 /
面積 : 21.28m² /
築年月 : 2023年09月 /
賃料 : 6.8万円 /
管理費又は共益費等 : 1.5万円 /
礼金等 : 1ヶ月 /
敷金 : 無料、保証金等 : -、 償却、敷引 : - /
住宅総合保険等の損害保険料 : 要 /
その他 : [契約時]鍵交換:27500円、24サポート:17600円、虫駆除サービス:16500円
ペット相談
普通借家 2年
保証会社利用必 [契約時]賃料等の50%、[更新/年]1万円
/ 駐車場 : 無
【インターネット無料、ペット飼育可】当店おすすめ物件♪
お早めに物件情報を確認したい場合は以下の連絡先までおをいただくとスムーズです。最寄りの担当店舗までお気軽におください。横浜支店:・新横浜支店: |
||
| 所属団体 |
(公社)全日本不動産協会神奈川県本部会員 (公社)首都圏不動産公正取引協議会加盟 |
||
| 取扱会社(3) | 株式会社 Select アパマンショップ桜木町駅前店 | ||
|---|---|---|---|
| 住所 | 神奈川県横浜市中区花咲町2丁目65−6 | ||
| 電話番号 | 045-308-9099 | 免許番号 | 神奈川県知事(1)第30658号 |
| 取引態様 | 仲介 | 物件管理番号 |
1000918817 ※お問い合わせの際には、担当者へ物件管理番号をお伝えください。 |
| 物件に関する情報 |
物件の所在地 : 神奈川県横浜市南区宮元町1丁目 /
交通の利便 : 横浜市ブルーライン/吉野町 徒歩4分 /
面積 : 21.28m² /
築年月 : 2023年09月 /
賃料 : 6.8万円 /
管理費又は共益費等 : 1.5万円 /
礼金等 : 1ヶ月 /
敷金 : 無料、保証金等 : -、 償却、敷引 : - /
住宅総合保険等の損害保険料 : - /
その他 : ●小型犬か猫1匹まで相談、飼育時敷金+1ヶ月(償却)●短期解約(1年未満、フリーレントがついての契約の場合は1年9か月未満)違約金賃料等の1ヶ月分●解約予告2ヶ月前 保証会社利用必須 初回:月額総支払額の50%、更新:10,000円/年 鍵交換代(課税対象) 27500円/安心入居サポート(課税対象) 17600円/虫駆除施工(課税対象) 16500円
更新料:1ヶ月
[退去時費用(故意・過失等別途実費):退去実費精算]
/ 駐車場 : 無し
郵送オンライン契約手続き、LINEでリモート内見も可能です♪
|
||
| 所属団体 |
全国宅地建物取引業保証協会 (公社) 首都圏不動産公正取引協議会加盟 - |
||
| 取扱会社(4) | 株式会社 アップル神奈川 アパマンショップ二俣川店 | ||
|---|---|---|---|
| 住所 | 神奈川県横浜市旭区本村町101-10 | ||
| 電話番号 | 045-744-8674 | 免許番号 | 神奈川県知事(10)第13668号 |
| 取引態様 | 仲介 | 物件管理番号 |
111305180 ※お問い合わせの際には、担当者へ物件管理番号をお伝えください。 |
| 物件に関する情報 |
物件の所在地 : 神奈川県横浜市南区宮元町1丁目 /
交通の利便 : 横浜市ブルーライン/吉野町 徒歩4分 /
面積 : 21.28m² /
築年月 : 2023年09月 /
賃料 : 6.8万円 /
管理費又は共益費等 : 1.5万円 /
礼金等 : 1ヶ月 /
敷金 : 無料、保証金等 : -、 償却、敷引 : - /
住宅総合保険等の損害保険料 : 20000円(2年) /
その他 : 犬又は猫1匹まで(成長時体長50㎝、体重10㎏相当)敷金1か月加算(退去時償却)/短期解約(1年未満、フリーレントがついての契約の場合は1年9か月未満)違約金賃料等の1か月分/解約予告2か月前/駐輪場:上段月額300円、下段月額500円 保証会社利用必須 にじいろインシュア・Jリース・GTN等 保証料:初回総賃料50%、年間保証料10000円 安心入居サポート 17600円/引越虫駆除サービス 16500円/鍵交換費用 27500円
[退去時費用(故意・過失等別途実費):退去時実費精算]
/ 駐車場 : 空有
18,000円
(機械式)
【ご予約無しのご来店も歓迎♪お気軽にお問い合わせください♪】
|
||
| 所属団体 |
(公社)神奈川県宅地建物取引業協会 (公社) 首都圏不動産公正取引協議会加盟 - |
||
| 取扱会社(5) | (株)ネクストライフ横浜店 (情報提供媒体:SUUMO) | ||
|---|---|---|---|
| 住所 | 神奈川県横浜市神奈川区鶴屋町2-21-9 三善ビル5階 | ||
| 電話番号 | 050-5530-2874 | 免許番号 | 国土交通大臣(3)第8175号 |
| 取引態様 | 仲介 | 物件管理番号 |
100467900887 ※お問い合わせの際には、担当者へ物件管理番号をお伝えください。 |
| 物件に関する情報 |
物件の所在地 : 神奈川県横浜市南区宮元町1 /
交通の利便 : ブルーライン/吉野町駅 歩4分、京急本線/南太田駅 歩6分、ブルーライン/蒔田駅 歩9分 /
面積 : 21.28m² /
築年月 : 2023年08月 /
賃料 : 6.8万円 /
管理費又は共益費等 : 1.5万円 /
礼金等 : 1ヶ月 /
敷金 : 無料、保証金等 : -、 償却、敷引 : - /
住宅総合保険等の損害保険料 : 2万円2年 /
その他 : 鍵交換費用:27500円 安心入居サポート:17600円 引越し虫駆除サービス:16500円 更新事務手数料:新賃料の0.55ヶ月分 ペット可:室内犬または猫1匹まで、敷金1ヶ月積み増し(償却) 違約金:1年未満の解約で総賃料1ヶ月分 退去時のクリーニング費用(実費)は借主負担になります
更新料 新賃料1.00ヶ月分
ペット相談
普通借家 2年
保証会社利用必 初回保証料:月額総賃料の50%、年間保証料:10000円
/ 駐車場 : 無
【0120-955-199】お気軽におくださいませ♪
おでのお問い合わせは 8時30分 から 21時まで 可能です!お気軽にフリーダイヤルまでご連絡ください♪◇webでのお申し込みも対応可能です◇ |
||
| 所属団体 |
(公社)神奈川県宅地建物取引業協会会員 (公社)首都圏不動産公正取引協議会加盟 |
||
| 取扱会社(6) | アルプスの賃貸関内南口支店(株)アルプス建設 (情報提供媒体:SUUMO) | ||
|---|---|---|---|
| 住所 | 神奈川県横浜市中区翁町1-1-6 産友パークビル2F | ||
| 電話番号 | 045-227-5755 | 免許番号 | 神奈川県知事(10)第14677号 |
| 取引態様 | 仲介 | 物件管理番号 |
100468398105 ※お問い合わせの際には、担当者へ物件管理番号をお伝えください。 |
| 物件に関する情報 |
物件の所在地 : 神奈川県横浜市南区宮元町1 /
交通の利便 : ブルーライン/吉野町駅 歩4分、京急本線/南太田駅 歩6分、京急本線/黄金町駅 歩16分 /
面積 : 21.28m² /
築年月 : 2023年09月 /
賃料 : 6.8万円 /
管理費又は共益費等 : 1.5万円 /
礼金等 : 1ヶ月 /
敷金 : 無料、保証金等 : -、 償却、敷引 : - /
住宅総合保険等の損害保険料 : 2万円2年 /
その他 : 更新事務手数料:新賃料の0.55か月分 ペット飼育相談可能(小型犬または猫1匹迄):敷金1ヶ月追加(償却) 退去時クリーニング費用:借主負担 短期解約時違約金あり 初期費用を分割可能です!(スムーズ・クレジット決済)
合計6.16万円(内訳:安心入居サポート1.76万円 引越虫駆除サービス1.65万円 鍵交換代2.75万円)
更新料 新賃料1.00ヶ月分
ペット相談
普通借家 2年
保証会社利用必 初回保証料:総賃料の50%、継続保証料:10000円/年
/ 駐車場 : 近隣駐車場
近隣200m19800円
オートロック・防犯カメラ完備で女性の一人暮らしでも安心です♪
【リモート内見・オンライン相談可】【初期費用カード決済可】お問い合わせや内見希望はお気軽にご連絡下さい。詳細なお問合せやご相談はおの方がスムーズです☆先行申込も受付中☆ |
||
| 所属団体 |
(公社)神奈川県宅地建物取引業協会会員 (公社)首都圏不動産公正取引協議会加盟 |
||
| 取扱会社(7) | 株式会社 アップル神奈川 アパマンショップ武蔵小杉JR口店 | ||
|---|---|---|---|
| 住所 | 神奈川県川崎市中原区新丸子東2丁目907 | ||
| 電話番号 | 044-920-8513 | 免許番号 | 神奈川県知事(10)第13668号 |
| 取引態様 | 仲介 | 物件管理番号 |
111305180 ※お問い合わせの際には、担当者へ物件管理番号をお伝えください。 |
| 物件に関する情報 |
物件の所在地 : 神奈川県横浜市南区宮元町1丁目 /
交通の利便 : 横浜市ブルーライン/吉野町 徒歩4分 /
面積 : 21.28m² /
築年月 : 2023年09月 /
賃料 : 6.8万円 /
管理費又は共益費等 : 1.5万円 /
礼金等 : 1ヶ月 /
敷金 : 無料、保証金等 : -、 償却、敷引 : - /
住宅総合保険等の損害保険料 : 20000円(2年) /
その他 : 犬又は猫1匹まで(成長時体長50㎝、体重10㎏相当)敷金1か月加算(退去時償却)/短期解約(1年未満、フリーレントがついての契約の場合は1年9か月未満)違約金賃料等の1か月分/解約予告2か月前/駐輪場:上段月額300円、下段月額500円 保証会社利用必須 にじいろインシュア・Jリース・GTN等 保証料:初回総賃料50%、年間保証料10000円 安心入居サポート 17600円/引越虫駆除サービス 16500円/鍵交換費用 27500円
[退去時費用(故意・過失等別途実費):退去時実費精算]
/ 駐車場 : 空有
18,000円
(機械式)
【ご予約無しのご来店も歓迎♪お気軽にお問い合わせください♪】
|
||
| 所属団体 |
(公社)神奈川県宅地建物取引業協会 (公社) 首都圏不動産公正取引協議会加盟 - |
||
| 取扱会社(8) | (株)ネクストライフ新横浜店 (情報提供媒体:SUUMO) | ||
|---|---|---|---|
| 住所 | 神奈川県横浜市港北区新横浜2-5-19 AXIS SHINYOKOHAMA6階 | ||
| 電話番号 | 050-5530-2874 | 免許番号 | 国土交通大臣(3)第8175号 |
| 取引態様 | 仲介 | 物件管理番号 |
100467902023 ※お問い合わせの際には、担当者へ物件管理番号をお伝えください。 |
| 物件に関する情報 |
物件の所在地 : 神奈川県横浜市南区宮元町1 /
交通の利便 : ブルーライン/吉野町駅 歩4分、京急本線/南太田駅 歩6分、ブルーライン/蒔田駅 歩9分 /
面積 : 21.28m² /
築年月 : 2023年08月 /
賃料 : 6.8万円 /
管理費又は共益費等 : 1.5万円 /
礼金等 : 1ヶ月 /
敷金 : 無料、保証金等 : -、 償却、敷引 : - /
住宅総合保険等の損害保険料 : 2万円2年 /
その他 : 鍵交換費用:27500円 安心入居サポート:17600円 引越し虫駆除サービス:16500円 更新事務手数料:新賃料の0.55ヶ月分 ペット可:室内犬または猫1匹まで、敷金1ヶ月積み増し(償却) 違約金:1年未満の解約で総賃料1ヶ月分 退去時のクリーニング費用(実費)は借主負担になります
更新料 新賃料1.00ヶ月分
ペット相談
普通借家 2年
保証会社利用必 初回保証料:月額総賃料の50%、年間保証料:10000円
/ 駐車場 : 無
【0120-955-199】お気軽におくださいませ♪
おでのお問い合わせは 8時30分 から 21時まで 可能です!お気軽にフリーダイヤルまでご連絡ください♪◇webでのお申し込みも対応可能です◇ |
||
| 所属団体 |
(公社)神奈川県宅地建物取引業協会会員 (公社)首都圏不動産公正取引協議会加盟 |
||
| 取扱会社(9) | 株式会社 アップル神奈川 アパマンショップ大和駅前店 | ||
|---|---|---|---|
| 住所 | 神奈川県大和市中央1丁目1-15 | ||
| 電話番号 | 046-240-7905 | 免許番号 | 神奈川県知事(10)第13668号 |
| 取引態様 | 仲介 | 物件管理番号 |
111305180 ※お問い合わせの際には、担当者へ物件管理番号をお伝えください。 |
| 物件に関する情報 |
物件の所在地 : 神奈川県横浜市南区宮元町1丁目 /
交通の利便 : 横浜市ブルーライン/吉野町 徒歩4分 /
面積 : 21.28m² /
築年月 : 2023年09月 /
賃料 : 6.8万円 /
管理費又は共益費等 : 1.5万円 /
礼金等 : 1ヶ月 /
敷金 : 無料、保証金等 : -、 償却、敷引 : - /
住宅総合保険等の損害保険料 : 20000円(2年) /
その他 : 犬又は猫1匹まで(成長時体長50㎝、体重10㎏相当)敷金1か月加算(退去時償却)/短期解約(1年未満、フリーレントがついての契約の場合は1年9か月未満)違約金賃料等の1か月分/解約予告2か月前/駐輪場:上段月額300円、下段月額500円 保証会社利用必須 にじいろインシュア・Jリース・GTN等 保証料:初回総賃料50%、年間保証料10000円 安心入居サポート 17600円/引越虫駆除サービス 16500円/鍵交換費用 27500円
[退去時費用(故意・過失等別途実費):退去時実費精算]
/ 駐車場 : 空有
18,000円
(機械式)
【ご予約無しのご来店も歓迎♪お気軽にお問い合わせください♪】
|
||
| 所属団体 |
(公社)神奈川県宅地建物取引業協会 (公社) 首都圏不動産公正取引協議会加盟 - |
||
| 取扱会社(10) | (株)未来企画本店 (情報提供媒体:SUUMO) | ||
|---|---|---|---|
| 住所 | 神奈川県横浜市中区宮川町2-55-1 ルリエ横浜宮川町1階 | ||
| 電話番号 | 045-262-0661 | 免許番号 | 神奈川県知事(9)第17616号 |
| 取引態様 | 仲介 | 物件管理番号 |
100474931235 ※お問い合わせの際には、担当者へ物件管理番号をお伝えください。 |
| 物件に関する情報 |
物件の所在地 : 神奈川県横浜市南区宮元町1 /
交通の利便 : ブルーライン/吉野町駅 歩4分、京急本線/南太田駅 歩6分、ブルーライン/蒔田駅 歩10分 /
面積 : 21.28m² /
築年月 : 2023年08月 /
賃料 : 6.8万円 /
管理費又は共益費等 : 1.5万円 /
礼金等 : 1ヶ月 /
敷金 : 無料、保証金等 : -、 償却、敷引 : - /
住宅総合保険等の損害保険料 : 2万円2年 /
その他 : 全物件初期費用分割可能。当店は地元で30年営業している不動産総合会社です! 全業者の掲載されている物件を一括してご紹介はもちろん、ネット掲載前の未公開物件が店内には多数ございます! 貸主との距離が近い物件につきましては申込後の家賃交渉など全力で交渉させて頂きます! また関東で最も安い引越し業者と提携しておりますのでお申し込み時にご紹介も可能です! お部屋の事なら些細な事でもお気軽にご相談下さい!
合計2.75万円(内訳:鍵交換代2.75万円)
更新料 新賃料1.00ヶ月分
ペット相談
普通借家 2年
保証会社利用必 総賃料の50% 更新時1万円要
/ 駐車場 : 無
問い合わせで「1万円」キャッシュバック!!初期費用分割可
セキュリティ面は、オートロック・TVインターホンなど充実しているので安心して生活できます。浴室や洗濯物からスピーディーに湿気を除去してカビを防げる、浴室乾燥機が付いています。 |
||
| 所属団体 |
(公社)神奈川県宅地建物取引業協会会員 (公社)首都圏不動産公正取引協議会加盟 |
||
| 取扱会社(11) | 株式会社 Select アパマンショップ横浜駅前店 | ||
|---|---|---|---|
| 住所 | 神奈川県横浜市西区北幸1丁目5−4 | ||
| 電話番号 | 045-577-9917 | 免許番号 | 神奈川県知事(1)第30658号 |
| 取引態様 | 仲介 | 物件管理番号 |
1000918817 ※お問い合わせの際には、担当者へ物件管理番号をお伝えください。 |
| 物件に関する情報 |
物件の所在地 : 神奈川県横浜市南区宮元町1丁目 /
交通の利便 : 横浜市ブルーライン/吉野町 徒歩4分 /
面積 : 21.28m² /
築年月 : 2023年09月 /
賃料 : 6.8万円 /
管理費又は共益費等 : 1.5万円 /
礼金等 : 1ヶ月 /
敷金 : 無料、保証金等 : -、 償却、敷引 : - /
住宅総合保険等の損害保険料 : - /
その他 : ●小型犬か猫1匹まで相談、飼育時敷金+1ヶ月(償却)●短期解約(1年未満、フリーレントがついての契約の場合は1年9か月未満)違約金賃料等の1ヶ月分●解約予告2ヶ月前 保証会社利用必須 初回:月額総支払額の50%、更新:10,000円/年 鍵交換代(課税対象) 27500円/安心入居サポート(課税対象) 17600円/虫駆除施工(課税対象) 16500円
更新料:1ヶ月
[退去時費用(故意・過失等別途実費):退去実費精算]
/ 駐車場 : 無し
郵送オンライン契約手続き、LINEでリモート内見も可能です♪
|
||
| 所属団体 |
(公社)神奈川県宅地建物取引業協会 (公社) 首都圏不動産公正取引協議会加盟 - |
||
| 取扱会社(12) | 株式会社 アップル神奈川 アパマンショップ新横浜店 | ||
|---|---|---|---|
| 住所 | 神奈川県横浜市港北区新横浜3丁目6-1 | ||
| 電話番号 | 045-470-1070 | 免許番号 | 神奈川県知事(10)第13668号 |
| 取引態様 | 仲介 | 物件管理番号 |
111305180 ※お問い合わせの際には、担当者へ物件管理番号をお伝えください。 |
| 物件に関する情報 |
物件の所在地 : 神奈川県横浜市南区宮元町1丁目 /
交通の利便 : 横浜市ブルーライン/吉野町 徒歩4分 /
面積 : 21.28m² /
築年月 : 2023年09月 /
賃料 : 6.8万円 /
管理費又は共益費等 : 1.5万円 /
礼金等 : 1ヶ月 /
敷金 : 無料、保証金等 : -、 償却、敷引 : - /
住宅総合保険等の損害保険料 : 20000円(2年) /
その他 : 犬又は猫1匹まで(成長時体長50㎝、体重10㎏相当)敷金1か月加算(退去時償却)/短期解約(1年未満、フリーレントがついての契約の場合は1年9か月未満)違約金賃料等の1か月分/解約予告2か月前/駐輪場:上段月額300円、下段月額500円 保証会社利用必須 にじいろインシュア・Jリース・GTN等 保証料:初回総賃料50%、年間保証料10000円 安心入居サポート 17600円/引越虫駆除サービス 16500円/鍵交換費用 27500円
[退去時費用(故意・過失等別途実費):退去時実費精算]
/ 駐車場 : 空有
18,000円
(機械式)
【ご予約無しのご来店も歓迎♪お気軽にお問い合わせください♪】
|
||
| 所属団体 |
(公社)神奈川県宅地建物取引業協会 (公社) 首都圏不動産公正取引協議会加盟 - |
||
| 取扱会社(13) | リブマックス横浜駅前店(株)リブマックスリーシング (情報提供媒体:SUUMO) | ||
|---|---|---|---|
| 住所 | 神奈川県横浜市西区北幸1-5-4 | ||
| 電話番号 | 045-317-3344 | 免許番号 | 国土交通大臣(3)第8116号 |
| 取引態様 | 仲介 | 物件管理番号 |
100470755820 ※お問い合わせの際には、担当者へ物件管理番号をお伝えください。 |
| 物件に関する情報 |
物件の所在地 : 神奈川県横浜市南区宮元町1 /
交通の利便 : ブルーライン/吉野町駅 歩4分、京急本線/南太田駅 歩6分、ブルーライン/蒔田駅 歩8分 /
面積 : 21.28m² /
築年月 : 2023年08月 /
賃料 : 6.8万円 /
管理費又は共益費等 : 1.5万円 /
礼金等 : 1ヶ月 /
敷金 : 無料、保証金等 : -、 償却、敷引 : - /
住宅総合保険等の損害保険料 : 要 /
その他 : 巡回管理/1年未満解約時総賃料1ヵ月分の違約金 退去時清掃費負担有 契約更新時事務手数料新賃料0.55ヵ月分
合計6.16万円(内訳:安心入居サービス1.76万円 引越し虫駆除サービス1.65万円 鍵交換代2.75万円)
更新料 新賃料1.00ヶ月分
ペット相談
普通借家 2年
保証会社利用必 初回保証料:総賃料50% 年額:1万円
/ 駐車場 : 無
リブマックスでは全物件の仲介手数料が賃料の55%以下
★当社専用のLINEございます★ご来店予約!気になる物件も一括でご紹介できます!また、住まい探しに関するお問い合わせを受け付けております♪まずは、お気軽にご連絡くださいませ★ |
||
| 所属団体 |
(公社)神奈川県宅地建物取引業協会会員 (公社)首都圏不動産公正取引協議会加盟 |
||
| 取扱会社(14) | (株)未来企画桜木町店 (情報提供媒体:SUUMO) | ||
|---|---|---|---|
| 住所 | 神奈川県横浜市中区宮川町2-55-1ルリエ横浜宮川町2階 | ||
| 電話番号 | 045-872-2068 | 免許番号 | 神奈川県知事(9)第17616号 |
| 取引態様 | 仲介 | 物件管理番号 |
100475038234 ※お問い合わせの際には、担当者へ物件管理番号をお伝えください。 |
| 物件に関する情報 |
物件の所在地 : 神奈川県横浜市南区宮元町1 /
交通の利便 : ブルーライン/吉野町駅 歩4分、京急本線/南太田駅 歩6分、ブルーライン/蒔田駅 歩10分 /
面積 : 21.28m² /
築年月 : 2023年08月 /
賃料 : 6.8万円 /
管理費又は共益費等 : 1.5万円 /
礼金等 : 1ヶ月 /
敷金 : 無料、保証金等 : -、 償却、敷引 : - /
住宅総合保険等の損害保険料 : 2万円2年 /
その他 : 全物件初期費用分割可能。当店は地元で30年営業している不動産総合会社です! 全業者の掲載されている物件を一括してご紹介はもちろん、ネット掲載前の未公開物件が店内には多数ございます! 貸主との距離が近い物件につきましては申込後の家賃交渉など全力で交渉させて頂きます! また関東で最も安い引越し業者と提携しておりますのでお申し込み時にご紹介も可能です! お部屋の事なら些細な事でもお気軽にご相談下さい!
合計2.75万円(内訳:鍵交換代2.75万円)
更新料 新賃料1.00ヶ月分
ペット相談
普通借家 2年
保証会社利用必 総賃料の50% 更新時1万円要
/ 駐車場 : 無
問い合わせで「1万円」キャッシュバック!!初期費用分割可
セキュリティ面は、オートロック・TVインターホンなど充実しているので安心して生活できます。浴室や洗濯物からスピーディーに湿気を除去してカビを防げる、浴室乾燥機が付いています。 |
||
| 所属団体 |
(公社)神奈川県宅地建物取引業協会会員 (公社)首都圏不動産公正取引協議会加盟 |
||
| 取扱会社(15) | (株)LIFIX川崎店 (情報提供媒体:SUUMO) | ||
|---|---|---|---|
| 住所 | 神奈川県川崎市川崎区砂子1-1-18 野崎ビル2階 | ||
| 電話番号 | 044-221-7055 | 免許番号 | 神奈川県知事(2)第29539号 |
| 取引態様 | 仲介 | 物件管理番号 |
100467814129 ※お問い合わせの際には、担当者へ物件管理番号をお伝えください。 |
| 物件に関する情報 |
物件の所在地 : 神奈川県横浜市南区宮元町1 /
交通の利便 : ブルーライン/吉野町駅 歩4分、京急本線/南太田駅 歩6分、ブルーライン/蒔田駅 歩10分 /
面積 : 21.28m² /
築年月 : 2023年08月 /
賃料 : 6.8万円 /
管理費又は共益費等 : 1.5万円 /
礼金等 : 1ヶ月 /
敷金 : 無料、保証金等 : -、 償却、敷引 : - /
住宅総合保険等の損害保険料 : 2万円2年 /
その他 : 【LINEで簡単にお部屋探し】【内覧代行やLINEでお部屋探し】【来店不要で契約締結も可能です!】【様々なご職業の方ご相談可能】【営業時間10 20時 お仕事終わりでもご対応可能です!】1年未満の解約は総賃料1ヶ月分相当額の短期解約違約金あり
合計6.16万円(内訳:24時間サポート1.76万円 虫駆除サービス1.65万円 鍵交換代2.75万円)
更新料 新賃料1.00ヶ月分
ペット相談
普通借家 2年
保証会社利用必 初回:賃料+管理費の50% 年間:10000円
/ 駐車場 : 無
【営業時間10時から20時 お仕事終わりもご対応可能です!】
【LINEで簡単にお部屋探し】【内覧代行やLINEでお部屋探し】【来店不要で契約締結も可能です!】【様々なご職業の方ご相談可能】【営業時間10 20時 お仕事終わりでもご対応可能です!】 |
||
| 所属団体 |
(公社)神奈川県宅地建物取引業協会会員 (公社)首都圏不動産公正取引協議会加盟 |
||
| 取扱会社(16) | 横浜ルームギャラリー (株)さくらスタイル (情報提供媒体:SUUMO) | ||
|---|---|---|---|
| 住所 | 神奈川県横浜市神奈川区鶴屋町2-21-9三善ビル4階402 | ||
| 電話番号 | 045-311-0881 | 免許番号 | 神奈川県知事(3)第28256号 |
| 取引態様 | 仲介 | 物件管理番号 |
100467825264 ※お問い合わせの際には、担当者へ物件管理番号をお伝えください。 |
| 物件に関する情報 |
物件の所在地 : 神奈川県横浜市南区宮元町1 /
交通の利便 : ブルーライン/吉野町駅 歩4分、京急本線/南太田駅 歩6分、ブルーライン/蒔田駅 歩8分 /
面積 : 21.28m² /
築年月 : 2023年09月 /
賃料 : 6.8万円 /
管理費又は共益費等 : 1.5万円 /
礼金等 : 1ヶ月 /
敷金 : 無料、保証金等 : -、 償却、敷引 : - /
住宅総合保険等の損害保険料 : 要 /
その他 : [契約時]鍵交換:27500円、24サポート:17600円、虫駆除サービス:16500円
ペット相談
普通借家 2年
保証会社利用必 [契約時]賃料等の50%、[更新/年]1万円
/ 駐車場 : 無
【インターネット無料、ペット飼育可】当店おすすめ物件♪
お早めに物件情報を確認したい場合は以下の連絡先までおをいただくとスムーズです。最寄りの担当店舗までお気軽におください。横浜支店:・新横浜支店: |
||
| 所属団体 |
(公社)全日本不動産協会神奈川県本部会員 (公社)首都圏不動産公正取引協議会加盟 |
||
| 取扱会社(17) | リブマックス川崎店(株)リブマックスリーシング (情報提供媒体:SUUMO) | ||
|---|---|---|---|
| 住所 | 神奈川県川崎市幸区南幸町2-20-8 | ||
| 電話番号 | 044-540-0505 | 免許番号 | 国土交通大臣(3)第8116号 |
| 取引態様 | 仲介 | 物件管理番号 |
100470869290 ※お問い合わせの際には、担当者へ物件管理番号をお伝えください。 |
| 物件に関する情報 |
物件の所在地 : 神奈川県横浜市南区宮元町1 /
交通の利便 : ブルーライン/吉野町駅 歩4分、京急本線/南太田駅 歩6分、ブルーライン/蒔田駅 歩8分 /
面積 : 21.28m² /
築年月 : 2023年08月 /
賃料 : 6.8万円 /
管理費又は共益費等 : 1.5万円 /
礼金等 : 1ヶ月 /
敷金 : 無料、保証金等 : -、 償却、敷引 : - /
住宅総合保険等の損害保険料 : 要 /
その他 : 巡回管理/1年未満解約時総賃料1ヵ月分の違約金 退去時清掃費負担有 契約更新時事務手数料新賃料0.55ヵ月分
合計6.16万円(内訳:安心入居サービス1.76万円 引越し虫駆除サービス1.65万円 鍵交換代2.75万円)
更新料 新賃料1.00ヶ月分
ペット相談
普通借家 2年
保証会社利用必 初回保証料:総賃料50% 年額:1万円
/ 駐車場 : 無
リブマックスでは全物件の仲介手数料が賃料の55%以下
★当社専用のLINEございます★ご来店予約!気になる物件も一括でご紹介できます!また、住まい探しに関するお問い合わせを受け付けております♪まずは、お気軽にご連絡くださいませ★ |
||
| 所属団体 |
(公社)神奈川県宅地建物取引業協会会員 (公社)首都圏不動産公正取引協議会加盟 |
||
| 取扱会社(18) | (株)CIRQUE COMPANY (情報提供媒体:SUUMO) | ||
|---|---|---|---|
| 住所 | 神奈川県横浜市中区不老町1-2-1 中央第6関内ビル7階 | ||
| 電話番号 | 045-211-4626 | 免許番号 | 神奈川県知事(1)第32457号 |
| 取引態様 | 仲介 | 物件管理番号 |
100473199297 ※お問い合わせの際には、担当者へ物件管理番号をお伝えください。 |
| 物件に関する情報 |
物件の所在地 : 神奈川県横浜市南区宮元町1 /
交通の利便 : ブルーライン/吉野町駅 歩4分、京急本線/南太田駅 歩6分、京急本線/黄金町駅 歩15分 /
面積 : 21.28m² /
築年月 : 2023年08月 /
賃料 : 6.8万円 /
管理費又は共益費等 : 1.5万円 /
礼金等 : 1ヶ月 /
敷金 : 無料、保証金等 : -、 償却、敷引 : - /
住宅総合保険等の損害保険料 : 要 /
その他 : 24hサポート:17600円/ 鍵交換:27500円/ 虫駆除:16500円/ 更新事務手数料:0.55ヶ月/ ペット飼育時:敷金1ヶ月増(償却)/ 短期解約違約金:1年未満総賃料1か月/
更新料 新賃料1.00ヶ月分
ペット相談
普通借家 2年
保証会社利用必 初回:総賃料50%/年:10000円
/ 駐車場 : 無
ネット使用料が無料の物件です
セキュリティ面は、TVインターホン・オートロックなどを備え付けているので安心して暮らせます。収納はクロゼット・シューズボックスなどが備え付けられているので、衣類や日用品の収納に重宝します。 |
||
| 所属団体 |
(公社)全日本不動産協会神奈川県本部会員 (公社)首都圏不動産公正取引協議会加盟 |
||
| 取扱会社(19) | (株)LIFIX関内店 (情報提供媒体:SUUMO) | ||
|---|---|---|---|
| 住所 | 神奈川県横浜市中区港町2-9-4 関内幸和ビル7階 | ||
| 電話番号 | 045-228-7326 | 免許番号 | 神奈川県知事(2)第29539号 |
| 取引態様 | 仲介 | 物件管理番号 |
100467815048 ※お問い合わせの際には、担当者へ物件管理番号をお伝えください。 |
| 物件に関する情報 |
物件の所在地 : 神奈川県横浜市南区宮元町1 /
交通の利便 : ブルーライン/吉野町駅 歩4分、京急本線/南太田駅 歩6分、ブルーライン/蒔田駅 歩10分 /
面積 : 21.28m² /
築年月 : 2023年08月 /
賃料 : 6.8万円 /
管理費又は共益費等 : 1.5万円 /
礼金等 : 1ヶ月 /
敷金 : 無料、保証金等 : -、 償却、敷引 : - /
住宅総合保険等の損害保険料 : 2万円2年 /
その他 : 【LINEで簡単にお部屋探し】【内覧代行やLINEでお部屋探し】【来店不要で契約締結も可能です!】【様々なご職業の方ご相談可能】【営業時間10 20時 お仕事終わりでもご対応可能です!】1年未満の解約は総賃料1ヶ月分相当額の短期解約違約金あり
合計6.16万円(内訳:24時間サポート1.76万円 虫駆除サービス1.65万円 鍵交換代2.75万円)
更新料 新賃料1.00ヶ月分
ペット相談
普通借家 2年
保証会社利用必 初回:賃料+管理費の50% 年間:10000円
/ 駐車場 : 無
【営業時間10時から20時 お仕事終わりもご対応可能です!】
【LINEで簡単にお部屋探し】【内覧代行やLINEでお部屋探し】【来店不要で契約締結も可能です!】【様々なご職業の方ご相談可能】【営業時間10 20時 お仕事終わりでもご対応可能です!】 |
||
| 取扱会社(20) | (株)クレアスレント横浜店 (情報提供媒体:SUUMO) | ||
|---|---|---|---|
| 住所 | 神奈川県横浜市神奈川区台町 17-1 マストビル7階 | ||
| 電話番号 | 0120-653663 | 免許番号 | 国土交通大臣(1)第10473号 |
| 取引態様 | 仲介 | 物件管理番号 |
100470500118 ※お問い合わせの際には、担当者へ物件管理番号をお伝えください。 |
| 物件に関する情報 |
物件の所在地 : 神奈川県横浜市南区宮元町1 /
交通の利便 : ブルーライン/吉野町駅 歩4分、京急本線/南太田駅 歩6分、ブルーライン/蒔田駅 歩9分 /
面積 : 21.28m² /
築年月 : 2023年09月 /
賃料 : 6.8万円 /
管理費又は共益費等 : 1.5万円 /
礼金等 : 1ヶ月 /
敷金 : 無料、保証金等 : -、 償却、敷引 : - /
住宅総合保険等の損害保険料 : 2万円2年 /
その他 : 保証会社利用必須、短期解約違約金有、退去時室内清掃費有、更新事務手数料0.55ヶ月分、ペット飼育時諸条件有、建物内全館禁煙※仕様・図面・写真等に相違があった場合は現況を優先します
合計6.16万円(内訳:安心入居サポート1.76万円 引越虫駆除サービス1.65万円 鍵交換代2.75万円)
更新料 新賃料1.00ヶ月分
ペット相談
普通借家 2年
保証会社利用必 初回保証料総賃料50%、更新料10000円/年
/ 駐車場 : 無
◆初期費用・web内見・入居日交渉等なんでもご相談ください◆
【チャットで気軽にご相談可能】都心にアクセス良好でON/OFF充実♪女性も安心できるオートロック・こだわり設備のお部屋★日常生活に便利なロケーション★オンライン相談や現地待ち合わせなどもご相談下さい! |
||
| 所属団体 |
(公社)東京都宅地建物取引業協会会員 (公社)首都圏不動産公正取引協議会加盟 |
||
| 取扱会社(21) | 株式会社 アップル神奈川 アパマンショップ横浜西口店 | ||
|---|---|---|---|
| 住所 | 神奈川県横浜市西区南幸2丁目8-20 | ||
| 電話番号 | 045-287-2626 | 免許番号 | 神奈川県知事(10)第13668号 |
| 取引態様 | 仲介 | 物件管理番号 |
111305180 ※お問い合わせの際には、担当者へ物件管理番号をお伝えください。 |
| 物件に関する情報 |
物件の所在地 : 神奈川県横浜市南区宮元町1丁目 /
交通の利便 : 横浜市ブルーライン/吉野町 徒歩4分 /
面積 : 21.28m² /
築年月 : 2023年09月 /
賃料 : 6.8万円 /
管理費又は共益費等 : 1.5万円 /
礼金等 : 1ヶ月 /
敷金 : 無料、保証金等 : -、 償却、敷引 : - /
住宅総合保険等の損害保険料 : 20000円(2年) /
その他 : 犬又は猫1匹まで(成長時体長50㎝、体重10㎏相当)敷金1か月加算(退去時償却)/短期解約(1年未満、フリーレントがついての契約の場合は1年9か月未満)違約金賃料等の1か月分/解約予告2か月前/駐輪場:上段月額300円、下段月額500円 保証会社利用必須 にじいろインシュア・Jリース・GTN等 保証料:初回総賃料50%、年間保証料10000円 安心入居サポート 17600円/引越虫駆除サービス 16500円/鍵交換費用 27500円
[退去時費用(故意・過失等別途実費):退去時実費精算]
/ 駐車場 : 空有
18,000円
(機械式)
【ご予約無しのご来店も歓迎♪お気軽にお問い合わせください♪】
|
||
| 所属団体 |
(公社)神奈川県宅地建物取引業協会 (公社) 首都圏不動産公正取引協議会加盟 - |
||
| 取扱会社(22) | (株)グリップ横浜本店 (情報提供媒体:SUUMO) | ||
|---|---|---|---|
| 住所 | 神奈川県横浜市西区高島2-7-1 ファーストプレイス横浜2階 | ||
| 電話番号 | 0120-951908 | 免許番号 | 神奈川県知事(4)第27217号 |
| 取引態様 | 仲介 | 物件管理番号 |
100467765264 ※お問い合わせの際には、担当者へ物件管理番号をお伝えください。 |
| 物件に関する情報 |
物件の所在地 : 神奈川県横浜市南区宮元町1 /
交通の利便 : ブルーライン/吉野町駅 歩4分、京急本線/南太田駅 歩6分、ブルーライン/蒔田駅 歩8分 /
面積 : 21.28m² /
築年月 : 2023年09月 /
賃料 : 6.8万円 /
管理費又は共益費等 : 1.5万円 /
礼金等 : 1ヶ月 /
敷金 : 無料、保証金等 : -、 償却、敷引 : - /
住宅総合保険等の損害保険料 : 2万円2年 /
その他 : 巡回管理/本物件のお問い合わせは、株式会社グリップ横浜本店( 0120-951-908)までお願いいたします。短期解約違約金あり。
合計6.16万円(内訳:24時間入居者サポート1.76万円 室内除菌消臭費用1.65万円 鍵交換代2.75万円)
更新料 新賃料1.00ヶ月分
ペット相談
普通借家 2年
保証会社利用必 初回保証料:総賃料50% 年次更新料:10 000円(指定保証会社のプランによる)
/ 駐車場 : 無
★Le a(レア)シリーズのGLIP★
インターネット使用料無料・ペット飼育相談可・総戸数153戸のデザイナーズ分譲賃貸マンション。敷地内機械式駐車場・駐輪場あり。IoT導入でひとつ先の便利な暮らしを満喫してください。 |
||
| 所属団体 |
(公社)神奈川県宅地建物取引業協会会員 (公社)首都圏不動産公正取引協議会加盟 |
||

