愛知県日進市折戸町鎌ケ寿の賃貸アパート
情報公開日:2025/12/10(残り15日)
次回更新日は2025/12/17
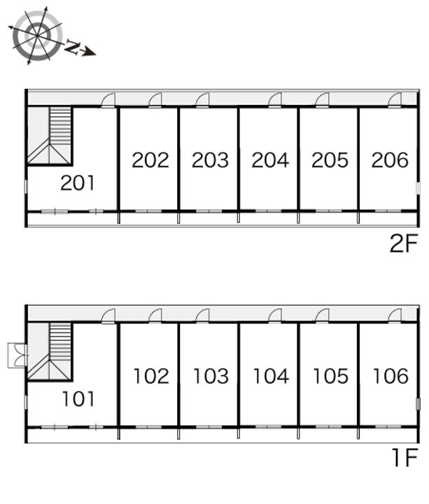
物件画像
画像提供元:ホームメイトFC赤池駅前店(株)クレスト
この物件のタグ
この物件にお問い合わせ
愛知県日進市折戸町鎌ケ寿の賃貸アパートの物件情報
| 賃料/管理費等 |
3.9万円(管理費等 5,000円)
|
||
|---|---|---|---|
| 敷金 | 無料 | 礼金 | 無料 |
| 種別/構造 | アパート/鉄骨造 | 築年月 | 1998年03月 |
| 所在地 |
愛知県日進市折戸町鎌ケ寿
|
||
| 主要交通機関 | 名鉄豊田線/日進駅 歩13分 | ||
| 間取り | 1K | 面積 | 23.18m² |
| 間取り詳細 | - | 方位 | - |
| 階数/部屋番号 | 1階/地上2階建 | 駐車場 | 有(敷地内) 敷地内6050円 |
| 特徴 |
|
||
| 設備/条件 | バストイレ別、バルコニー、エアコン、室内洗濯置、即入居可、電気コンロ、フリーレント、家電付、家具付、駐車5台以上、敷金・礼金不要、IT重説 対応物件 | ||
| 備考 |
合計4.18万円(内訳:室内清掃費用 41800円) フリーレント1ヶ月 普通借家 2年 保証会社利用必 保証会社の利用:利用料の100%~120% |
||
| 契約期間 | お問い合わせください。 | ||
|---|---|---|---|
| 入居可能時期 |
即入居可
|
||
| 初期費用 |
お問い合わせください。
|
||
| 住宅保険 | 2.67万円2年 | 現状空室状況 | お問い合わせください。 |
情報提供元:ホームメイトFC赤池駅前店(株)クレスト
画像提供元:ホームメイトFC赤池駅前店(株)クレスト
※各種情報と現状に差異がある場合は、現状優先となります。取り扱い不動産会社が複数ある場合は、住宅保険等、一部条件が異なる場合もございますので、取扱店舗までご確認下さいませ。
この物件にお問い合わせ
周辺施設
| コンビニ |
ローソン 日進折戸町店 株式会社いち |
|||
|---|---|---|---|---|
| スーパー |
フィール日進店 株式会社D‐MARKET |
|||
| ドラッグストア |
ハーモニー薬局 のぞみ調剤薬局 |
|||
| 保育園 |
日進市立 南部保育園 |
|||
|---|---|---|---|---|
| 幼稚園 |
和合あかつき幼稚園 |
|||
| 小学校 |
日進市立南小学校 |
|||
| 中学校 |
愛知シュタイナー学園 |
|||
※周辺情報は不動産会社から提供された情報ではなく、弊サービスで独自に収集した情報です。
担当者のオススメポイント!
お部屋探しはホームメイト♪赤池駅前店 掲載数地域トップクラス
愛知県日進市折戸町鎌ケ寿の賃貸アパートの取扱会社情報 1件
| 取扱会社(1) | ホームメイトFC赤池駅前店(株)クレスト (情報提供媒体:SUUMO) | ||
|---|---|---|---|
| 住所 | 愛知県日進市赤池1-3001オーシャンプラザ1F | ||
| 電話番号 | 0120-848250 | 免許番号 | 愛知県知事(4)第21413号 |
| 取引態様 | 仲介 | 物件管理番号 |
100442817015 ※お問い合わせの際には、担当者へ物件管理番号をお伝えください。 |
| 物件に関する情報 |
物件の所在地 : 愛知県日進市折戸町鎌ケ寿 /
交通の利便 : 名鉄豊田線/日進駅 歩13分 /
面積 : 23.18m² /
築年月 : 1998年03月 /
賃料 : 3.9万円 /
管理費又は共益費等 : 5,000円 /
礼金等 : 無料 /
敷金 : 無料、保証金等 : -、 償却、敷引 : - /
住宅総合保険等の損害保険料 : 2.67万円2年 /
その他 : 合計4.18万円(内訳:室内清掃費用 41800円)
フリーレント1ヶ月
普通借家 2年
保証会社利用必 保証会社の利用:利用料の100%~120%
/ 駐車場 : 有(敷地内)
敷地内6050円
お部屋探しはホームメイト♪赤池駅前店 掲載数地域トップクラス
|
||
| 所属団体 |
(公社)全日本不動産協会愛知県本部会員 東海不動産公正取引協議会加盟 |
||

