スカイコートグランメゾン御殿山[1階]
情報公開日:2025/10/29(残り15日)
次回更新日は2025/11/05
物件画像
画像提供元:(株)KENTY不動産川崎店
この物件のタグ
この物件にお問い合わせ
スカイコートグランメゾン御殿山[1階]の物件情報
| 賃料/管理費等 |
12.07万円(管理費等 9,300円)
|
||
|---|---|---|---|
| 敷金 | 12.07万円 | 礼金 | 12.07万円 |
| 種別/構造 | マンション/RC | 築年月 | 2021年03月 |
| 所在地 |
東京都品川区北品川5
|
||
| 主要交通機関 |
JR山手線/大崎駅 歩8分 京急本線/北品川駅 歩11分 京急本線/新馬場駅 歩12分 |
||
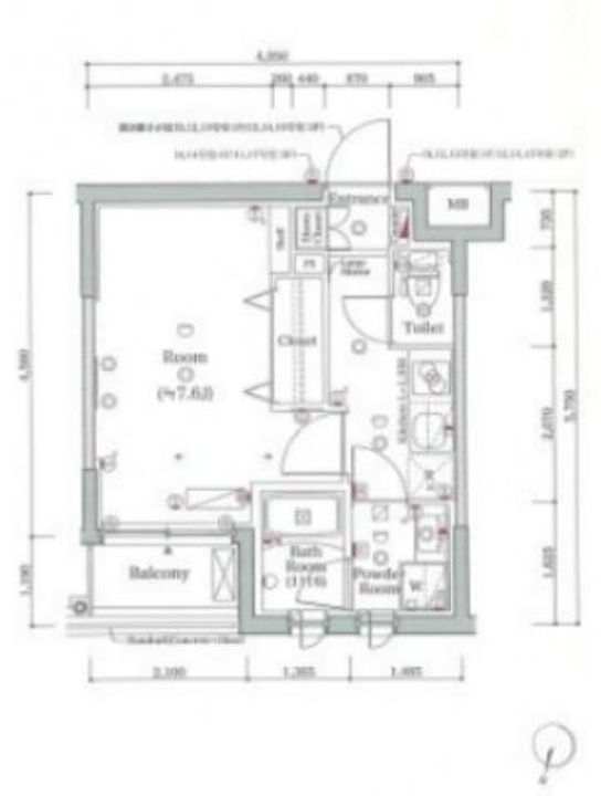
| 間取り | 1K | 面積 | 25.96m² |
| 間取り詳細 | 洋7.6 | 方位 | 北 |
| 階数/部屋番号 | 1階/地上4階建 | 駐車場 | 有(敷地内) 敷地内25000円 |
| 特徴 |
|
||
| 設備/条件 | バストイレ別、バルコニー、エアコン、ガスコンロ対応、クロゼット、フローリング、TVインターホン、浴室乾燥機、オートロック、室内洗濯置、シューズボックス、システムキッチン、温水洗浄便座、脱衣所、エレベーター、洗面所独立、洗面化粧台、2口コンロ、駐輪場、宅配ボックス、光ファイバー、外壁タイル張り、防犯カメラ、照明付、全居室収納、分譲賃貸、グリル付、全居室洋室、保証人不要、単身者相談、敷金1ヶ月、バイク置場、全居室フローリング、2沿線利用可、CS、駅まで平坦、ネット使用料不要、エアコン全室、保証金不要、24時間換気システム、外壁コンクリート、平坦地、学生相談、2駅利用可、3駅以上利用可、駅徒歩10分以内、24時間ゴミ出し可、敷地内ごみ置き場、全居室6畳以上、全居室8畳以上、都市ガス、洗面所にドア、玄関収納、BS、年内入居可、年度内入居可、礼金1ヶ月、保証会社利用可、IT重説 対応物件、初期費用カード決済可 | ||
| 備考 |
※退去時に解約事務手数料12 000円+税がかかります。 合計3.52万円(内訳:消火剤0.55万円 鍵交換代2.97万円) 更新料 新賃料1.50ヶ月分 少額短期保険 月額1000円 生活安心パック 月額1650円 単身者限定/事務所利用不可/ルームシェア不可 普通借家 2年 保証会社利用必 エポスカード ※〔初回保証委託料〕家賃+管理費×50%〔月々〕家賃+管理費×1.4% ※物件に関する備考は各社異なりますのでご確認のうえお問い合わせください。 |
||
| 契約期間 | お問い合わせください。 | ||
|---|---|---|---|
| 入居可能時期 |
''25年10月下旬
|
||
| 初期費用 |
お問い合わせください。
|
||
| 住宅保険 | 要 | 現状空室状況 | お問い合わせください。 |
情報提供元:(株)KENTY不動産川崎店
画像提供元:(株)KENTY不動産川崎店
※各種情報と現状に差異がある場合は、現状優先となります。取り扱い不動産会社が複数ある場合は、住宅保険等、一部条件が異なる場合もございますので、取扱店舗までご確認下さいませ。
この物件にお問い合わせ
周辺施設
| コンビニ |
ファミリーマート 大崎ブライトタワー店 セブン‐イレブン 大崎ブライトコア |
|||
|---|---|---|---|---|
| スーパー |
ライフ品川御殿山店 株式会社ライフコーポレーション大崎ニューシティ店 |
|||
| ドラッグストア |
トモズ ゲートシティ大崎店 クオール薬局 大崎店 |
|||
| 保育園 |
品川区 五反田第二保育園 |
|||
|---|---|---|---|---|
| 幼稚園 |
御殿山幼稚園 |
|||
| 小学校 |
品川区立御殿山小学校 |
|||
| 中学校 |
品川区立 日野学園 |
|||
※周辺情報は不動産会社から提供された情報ではなく、弊サービスで独自に収集した情報です。
担当者のオススメポイント!
当物件はKENTY不動産ならクレカにて分割払い可能です!
当物件の初期費用が知りたい、引越に際して分からない事があれば お気軽にお問い合わせくださいませ。 地域情報など、お部屋の資料では分からない事も丁寧にご説明させていただきます。
スカイコートグランメゾン御殿山[1階]の取扱会社情報 24件
| 取扱会社(1) | (株)KENTY不動産川崎店 (情報提供媒体:SUUMO) | ||
|---|---|---|---|
| 住所 | 神奈川県川崎市川崎区駅前本町 11-1 パシフィックマークス川崎5階 | ||
| 電話番号 | 044-742-9630 | 免許番号 | 国土交通大臣(1)第10546号 |
| 取引態様 | 仲介 | 物件管理番号 |
100462331603 ※お問い合わせの際には、担当者へ物件管理番号をお伝えください。 |
| 物件に関する情報 |
物件の所在地 : 東京都品川区北品川5 /
交通の利便 : JR山手線/大崎駅 歩8分、京急本線/北品川駅 歩11分、京急本線/新馬場駅 歩12分 /
面積 : 25.96m² /
築年月 : 2021年03月 /
賃料 : 12.07万円 /
管理費又は共益費等 : 9,300円 /
礼金等 : 1ヶ月 /
敷金 : 1ヶ月、保証金等 : -、 償却、敷引 : - /
住宅総合保険等の損害保険料 : 要 /
その他 : ※退去時に解約事務手数料12 000円+税がかかります。
合計3.52万円(内訳:消火剤0.55万円 鍵交換代2.97万円)
更新料 新賃料1.50ヶ月分 少額短期保険 月額1000円 生活安心パック 月額1650円
単身者限定/事務所利用不可/ルームシェア不可
普通借家 2年
保証会社利用必 エポスカード ※〔初回保証委託料〕家賃+管理費×50%〔月々〕家賃+管理費×1.4%
/ 駐車場 : 有(敷地内)
敷地内25000円
当物件はKENTY不動産ならクレカにて分割払い可能です!
当物件の初期費用が知りたい、引越に際して分からない事があれば お気軽にお問い合わせくださいませ。 地域情報など、お部屋の資料では分からない事も丁寧にご説明させていただきます。 |
||
| 所属団体 |
(公社)全日本不動産協会東京都本部会員 (公社)首都圏不動産公正取引協議会加盟 |
||
| 取扱会社(2) | そらうみリアルエステート(株)本店 (情報提供媒体:SUUMO) | ||
|---|---|---|---|
| 住所 | 東京都港区麻布十番2-20-14 麻布十番ハウス104 | ||
| 電話番号 | 03-6435-2093 | 免許番号 | 東京都知事(3)第94395号 |
| 取引態様 | 仲介 | 物件管理番号 |
100346614941 ※お問い合わせの際には、担当者へ物件管理番号をお伝えください。 |
| 物件に関する情報 |
物件の所在地 : 東京都品川区北品川5 /
交通の利便 : JR山手線/大崎駅 歩8分、京急本線/北品川駅 歩9分、JR京浜東北線/品川駅 歩20分 /
面積 : 25.96m² /
築年月 : 2021年03月 /
賃料 : 12.07万円 /
管理費又は共益費等 : 9,300円 /
礼金等 : 1ヶ月 /
敷金 : 1ヶ月、保証金等 : -、 償却、敷引 : - /
住宅総合保険等の損害保険料 : 要 /
その他 : 巡回管理/駐輪場・バイク置場:詳細要確認
合計2.97万円(内訳:鍵交換費用)
生活安心パック:1650円 消火剤:5500円
単身者限定
普通借家 2年
保証会社利用必 初回保証料:総賃料の50% 詳細はお問い合わせ下さい
/ 駐車場 : 無
★ネット使用料不要★分譲賃貸★浴室乾燥機★宅配ボックス★
★システムキッチン・2口ガスコンロ★バス・トイレ別★独立洗面化粧台★室内洗濯機置場★バルコニー★エアコン★TVインターホン★オートロック★そらうみリアルエステートへお気軽にお問い合わせください!★ |
||
| 所属団体 |
(公社)東京都宅地建物取引業協会会員 (公社)首都圏不動産公正取引協議会加盟 |
||
| 取扱会社(3) | リブマックス日本橋茅場町店(株)リブマックスリーシング (情報提供媒体:SUUMO) | ||
|---|---|---|---|
| 住所 | 東京都中央区日本橋茅場町3-7-3 ホテルリブマックス茅場町1階 | ||
| 電話番号 | 03-5644-1200 | 免許番号 | 国土交通大臣(3)第8116号 |
| 取引態様 | 仲介 | 物件管理番号 |
100468641830 ※お問い合わせの際には、担当者へ物件管理番号をお伝えください。 |
| 物件に関する情報 |
物件の所在地 : 東京都品川区北品川5 /
交通の利便 : JR山手線/大崎駅 歩8分、京急本線/北品川駅 歩11分、東急池上線/大崎広小路駅 歩18分 /
面積 : 25.96m² /
築年月 : 2021年03月 /
賃料 : 12.07万円 /
管理費又は共益費等 : 9,300円 /
礼金等 : 1ヶ月 /
敷金 : 1ヶ月、保証金等 : -、 償却、敷引 : - /
住宅総合保険等の損害保険料 : 要 /
その他 : 巡回管理/初期費用クレジット支払可能!オンライン内覧・オンライン契約等弊社に一度も来店せずとも問題ありません♪弊社ではネットに掲載されている物件は全てご紹介可能になりますので気になる物件は全て申し付けください★
合計3.52万円(内訳:消火剤0.55万円 鍵交換代2.97万円)
更新料 新賃料1.50ヶ月分 少額短期保険 月額1000円 生活安心パック 月額1650円
普通借家 2年
保証会社利用必 エポスカード 〔初回保障委託料〕家賃+管理費×50%〔月々〕家賃+管理費×1.4%
/ 駐車場 : 近隣駐車場
近隣100m35000円
★エリア最大級★経験豊富なスタッフが多数在籍しております♪
通勤通学・プライベートの拠点に大変便利な大崎駅徒歩8分の好立地☆ネット無料☆お問合せ物件のほかネット非掲載や空き予定など豊富な物件からご紹介いたします。お気軽にお問い合わせください☆ |
||
| 所属団体 |
(公社)東京都宅地建物取引業協会会員 (公社)首都圏不動産公正取引協議会加盟 |
||
| 取扱会社(4) | リブマックス品川駅前店(株)リブマックスリーシング (情報提供媒体:SUUMO) | ||
|---|---|---|---|
| 住所 | 東京都港区港南2-2-15 レゴリス品川駅前ビルディング5階 | ||
| 電話番号 | 03-3474-8411 | 免許番号 | 国土交通大臣(3)第8116号 |
| 取引態様 | 仲介 | 物件管理番号 |
100466986203 ※お問い合わせの際には、担当者へ物件管理番号をお伝えください。 |
| 物件に関する情報 |
物件の所在地 : 東京都品川区北品川5 /
交通の利便 : JR山手線/大崎駅 歩8分、京急本線/北品川駅 歩11分、東急池上線/大崎広小路駅 歩18分 /
面積 : 25.96m² /
築年月 : 2021年03月 /
賃料 : 12.07万円 /
管理費又は共益費等 : 9,300円 /
礼金等 : 1ヶ月 /
敷金 : 1ヶ月、保証金等 : -、 償却、敷引 : - /
住宅総合保険等の損害保険料 : 要 /
その他 : 巡回管理/初期費用クレジット支払可能!オンライン内覧・オンライン契約等弊社に一度も来店せずとも問題ありません♪弊社ではネットに掲載されている物件は全てご紹介可能になりますので気になる物件は全て申し付けください★
合計3.52万円(内訳:消火剤0.55万円 鍵交換代2.97万円)
更新料 新賃料1.50ヶ月分 少額短期保険 月額1000円 生活安心パック 月額1650円
普通借家 2年
保証会社利用必 エポスカード 〔初回保障委託料〕家賃+管理費×50%〔月々〕家賃+管理費×1.4%
/ 駐車場 : 近隣駐車場
近隣100m35000円
★エリア最大級★経験豊富なスタッフが多数在籍しております♪
通勤通学・プライベートの拠点に大変便利な大崎駅徒歩8分の好立地☆ネット無料☆お問合せ物件のほかネット非掲載や空き予定など豊富な物件からご紹介いたします。お気軽にお問い合わせください☆ |
||
| 所属団体 |
(公社)東京都宅地建物取引業協会会員 (公社)首都圏不動産公正取引協議会加盟 |
||
| 取扱会社(5) | (株)ユウキ・ホーム麻布十番店 (情報提供媒体:SUUMO) | ||
|---|---|---|---|
| 住所 | 東京都港区麻布十番2-19-10 | ||
| 電話番号 | 03-5730-0066 | 免許番号 | 東京都知事(5)第76214号 |
| 取引態様 | 仲介 | 物件管理番号 |
100346614713 ※お問い合わせの際には、担当者へ物件管理番号をお伝えください。 |
| 物件に関する情報 |
物件の所在地 : 東京都品川区北品川5 /
交通の利便 : JR山手線/大崎駅 歩8分、京急本線/北品川駅 歩9分、JR京浜東北線/品川駅 歩20分 /
面積 : 25.96m² /
築年月 : 2021年03月 /
賃料 : 12.07万円 /
管理費又は共益費等 : 9,300円 /
礼金等 : 1ヶ月 /
敷金 : 1ヶ月、保証金等 : -、 償却、敷引 : - /
住宅総合保険等の損害保険料 : 要 /
その他 : 巡回管理/駐輪場・バイク置場:詳細要確認
合計2.97万円(内訳:鍵交換費用)
生活安心パック:1650円 消火剤:5500円
単身者限定
普通借家 2年
保証会社利用必 初回保証料:総賃料の50% 詳細はお問い合わせ下さい
/ 駐車場 : 無
★ネット使用料不要★分譲賃貸★浴室乾燥機★宅配ボックス★
★システムキッチン・2口ガスコンロ★バス・トイレ別★独立洗面化粧台★室内洗濯機置場★バルコニー★エアコン★TVインターホン★オートロック★ユウキ・ホーム★ |
||
| 所属団体 |
(公社)東京都宅地建物取引業協会会員 (公社)首都圏不動産公正取引協議会加盟 |
||
| 取扱会社(6) | TR(株)ナビホーム赤坂店 (情報提供媒体:SUUMO) | ||
|---|---|---|---|
| 住所 | 東京都港区赤坂2-19-4 関ビル4階 | ||
| 電話番号 | 03-5544-9630 | 免許番号 | 東京都知事(1)第109457号 |
| 取引態様 | 仲介 | 物件管理番号 |
100463359753 ※お問い合わせの際には、担当者へ物件管理番号をお伝えください。 |
| 物件に関する情報 |
物件の所在地 : 東京都品川区北品川5 /
交通の利便 : JR山手線/大崎駅 歩11分、京急本線/北品川駅 歩11分、京急本線/新馬場駅 歩12分 /
面積 : 25.96m² /
築年月 : 2021年03月 /
賃料 : 12.07万円 /
管理費又は共益費等 : 9,300円 /
礼金等 : 1ヶ月 /
敷金 : 1ヶ月、保証金等 : -、 償却、敷引 : - /
住宅総合保険等の損害保険料 : 要 /
その他 : マンション探しはスカイコート賃貸センター ※退去時に解約事務手数料12 000円+税がかかります。 鍵交換代:29 700円 消火剤:5 500円 少額短期保険:1 000円/月 生活安心パック:1 650円/月 更新料:新賃料 1.5ヶ月 賃貸保証:加入要 エポスカード ※〔初回保証委託料〕家賃+管理費×50%〔月々〕家賃+管理費×1.4
合計3.52万円(内訳:消火剤0.55万円 鍵交換代2.97万円)
更新料 新賃料1.50ヶ月分 少額短期保険 月額1000円 生活安心パック 月額1650円
普通借家 2年
保証会社利用必 ※〔初回保証委託料〕家賃+管理費×50%〔月々〕家賃+管理費×1.4%
/ 駐車場 : 無
《内見予約受付中》好立地!♪分譲賃貸
オンライン内見・契約実施!気になる物件はまとめてご案内可能です! お部屋探しはナビホーム赤坂店にお任せください♪ |
||
| 所属団体 |
(公社)東京都宅地建物取引業協会会員 (公社)首都圏不動産公正取引協議会加盟 |
||
| 取扱会社(7) | そらうみリアルエステート(株)賃貸事業本部 (情報提供媒体:SUUMO) | ||
|---|---|---|---|
| 住所 | 東京都港区麻布十番1-11-16 SHビル1階 | ||
| 電話番号 | 03-6441-0981 | 免許番号 | 東京都知事(3)第94395号 |
| 取引態様 | 仲介 | 物件管理番号 |
100466091072 ※お問い合わせの際には、担当者へ物件管理番号をお伝えください。 |
| 物件に関する情報 |
物件の所在地 : 東京都品川区北品川5 /
交通の利便 : JR山手線/大崎駅 歩8分、京急本線/北品川駅 歩9分、JR京浜東北線/品川駅 歩20分 /
面積 : 25.96m² /
築年月 : 2021年03月 /
賃料 : 12.07万円 /
管理費又は共益費等 : 9,300円 /
礼金等 : 1ヶ月 /
敷金 : 1ヶ月、保証金等 : -、 償却、敷引 : - /
住宅総合保険等の損害保険料 : 要 /
その他 : 巡回管理/駐輪場・バイク置場:詳細要確認
合計2.97万円(内訳:鍵交換費用)
生活安心パック:1650円 消火剤:5500円
単身者限定
普通借家 2年
保証会社利用必 初回保証料:総賃料の50% 詳細はお問い合わせ下さい
/ 駐車場 : 無
★ネット使用料不要★分譲賃貸★浴室乾燥機★宅配ボックス★
★システムキッチン・2口ガスコンロ★バス・トイレ別★独立洗面化粧台★室内洗濯機置場★バルコニー★エアコン★TVインターホン★オートロック★そらうみリアルエステートへお気軽にお問い合わせください!★ |
||
| 所属団体 |
(公社)東京都宅地建物取引業協会会員 (公社)首都圏不動産公正取引協議会加盟 |
||
| 取扱会社(8) | (株)KENTY不動産蒲田東口店 (情報提供媒体:SUUMO) | ||
|---|---|---|---|
| 住所 | 東京都大田区蒲田5-18-1 ザ・シティ蒲田5階 | ||
| 電話番号 | 03-6428-7825 | 免許番号 | 国土交通大臣(1)第10546号 |
| 取引態様 | 仲介 | 物件管理番号 |
100462330837 ※お問い合わせの際には、担当者へ物件管理番号をお伝えください。 |
| 物件に関する情報 |
物件の所在地 : 東京都品川区北品川5 /
交通の利便 : JR山手線/大崎駅 歩8分、京急本線/北品川駅 歩11分、京急本線/新馬場駅 歩12分 /
面積 : 25.96m² /
築年月 : 2021年03月 /
賃料 : 12.07万円 /
管理費又は共益費等 : 9,300円 /
礼金等 : 1ヶ月 /
敷金 : 1ヶ月、保証金等 : -、 償却、敷引 : - /
住宅総合保険等の損害保険料 : 要 /
その他 : ※退去時に解約事務手数料12 000円+税がかかります。
合計3.52万円(内訳:消火剤0.55万円 鍵交換代2.97万円)
更新料 新賃料1.50ヶ月分 少額短期保険 月額1000円 生活安心パック 月額1650円
単身者限定/事務所利用不可/ルームシェア不可
普通借家 2年
保証会社利用必 エポスカード ※〔初回保証委託料〕家賃+管理費×50%〔月々〕家賃+管理費×1.4%
/ 駐車場 : 有(敷地内)
敷地内25000円
当物件はKENTY不動産ならクレカにて分割払い可能です!
当物件の初期費用が知りたい、引越に際して分からない事があれば お気軽にお問い合わせくださいませ。 地域情報など、お部屋の資料では分からない事も丁寧にご説明させていただきます。 |
||
| 所属団体 |
(公社)全日本不動産協会東京都本部会員 (公社)首都圏不動産公正取引協議会加盟 |
||
| 取扱会社(9) | (株)KENTY不動産大森店 (情報提供媒体:SUUMO) | ||
|---|---|---|---|
| 住所 | 東京都大田区山王2-8-26 東辰ビル2階 | ||
| 電話番号 | 03-6303-7034 | 免許番号 | 国土交通大臣(1)第10546号 |
| 取引態様 | 仲介 | 物件管理番号 |
100462330228 ※お問い合わせの際には、担当者へ物件管理番号をお伝えください。 |
| 物件に関する情報 |
物件の所在地 : 東京都品川区北品川5 /
交通の利便 : JR山手線/大崎駅 歩8分、京急本線/北品川駅 歩11分、京急本線/新馬場駅 歩12分 /
面積 : 25.96m² /
築年月 : 2021年03月 /
賃料 : 12.07万円 /
管理費又は共益費等 : 9,300円 /
礼金等 : 1ヶ月 /
敷金 : 1ヶ月、保証金等 : -、 償却、敷引 : - /
住宅総合保険等の損害保険料 : 要 /
その他 : ※退去時に解約事務手数料12 000円+税がかかります。
合計3.52万円(内訳:消火剤0.55万円 鍵交換代2.97万円)
更新料 新賃料1.50ヶ月分 少額短期保険 月額1000円 生活安心パック 月額1650円
単身者限定/事務所利用不可/ルームシェア不可
普通借家 2年
保証会社利用必 エポスカード ※〔初回保証委託料〕家賃+管理費×50%〔月々〕家賃+管理費×1.4%
/ 駐車場 : 有(敷地内)
敷地内25000円
当物件はKENTY不動産ならクレカにて分割払い可能です!
当物件の初期費用が知りたい、引越に際して分からない事があれば お気軽にお問い合わせくださいませ。 地域情報など、お部屋の資料では分からない事も丁寧にご説明させていただきます。 |
||
| 取扱会社(10) | ピアホーム広尾駅前店(株)PH.C (情報提供媒体:SUUMO) | ||
|---|---|---|---|
| 住所 | 東京都港区南麻布5-15-11広尾セオハウス2階 | ||
| 電話番号 | 03-6456-4569 | 免許番号 | 東京都知事(1)第106525号 |
| 取引態様 | 仲介 | 物件管理番号 |
100462679028 ※お問い合わせの際には、担当者へ物件管理番号をお伝えください。 |
| 物件に関する情報 |
物件の所在地 : 東京都品川区北品川5 /
交通の利便 : 京急本線/北品川駅 歩9分、JR山手線/大崎駅 歩8分、京急本線/新馬場駅 歩12分 /
面積 : 25.96m² /
築年月 : 2021年03月 /
賃料 : 12.07万円 /
管理費又は共益費等 : 9,300円 /
礼金等 : 1ヶ月 /
敷金 : 1ヶ月、保証金等 : -、 償却、敷引 : - /
住宅総合保険等の損害保険料 : 2万円2年 /
その他 : 巡回管理/※1年未満解約時、賃料+管理費1ヶ月分の違約金有り ※同タイプ・別階の内観写真を掲載している場合があります。図面と現況が異なる場合は現況を優先いたします。
合計3.52万円(内訳:鍵交換費:29700円 消火剤:5500円)
退去時解約事務手数料:13200円 生活安心パック:1650円/月 少額短期保険料:1000円/月
単身者限定
保証会社利用必 【エポス】初回保証料:賃料等の50%、月次保証料1%1.5%
/ 駐車場 : 近隣駐車場
近隣50m50000円
大崎駅徒歩8分!ネット無料☆独立洗面台◎
オンライン内見も可能です!初期費用のクレカ決済にも対応!!お部屋探しはピアホームにおまかせください!! |
||
| 所属団体 |
(公社)東京都宅地建物取引業協会会員 (公社)首都圏不動産公正取引協議会加盟 |
||
| 取扱会社(11) | (株)KENTY不動産蒲田本店 (情報提供媒体:SUUMO) | ||
|---|---|---|---|
| 住所 | 東京都大田区西蒲田7-46-5 | ||
| 電話番号 | 03-6715-8963 | 免許番号 | 国土交通大臣(1)第10546号 |
| 取引態様 | 仲介 | 物件管理番号 |
100462328541 ※お問い合わせの際には、担当者へ物件管理番号をお伝えください。 |
| 物件に関する情報 |
物件の所在地 : 東京都品川区北品川5 /
交通の利便 : JR山手線/大崎駅 歩8分、京急本線/北品川駅 歩11分、京急本線/新馬場駅 歩12分 /
面積 : 25.96m² /
築年月 : 2021年03月 /
賃料 : 12.07万円 /
管理費又は共益費等 : 9,300円 /
礼金等 : 1ヶ月 /
敷金 : 1ヶ月、保証金等 : -、 償却、敷引 : - /
住宅総合保険等の損害保険料 : 要 /
その他 : ※退去時に解約事務手数料12 000円+税がかかります。
合計3.52万円(内訳:消火剤0.55万円 鍵交換代2.97万円)
更新料 新賃料1.50ヶ月分 少額短期保険 月額1000円 生活安心パック 月額1650円
単身者限定/事務所利用不可/ルームシェア不可
普通借家 2年
保証会社利用必 エポスカード ※〔初回保証委託料〕家賃+管理費×50%〔月々〕家賃+管理費×1.4%
/ 駐車場 : 有(敷地内)
敷地内25000円
当物件はKENTY不動産ならクレカにて分割払い可能です!
当物件の初期費用が知りたい、引越に際して分からない事があれば お気軽にお問い合わせくださいませ。 地域情報など、お部屋の資料では分からない事も丁寧にご説明させていただきます。 |
||
| 所属団体 |
(公社)全日本不動産協会東京都本部会員 (公社)首都圏不動産公正取引協議会加盟 |
||
| 取扱会社(12) | SEG(株)広尾本店 (情報提供媒体:SUUMO) | ||
|---|---|---|---|
| 住所 | 東京都渋谷区広尾5-3-13 Barbizon86 6階 | ||
| 電話番号 | 03-6721-6950 | 免許番号 | 東京都知事(2)第103362号 |
| 取引態様 | 仲介 | 物件管理番号 |
100462679036 ※お問い合わせの際には、担当者へ物件管理番号をお伝えください。 |
| 物件に関する情報 |
物件の所在地 : 東京都品川区北品川5 /
交通の利便 : 京急本線/北品川駅 歩9分、JR山手線/大崎駅 歩8分、京急本線/新馬場駅 歩12分 /
面積 : 25.96m² /
築年月 : 2021年03月 /
賃料 : 12.07万円 /
管理費又は共益費等 : 9,300円 /
礼金等 : 1ヶ月 /
敷金 : 1ヶ月、保証金等 : -、 償却、敷引 : - /
住宅総合保険等の損害保険料 : 2万円2年 /
その他 : 巡回管理/※1年未満解約時、賃料+管理費1ヶ月分の違約金有り ※同タイプ・別階の内観写真を掲載している場合があります。図面と現況が異なる場合は現況を優先いたします。
合計3.52万円(内訳:鍵交換費:29700円 消火剤:5500円)
退去時解約事務手数料:13200円 生活安心パック:1650円/月 少額短期保険料:1000円/月
単身者限定
保証会社利用必 【エポス】初回保証料:賃料等の50%、月次保証料1%1.5%
/ 駐車場 : 近隣駐車場
近隣50m50000円
大崎駅徒歩8分!ネット無料☆独立洗面台◎
オンライン内見も可能です!初期費用のクレカ決済にも対応!!お部屋探しはピアホームにおまかせください!! |
||
| 所属団体 |
(公社)東京都宅地建物取引業協会会員 (公社)首都圏不動産公正取引協議会加盟 |
||
| 取扱会社(13) | スカイコート賃貸センター(株)新宿店 (情報提供媒体:SUUMO) | ||
|---|---|---|---|
| 住所 | 東京都新宿区住吉町 2-14 四谷曙橋ビル1階 | ||
| 電話番号 | 0120-777-388 | 免許番号 | 国土交通大臣(6)第5521号 |
| 取引態様 | 仲介 | 物件管理番号 |
100459956992 ※お問い合わせの際には、担当者へ物件管理番号をお伝えください。 |
| 物件に関する情報 |
物件の所在地 : 東京都品川区北品川5 /
交通の利便 : JR山手線/大崎駅 歩8分、京急本線/北品川駅 歩9分、京急本線/新馬場駅 歩12分 /
面積 : 25.96m² /
築年月 : 2021年03月 /
賃料 : 12.07万円 /
管理費又は共益費等 : 9,300円 /
礼金等 : 1ヶ月 /
敷金 : 1ヶ月、保証金等 : -、 償却、敷引 : - /
住宅総合保険等の損害保険料 : 要 /
その他 : 巡回管理/※1年未満に退去の場合、短期解約違約金(賃料+管理費の1か月分)がかかります。※退去時に解約事務手数料12000円+税がかかります。
合計3.52万円(内訳:鍵交換代2.97万円/消火剤0.55万円)
単身者限定/子供不可/事務所利用不可/ルームシェア不可
保証会社利用必 〔初回保証委託料〕家賃+管理費×50%〔月々〕家賃+管理費×1.4%
/ 駐車場 : 無
賃貸マンションお探しならスカイコート賃貸センター新宿店へ!
【当社管理物件・オンライン内見契約・初期費用クレジットカード決済可】当社管理物件なのでお部屋探し~入居後対応まで安心! |
||
| 所属団体 |
(一社)全国住宅産業協会会員 (公社)首都圏不動産公正取引協議会加盟 |
||
| 取扱会社(14) | リブマックス新橋駅前店(株)リブマックスリーシング (情報提供媒体:SUUMO) | ||
|---|---|---|---|
| 住所 | 東京都港区新橋2-6-7 花菱ビル5階 | ||
| 電話番号 | 03-3503-5050 | 免許番号 | 国土交通大臣(3)第8116号 |
| 取引態様 | 仲介 | 物件管理番号 |
100466999045 ※お問い合わせの際には、担当者へ物件管理番号をお伝えください。 |
| 物件に関する情報 |
物件の所在地 : 東京都品川区北品川5 /
交通の利便 : JR山手線/大崎駅 歩8分、京急本線/北品川駅 歩11分、東急池上線/大崎広小路駅 歩18分 /
面積 : 25.96m² /
築年月 : 2021年03月 /
賃料 : 12.07万円 /
管理費又は共益費等 : 9,300円 /
礼金等 : 1ヶ月 /
敷金 : 1ヶ月、保証金等 : -、 償却、敷引 : - /
住宅総合保険等の損害保険料 : 要 /
その他 : 巡回管理/初期費用クレジット支払可能!オンライン内覧・オンライン契約等弊社に一度も来店せずとも問題ありません♪弊社ではネットに掲載されている物件は全てご紹介可能になりますので気になる物件は全て申し付けください★
合計3.52万円(内訳:消火剤0.55万円 鍵交換代2.97万円)
更新料 新賃料1.50ヶ月分 少額短期保険 月額1000円 生活安心パック 月額1650円
普通借家 2年
保証会社利用必 エポスカード 〔初回保障委託料〕家賃+管理費×50%〔月々〕家賃+管理費×1.4%
/ 駐車場 : 近隣駐車場
近隣100m35000円
★エリア最大級★経験豊富なスタッフが多数在籍しております♪
通勤通学・プライベートの拠点に大変便利な大崎駅徒歩8分の好立地☆ネット無料☆お問合せ物件のほかネット非掲載や空き予定など豊富な物件からご紹介いたします。お気軽にお問い合わせください☆ |
||
| 所属団体 |
(公社)東京都宅地建物取引業協会会員 (公社)首都圏不動産公正取引協議会加盟 |
||
| 取扱会社(15) | SEG(株)PeerHome新橋店 (情報提供媒体:SUUMO) | ||
|---|---|---|---|
| 住所 | 東京都港区西新橋1-5-10 TJ内幸町ビル10階 | ||
| 電話番号 | 03-6257-8691 | 免許番号 | 東京都知事(2)第103362号 |
| 取引態様 | 仲介 | 物件管理番号 |
100462679988 ※お問い合わせの際には、担当者へ物件管理番号をお伝えください。 |
| 物件に関する情報 |
物件の所在地 : 東京都品川区北品川5 /
交通の利便 : 京急本線/北品川駅 歩9分、JR山手線/大崎駅 歩8分、京急本線/新馬場駅 歩12分 /
面積 : 25.96m² /
築年月 : 2021年03月 /
賃料 : 12.07万円 /
管理費又は共益費等 : 9,300円 /
礼金等 : 1ヶ月 /
敷金 : 1ヶ月、保証金等 : -、 償却、敷引 : - /
住宅総合保険等の損害保険料 : 2万円2年 /
その他 : 巡回管理/※1年未満解約時、賃料+管理費1ヶ月分の違約金有り ※同タイプ・別階の内観写真を掲載している場合があります。図面と現況が異なる場合は現況を優先いたします。
合計3.52万円(内訳:鍵交換費:29700円 消火剤:5500円)
退去時解約事務手数料:13200円 生活安心パック:1650円/月 少額短期保険料:1000円/月
単身者限定
保証会社利用必 【エポス】初回保証料:賃料等の50%、月次保証料1%1.5%
/ 駐車場 : 近隣駐車場
近隣50m50000円
大崎駅徒歩8分!ネット無料☆独立洗面台◎
オンライン内見も可能です!初期費用のクレカ決済にも対応!!お部屋探しはピアホームにおまかせください!! |
||
| 取扱会社(16) | ハウスコム西東京(株)蒲田店 (情報提供媒体:SUUMO) | ||
|---|---|---|---|
| 住所 | 東京都大田区西蒲田7-5-8 コパンビル1階 | ||
| 電話番号 | 0800-1700846 | 免許番号 | 東京都知事(1)第108225号 |
| 取引態様 | 仲介 | 物件管理番号 |
100462532752 ※お問い合わせの際には、担当者へ物件管理番号をお伝えください。 |
| 物件に関する情報 |
物件の所在地 : 東京都品川区北品川5 /
交通の利便 : JR山手線/大崎駅 歩8分、京急本線/北品川駅 歩9分、京急本線/新馬場駅 歩12分 /
面積 : 25.96m² /
築年月 : 2021年03月 /
賃料 : 12.07万円 /
管理費又は共益費等 : 9,300円 /
礼金等 : 1ヶ月 /
敷金 : 1ヶ月、保証金等 : -、 償却、敷引 : - /
住宅総合保険等の損害保険料 : 要 /
その他 : 合計3.52万円(内訳:鍵交換代2.97万円 消火剤0.55万円)
更新料 新賃料1.50ヶ月分 月額:少額短期保険(月) 1000円 生活安心パック(月) 1650円
単身者限定
保証会社利用必 エポスカード ※〔初回保証委託料〕家賃+管理費×50%〔月々〕家賃+管理費×1.4%
/ 駐車場 : 無
成約者特典BOOKOFF買取価格10%UP(景品限度額内)
詳細はハウスコム蒲田店()まで |
||
| 所属団体 |
(公財)日本賃貸住宅管理協会会員 (公社)首都圏不動産公正取引協議会加盟 |
||
| 取扱会社(17) | (株)クレアスレント五反田店 (情報提供媒体:SUUMO) | ||
|---|---|---|---|
| 住所 | 東京都品川区西五反田1-32-11オークラビル8階 | ||
| 電話番号 | 0120-317357 | 免許番号 | 国土交通大臣(1)第10473号 |
| 取引態様 | 仲介 | 物件管理番号 |
100462339774 ※お問い合わせの際には、担当者へ物件管理番号をお伝えください。 |
| 物件に関する情報 |
物件の所在地 : 東京都品川区北品川5 /
交通の利便 : JR山手線/大崎駅 歩8分、京急本線/北品川駅 歩9分、京急本線/新馬場駅 歩12分 /
面積 : 25.96m² /
築年月 : 2021年03月 /
賃料 : 12.07万円 /
管理費又は共益費等 : 9,300円 /
礼金等 : 1ヶ月 /
敷金 : 1ヶ月、保証金等 : -、 償却、敷引 : - /
住宅総合保険等の損害保険料 : 要 /
その他 : 仕様・図面・写真等に相違があった場合は現況を優先します。短期解約違約金有、解約事務手数料有
合計3.52万円(内訳:消火剤0.55万円 鍵交換代2.97万円)
少額短期保険 月額1000円 生活安心パック 月額1650円
単身者限定/子供不可/事務所利用不可/ルームシェア不可
普通借家 2年
保証会社利用必 詳細はお問い合わせください
/ 駐車場 : 無
☆ネット無料☆新着物件を日々更新!お気軽にご相談ください
【初期費用・web内見・入居日交渉等なんでもご相談ください】空室の確認は即時返答★現地お待合わせでもご案内可能/品川・目黒・大田・世田谷区・その他エリアのネットに出ていない新着・類似物件も多数ご用意★ |
||
| 所属団体 |
(公社)東京都宅地建物取引業協会会員 (公社)首都圏不動産公正取引協議会加盟 |
||
| 取扱会社(18) | (株)ユウキ・ホーム麻布十番サテライト店 (情報提供媒体:SUUMO) | ||
|---|---|---|---|
| 住所 | 東京都港区麻布十番2-19-10 桂麻布十番ビル1階 | ||
| 電話番号 | 03-6435-0195 | 免許番号 | 東京都知事(5)第76214号 |
| 取引態様 | 仲介 | 物件管理番号 |
100466091053 ※お問い合わせの際には、担当者へ物件管理番号をお伝えください。 |
| 物件に関する情報 |
物件の所在地 : 東京都品川区北品川5 /
交通の利便 : JR山手線/大崎駅 歩8分、京急本線/北品川駅 歩9分、JR京浜東北線/品川駅 歩20分 /
面積 : 25.96m² /
築年月 : 2021年03月 /
賃料 : 12.07万円 /
管理費又は共益費等 : 9,300円 /
礼金等 : 1ヶ月 /
敷金 : 1ヶ月、保証金等 : -、 償却、敷引 : - /
住宅総合保険等の損害保険料 : 要 /
その他 : 巡回管理/駐輪場・バイク置場:詳細要確認
合計2.97万円(内訳:鍵交換費用)
生活安心パック:1650円 消火剤:5500円
単身者限定
普通借家 2年
保証会社利用必 初回保証料:総賃料の50% 詳細はお問い合わせ下さい
/ 駐車場 : 無
★ネット使用料不要★分譲賃貸★浴室乾燥機★宅配ボックス★
★システムキッチン・2口ガスコンロ★バス・トイレ別★独立洗面化粧台★室内洗濯機置場★バルコニー★エアコン★TVインターホン★オートロック★ユウキ・ホーム★ |
||
| 所属団体 |
(公社)東京都宅地建物取引業協会会員 (公社)首都圏不動産公正取引協議会加盟 |
||
| 取扱会社(19) | (株)ネクサス・エステート (情報提供媒体:SUUMO) | ||
|---|---|---|---|
| 住所 | 東京都渋谷区広尾1-1-39 恵比寿プライムスクエアタワー20階ー303 | ||
| 電話番号 | 03-6805-0630 | 免許番号 | 東京都知事(1)第110038号 |
| 取引態様 | 仲介 | 物件管理番号 |
100466030511 ※お問い合わせの際には、担当者へ物件管理番号をお伝えください。 |
| 物件に関する情報 |
物件の所在地 : 東京都品川区北品川5 /
交通の利便 : JR山手線/大崎駅 歩8分、京急本線/北品川駅 歩9分、JR埼京線/大崎駅 歩8分 /
面積 : 25.96m² /
築年月 : 2021年03月 /
賃料 : 12.07万円 /
管理費又は共益費等 : 9,300円 /
礼金等 : 1ヶ月 /
敷金 : 1ヶ月、保証金等 : -、 償却、敷引 : - /
住宅総合保険等の損害保険料 : 要 /
その他 : 通勤管理/火災保険代、鍵交換代、その他諸費用あり
単身者限定
普通借家 2年
保証会社利用必 エポスカード ※〔初回保証委託料〕家賃+管理費×50%〔月々〕家賃+管理費×1.4%
/ 駐車場 : 無
築浅のホテルライク仕様物件です♪設備充実♪
インターネット使用料無料の築浅物件♪♪お問い合わせお待ちしております♪ |
||
| 所属団体 |
(公社)東京都宅地建物取引業協会会員 (公社)首都圏不動産公正取引協議会加盟 |
||
| 取扱会社(20) | SEG(株)PeerHome広尾駅前店アネックス (情報提供媒体:SUUMO) | ||
|---|---|---|---|
| 住所 | 東京都港区南麻布5-15-11 広尾セオハウス2階 | ||
| 電話番号 | 03-6721-6630 | 免許番号 | 東京都知事(2)第103362号 |
| 取引態様 | 仲介 | 物件管理番号 |
100462679045 ※お問い合わせの際には、担当者へ物件管理番号をお伝えください。 |
| 物件に関する情報 |
物件の所在地 : 東京都品川区北品川5 /
交通の利便 : 京急本線/北品川駅 歩9分、JR山手線/大崎駅 歩8分、京急本線/新馬場駅 歩12分 /
面積 : 25.96m² /
築年月 : 2021年03月 /
賃料 : 12.07万円 /
管理費又は共益費等 : 9,300円 /
礼金等 : 1ヶ月 /
敷金 : 1ヶ月、保証金等 : -、 償却、敷引 : - /
住宅総合保険等の損害保険料 : 2万円2年 /
その他 : 巡回管理/※1年未満解約時、賃料+管理費1ヶ月分の違約金有り ※同タイプ・別階の内観写真を掲載している場合があります。図面と現況が異なる場合は現況を優先いたします。
合計3.52万円(内訳:鍵交換費:29700円 消火剤:5500円)
退去時解約事務手数料:13200円 生活安心パック:1650円/月 少額短期保険料:1000円/月
単身者限定
保証会社利用必 【エポス】初回保証料:賃料等の50%、月次保証料1%1.5%
/ 駐車場 : 近隣駐車場
近隣50m50000円
大崎駅徒歩8分!ネット無料☆独立洗面台◎
オンライン内見も可能です!初期費用のクレカ決済にも対応!!お部屋探しはピアホームにおまかせください!! |
||
| 所属団体 |
(公社)東京都宅地建物取引業協会会員 (公社)首都圏不動産公正取引協議会加盟 |
||
| 取扱会社(21) | (株)ユウキ・ホーム麻布十番網代公園店 (情報提供媒体:SUUMO) | ||
|---|---|---|---|
| 住所 | 東京都港区麻布十番2-19-10 桂麻布十番ビル1階 | ||
| 電話番号 | 03-6271-4669 | 免許番号 | 東京都知事(5)第76214号 |
| 取引態様 | 仲介 | 物件管理番号 |
100466091056 ※お問い合わせの際には、担当者へ物件管理番号をお伝えください。 |
| 物件に関する情報 |
物件の所在地 : 東京都品川区北品川5 /
交通の利便 : JR山手線/大崎駅 歩8分、京急本線/北品川駅 歩9分、JR京浜東北線/品川駅 歩20分 /
面積 : 25.96m² /
築年月 : 2021年03月 /
賃料 : 12.07万円 /
管理費又は共益費等 : 9,300円 /
礼金等 : 1ヶ月 /
敷金 : 1ヶ月、保証金等 : -、 償却、敷引 : - /
住宅総合保険等の損害保険料 : 要 /
その他 : 巡回管理/駐輪場・バイク置場:詳細要確認
合計2.97万円(内訳:鍵交換費用)
生活安心パック:1650円 消火剤:5500円
単身者限定
普通借家 2年
保証会社利用必 初回保証料:総賃料の50% 詳細はお問い合わせ下さい
/ 駐車場 : 無
★ネット使用料不要★分譲賃貸★浴室乾燥機★宅配ボックス★
★システムキッチン・2口ガスコンロ★バス・トイレ別★独立洗面化粧台★室内洗濯機置場★バルコニー★エアコン★TVインターホン★オートロック★ユウキ・ホーム★ |
||
| 所属団体 |
(公社)東京都宅地建物取引業協会会員 (公社)首都圏不動産公正取引協議会加盟 |
||
| 取扱会社(22) | 神宮前不動産(株)公園前店 (情報提供媒体:SUUMO) | ||
|---|---|---|---|
| 住所 | 東京都渋谷区神宮前6-23-11 J-SIXビル6階 | ||
| 電話番号 | 03-6427-4205 | 免許番号 | 東京都知事(1)第105473号 |
| 取引態様 | 仲介 | 物件管理番号 |
100462504893 ※お問い合わせの際には、担当者へ物件管理番号をお伝えください。 |
| 物件に関する情報 |
物件の所在地 : 東京都品川区北品川5 /
交通の利便 : JR山手線/大崎駅 歩8分、京急本線/北品川駅 歩9分、京急本線/新馬場駅 歩12分 /
面積 : 25.96m² /
築年月 : 2021年03月 /
賃料 : 12.07万円 /
管理費又は共益費等 : 9,300円 /
礼金等 : 1ヶ月 /
敷金 : 1ヶ月、保証金等 : -、 償却、敷引 : - /
住宅総合保険等の損害保険料 : 要 /
その他 : 巡回管理/【業界新システム】 正直不動産公式副読本掲載の話題沸騰店舗☆
合計3.52万円(内訳:消火剤0.55万円 鍵交換代2.97万円)
更新料 新賃料1.50ヶ月分 少額短期保険 月額1000円 生活安心パック 月額1650円
単身者限定/事務所利用不可/ルームシェア不可
普通借家 2年
保証会社利用必 エポスカード ※〔初回保証委託料〕家賃+管理費×50%〔月々〕家賃+管理費×1.4%
/ 駐車場 : 無
各種メディアで話題沸騰店舗!
【業界新システム】 正直不動産公式副読本掲載の話題沸騰店舗☆ |
||
| 所属団体 |
(公社)全日本不動産協会東京都本部会員 (公社)首都圏不動産公正取引協議会加盟 |
||
| 取扱会社(23) | リブマックス五反田店(株)リブ・マックス (情報提供媒体:SUUMO) | ||
|---|---|---|---|
| 住所 | 東京都品川区東五反田1-11-12 五反田大力ビル4階 | ||
| 電話番号 | 03-5447-8800 | 免許番号 | 国土交通大臣(5)第7032号 |
| 取引態様 | 仲介 | 物件管理番号 |
100467041916 ※お問い合わせの際には、担当者へ物件管理番号をお伝えください。 |
| 物件に関する情報 |
物件の所在地 : 東京都品川区北品川5 /
交通の利便 : JR山手線/大崎駅 歩8分、京急本線/北品川駅 歩11分、東急池上線/大崎広小路駅 歩18分 /
面積 : 25.96m² /
築年月 : 2021年03月 /
賃料 : 12.07万円 /
管理費又は共益費等 : 9,300円 /
礼金等 : 1ヶ月 /
敷金 : 1ヶ月、保証金等 : -、 償却、敷引 : - /
住宅総合保険等の損害保険料 : 要 /
その他 : 巡回管理/初期費用クレジット支払可能!オンライン内覧・オンライン契約等弊社に一度も来店せずとも問題ありません♪弊社ではネットに掲載されている物件は全てご紹介可能になりますので気になる物件は全て申し付けください★
合計3.52万円(内訳:消火剤0.55万円 鍵交換代2.97万円)
更新料 新賃料1.50ヶ月分 少額短期保険 月額1000円 生活安心パック 月額1650円
普通借家 2年
保証会社利用必 エポスカード 〔初回保障委託料〕家賃+管理費×50%〔月々〕家賃+管理費×1.4%
/ 駐車場 : 近隣駐車場
近隣100m35000円
★エリア最大級★経験豊富なスタッフが多数在籍しております♪
通勤通学・プライベートの拠点に大変便利な大崎駅徒歩8分の好立地☆ネット無料☆お問合せ物件のほかネット非掲載や空き予定など豊富な物件からご紹介いたします。お気軽にお問い合わせください☆ |
||
| 所属団体 |
(公社)全日本不動産協会東京都本部会員 (公社)首都圏不動産公正取引協議会加盟 |
||
| 取扱会社(24) | リブマックス目黒店(株)リブ・マックス (情報提供媒体:SUUMO) | ||
|---|---|---|---|
| 住所 | 東京都品川区上大崎2-15-15 伊多喜ビル5階 | ||
| 電話番号 | 03-6409-0707 | 免許番号 | 国土交通大臣(5)第7032号 |
| 取引態様 | 仲介 | 物件管理番号 |
100467040371 ※お問い合わせの際には、担当者へ物件管理番号をお伝えください。 |
| 物件に関する情報 |
物件の所在地 : 東京都品川区北品川5 /
交通の利便 : JR山手線/大崎駅 歩8分、京急本線/北品川駅 歩11分、東急池上線/大崎広小路駅 歩18分 /
面積 : 25.96m² /
築年月 : 2021年03月 /
賃料 : 12.07万円 /
管理費又は共益費等 : 9,300円 /
礼金等 : 1ヶ月 /
敷金 : 1ヶ月、保証金等 : -、 償却、敷引 : - /
住宅総合保険等の損害保険料 : 要 /
その他 : 巡回管理/初期費用クレジット支払可能!オンライン内覧・オンライン契約等弊社に一度も来店せずとも問題ありません♪弊社ではネットに掲載されている物件は全てご紹介可能になりますので気になる物件は全て申し付けください★
合計3.52万円(内訳:消火剤0.55万円 鍵交換代2.97万円)
更新料 新賃料1.50ヶ月分 少額短期保険 月額1000円 生活安心パック 月額1650円
普通借家 2年
保証会社利用必 エポスカード 〔初回保障委託料〕家賃+管理費×50%〔月々〕家賃+管理費×1.4%
/ 駐車場 : 近隣駐車場
近隣100m35000円
★エリア最大級★経験豊富なスタッフが多数在籍しております♪
通勤通学・プライベートの拠点に大変便利な大崎駅徒歩8分の好立地☆ネット無料☆お問合せ物件のほかネット非掲載や空き予定など豊富な物件からご紹介いたします。お気軽にお問い合わせください☆ |
||
| 所属団体 |
(公社)全日本不動産協会東京都本部会員 (公社)首都圏不動産公正取引協議会加盟 |
||

