ラフィーネハイツ[3階]
情報公開日:2026/02/28(残り15日)
次回更新日は2026/03/20
物件画像
画像提供元:(株)部屋市場浅草雷門店
この物件のタグ
ラフィーネハイツ[3階]の物件情報
| 賃料/管理費等 |
18.0万円(管理費等 1.5万円)
|
||
|---|---|---|---|
| 敷金 | 36.0万円 | 礼金 | 18.0万円 |
| 種別/構造 | マンション/SRC | 築年月 | 1999年01月 |
| 所在地 |
東京都江東区亀戸9
|
||
| 主要交通機関 |
都営新宿線/東大島駅 歩11分 東武亀戸線/亀戸水神駅 歩16分 JR総武線/平井駅 歩19分 |
||
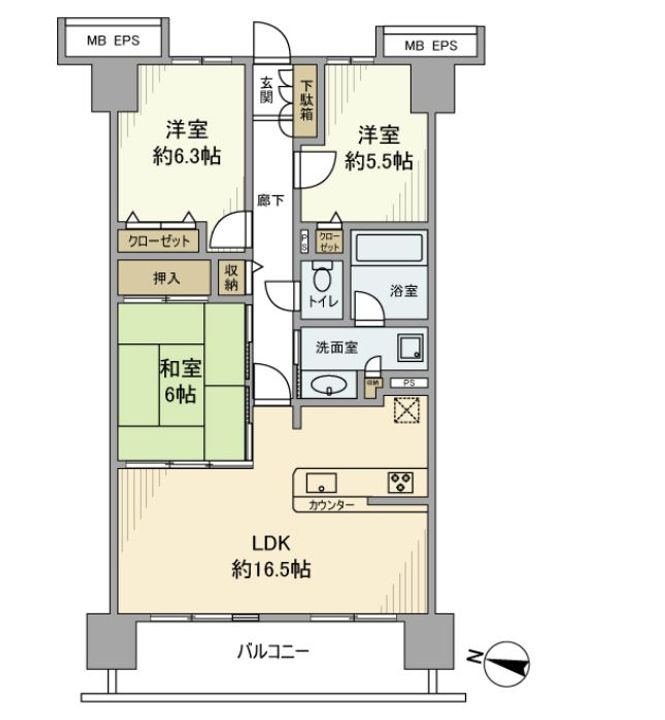
| 間取り | 3LDK | 面積 | 78.39m² |
| 間取り詳細 | 和6 洋6.3 洋5.5 LDK16.5 | 方位 | 西 |
| 階数/部屋番号 | 3階/地上14階建 | 駐車場 | 無 |
| 特徴 |
|
||
| 設備/条件 | バストイレ別、バルコニー、エアコン、ガスコンロ対応、クロゼット、フローリング、シャワー付洗面台、TVインターホン、浴室乾燥機、オートロック、室内洗濯置、シューズボックス、システムキッチン、追焚機能浴室、温水洗浄便座、脱衣所、エレベーター、洗面所独立、洗面化粧台、駐輪場、宅配ボックス、押入、CATV、3口以上コンロ、対面式キッチン、防犯カメラ、照明付、分譲賃貸、オートバス、グリル付、保証人不要、二人入居相談、バイク置場、LDK15畳以上、ネット専用回線、駅まで平坦、食器洗乾燥機、保証金不要、24時間換気システム、楽器相談、クロゼット2ヶ所、平坦地、耐火構造、耐震構造、リビングの隣和室、和室、都市ガス、間接照明、礼金1ヶ月、保証会社利用可、IT重説 対応物件、初期費用カード決済可 | ||
| 備考 |
退去時室内クリーニング費は借主様負担となります。 短期解約違約金:6ヶ月未満の解約の場合、賃料等の0.5ヶ月分 共用部分の付随設備の詳細(空き状況・料金等)は要確認 ご入居される方のご内容によって保証会社等の契約条件に変動あり 合計1.98万円(内訳:除菌施工料1.98万円) リロサポ 月額1500円 二人入居可/子供可/楽器相談 定期借家 2年 保証会社利用必 初回保証料:月額総賃料の100% 月額保証料:月額総賃料の2% ※物件に関する備考は各社異なりますのでご確認のうえお問い合わせください。 |
||
| 契約期間 | お問い合わせください。 | ||
|---|---|---|---|
| 入居可能時期 |
''26年4月上旬
|
||
| 初期費用 |
お問い合わせください。
|
||
| 住宅保険 | 2.55万円2年 | 現状空室状況 | お問い合わせください。 |
情報提供元:(株)部屋市場浅草雷門店
画像提供元:(株)部屋市場浅草雷門店
※各種情報と現状に差異がある場合は、現状優先となります。取り扱い不動産会社が複数ある場合は、住宅保険等、一部条件が異なる場合もございますので、取扱店舗までご確認下さいませ。
この物件にお問い合わせ
周辺施設
| コンビニ |
セブン‐イレブン 江東亀戸9丁目店 ファミリーマート 江東亀戸九丁目店 |
|||
|---|---|---|---|---|
| スーパー |
株式会社ライフコーポレーション 亀戸店 オーケー 亀戸店 |
|||
| ドラッグストア |
大洋薬局 日本調剤江東薬局 |
|||
| 保育園 |
亀戸こころ保育園 |
|||
|---|---|---|---|---|
| 幼稚園 |
ケリア・インターナショナルスクール |
|||
| 小学校 |
江東区立 浅間竪川小学校 |
|||
| 中学校 |
江東区立 亀戸中学校 |
|||
※周辺情報は不動産会社から提供された情報ではなく、弊サービスで独自に収集した情報です。
担当者のオススメポイント!
【設備充実】浅間竪川小学校、亀戸中学校の学区♪【楽器相談可】
浅間竪川小学校、亀戸中学校が学区域♪ファミリー向け3LDKマンションのご紹介です。追焚機能や浴室乾燥機、食洗機など嬉しい設備が取り揃えられております♪安心安全のオートロック完備♪ぜひご相談ください♪
ラフィーネハイツ[3階]の取扱会社情報 12件
| 取扱会社(1) | (株)部屋市場浅草雷門店 (情報提供媒体:SUUMO) | ||
|---|---|---|---|
| 住所 | 東京都台東区雷門2-4-1 RAID浅草雷門3階 | ||
| 電話番号 | 03-5246-3440 | 免許番号 | 東京都知事(4)第88642号 |
| 取引態様 | 仲介 | 物件管理番号 |
100485039513 ※お問い合わせの際には、担当者へ物件管理番号をお伝えください。 |
| 物件に関する情報 |
物件の所在地 : 東京都江東区亀戸9 /
交通の利便 : 都営新宿線/東大島駅 歩11分、東武亀戸線/亀戸水神駅 歩16分、JR総武線/平井駅 歩19分 /
面積 : 78.39m² /
築年月 : 1999年01月 /
賃料 : 18.0万円 /
管理費又は共益費等 : 1.5万円 /
礼金等 : 1ヶ月 /
敷金 : 2ヶ月、保証金等 : -、 償却、敷引 : - /
住宅総合保険等の損害保険料 : 2.55万円2年 /
その他 : 退去時室内クリーニング費は借主様負担となります。 短期解約違約金:6ヶ月未満の解約の場合、賃料等の0.5ヶ月分 共用部分の付随設備の詳細(空き状況・料金等)は要確認 ご入居される方のご内容によって保証会社等の契約条件に変動あり
合計1.98万円(内訳:除菌施工料1.98万円)
リロサポ 月額1500円
二人入居可/子供可/楽器相談
定期借家 2年
保証会社利用必 初回保証料:月額総賃料の100% 月額保証料:月額総賃料の2%
/ 駐車場 : 無
【設備充実】浅間竪川小学校、亀戸中学校の学区♪【楽器相談可】
浅間竪川小学校、亀戸中学校が学区域♪ファミリー向け3LDKマンションのご紹介です。追焚機能や浴室乾燥機、食洗機など嬉しい設備が取り揃えられております♪安心安全のオートロック完備♪ぜひご相談ください♪ |
||
| 所属団体 |
(公社)全日本不動産協会東京都本部会員 (公社)首都圏不動産公正取引協議会加盟 |
||
| 取扱会社(2) | (株)リライフ渋谷店 (情報提供媒体:SUUMO) | ||
|---|---|---|---|
| 住所 | 東京都渋谷区渋谷1-24-14 渋谷トライアングルビル6階 | ||
| 電話番号 | 03-6372-4991 | 免許番号 | 国土交通大臣(1)第10792号 |
| 取引態様 | 仲介 | 物件管理番号 |
100492167166 ※お問い合わせの際には、担当者へ物件管理番号をお伝えください。 |
| 物件に関する情報 |
物件の所在地 : 東京都江東区亀戸9 /
交通の利便 : 都営新宿線/東大島駅 歩11分、JR総武線/平井駅 歩19分、東武亀戸線/亀戸水神駅 歩15分 /
面積 : 78.39m² /
築年月 : 1999年01月 /
賃料 : 18.0万円 /
管理費又は共益費等 : 1.5万円 /
礼金等 : 1ヶ月 /
敷金 : 2ヶ月、保証金等 : -、 償却、敷引 : - /
住宅総合保険等の損害保険料 : 要 /
その他 : 当物件はオンラインまたはお近くの店舗でご相談お申込を承ります。リライフは首都圏23店舗のネットワークで豊富な物件情報をご提供いたします。当物件に類似した未公開物件のご提案も可能です。お気軽にお問い合わせください。違約金有:短期解約違約金有
合計1.98万円(内訳:除菌施工料(初回のみ)1.98万円)
リロサポ(月額)0.25万円
二人入居可
定期借家 2年
保証会社利用必 リロ家賃サービス保証会社 要:初回 賃料総額100%+月額 賃料総額2%(最低1000円)
/ 駐車場 : 無
リライフは全ての物件が仲介料半額です。
室内見学承ります・お客様のご都合に合わせてオンラインまたはお近くの店舗でご提案可・初期費用分割払い可・クレジットカード利用可・引越業者割引・初期費用のお見積や入居日のご相談もお気軽にお問合せください |
||
| 所属団体 |
(公社)東京都宅地建物取引業協会会員 (公社)首都圏不動産公正取引協議会加盟 |
||
| 取扱会社(3) | (株)リライフ蒲田店 (情報提供媒体:SUUMO) | ||
|---|---|---|---|
| 住所 | 東京都大田区蒲田5-18-1 ザ・シティ蒲田6階 | ||
| 電話番号 | 03-4216-2419 | 免許番号 | 国土交通大臣(1)第10792号 |
| 取引態様 | 仲介 | 物件管理番号 |
100492167481 ※お問い合わせの際には、担当者へ物件管理番号をお伝えください。 |
| 物件に関する情報 |
物件の所在地 : 東京都江東区亀戸9 /
交通の利便 : 都営新宿線/東大島駅 歩11分、JR総武線/平井駅 歩19分、東武亀戸線/亀戸水神駅 歩15分 /
面積 : 78.39m² /
築年月 : 1999年01月 /
賃料 : 18.0万円 /
管理費又は共益費等 : 1.5万円 /
礼金等 : 1ヶ月 /
敷金 : 2ヶ月、保証金等 : -、 償却、敷引 : - /
住宅総合保険等の損害保険料 : 要 /
その他 : 当物件はオンラインまたはお近くの店舗でご相談お申込を承ります。リライフは首都圏23店舗のネットワークで豊富な物件情報をご提供いたします。当物件に類似した未公開物件のご提案も可能です。お気軽にお問い合わせください。違約金有:短期解約違約金有
合計1.98万円(内訳:除菌施工料(初回のみ)1.98万円)
リロサポ(月額)0.25万円
二人入居可
定期借家 2年
保証会社利用必 リロ家賃サービス保証会社 要:初回 賃料総額100%+月額 賃料総額2%(最低1000円)
/ 駐車場 : 無
リライフは全ての物件が仲介料半額です。
室内見学承ります・お客様のご都合に合わせてオンラインまたはお近くの店舗でご提案可・初期費用分割払い可・クレジットカード利用可・引越業者割引・初期費用のお見積や入居日のご相談もお気軽にお問合せください |
||
| 所属団体 |
(公社)東京都宅地建物取引業協会会員 (公社)首都圏不動産公正取引協議会加盟 |
||
| 取扱会社(4) | (株)部屋市場 (情報提供媒体:SUUMO) | ||
|---|---|---|---|
| 住所 | 東京都台東区上野6-5-1 羽山ビル2階 | ||
| 電話番号 | 03-5818-8387 | 免許番号 | 東京都知事(4)第88642号 |
| 取引態様 | 仲介 | 物件管理番号 |
100485001336 ※お問い合わせの際には、担当者へ物件管理番号をお伝えください。 |
| 物件に関する情報 |
物件の所在地 : 東京都江東区亀戸9 /
交通の利便 : 都営新宿線/東大島駅 歩11分、東武亀戸線/亀戸水神駅 歩16分、JR総武線/平井駅 歩19分 /
面積 : 78.39m² /
築年月 : 1999年01月 /
賃料 : 18.0万円 /
管理費又は共益費等 : 1.5万円 /
礼金等 : 1ヶ月 /
敷金 : 2ヶ月、保証金等 : -、 償却、敷引 : - /
住宅総合保険等の損害保険料 : 2.55万円2年 /
その他 : 退去時室内クリーニング費は借主様負担となります。 短期解約違約金:6ヶ月未満の解約の場合、賃料等の0.5ヶ月分 共用部分の付随設備の詳細(空き状況・料金等)は要確認 ご入居される方のご内容によって保証会社等の契約条件に変動あり
合計1.98万円(内訳:除菌施工料1.98万円)
リロサポ 月額1500円
二人入居可/子供可/楽器相談
定期借家 2年
保証会社利用必 初回保証料:月額総賃料の100% 月額保証料:月額総賃料の2%
/ 駐車場 : 無
【設備充実】浅間竪川小学校、亀戸中学校の学区♪【楽器相談可】
浅間竪川小学校、亀戸中学校が学区域♪ファミリー向け3LDKマンションのご紹介です。追焚機能や浴室乾燥機、食洗機など嬉しい設備が取り揃えられております♪安心安全のオートロック完備♪ぜひご相談ください♪ |
||
| 所属団体 |
(公社)全日本不動産協会東京都本部会員 (公社)首都圏不動産公正取引協議会加盟 |
||
| 取扱会社(5) | (株)リライフ練馬店 (情報提供媒体:SUUMO) | ||
|---|---|---|---|
| 住所 | 東京都練馬区豊玉北5-17-8 石山ビル3階 | ||
| 電話番号 | 03-4214-5152 | 免許番号 | 国土交通大臣(1)第10792号 |
| 取引態様 | 仲介 | 物件管理番号 |
100492167512 ※お問い合わせの際には、担当者へ物件管理番号をお伝えください。 |
| 物件に関する情報 |
物件の所在地 : 東京都江東区亀戸9 /
交通の利便 : 都営新宿線/東大島駅 歩11分、JR総武線/平井駅 歩19分、東武亀戸線/亀戸水神駅 歩15分 /
面積 : 78.39m² /
築年月 : 1999年01月 /
賃料 : 18.0万円 /
管理費又は共益費等 : 1.5万円 /
礼金等 : 1ヶ月 /
敷金 : 2ヶ月、保証金等 : -、 償却、敷引 : - /
住宅総合保険等の損害保険料 : 要 /
その他 : 当物件はオンラインまたはお近くの店舗でご相談お申込を承ります。リライフは首都圏23店舗のネットワークで豊富な物件情報をご提供いたします。当物件に類似した未公開物件のご提案も可能です。お気軽にお問い合わせください。違約金有:短期解約違約金有
合計1.98万円(内訳:除菌施工料(初回のみ)1.98万円)
リロサポ(月額)0.25万円
二人入居可
定期借家 2年
保証会社利用必 リロ家賃サービス保証会社 要:初回 賃料総額100%+月額 賃料総額2%(最低1000円)
/ 駐車場 : 無
リライフは全ての物件が仲介料半額です。
室内見学承ります・お客様のご都合に合わせてオンラインまたはお近くの店舗でご提案可・初期費用分割払い可・クレジットカード利用可・引越業者割引・初期費用のお見積や入居日のご相談もお気軽にお問合せください |
||
| 所属団体 |
(公社)東京都宅地建物取引業協会会員 (公社)首都圏不動産公正取引協議会加盟 |
||
| 取扱会社(6) | トラスト・レジデンス浅草橋店(株)瑞鳳 (情報提供媒体:SUUMO) | ||
|---|---|---|---|
| 住所 | 東京都台東区浅草橋1-30-12 玉木ビル4階 | ||
| 電話番号 | 03-5829-9255 | 免許番号 | 東京都知事(4)第92026号 |
| 取引態様 | 仲介 | 物件管理番号 |
100484471420 ※お問い合わせの際には、担当者へ物件管理番号をお伝えください。 |
| 物件に関する情報 |
物件の所在地 : 東京都江東区亀戸9 /
交通の利便 : 都営新宿線/東大島駅 歩11分、東武亀戸線/亀戸水神駅 歩16分、JR総武線/平井駅 歩18分 /
面積 : 78.39m² /
築年月 : 1999年01月 /
賃料 : 18.0万円 /
管理費又は共益費等 : 1.5万円 /
礼金等 : 1ヶ月 /
敷金 : 2ヶ月、保証金等 : -、 償却、敷引 : - /
住宅総合保険等の損害保険料 : 要 /
その他 : 具体的なお部屋の詳細やご案内についてはお、メール、直接店頭にてお気軽にご相談下さいませ。この物件について、初期費用分割希望の方、審査不安な方、保証人不要希望の方、その他お気軽にご相談下さい。おでのご連絡がスムーズです。トラスト・レジデンス 浅草橋店までぜひご連絡ください!
合計21.48万円(内訳:除菌施工料1.98万円 保証会社:初回保証料19.5万円)
入居者サポート 月額1500円
二人入居可/子供可/楽器相談
定期借家 2年
保証会社利用必 初回保証料:賃料総額の100% 月額保証料:賃料総額の2%
/ 駐車場 : 無
親切丁寧をどこの会社さんよりも意識しております!
おかげさまで15年以上営業しているので地元ならではの情報には自信があります! オーナー様から直接いただいている物件やお得な物件情報など全てご案内いたします!! |
||
| 取扱会社(7) | (株)リライフ池袋店 (情報提供媒体:SUUMO) | ||
|---|---|---|---|
| 住所 | 東京都豊島区南池袋1-21-7 イー・パートナーズ池袋駅前ビル502 | ||
| 電話番号 | 03-6370-0632 | 免許番号 | 国土交通大臣(1)第10792号 |
| 取引態様 | 仲介 | 物件管理番号 |
100492167692 ※お問い合わせの際には、担当者へ物件管理番号をお伝えください。 |
| 物件に関する情報 |
物件の所在地 : 東京都江東区亀戸9 /
交通の利便 : 都営新宿線/東大島駅 歩11分、JR総武線/平井駅 歩19分、東武亀戸線/亀戸水神駅 歩15分 /
面積 : 78.39m² /
築年月 : 1999年01月 /
賃料 : 18.0万円 /
管理費又は共益費等 : 1.5万円 /
礼金等 : 1ヶ月 /
敷金 : 2ヶ月、保証金等 : -、 償却、敷引 : - /
住宅総合保険等の損害保険料 : 要 /
その他 : 当物件はオンラインまたはお近くの店舗でご相談お申込を承ります。リライフは首都圏23店舗のネットワークで豊富な物件情報をご提供いたします。当物件に類似した未公開物件のご提案も可能です。お気軽にお問い合わせください。違約金有:短期解約違約金有
合計1.98万円(内訳:除菌施工料(初回のみ)1.98万円)
リロサポ(月額)0.25万円
二人入居可
定期借家 2年
保証会社利用必 リロ家賃サービス保証会社 要:初回 賃料総額100%+月額 賃料総額2%(最低1000円)
/ 駐車場 : 無
リライフは全ての物件が仲介料半額です。
室内見学承ります・お客様のご都合に合わせてオンラインまたはお近くの店舗でご提案可・初期費用分割払い可・クレジットカード利用可・引越業者割引・初期費用のお見積や入居日のご相談もお気軽にお問合せください |
||
| 所属団体 |
(公社)東京都宅地建物取引業協会会員 (公社)首都圏不動産公正取引協議会加盟 |
||
| 取扱会社(8) | (株)リライフ葛西店 (情報提供媒体:SUUMO) | ||
|---|---|---|---|
| 住所 | 東京都江戸川区東葛西6-4-19 HARUKAS 3階 | ||
| 電話番号 | 03-4329-2486 | 免許番号 | 国土交通大臣(1)第10792号 |
| 取引態様 | 仲介 | 物件管理番号 |
100492166467 ※お問い合わせの際には、担当者へ物件管理番号をお伝えください。 |
| 物件に関する情報 |
物件の所在地 : 東京都江東区亀戸9 /
交通の利便 : 都営新宿線/東大島駅 歩11分、JR総武線/平井駅 歩19分、東武亀戸線/亀戸水神駅 歩15分 /
面積 : 78.39m² /
築年月 : 1999年01月 /
賃料 : 18.0万円 /
管理費又は共益費等 : 1.5万円 /
礼金等 : 1ヶ月 /
敷金 : 2ヶ月、保証金等 : -、 償却、敷引 : - /
住宅総合保険等の損害保険料 : 要 /
その他 : 当物件はオンラインまたはお近くの店舗でご相談お申込を承ります。リライフは首都圏23店舗のネットワークで豊富な物件情報をご提供いたします。当物件に類似した未公開物件のご提案も可能です。お気軽にお問い合わせください。違約金有:短期解約違約金有
合計1.98万円(内訳:除菌施工料(初回のみ)1.98万円)
リロサポ(月額)0.25万円
二人入居可
定期借家 2年
保証会社利用必 リロ家賃サービス保証会社 要:初回 賃料総額100%+月額 賃料総額2%(最低1000円)
/ 駐車場 : 無
リライフは全ての物件が仲介料半額です。
室内見学承ります・お客様のご都合に合わせてオンラインまたはお近くの店舗でご提案可・初期費用分割払い可・クレジットカード利用可・引越業者割引・初期費用のお見積や入居日のご相談もお気軽にお問合せください |
||
| 所属団体 |
(公社)東京都宅地建物取引業協会会員 (公社)首都圏不動産公正取引協議会加盟 |
||
| 取扱会社(9) | (株)リライフ下北沢店 (情報提供媒体:SUUMO) | ||
|---|---|---|---|
| 住所 | 東京都世田谷区北沢2-25-18 サンティエ アイリス 2階 | ||
| 電話番号 | 03-6372-7812 | 免許番号 | 国土交通大臣(1)第10792号 |
| 取引態様 | 仲介 | 物件管理番号 |
100492167496 ※お問い合わせの際には、担当者へ物件管理番号をお伝えください。 |
| 物件に関する情報 |
物件の所在地 : 東京都江東区亀戸9 /
交通の利便 : 都営新宿線/東大島駅 歩11分、JR総武線/平井駅 歩19分、東武亀戸線/亀戸水神駅 歩15分 /
面積 : 78.39m² /
築年月 : 1999年01月 /
賃料 : 18.0万円 /
管理費又は共益費等 : 1.5万円 /
礼金等 : 1ヶ月 /
敷金 : 2ヶ月、保証金等 : -、 償却、敷引 : - /
住宅総合保険等の損害保険料 : 要 /
その他 : 当物件はオンラインまたはお近くの店舗でご相談お申込を承ります。リライフは首都圏23店舗のネットワークで豊富な物件情報をご提供いたします。当物件に類似した未公開物件のご提案も可能です。お気軽にお問い合わせください。違約金有:短期解約違約金有
合計1.98万円(内訳:除菌施工料(初回のみ)1.98万円)
リロサポ(月額)0.25万円
二人入居可
定期借家 2年
保証会社利用必 リロ家賃サービス保証会社 要:初回 賃料総額100%+月額 賃料総額2%(最低1000円)
/ 駐車場 : 無
リライフは全ての物件が仲介料半額です。
室内見学承ります・お客様のご都合に合わせてオンラインまたはお近くの店舗でご提案可・初期費用分割払い可・クレジットカード利用可・引越業者割引・初期費用のお見積や入居日のご相談もお気軽にお問合せください |
||
| 所属団体 |
(公社)東京都宅地建物取引業協会会員 (公社)首都圏不動産公正取引協議会加盟 |
||
| 取扱会社(10) | (株)リライフ門前仲町店 (情報提供媒体:SUUMO) | ||
|---|---|---|---|
| 住所 | 東京都江東区富岡1-7-4 キーポイントビル1階 | ||
| 電話番号 | 03-6478-1446 | 免許番号 | 国土交通大臣(1)第10792号 |
| 取引態様 | 仲介 | 物件管理番号 |
100492166398 ※お問い合わせの際には、担当者へ物件管理番号をお伝えください。 |
| 物件に関する情報 |
物件の所在地 : 東京都江東区亀戸9 /
交通の利便 : 都営新宿線/東大島駅 歩11分、JR総武線/平井駅 歩19分、東武亀戸線/亀戸水神駅 歩15分 /
面積 : 78.39m² /
築年月 : 1999年01月 /
賃料 : 18.0万円 /
管理費又は共益費等 : 1.5万円 /
礼金等 : 1ヶ月 /
敷金 : 2ヶ月、保証金等 : -、 償却、敷引 : - /
住宅総合保険等の損害保険料 : 要 /
その他 : 当物件はオンラインまたはお近くの店舗でご相談お申込を承ります。リライフは首都圏23店舗のネットワークで豊富な物件情報をご提供いたします。当物件に類似した未公開物件のご提案も可能です。お気軽にお問い合わせください。違約金有:短期解約違約金有
合計1.98万円(内訳:除菌施工料(初回のみ)1.98万円)
リロサポ(月額)0.25万円
二人入居可
定期借家 2年
保証会社利用必 リロ家賃サービス保証会社 要:初回 賃料総額100%+月額 賃料総額2%(最低1000円)
/ 駐車場 : 無
リライフは全ての物件が仲介料半額です。
室内見学承ります・お客様のご都合に合わせてオンラインまたはお近くの店舗でご提案可・初期費用分割払い可・クレジットカード利用可・引越業者割引・初期費用のお見積や入居日のご相談もお気軽にお問合せください |
||
| 所属団体 |
(公社)東京都宅地建物取引業協会会員 (公社)首都圏不動産公正取引協議会加盟 |
||
| 取扱会社(11) | (株)リライフ三軒茶屋店 (情報提供媒体:SUUMO) | ||
|---|---|---|---|
| 住所 | 東京都世田谷区太子堂4-3-3 クレアーレ三軒茶屋6階 | ||
| 電話番号 | 03-6372-7811 | 免許番号 | 国土交通大臣(1)第10792号 |
| 取引態様 | 仲介 | 物件管理番号 |
100492167832 ※お問い合わせの際には、担当者へ物件管理番号をお伝えください。 |
| 物件に関する情報 |
物件の所在地 : 東京都江東区亀戸9 /
交通の利便 : 都営新宿線/東大島駅 歩11分、JR総武線/平井駅 歩19分、東武亀戸線/亀戸水神駅 歩15分 /
面積 : 78.39m² /
築年月 : 1999年01月 /
賃料 : 18.0万円 /
管理費又は共益費等 : 1.5万円 /
礼金等 : 1ヶ月 /
敷金 : 2ヶ月、保証金等 : -、 償却、敷引 : - /
住宅総合保険等の損害保険料 : 要 /
その他 : 当物件はオンラインまたはお近くの店舗でご相談お申込を承ります。リライフは首都圏23店舗のネットワークで豊富な物件情報をご提供いたします。当物件に類似した未公開物件のご提案も可能です。お気軽にお問い合わせください。違約金有:短期解約違約金有
合計1.98万円(内訳:除菌施工料(初回のみ)1.98万円)
リロサポ(月額)0.25万円
二人入居可
定期借家 2年
保証会社利用必 リロ家賃サービス保証会社 要:初回 賃料総額100%+月額 賃料総額2%(最低1000円)
/ 駐車場 : 無
リライフは全ての物件が仲介料半額です。
室内見学承ります・お客様のご都合に合わせてオンラインまたはお近くの店舗でご提案可・初期費用分割払い可・クレジットカード利用可・引越業者割引・初期費用のお見積や入居日のご相談もお気軽にお問合せください |
||
| 所属団体 |
(公社)東京都宅地建物取引業協会会員 (公社)首都圏不動産公正取引協議会加盟 |
||
| 取扱会社(12) | (株)リライフ中野坂上店 (情報提供媒体:SUUMO) | ||
|---|---|---|---|
| 住所 | 東京都中野区本町2-49-12 誠文堂ビル1階 | ||
| 電話番号 | 03-6372-1936 | 免許番号 | 国土交通大臣(1)第10792号 |
| 取引態様 | 仲介 | 物件管理番号 |
100492167913 ※お問い合わせの際には、担当者へ物件管理番号をお伝えください。 |
| 物件に関する情報 |
物件の所在地 : 東京都江東区亀戸9 /
交通の利便 : 都営新宿線/東大島駅 歩11分、JR総武線/平井駅 歩19分、東武亀戸線/亀戸水神駅 歩15分 /
面積 : 78.39m² /
築年月 : 1999年01月 /
賃料 : 18.0万円 /
管理費又は共益費等 : 1.5万円 /
礼金等 : 1ヶ月 /
敷金 : 2ヶ月、保証金等 : -、 償却、敷引 : - /
住宅総合保険等の損害保険料 : 要 /
その他 : 当物件はオンラインまたはお近くの店舗でご相談お申込を承ります。リライフは首都圏23店舗のネットワークで豊富な物件情報をご提供いたします。当物件に類似した未公開物件のご提案も可能です。お気軽にお問い合わせください。違約金有:短期解約違約金有
合計1.98万円(内訳:除菌施工料(初回のみ)1.98万円)
リロサポ(月額)0.25万円
二人入居可
定期借家 2年
保証会社利用必 リロ家賃サービス保証会社 要:初回 賃料総額100%+月額 賃料総額2%(最低1000円)
/ 駐車場 : 無
リライフは全ての物件が仲介料半額です。
室内見学承ります・お客様のご都合に合わせてオンラインまたはお近くの店舗でご提案可・初期費用分割払い可・クレジットカード利用可・引越業者割引・初期費用のお見積や入居日のご相談もお気軽にお問合せください |
||
| 所属団体 |
(公社)東京都宅地建物取引業協会会員 (公社)首都圏不動産公正取引協議会加盟 |
||

