大阪府大阪市城東区今福西1丁目の賃貸マンション
情報公開日:2025/10/26(残り15日)
次回更新日は情報公開日より15日以内
物件画像
画像提供元:NAOパートナーズホーム(株)
この物件のタグ
この物件にお問い合わせ
大阪府大阪市城東区今福西1丁目の賃貸マンションの物件情報
| 賃料/管理費等 |
19.5万円(管理費等 1.5万円)
|
||
|---|---|---|---|
| 敷金 | 無料 | 礼金 | 39.0万円 |
| 種別/構造 | マンション/SRC | 築年月 | 2004年01月 |
| 所在地 |
大阪府大阪市城東区今福西1丁目
|
||
| 主要交通機関 |
大阪市長堀鶴見緑地/蒲生四丁目 徒歩2分 大阪市今里筋線/蒲生四丁目 徒歩3分 大阪市今里筋線/鴫野 徒歩9分 |
||
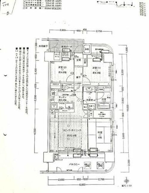
| 間取り | 3LDK | 面積 | 72.08m² |
| 間取り詳細 | 和 6 洋 6.5・4.6 LDK 15.8 | 方位 | 南 |
| 階数/部屋番号 | 2階/地上14階建 | 駐車場 | 空有 月額:14,000円 |
| 特徴 |
|
||
| 設備/条件 | 室内洗濯機置場、追焚機能、高温差湯式、エレベーター、オートロック、B・T別、バルコニー、収納スペース、床暖房、浴室乾燥機、カウンタキッチン、モニタ付インターホン、宅配BOX、駐輪場、モニタ付オートロック、シャワー付洗面化粧台、フローリング、防犯カメラ、洗面所独立、インターネット対応、ガスコンロ付、シューズボックス、火災警報器(報知機)、クローゼット、浴室に窓あり、都市ガス、洗面所、3口以上コンロ、浴室暖房、洗面台、都市ガス給湯、給湯、シャワー、トイレ、洗濯機置場、ペット相談、二人入居可、分譲タイプ、角部屋、ルームシェア可、2面採光、3面採光、外観タイル張り、振分、管理人日勤 | ||
| 備考 |
雑費無 更新料: なし 鍵交換代等: 38,500円〜 駐輪場: 有 |
||
| 契約期間 | 2年 | ||
|---|---|---|---|
| 入居可能時期 |
お問い合わせください。
|
||
| 初期費用 |
お問い合わせください。
|
||
| 住宅保険 | 住宅火災保険:20,000円(2年) | 現状空室状況 | 空家 |
情報提供元:NAOパートナーズホーム(株)
画像提供元:NAOパートナーズホーム(株)
※各種情報と現状に差異がある場合は、現状優先となります。取り扱い不動産会社が複数ある場合は、住宅保険等、一部条件が異なる場合もございますので、取扱店舗までご確認下さいませ。
この物件にお問い合わせ
周辺施設
| コンビニ |
セブン-イレブン 地下鉄蒲生四丁目駅前店 セブン‐イレブン 大阪今福南1丁目店 |
|||
|---|---|---|---|---|
| スーパー |
パントリー蒲生店 関西スーパーマーケット蒲生店 |
|||
| ドラッグストア |
ヘルシー21スミヨシ薬局蒲生店 スギ薬局蒲生店 |
|||
| 保育園 |
今福 青い鳥保育園 |
|||
|---|---|---|---|---|
| 幼稚園 |
蒲生幼稚園 |
|||
| 小学校 |
大阪市立 鯰江小学校 |
|||
| 中学校 |
大阪市立 鯰江中学校 |
|||
※周辺情報は不動産会社から提供された情報ではなく、弊サービスで独自に収集した情報です。
担当者のオススメポイント!
コスト感覚の鋭いお客様に嬉しいニュース!敷金(保証金)0円。お探しの方には嬉しいペット(小型犬)相談可。防犯カメラ設置済、更に美観を維持する外観タイル張りなので、風合いが色褪せません。
大阪府大阪市城東区今福西1丁目の賃貸マンションの取扱会社情報 1件
| 取扱会社(1) | NAOパートナーズホーム(株) (情報提供媒体:at home) | ||
|---|---|---|---|
| 住所 | 大阪府大阪市中央区北久宝寺町2丁目1-10 SD船場ビル8階 | ||
| 電話番号 | 06-4705-1525 | 免許番号 | 大阪府知事免許(6)第47214号 |
| 取引態様 | 専任媒介 | 物件管理番号 |
6987534554 ※お問い合わせの際には、担当者へ物件管理番号をお伝えください。 |
| 物件に関する情報 |
物件の所在地 : 大阪府大阪市城東区今福西1丁目 /
交通の利便 : 大阪市長堀鶴見緑地/蒲生四丁目 徒歩2分、大阪市今里筋線/蒲生四丁目 徒歩3分、大阪市今里筋線/鴫野 徒歩9分 /
面積 : 72.08m² /
築年月 : 2004年01月 /
賃料 : 19.5万円 /
管理費又は共益費等 : 1.5万円 /
礼金等 : 2ヶ月 /
敷金 : 無料、保証金等 : -、 償却、敷引 : - /
住宅総合保険等の損害保険料 : 住宅火災保険:20,000円(2年) /
その他 : 雑費無
更新料: なし
鍵交換代等: 38,500円〜
駐輪場: 有
/ 駐車場 : 空有
月額:14,000円
コスト感覚の鋭いお客様に嬉しいニュース!敷金(保証金)0円。お探しの方には嬉しいペット(小型犬)相談可。防犯カメラ設置済、更に美観を維持する外観タイル張りなので、風合いが色褪せません。
|
||
| 所属団体 |
(一社)大阪府宅地建物取引業協会 (公社)近畿地区不動産公正取引協議会 - |
||

