神奈川県川崎市川崎区堤根の賃貸マンション
情報公開日:2025/10/30(残り15日)
次回更新日は2025/11/06
物件画像
画像提供元:スマイルーム STF(株)
この物件のタグ
この物件にお問い合わせ
神奈川県川崎市川崎区堤根の賃貸マンションの物件情報
| 賃料/管理費等 |
8.7万円(管理費等 1.0万円)
|
||
|---|---|---|---|
| 敷金 | 無料 | 礼金 | 8.7万円 |
| 種別/構造 | マンション/RC | 築年月 | 2023年05月 |
| 所在地 |
神奈川県川崎市川崎区堤根
|
||
| 主要交通機関 |
京急本線/八丁畷駅 歩8分 JR南武線/八丁畷駅 歩8分 JR京浜東北線/川崎駅 歩20分 |
||
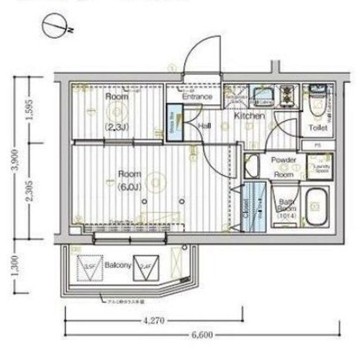
| 間取り | 2K | 面積 | 25.99m² |
| 間取り詳細 | - | 方位 | 東 |
| 階数/部屋番号 | 2階/地上5階建 | 駐車場 | 無 |
| 特徴 |
|
||
| 設備/条件 | バストイレ別、バルコニー、エアコン、ガスコンロ対応、クロゼット、フローリング、TVインターホン、浴室乾燥機、オートロック、室内洗濯置、シューズボックス、システムキッチン、温水洗浄便座、脱衣所、洗面所独立、2口コンロ、宅配ボックス、光ファイバー、BS・CS、敷金不要、防犯カメラ、ペット相談、照明付、分譲賃貸、保証人不要、仲介手数料不要、全居室フローリング、2沿線利用可、ネット使用料不要、ダブルロックキー、保証金不要、築2年以内、24時間換気システム、人感照明センサー、駅徒歩10分以内、敷地内ごみ置き場、都市ガス、オートライト、高速ネット対応、マルチメディアコンセント、礼金1ヶ月、IT重説 対応物件 | ||
| 備考 |
京浜急行電鉄本線 鶴見市場駅徒歩11分/大田区・品川区・川崎エリアを中心に都内全域の賃貸物件をご紹介しております!運営コストを抑えた小規模な店舗のため、お客様へ最大限の還元が実現可能となっております!初期費用が高い。。。なんとかならないかな?そういった時にお役に立てるかと存じます!他社様がネットに掲載されている物件でも、基本的には全てご紹介可能ですので複数店回る手間が省けます!ご相談・ご交渉など、お気軽にお問合せくださいませ。 合計2.26万円(内訳:鍵交換代:22000円/書類作成費:550円) 更新料新賃料(ヶ月):1.00ヶ月 単身者限定/ペット相談 普通借家 2年 日本セーフティー利用必 初回保証料40% 更新料:770円ミライズインシュア 保証料40% 更新料1万円/年 ※物件に関する備考は各社異なりますのでご確認のうえお問い合わせください。 |
||
| 契約期間 | お問い合わせください。 | ||
|---|---|---|---|
| 入居可能時期 |
''25年12月中旬
|
||
| 初期費用 |
お問い合わせください。
|
||
| 住宅保険 | 1.5万円2年 | 現状空室状況 | お問い合わせください。 |
情報提供元:スマイルーム STF(株)
画像提供元:スマイルーム STF(株)
※各種情報と現状に差異がある場合は、現状優先となります。取り扱い不動産会社が複数ある場合は、住宅保険等、一部条件が異なる場合もございますので、取扱店舗までご確認下さいませ。
この物件にお問い合わせ
周辺施設
| コンビニ |
セブン‐イレブン 川崎日進町西店 ファミリーマート 日進町店 |
|||
|---|---|---|---|---|
| スーパー |
京急ストア 八丁畷店 ライフ 川崎ルフロン店 |
|||
| ドラッグストア |
スギ薬局 八丁畷店 日本調剤川崎駅前薬局 |
|||
| 保育園 |
ゲートタワーローズ保育園 |
|||
|---|---|---|---|---|
| 幼稚園 |
川崎頌和幼稚園 |
|||
| 小学校 |
川崎小学校 通級指導教室 |
|||
| 中学校 |
川崎市立川崎中学校 |
|||
※周辺情報は不動産会社から提供された情報ではなく、弊サービスで独自に収集した情報です。
担当者のオススメポイント!
こちらの物件は当店なら仲介手数料無料です♪
お客様が希望される内見方法(現地でのお待ち合わせ、オンライン、ご来店)にてご案内可能です☆また各種サイトの物件もまとめてご紹介可能です!諸々融通も利きやすいためお気軽にご相談・お問い合わせください♪
神奈川県川崎市川崎区堤根の賃貸マンションの取扱会社情報 2件
| 取扱会社(1) | スマイルーム STF(株) (情報提供媒体:SUUMO) | ||
|---|---|---|---|
| 住所 | 東京都大田区仲六郷2-16-7 桜井ビル2階 | ||
| 電話番号 | 03-6424-4737 | 免許番号 | 東京都知事(1)第108216号 |
| 取引態様 | 仲介 | 物件管理番号 |
100470077939 ※お問い合わせの際には、担当者へ物件管理番号をお伝えください。 |
| 物件に関する情報 |
物件の所在地 : 神奈川県川崎市川崎区堤根 /
交通の利便 : 京急本線/八丁畷駅 歩8分、JR南武線/八丁畷駅 歩8分、JR京浜東北線/川崎駅 歩20分 /
面積 : 25.99m² /
築年月 : 2023年05月 /
賃料 : 8.7万円 /
管理費又は共益費等 : 1.0万円 /
礼金等 : 1ヶ月 /
敷金 : 無料、保証金等 : -、 償却、敷引 : - /
住宅総合保険等の損害保険料 : 1.5万円2年 /
その他 : 京浜急行電鉄本線 鶴見市場駅徒歩11分/大田区・品川区・川崎エリアを中心に都内全域の賃貸物件をご紹介しております!運営コストを抑えた小規模な店舗のため、お客様へ最大限の還元が実現可能となっております!初期費用が高い。。。なんとかならないかな?そういった時にお役に立てるかと存じます!他社様がネットに掲載されている物件でも、基本的には全てご紹介可能ですので複数店回る手間が省けます!ご相談・ご交渉など、お気軽にお問合せくださいませ。
合計2.26万円(内訳:鍵交換代:22000円/書類作成費:550円)
更新料新賃料(ヶ月):1.00ヶ月
単身者限定/ペット相談
普通借家 2年
日本セーフティー利用必 初回保証料40% 更新料:770円ミライズインシュア 保証料40% 更新料1万円/年
/ 駐車場 : 無
こちらの物件は当店なら仲介手数料無料です♪
お客様が希望される内見方法(現地でのお待ち合わせ、オンライン、ご来店)にてご案内可能です☆また各種サイトの物件もまとめてご紹介可能です!諸々融通も利きやすいためお気軽にご相談・お問い合わせください♪ |
||
| 所属団体 |
(公社)全日本不動産協会東京都本部会員 (公社)首都圏不動産公正取引協議会加盟 |
||
| 取扱会社(2) | (株)グランツエステート (情報提供媒体:SUUMO) | ||
|---|---|---|---|
| 住所 | 神奈川県川崎市中原区新丸子東2-907-22 及川ビル3階 | ||
| 電話番号 | 044-982-9175 | 免許番号 | 神奈川県知事(2)第29320号 |
| 取引態様 | 仲介 | 物件管理番号 |
100470275515 ※お問い合わせの際には、担当者へ物件管理番号をお伝えください。 |
| 物件に関する情報 |
物件の所在地 : 神奈川県川崎市川崎区堤根 /
交通の利便 : JR南武線/八丁畷駅 歩8分、京急本線/鶴見市場駅 歩10分、JR京浜東北線/川崎駅 歩20分 /
面積 : 25.99m² /
築年月 : 2023年05月 /
賃料 : 8.7万円 /
管理費又は共益費等 : 1.0万円 /
礼金等 : 1ヶ月 /
敷金 : 無料、保証金等 : -、 償却、敷引 : - /
住宅総合保険等の損害保険料 : 要 /
その他 : 弊社では全物件で分割払い(3~60回)に対応しており、初期費用0円でご入居が可能です。 急なお引越しで初期費用のご用意が難しい場合や、「初めにまとまった金額を支払いたくない」という方にも安心してご利用いただけます。 また、お部屋のご相談は※営業時間外でも対応可能です。お仕事帰りの遅い時間でもお気軽にご相談ください。
合計2.26万円(内訳:書類作成費0.055万円 鍵交換代2.2万円)
普通借家 2年
保証会社利用必 初回:総賃料40% 月:770円
/ 駐車場 : 無
☆弊社は全物件分割可能!初期費用0で入居可能☆
3駅3路線利用可能で通勤通学に便利な立地です♪敷金礼金ゼロなので初期費用を抑えられます♪嬉しいインターネット無料♪設備も充実しております♪ |
||
| 所属団体 |
(公社)全日本不動産協会神奈川県本部会員 (公社)首都圏不動産公正取引協議会加盟 |
||

