福岡県福岡市博多区住吉2丁目の賃貸マンション
情報公開日:2025/11/01(残り15日)
次回更新日は情報公開日より15日以内
物件画像
画像提供元:株式会社 ハウスサポート/アパマンショップ高宮店
この物件のタグ
この物件にお問い合わせ
福岡県福岡市博多区住吉2丁目の賃貸マンションの物件情報
| 賃料/管理費等 |
18.6万円(管理費等 -)
|
||
|---|---|---|---|
| 敷金 | 無料 | 礼金 | 55.8万円 |
| 種別/構造 | マンション/鉄筋コンクリート | 築年月 | 新築(2025年07月) |
| 所在地 |
福岡県福岡市博多区住吉2丁目
|
||
| 主要交通機関 | 鹿児島本線/博多 徒歩12分 | ||
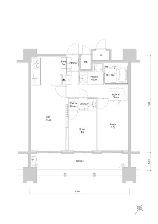
| 間取り | 2LDK | 面積 | 52.53m² |
| 間取り詳細 | - | 方位 | 西 |
| 階数/部屋番号 | 12階/地上14階建 | 駐車場 | 無し |
| 特徴 |
|
||
| 設備/条件 | エアコン、バス・トイレ別、追い焚き、温水洗浄便座、デザイナーズ、インターネット対応、システムキッチン、2階以上の物件、フローリング、室内洗濯機置場、バルコニー、エレベーター、駐輪場あり、バイク置き場あり、プロパンガス、オートロック、宅配ボックス、ウォークインクローゼット | ||
| 備考 |
※備蓄倉庫あり(希望者のみ)別途鍵代あり/ステッカー代:空き要確認/契約更新・・・事務手数料あり【2年毎に家賃及び共益費の16.5%(税込)】/短期解約違約金・・・契約日より1年未満に解約した場合は家賃及び共益費の1ヶ月分 保証会社利用必須 株式会社 保証等 初回保証料:月額賃料等合計30% 年間保証委託料:月額賃料等合計の15%(最低保証料なし)等 えんくらぶ会費 1100円/事務手数料 16500円 [退去時費用(故意・過失等別途実費):クリーニング代 49,500円] |
||
| 契約期間 | 24ヶ月 | ||
|---|---|---|---|
| 入居可能時期 |
お問い合わせください。
|
||
| 初期費用 |
お問い合わせください。
|
||
| 住宅保険 | お問い合わせください。 | 現状空室状況 | お問い合わせください。 |
情報提供元:株式会社 ハウスサポート/アパマンショップ高宮店
画像提供元:株式会社 ハウスサポート/アパマンショップ高宮店
※各種情報と現状に差異がある場合は、現状優先となります。取り扱い不動産会社が複数ある場合は、住宅保険等、一部条件が異なる場合もございますので、取扱店舗までご確認下さいませ。
この物件にお問い合わせ
周辺施設
| コンビニ |
有限会社エスエヌ通商 (56m) ローソン 住吉2丁目店 (76m) |
|||
|---|---|---|---|---|
| スーパー |
株式会社いせ屋 いせやフーズクラブ (494m) マックスバリュエクスプレス 博多祇園店 (504m) |
|||
| ドラッグストア |
株式会社新生堂薬局 由布ビル店 (186m) ミズ・福岡オフィス (263m) |
|||
| 保育園 |
どろんこ保育園 (147m) |
|||
|---|---|---|---|---|
| 幼稚園 |
エンジェルキッズ保育所 (367m) |
|||
| 小学校 |
福岡市立春吉小学校 (595m) |
|||
| 中学校 |
福岡市立東住吉中学校 (1047m) |
|||
※周辺情報は不動産会社から提供された情報ではなく、弊サービスで独自に収集した情報です。
担当者のオススメポイント!
☆アパマンショップ高宮店TEL☆
電話でお問い合わせご希望の方
株式会社 ハウスサポート アパマンショップ高宮店
営業時間: 09:30〜18:00(管理物件募集強化中です!) 定休日: 定休日なし
- ※電話経由でのお問い合せは、お祝い金プレゼントキャンペーンの適用になりませんのでご注意ください。
- ※電話でお問い合わせする場合は、光IP電話、及びIP電話からはご利用になれません。不動産会社の方からの電話番号によるお問合せはお断りしております。
福岡県福岡市博多区住吉2丁目の賃貸マンションの取扱会社情報 1件
| 取扱会社(1) | 株式会社 ハウスサポート アパマンショップ高宮店 | ||
|---|---|---|---|
| 住所 | 福岡県福岡市南区高宮3丁目8-3 | ||
| 電話番号 | 092-791-8066 | 免許番号 | 国土交通大臣(3)第8462号 |
| 取引態様 | 仲介 | 物件管理番号 |
110746730 ※お問い合わせの際には、担当者へ物件管理番号をお伝えください。 |
| 連絡先 | 0037-6008-6574 | ||
| 物件に関する情報 |
物件の所在地 : 福岡県福岡市博多区住吉2丁目 /
交通の利便 : 鹿児島本線/博多 徒歩12分 /
面積 : 52.53m² /
築年月 : 新築(2025年07月) /
賃料 : 18.6万円 /
管理費又は共益費等 : - /
礼金等 : 3ヶ月 /
敷金 : 無料、保証金等 : -、 償却、敷引 : - /
住宅総合保険等の損害保険料 : - /
その他 : ※備蓄倉庫あり(希望者のみ)別途鍵代あり/ステッカー代:空き要確認/契約更新・・・事務手数料あり【2年毎に家賃及び共益費の16.5%(税込)】/短期解約違約金・・・契約日より1年未満に解約した場合は家賃及び共益費の1ヶ月分 保証会社利用必須 株式会社 保証等 初回保証料:月額賃料等合計30% 年間保証委託料:月額賃料等合計の15%(最低保証料なし)等 えんくらぶ会費 1100円/事務手数料 16500円
[退去時費用(故意・過失等別途実費):クリーニング代 49,500円]
/ 駐車場 : 無し
☆アパマンショップ高宮店TEL☆
|
||
| 所属団体 |
(公社)全日本不動産協会福岡県本部 (一社) 九州不動産公正取引協議会加盟 - |
||

