ルクレ初台[2階]
情報公開日:2025/10/28(残り15日)
次回更新日は情報公開日より15日以内
物件画像
画像提供元:(株)T-BRIDGE
この物件のタグ
この物件にお問い合わせ
ルクレ初台[2階]の物件情報
| 賃料/管理費等 |
13.5万円(管理費等 1.5万円)
|
||
|---|---|---|---|
| 敷金 | 無料 | 礼金 | 13.5万円 |
| 種別/構造 | マンション/RC | 築年月 | 2003年05月 |
| 敷金積み増し | ペット飼育の場合敷金1ヶ月(総額) | ||
| 所在地 |
東京都渋谷区初台1
|
||
| 主要交通機関 |
京王新線/幡ヶ谷駅 歩6分 京王新線/初台駅 歩7分 小田急線/代々木上原駅 歩18分 |
||
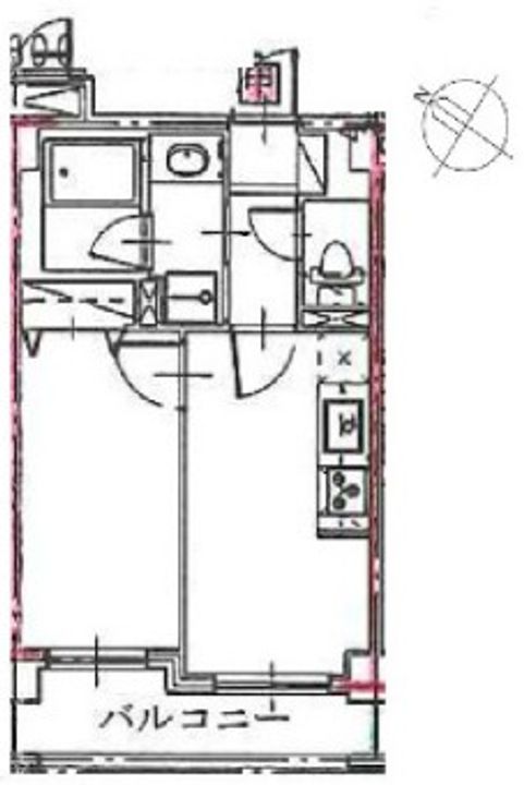
| 間取り | 1DK | 面積 | 39.74m² |
| 間取り詳細 | 洋4.7 DK7.2 | 方位 | 南西 |
| 階数/部屋番号 | 2階/地上5階建 | 駐車場 | 無 |
| 特徴 |
|
||
| 設備/条件 | バストイレ別、バルコニー、エアコン、ガスコンロ対応、クロゼット、フローリング、TVインターホン、浴室乾燥機、オートロック、室内洗濯置、陽当り良好、シューズボックス、システムキッチン、追焚機能浴室、温水洗浄便座、エレベーター、洗面所独立、洗面化粧台、2口コンロ、駐輪場、宅配ボックス、CATV、光ファイバー、BS・CS、敷金不要、防犯カメラ、ペット相談、グリル付、保証人不要、二人入居相談、全居室フローリング、2沿線利用可、ディンプルキー、CS、ネット使用料不要、ダブルロックキー、24時間換気システム、耐震構造、3駅以上利用可、駅徒歩10分以内、24時間ゴミ出し可、敷地内ごみ置き場、南西向き、オープンキッチン、都市ガス、南面バルコニー、2WAYバルコニー、BS、礼金1ヶ月、保証会社利用可、初期費用カード決済可 | ||
| 備考 |
巡回管理 合計3.85万円(内訳:鍵交換代) 解約予告2カ月前、更新料:新賃料の1カ月、退去時室内清掃費:60500円、プレミアデスク(2年/税込):16500円 二人入居可/子供可/ペット相談 保証会社利用必 初回:賃料等の50%、更新保証委託料10000円/年 |
||
| 契約期間 | お問い合わせください。 | ||
|---|---|---|---|
| 入居可能時期 |
お問い合わせください。
|
||
| 初期費用 |
お問い合わせください。
|
||
| 住宅保険 | 2万円2年 | 現状空室状況 | お問い合わせください。 |
情報提供元:(株)T-BRIDGE
画像提供元:(株)T-BRIDGE
※各種情報と現状に差異がある場合は、現状優先となります。取り扱い不動産会社が複数ある場合は、住宅保険等、一部条件が異なる場合もございますので、取扱店舗までご確認下さいませ。
この物件にお問い合わせ
周辺施設
| コンビニ |
セブン‐イレブン 渋谷本町1丁目店 ファミリーマート初台駅北口店 |
|||
|---|---|---|---|---|
| スーパー |
成城石井オペラシティ店 フレスコベンガベンガ |
|||
| ドラッグストア |
クオール薬局 初台南店 クオール薬局 初台店 |
|||
| 保育園 |
渋谷区立 本町第三保育園 |
|||
|---|---|---|---|---|
| 幼稚園 |
帝京めぐみ幼稚園 |
|||
| 小学校 |
渋谷区立幡代小学校 |
|||
| 中学校 |
渋谷区立代々木中学校 |
|||
※周辺情報は不動産会社から提供された情報ではなく、弊サービスで独自に収集した情報です。
担当者のオススメポイント!
不動産サービスの本質を追求し見極め、価値あるアテンドをお約束
都心部の物件情報は随時流動しています。ハイクラス物件を中心とした専門のプロフェッショナルエージェントが、迅速かつ的確なご提案から諸条件交渉や細部に至るニーズまで、お客様の「住」の価値の最大化に努めます
ルクレ初台[2階]の取扱会社情報 1件
| 取扱会社(1) | (株)T-BRIDGE (情報提供媒体:SUUMO) | ||
|---|---|---|---|
| 住所 | 東京都渋谷区渋谷2-19-15 MIYAMASUZAKABUILDING2階 | ||
| 電話番号 | 03-6805-0002 | 免許番号 | 東京都知事(2)第104461号 |
| 取引態様 | 仲介 | 物件管理番号 |
100469612683 ※お問い合わせの際には、担当者へ物件管理番号をお伝えください。 |
| 物件に関する情報 |
物件の所在地 : 東京都渋谷区初台1 /
交通の利便 : 京王新線/幡ヶ谷駅 歩6分、京王新線/初台駅 歩7分、小田急線/代々木上原駅 歩18分 /
面積 : 39.74m² /
築年月 : 2003年05月 /
賃料 : 13.5万円 /
管理費又は共益費等 : 1.5万円 /
礼金等 : 1ヶ月 /
敷金 : 無料、保証金等 : -、 償却、敷引 : - /
住宅総合保険等の損害保険料 : 2万円2年 /
その他 : 巡回管理
合計3.85万円(内訳:鍵交換代)
解約予告2カ月前、更新料:新賃料の1カ月、退去時室内清掃費:60500円、プレミアデスク(2年/税込):16500円
二人入居可/子供可/ペット相談
保証会社利用必 初回:賃料等の50%、更新保証委託料10000円/年
/ 駐車場 : 無
不動産サービスの本質を追求し見極め、価値あるアテンドをお約束
都心部の物件情報は随時流動しています。ハイクラス物件を中心とした専門のプロフェッショナルエージェントが、迅速かつ的確なご提案から諸条件交渉や細部に至るニーズまで、お客様の「住」の価値の最大化に努めます |
||
| 所属団体 |
(公社)全日本不動産協会東京都本部会員 (公社)首都圏不動産公正取引協議会加盟 |
||

