東京都中央区湊2の賃貸マンション
情報公開日:2025/10/29(残り15日)
次回更新日は2025/11/01
物件画像
画像提供元:(株)モノリス神田支店
この物件のタグ
この物件にお問い合わせ
東京都中央区湊2の賃貸マンションの物件情報
| 賃料/管理費等 | 
            9.5万円(管理費等 1.0万円)
           | ||
|---|---|---|---|
| 敷金 | 9.5万円 | 礼金 | 無料 | 
| 種別/構造 | マンション/RC | 築年月 | 2018年01月 | 
| 所在地 | 
          東京都中央区湊2
         | ||
| 主要交通機関 | 東京メトロ有楽町線/新富町駅 歩8分 東京メトロ日比谷線/八丁堀駅 歩10分 東京メトロ日比谷線/築地駅 歩12分 | ||
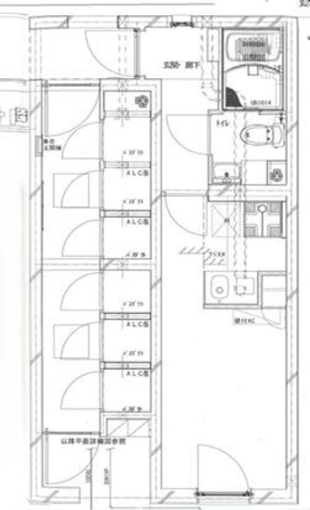
| 間取り | 1K | 面積 | 20.18m² | 
| 間取り詳細 | - | 方位 | 南 | 
| 階数/部屋番号 | 1階/地上5階建 | 駐車場 | 無 | 
| 特徴 |  | ||
| 設備/条件 | バストイレ別、エアコン、クロゼット、フローリング、TVインターホン、浴室乾燥機、オートロック、室内洗濯置、陽当り良好、シューズボックス、システムキッチン、南向き、角住戸、温水洗浄便座、洗面所独立、宅配ボックス、CATV、光ファイバー、即入居可、礼金不要、BS・CS、防犯カメラ、IHクッキングヒーター、照明付、全居室収納、分譲賃貸、全居室洋室、保証人不要、仲介手数料不要、CATVインターネット、24時間緊急通報システム、全居室フローリング、デザイナーズ、CS、ネット専用回線、フリーレント、全室南向き、エアコン全室、保証金不要、24時間換気システム、南面リビング、一部フローリング、ISDN対応、耐震構造、3駅以上利用可、3沿線以上利用可、駅徒歩10分以内、24時間ゴミ出し可、敷地内ごみ置き場、セキュリティ会社加入済、都市ガス、玄関収納、BS、高速ネット対応、LAN、保証会社利用可、IT重説 対応物件、初期費用カード決済可、全室照明付 | ||
| 備考 | お問い合わせ頂いた際の返信が迷惑メールに届く可能性がございます。また、お番号記載のお客様へはSMSでもご連絡させて頂いておりますのでご確認お願い致します。こちらからの返信が確認できない場合はお手数ですがまでおください。 保証会社必須70%~ 年間10000円 インターネット代4634円/月 単身者可/フリーレント5ヶ月 ※物件に関する備考は各社異なりますのでご確認のうえお問い合わせください。 | ||
| 契約期間 | お問い合わせください。 | ||
|---|---|---|---|
| 入居可能時期 | 
            即入居可
           | ||
| 初期費用 | 
            お問い合わせください。
           | ||
| 住宅保険 | 2.17万円2年 | 現状空室状況 | お問い合わせください。 | 
  情報提供元:(株)モノリス神田支店
  画像提供元:(株)モノリス神田支店
  ※各種情報と現状に差異がある場合は、現状優先となります。取り扱い不動産会社が複数ある場合は、住宅保険等、一部条件が異なる場合もございますので、取扱店舗までご確認下さいませ。
この物件にお問い合わせ
周辺施設
| コンビニ | ファミリーマート 湊二丁目店 ローソン入船店 | |||
|---|---|---|---|---|
| スーパー | デリド湊店 まいばすけっと 中央湊2丁目店 | |||
| ドラッグストア | 桜川薬局 どらっぐぱぱす 明石町店 | |||
| 保育園 | 日生新川保育園ひびき | |||
|---|---|---|---|---|
| 幼稚園 | 中央区立 中央幼稚園 | |||
| 小学校 | 中央区立中央小学校 | |||
| 中学校 | 中央区立佃中学校 | |||
※周辺情報は不動産会社から提供された情報ではなく、弊サービスで独自に収集した情報です。
担当者のオススメポイント!
【仲介手数料無料】お問い合わせはまで
~素敵なお部屋との出会いは、不動産会社のスタッフで絶対決まる~【最新の空室確認をAIで実現、24時間いつでも、お問合せ直後に空室確認がとれます】
東京都中央区湊2の賃貸マンションの取扱会社情報 2件
| 取扱会社(1) | (株)モノリス神田支店 (情報提供媒体:SUUMO) | ||
|---|---|---|---|
| 住所 | 東京都千代田区鍛冶町2-5-6 神田ミライビル1階 | ||
| 電話番号 | 03-6271-7333 | 免許番号 | 東京都知事(2)第105272号 | 
| 取引態様 | 仲介 | 物件管理番号 | 100469195674 ※お問い合わせの際には、担当者へ物件管理番号をお伝えください。 | 
| 物件に関する情報 | 
                  物件の所在地 : 東京都中央区湊2 /
                  交通の利便 : 東京メトロ有楽町線/新富町駅 歩8分、東京メトロ日比谷線/八丁堀駅 歩10分、東京メトロ日比谷線/築地駅 歩12分 /
                  面積 : 20.18m² /
                  築年月 : 2018年01月 /
                  賃料 : 9.5万円 /
                  管理費又は共益費等 : 1.0万円 /
                  礼金等 : 無料 /
                  敷金 : 1ヶ月、保証金等 : -、 償却、敷引 : - /
                  住宅総合保険等の損害保険料 : 2.17万円2年 /
                  その他 : お問い合わせ頂いた際の返信が迷惑メールに届く可能性がございます。また、お番号記載のお客様へはSMSでもご連絡させて頂いておりますのでご確認お願い致します。こちらからの返信が確認できない場合はお手数ですがまでおください。
保証会社必須70%~ 年間10000円 インターネット代4634円/月
単身者可/フリーレント5ヶ月
                    / 駐車場 : 無
                 
                  【仲介手数料無料】お問い合わせはまで ~素敵なお部屋との出会いは、不動産会社のスタッフで絶対決まる~【最新の空室確認をAIで実現、24時間いつでも、お問合せ直後に空室確認がとれます】 | ||
| 所属団体 | (公社)全日本不動産協会東京都本部会員 (公社)首都圏不動産公正取引協議会加盟 | ||
| 取扱会社(2) | (株)モノリス (情報提供媒体:SUUMO) | ||
|---|---|---|---|
| 住所 | 東京都千代田区神田松永町 7 | ||
| 電話番号 | 03-3527-1355 | 免許番号 | 東京都知事(2)第105272号 | 
| 取引態様 | 仲介 | 物件管理番号 | 100469119641 ※お問い合わせの際には、担当者へ物件管理番号をお伝えください。 | 
| 物件に関する情報 | 
                  物件の所在地 : 東京都中央区湊2 /
                  交通の利便 : 東京メトロ有楽町線/新富町駅 歩8分、東京メトロ日比谷線/八丁堀駅 歩10分、東京メトロ日比谷線/築地駅 歩12分 /
                  面積 : 20.18m² /
                  築年月 : 2018年01月 /
                  賃料 : 9.5万円 /
                  管理費又は共益費等 : 1.0万円 /
                  礼金等 : 無料 /
                  敷金 : 1ヶ月、保証金等 : -、 償却、敷引 : - /
                  住宅総合保険等の損害保険料 : 2.17万円2年 /
                  その他 : お問い合わせ頂いた際の返信が迷惑メールに届く可能性がございます。また、お番号記載のお客様へはSMSでもご連絡させて頂いておりますのでご確認お願い致します。こちらからの返信が確認できない場合はお手数ですがまでおください。
保証会社必須70%~ 年間10000円 インターネット代4634円/月
単身者可
                    / 駐車場 : 無
                 
                  【仲介手数料無料】お問い合わせはまで ~素敵なお部屋との出会いは、不動産会社のスタッフで絶対決まる~【最新の空室確認をAIで実現、24時間いつでも、お問合せ直後に空室確認がとれます】 | ||
| 所属団体 | (公社)全日本不動産協会東京都本部会員 (公社)首都圏不動産公正取引協議会加盟 | ||


 
                 
                 
                 
                   
                   
                   
                   
                   
                   
                   
                   
                   
                   
                   
                   
                   
                   
                   
                   
                  