LEGALAND駒沢大学[3階]
情報公開日:2025/10/29(残り15日)
次回更新日は2025/11/02
物件画像
画像提供元:(株)IEYA
この物件のタグ
この物件にお問い合わせ
LEGALAND駒沢大学[3階]の物件情報
| 賃料/管理費等 | 
            12.5万円(管理費等 1.0万円)
           | ||
|---|---|---|---|
| 敷金 | 無料 | 礼金 | 無料 | 
| 種別/構造 | マンション/RC | 築年月 | 2020年12月 | 
| 所在地 | 
          東京都世田谷区駒沢2
         | ||
| 主要交通機関 | 東急田園都市線/駒沢大学駅 歩3分 東急世田谷線/松陰神社前駅 歩19分 東急田園都市線/桜新町駅 歩19分 | ||
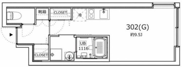
| 間取り | 1R | 面積 | 26.28m² | 
| 間取り詳細 | 洋9.5 | 方位 | 南東 | 
| 階数/部屋番号 | 3階/地下1地上4階建 | 駐車場 | 無 | 
| 特徴 |  | ||
| 設備/条件 | バストイレ別、エアコン、ガスコンロ対応、クロゼット、フローリング、TVインターホン、浴室乾燥機、オートロック、室内洗濯置、陽当り良好、シューズボックス、システムキッチン、角住戸、温水洗浄便座、脱衣所、洗面所独立、洗面化粧台、2口コンロ、宅配ボックス、光ファイバー、礼金不要、閑静な住宅地、2面採光、防犯カメラ、全居室収納、全居室洋室、保証人不要、東南角住戸、全居室フローリング、デザイナーズ、2沿線利用可、ディンプルキー、ネット専用回線、エアコン全室、ダブルロックキー、保証金不要、1フロア2住戸、24時間換気システム、ルームシェア相談、全室東南向き、全室2面採光、2駅利用可、3駅以上利用可、駅徒歩5分以内、駅徒歩10分以内、バス停徒歩3分以内、敷地内ごみ置き場、築5年以内、東南向き、全居室6畳以上、全居室8畳以上、都市ガス、室内物干機、玄関収納、高速ネット対応、年内入居可、年度内入居可、敷金・礼金不要、IT重説 対応物件、LGBTフレンドリー | ||
| 備考 | 合計11.88万円(内訳:ハウスクリーニング代及びエアコンクリーニング代(契約時払い):96800円、鍵交換代:22000円) 普通借家 2年 保証会社利用必 初回保証料委託料:総賃料の70%、継続委託保証料:12000円/年 | ||
| 契約期間 | お問い合わせください。 | ||
|---|---|---|---|
| 入居可能時期 | 
            ''25年10月下旬
           | ||
| 初期費用 | 
            お問い合わせください。
           | ||
| 住宅保険 | 要 | 現状空室状況 | お問い合わせください。 | 
  情報提供元:(株)IEYA
  画像提供元:(株)IEYA
  ※各種情報と現状に差異がある場合は、現状優先となります。取り扱い不動産会社が複数ある場合は、住宅保険等、一部条件が異なる場合もございますので、取扱店舗までご確認下さいませ。
この物件にお問い合わせ
周辺施設
| コンビニ | セブン‐イレブン 世田谷駒沢大学駅西店 ファミリーマート 駒沢一丁目店 | |||
|---|---|---|---|---|
| スーパー | マルエツ真中店 西友駒沢店 | |||
| ドラッグストア | クオール薬局 駒沢店 トモズ駒沢駅前店 | |||
| 保育園 | 日生上馬保育園ひびき | |||
|---|---|---|---|---|
| 幼稚園 | SUPERGLOBALPRESCHOOL 駒沢校 | |||
| 小学校 | 世田谷区立駒沢小学校 | |||
| 中学校 | 世田谷区立駒沢中学校 | |||
※周辺情報は不動産会社から提供された情報ではなく、弊サービスで独自に収集した情報です。
担当者のオススメポイント!
敷金・礼金なし!スタイリッシュなデザイナーズマンション!
お部屋は2面採光の角部屋で、9.5帖とゆとりのある広さがあります。共用部分にはオートロックや防犯カメラ、室内にはモニター付きインターホンがあるため、防犯セキュリティがしっかり整っております。
LEGALAND駒沢大学[3階]の取扱会社情報 1件
| 取扱会社(1) | (株)IEYA (情報提供媒体:SUUMO) | ||
|---|---|---|---|
| 住所 | 東京都世田谷区太子堂4-4-1 | ||
| 電話番号 | 0120-141814 | 免許番号 | 東京都知事(5)第84268号 | 
| 取引態様 | 仲介 | 物件管理番号 | 100462860086 ※お問い合わせの際には、担当者へ物件管理番号をお伝えください。 | 
| 物件に関する情報 | 
                  物件の所在地 : 東京都世田谷区駒沢2 /
                  交通の利便 : 東急田園都市線/駒沢大学駅 歩3分、東急世田谷線/松陰神社前駅 歩19分、東急田園都市線/桜新町駅 歩19分 /
                  面積 : 26.28m² /
                  築年月 : 2020年12月 /
                  賃料 : 12.5万円 /
                  管理費又は共益費等 : 1.0万円 /
                  礼金等 : 無料 /
                  敷金 : 無料、保証金等 : -、 償却、敷引 : - /
                  住宅総合保険等の損害保険料 : 要 /
                  その他 : 合計11.88万円(内訳:ハウスクリーニング代及びエアコンクリーニング代(契約時払い):96800円、鍵交換代:22000円)
普通借家 2年
保証会社利用必 初回保証料委託料:総賃料の70%、継続委託保証料:12000円/年
                    / 駐車場 : 無
                 
                  敷金・礼金なし!スタイリッシュなデザイナーズマンション! お部屋は2面採光の角部屋で、9.5帖とゆとりのある広さがあります。共用部分にはオートロックや防犯カメラ、室内にはモニター付きインターホンがあるため、防犯セキュリティがしっかり整っております。 | ||
| 所属団体 | (公社)東京都宅地建物取引業協会会員 (公社)首都圏不動産公正取引協議会加盟 | ||


 
                 
                 
                 
                   
                   
                   
                   
                   
                   
                   
                   
                   
                   
                   
                   
                   
                   
                   
                   
                  ![LEGALAND駒沢大学[3階]の間取り](https://smocca.jp/assets/common/spinner-1d171161728705657e0dc19391353959.gif) 
