東京都港区浜松町1の賃貸マンション
情報公開日:2025/10/29(残り15日)
次回更新日は2025/11/04
物件画像
画像提供元:リブマックス目黒店(株)リブ・マックス
この物件のタグ
この物件にお問い合わせ
東京都港区浜松町1の賃貸マンションの物件情報
| 賃料/管理費等 | 
            24.3万円(管理費等 1.0万円)
           | ||
|---|---|---|---|
| 敷金 | 48.6万円 | 礼金 | 24.3万円 | 
| 種別/構造 | マンション/RC | 築年月 | 2008年02月 | 
| 所在地 | 
          東京都港区浜松町1
         | ||
| 主要交通機関 | JR山手線/浜松町駅 歩3分 都営大江戸線/大門駅 歩3分 都営三田線/御成門駅 歩10分 | ||
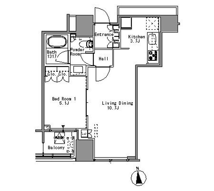
| 間取り | 1LDK | 面積 | 41.2m² | 
| 間取り詳細 | 洋6.4 LDK9.2 | 方位 | 北 | 
| 階数/部屋番号 | 14階/地上24階建 | 駐車場 | 無 | 
| 特徴 |  | ||
| 設備/条件 | バストイレ別、バルコニー、エアコン、ガスコンロ対応、クロゼット、フローリング、TVインターホン、浴室乾燥機、オートロック、室内洗濯置、シューズボックス、システムキッチン、追焚機能浴室、温水洗浄便座、脱衣所、エレベーター、洗面所独立、洗面化粧台、宅配ボックス、光ファイバー、外壁タイル張り、3口以上コンロ、防犯カメラ、照明付、オートバス、グリル付、保証人不要、二人入居相談、バイク置場、24時間緊急通報システム、全居室フローリング、デザイナーズ、ディンプルキー、CS、ネット専用回線、フリーレント、眺望良好、ダブルロックキー、24時間換気システム、楽器相談、フロントサービス、耐火構造、耐震構造、3駅以上利用可、3沿線以上利用可、駅徒歩5分以内、タワー型マンション、高層階、24時間ゴミ出し可、敷地内ごみ置き場、都市ガス、洗面所にドア、シューズWIC、BS、初期費用カード決済可、通風良好 | ||
| 備考 | 内見代行・写真撮影/動画撮影/WEB契約等来店不要でご契約可能です。お気軽にご相談下さい。 合計2.2万円(内訳:鍵交換代2.2万円) 更新料 新賃料1.00ヶ月分 室内清掃費用 63448円 二人入居可/楽器相談/事務所利用不可/フリーレント1ヶ月 1ヶ月 普通借家 2年 保証会社利用可 初回保証料:総賃料の50% 2年目以降:10000円/年 ※物件に関する備考は各社異なりますのでご確認のうえお問い合わせください。 | ||
| 契約期間 | お問い合わせください。 | ||
|---|---|---|---|
| 入居可能時期 | 
            ''25年11月下旬
           | ||
| 初期費用 | 
            お問い合わせください。
           | ||
| 住宅保険 | 2万円2年 | 現状空室状況 | お問い合わせください。 | 
  情報提供元:リブマックス目黒店(株)リブ・マックス
  画像提供元:リブマックス目黒店(株)リブ・マックス
  ※各種情報と現状に差異がある場合は、現状優先となります。取り扱い不動産会社が複数ある場合は、住宅保険等、一部条件が異なる場合もございますので、取扱店舗までご確認下さいませ。
この物件にお問い合わせ
周辺施設
| コンビニ | ファミリーマート 名鉄イン浜松町店 ファミリーマート浜松町一丁目店 | |||
|---|---|---|---|---|
| スーパー | マルエツ プチ浜松町一丁目店 マルエツプチ汐留シオサイト店 | |||
| ドラッグストア | ナチュラルローソン クオール薬局芝大門一丁目店 トモズ 浜松町店 | |||
| 保育園 | BabyRoomかわい | |||
|---|---|---|---|---|
| 幼稚園 | セブンシーズインターナショナルスクール | |||
| 小学校 | 港区立御成門小学校 | |||
| 中学校 | 港区立御成門中学校 | |||
※周辺情報は不動産会社から提供された情報ではなく、弊サービスで独自に収集した情報です。
担当者のオススメポイント!
防犯カメラには犯罪を抑止する効果があります
共用部にはゴミ出し24時間OK・宅配ボックスなどが揃っており、とても充実しています。収納はクロゼット・シューズボックスなど豊富なので、広々と空間を利用することも可能です。
東京都港区浜松町1の賃貸マンションの取扱会社情報 5件
| 取扱会社(1) | リブマックス目黒店(株)リブ・マックス (情報提供媒体:SUUMO) | ||
|---|---|---|---|
| 住所 | 東京都品川区上大崎2-15-15 伊多喜ビル5階 | ||
| 電話番号 | 03-6409-0707 | 免許番号 | 国土交通大臣(5)第7032号 | 
| 取引態様 | 仲介 | 物件管理番号 | 100460225858 ※お問い合わせの際には、担当者へ物件管理番号をお伝えください。 | 
| 物件に関する情報 | 
                  物件の所在地 : 東京都港区浜松町1 /
                  交通の利便 : JR山手線/浜松町駅 歩3分、都営大江戸線/大門駅 歩3分、都営三田線/御成門駅 歩10分 /
                  面積 : 41.2m² /
                  築年月 : 2008年02月 /
                  賃料 : 24.3万円 /
                  管理費又は共益費等 : 1.0万円 /
                  礼金等 : 1ヶ月 /
                  敷金 : 2ヶ月、保証金等 : -、 償却、敷引 : - /
                  住宅総合保険等の損害保険料 : 2万円2年 /
                  その他 : 内見代行・写真撮影/動画撮影/WEB契約等来店不要でご契約可能です。お気軽にご相談下さい。
合計2.2万円(内訳:鍵交換代2.2万円)
更新料 新賃料1.00ヶ月分 室内清掃費用 63448円
二人入居可/楽器相談/事務所利用不可/フリーレント1ヶ月 1ヶ月
普通借家 2年
保証会社利用可 初回保証料:総賃料の50% 2年目以降:10000円/年
                    / 駐車場 : 無
                 
                  防犯カメラには犯罪を抑止する効果があります 共用部にはゴミ出し24時間OK・宅配ボックスなどが揃っており、とても充実しています。収納はクロゼット・シューズボックスなど豊富なので、広々と空間を利用することも可能です。 | ||
| 所属団体 | (公社)全日本不動産協会東京都本部会員 (公社)首都圏不動産公正取引協議会加盟 | ||
| 取扱会社(2) | リブマックス新橋駅前店(株)リブマックスリーシング (情報提供媒体:SUUMO) | ||
|---|---|---|---|
| 住所 | 東京都港区新橋2-6-7 花菱ビル5階 | ||
| 電話番号 | 03-3503-5050 | 免許番号 | 国土交通大臣(3)第8116号 | 
| 取引態様 | 仲介 | 物件管理番号 | 100460226079 ※お問い合わせの際には、担当者へ物件管理番号をお伝えください。 | 
| 物件に関する情報 | 
                  物件の所在地 : 東京都港区浜松町1 /
                  交通の利便 : JR山手線/浜松町駅 歩3分、都営大江戸線/大門駅 歩3分、都営三田線/御成門駅 歩10分 /
                  面積 : 41.2m² /
                  築年月 : 2008年02月 /
                  賃料 : 24.3万円 /
                  管理費又は共益費等 : 1.0万円 /
                  礼金等 : 1ヶ月 /
                  敷金 : 2ヶ月、保証金等 : -、 償却、敷引 : - /
                  住宅総合保険等の損害保険料 : 2万円2年 /
                  その他 : 内見代行・写真撮影/動画撮影/WEB契約等来店不要でご契約可能です。お気軽にご相談下さい。
合計2.2万円(内訳:鍵交換代2.2万円)
更新料 新賃料1.00ヶ月分 室内清掃費用 63448円
二人入居可/楽器相談/事務所利用不可/フリーレント1ヶ月 1ヶ月
普通借家 2年
保証会社利用可 初回保証料:総賃料の50% 2年目以降:10000円/年
                    / 駐車場 : 無
                 
                  防犯カメラには犯罪を抑止する効果があります 共用部にはゴミ出し24時間OK・宅配ボックスなどが揃っており、とても充実しています。収納はクロゼット・シューズボックスなど豊富なので、広々と空間を利用することも可能です。 | ||
| 所属団体 | (公社)東京都宅地建物取引業協会会員 (公社)首都圏不動産公正取引協議会加盟 | ||
| 取扱会社(3) | リブマックス五反田店(株)リブ・マックス (情報提供媒体:SUUMO) | ||
|---|---|---|---|
| 住所 | 東京都品川区東五反田1-11-12 五反田大力ビル4階 | ||
| 電話番号 | 03-5447-8800 | 免許番号 | 国土交通大臣(5)第7032号 | 
| 取引態様 | 仲介 | 物件管理番号 | 100462592573 ※お問い合わせの際には、担当者へ物件管理番号をお伝えください。 | 
| 物件に関する情報 | 
                  物件の所在地 : 東京都港区浜松町1 /
                  交通の利便 : JR山手線/浜松町駅 歩3分、都営大江戸線/大門駅 歩3分、都営三田線/御成門駅 歩10分 /
                  面積 : 41.2m² /
                  築年月 : 2008年02月 /
                  賃料 : 24.3万円 /
                  管理費又は共益費等 : 1.0万円 /
                  礼金等 : 1ヶ月 /
                  敷金 : 2ヶ月、保証金等 : -、 償却、敷引 : - /
                  住宅総合保険等の損害保険料 : 2万円2年 /
                  その他 : 内見代行・写真撮影/動画撮影/WEB契約等来店不要でご契約可能です。お気軽にご相談下さい。
合計2.2万円(内訳:鍵交換代2.2万円)
更新料 新賃料1.00ヶ月分 室内清掃費用 63448円
二人入居可/楽器相談/事務所利用不可/フリーレント1ヶ月 1ヶ月
普通借家 2年
保証会社利用可 初回保証料:総賃料の50% 2年目以降:10000円/年
                    / 駐車場 : 無
                 
                  防犯カメラには犯罪を抑止する効果があります 共用部にはゴミ出し24時間OK・宅配ボックスなどが揃っており、とても充実しています。収納はクロゼット・シューズボックスなど豊富なので、広々と空間を利用することも可能です。 | ||
| 所属団体 | (公社)全日本不動産協会東京都本部会員 (公社)首都圏不動産公正取引協議会加盟 | ||
| 取扱会社(4) | リブマックス銀座店(株)リブマックスリーシング (情報提供媒体:SUUMO) | ||
|---|---|---|---|
| 住所 | 東京都中央区築地2-12-1 ホテルリブマックス東銀座1階 | ||
| 電話番号 | 03-3545-4545 | 免許番号 | 国土交通大臣(3)第8116号 | 
| 取引態様 | 仲介 | 物件管理番号 | 100460222269 ※お問い合わせの際には、担当者へ物件管理番号をお伝えください。 | 
| 物件に関する情報 | 
                  物件の所在地 : 東京都港区浜松町1 /
                  交通の利便 : JR山手線/浜松町駅 歩3分、都営大江戸線/大門駅 歩3分、都営三田線/御成門駅 歩10分 /
                  面積 : 41.2m² /
                  築年月 : 2008年02月 /
                  賃料 : 24.3万円 /
                  管理費又は共益費等 : 1.0万円 /
                  礼金等 : 1ヶ月 /
                  敷金 : 2ヶ月、保証金等 : -、 償却、敷引 : - /
                  住宅総合保険等の損害保険料 : 2万円2年 /
                  その他 : 内見代行・写真撮影/動画撮影/WEB契約等来店不要でご契約可能です。お気軽にご相談下さい。
合計2.2万円(内訳:鍵交換代2.2万円)
更新料 新賃料1.00ヶ月分 室内清掃費用 63448円
二人入居可/楽器相談/事務所利用不可/フリーレント1ヶ月 1ヶ月
普通借家 2年
保証会社利用可 初回保証料:総賃料の50% 2年目以降:10000円/年
                    / 駐車場 : 無
                 
                  防犯カメラには犯罪を抑止する効果があります 共用部にはゴミ出し24時間OK・宅配ボックスなどが揃っており、とても充実しています。収納はクロゼット・シューズボックスなど豊富なので、広々と空間を利用することも可能です。 | ||
| 所属団体 | (公社)東京都宅地建物取引業協会会員 (公社)首都圏不動産公正取引協議会加盟 | ||
| 取扱会社(5) | リブマックス渋谷店(株)リブ・マックス (情報提供媒体:SUUMO) | ||
|---|---|---|---|
| 住所 | 東京都渋谷区渋谷1-24-14 トライアングルワタナベビル9階 | ||
| 電話番号 | 03-3400-3300 | 免許番号 | 国土交通大臣(5)第7032号 | 
| 取引態様 | 仲介 | 物件管理番号 | 100465430068 ※お問い合わせの際には、担当者へ物件管理番号をお伝えください。 | 
| 物件に関する情報 | 
                  物件の所在地 : 東京都港区浜松町1 /
                  交通の利便 : JR山手線/浜松町駅 歩3分、都営大江戸線/大門駅 歩3分、都営三田線/御成門駅 歩10分 /
                  面積 : 41.2m² /
                  築年月 : 2008年02月 /
                  賃料 : 24.3万円 /
                  管理費又は共益費等 : 1.0万円 /
                  礼金等 : 1ヶ月 /
                  敷金 : 2ヶ月、保証金等 : -、 償却、敷引 : - /
                  住宅総合保険等の損害保険料 : 2万円2年 /
                  その他 : 内見代行・写真撮影/動画撮影/WEB契約等来店不要でご契約可能です。お気軽にご相談下さい。
合計2.2万円(内訳:鍵交換代2.2万円)
更新料 新賃料1.00ヶ月分 室内清掃費用 63448円
二人入居可/楽器相談/事務所利用不可/フリーレント1ヶ月 1ヶ月
普通借家 2年
保証会社利用可 初回保証料:総賃料の50% 2年目以降:10000円/年
                    / 駐車場 : 無
                 
                  防犯カメラには犯罪を抑止する効果があります 共用部にはゴミ出し24時間OK・宅配ボックスなどが揃っており、とても充実しています。収納はクロゼット・シューズボックスなど豊富なので、広々と空間を利用することも可能です。 | ||
| 所属団体 | (公社)全日本不動産協会東京都本部会員 (公社)首都圏不動産公正取引協議会加盟 | ||


 
                 
                 
                 
                   
                   
                   
                   
                   
                   
                   
                   
                   
                   
                   
                   
                   
                   
                   
                   
                  