343レジデンス後楽園[4階]
情報公開日:2025/10/26(残り15日)
次回更新日は情報公開日より15日以内
物件画像
画像提供元:実用春日ホーム(株)春日町店
この物件のタグ
この物件にお問い合わせ
343レジデンス後楽園[4階]の物件情報
| 賃料/管理費等 |
35.8万円(管理費等 2.0万円)
|
||
|---|---|---|---|
| 敷金 | 無料 | 礼金 | 無料 |
| 種別/構造 | マンション/RC | 築年月 | 2024年08月 |
| 敷金積み増し | ペット飼育の場合敷金2ヶ月(総額) | ||
| 所在地 |
東京都文京区小石川3
|
||
| 主要交通機関 |
都営大江戸線/春日駅 歩12分 東京メトロ丸ノ内線/後楽園駅 歩11分 都営三田線/白山駅 歩16分 |
||
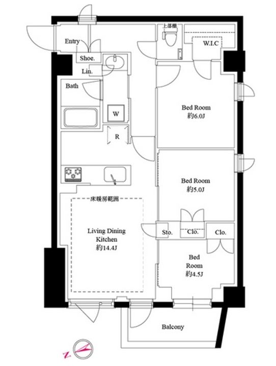
| 間取り | 2SLDK ※Sは納戸となります。 |
面積 | 70.35m² |
| 間取り詳細 | 洋6 洋5 LDK14.4 納戸 4.5 | 方位 | 北西 |
| 階数/部屋番号 | 4階/地下1地上6階建 | 駐車場 | 無 |
| 特徴 |
|
||
| 設備/条件 | バストイレ別、バルコニー、エアコン、ガスコンロ対応、クロゼット、フローリング、シャワー付洗面台、TVインターホン、浴室乾燥機、オートロック、室内洗濯置、陽当り良好、シューズボックス、システムキッチン、追焚機能浴室、角住戸、温水洗浄便座、脱衣所、エレベーター、洗面所独立、洗面化粧台、駐輪場、宅配ボックス、光ファイバー、外壁タイル張り、即入居可、礼金不要、閑静な住宅地、2面採光、敷金不要、3口以上コンロ、対面式キッチン、防犯カメラ、ペット相談、全居室収納、オートバス、グリル付、全居室洋室、ウォークインクロゼット、保証人不要、全居室フローリング、ディンプルキー、ネット専用回線、ネット使用料不要、床暖房、ダブルロックキー、築2年以内、24時間換気システム、電子キー、築3年以内、人感照明センサー、24時間ゴミ出し可、敷地内ごみ置き場、築5年以内、LDK12畳以上、都市ガス、玄関収納、マルチメディアコンセント、敷金・礼金不要、保証会社利用可 | ||
| 備考 |
合計7.26万円(内訳:24Hサポート料(1年)2.2万円 室内抗菌処理代1.76万円 事務手数料1.1万円 鍵交換代2.2万円) 更新料 旧賃料1.00ヶ月分 二人入居可/ペット相談/事務所利用不可 普通借家 1年 保証会社利用必 初回:総賃料50% |
||
| 契約期間 | お問い合わせください。 | ||
|---|---|---|---|
| 入居可能時期 |
即入居可
|
||
| 初期費用 |
お問い合わせください。
|
||
| 住宅保険 | 1.5万円1年 | 現状空室状況 | お問い合わせください。 |
情報提供元:実用春日ホーム(株)春日町店
画像提供元:実用春日ホーム(株)春日町店
※各種情報と現状に差異がある場合は、現状優先となります。取り扱い不動産会社が複数ある場合は、住宅保険等、一部条件が異なる場合もございますので、取扱店舗までご確認下さいませ。
この物件にお問い合わせ
周辺施設
| コンビニ |
セブン‐イレブン 文京伝通院前店 セブン‐イレブン 小石川白山通り店 |
|||
|---|---|---|---|---|
| スーパー |
株式会社グルメシティ関東 小石川店 まいばすけっと 小石川2丁目店 |
|||
| ドラッグストア |
くみ薬局 グッド薬局 小石川店 |
|||
| 保育園 |
にじのいるか保育園・小石川 |
|||
|---|---|---|---|---|
| 幼稚園 |
福寿幼稚園 |
|||
| 小学校 |
文京区立柳町小学校 |
|||
| 中学校 |
淑徳SC 中等部 |
|||
※周辺情報は不動産会社から提供された情報ではなく、弊サービスで独自に収集した情報です。
担当者のオススメポイント!
人気の分譲★実質3LDK・広々70.35平米ファミリータイプ
小石川にございます築浅分譲マンション。 全室に収納があり、ウォークインクロゼットもございます。 また、これからの時期に重宝する床暖房・エアコン4基完備しています。 ペット飼育のご相談も可能です。
343レジデンス後楽園[4階]の取扱会社情報 1件
| 取扱会社(1) | 実用春日ホーム(株)春日町店 (情報提供媒体:SUUMO) | ||
|---|---|---|---|
| 住所 | 東京都文京区本郷4-16-5 | ||
| 電話番号 | 03-5805-0820 | 免許番号 | 東京都知事(6)第78096号 |
| 取引態様 | 仲介 | 物件管理番号 |
100469401275 ※お問い合わせの際には、担当者へ物件管理番号をお伝えください。 |
| 物件に関する情報 |
物件の所在地 : 東京都文京区小石川3 /
交通の利便 : 都営大江戸線/春日駅 歩12分、東京メトロ丸ノ内線/後楽園駅 歩11分、都営三田線/白山駅 歩16分 /
面積 : 70.35m² /
築年月 : 2024年08月 /
賃料 : 35.8万円 /
管理費又は共益費等 : 2.0万円 /
礼金等 : 無料 /
敷金 : 無料、保証金等 : -、 償却、敷引 : - /
住宅総合保険等の損害保険料 : 1.5万円1年 /
その他 : 合計7.26万円(内訳:24Hサポート料(1年)2.2万円 室内抗菌処理代1.76万円 事務手数料1.1万円 鍵交換代2.2万円)
更新料 旧賃料1.00ヶ月分
二人入居可/ペット相談/事務所利用不可
普通借家 1年
保証会社利用必 初回:総賃料50%
/ 駐車場 : 無
人気の分譲★実質3LDK・広々70.35平米ファミリータイプ
小石川にございます築浅分譲マンション。 全室に収納があり、ウォークインクロゼットもございます。 また、これからの時期に重宝する床暖房・エアコン4基完備しています。 ペット飼育のご相談も可能です。 |
||
| 所属団体 |
(公社)東京都宅地建物取引業協会会員 (公社)首都圏不動産公正取引協議会加盟 |
||

