東京都文京区白山4の賃貸マンション
情報公開日:2025/10/31(残り15日)
次回更新日は2025/11/08
物件画像
画像提供元:シンクロ(株)
この物件のタグ
この物件にお問い合わせ
東京都文京区白山4の賃貸マンションの物件情報
| 賃料/管理費等 |
28.5万円(管理費等 1.5万円)
|
||
|---|---|---|---|
| 敷金 | 28.5万円 | 礼金 | 無料 |
| 種別/構造 | マンション/RC | 築年月 | 2018年02月 |
| 所在地 |
東京都文京区白山4
|
||
| 主要交通機関 |
都営三田線/白山駅 歩8分 都営三田線/千石駅 歩7分 東京メトロ南北線/本駒込駅 歩11分 |
||
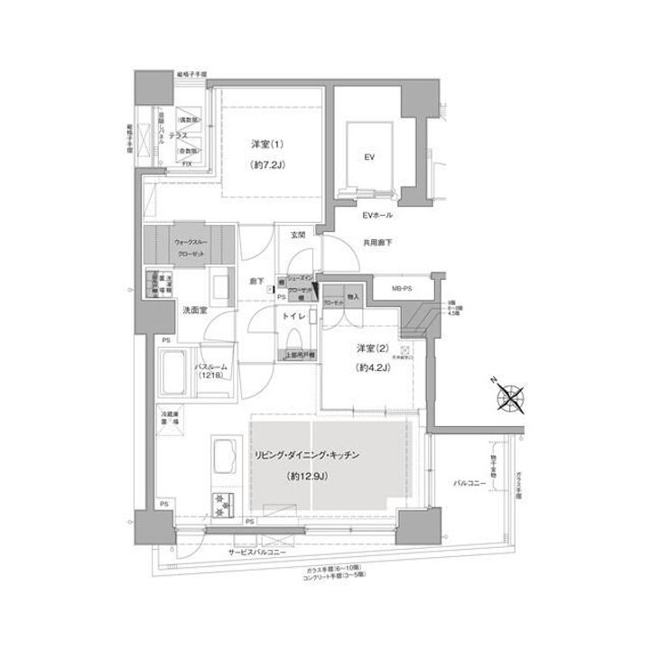
| 間取り | 2LDK | 面積 | 56.67m² |
| 間取り詳細 | 洋7.2 洋4.2 LDK12.9 | 方位 | 南東 |
| 階数/部屋番号 | 2階/地上10階建 | 駐車場 | 無 |
| 特徴 |
|
||
| 設備/条件 | バストイレ別、バルコニー、エアコン、ガスコンロ対応、クロゼット、フローリング、シャワー付洗面台、TVインターホン、浴室乾燥機、オートロック、室内洗濯置、シューズボックス、システムキッチン、南向き、追焚機能浴室、角住戸、温水洗浄便座、脱衣所、エレベーター、洗面所独立、洗面化粧台、駐輪場、宅配ボックス、CATV、礼金不要、2面採光、BS・CS、3口以上コンロ、対面式キッチン、防犯カメラ、オートバス、グリル付、全居室洋室、保証人不要、仲介手数料不要、敷金1ヶ月、二人入居相談、全居室フローリング、2沿線利用可、エアコン2台、ディンプルキー、CS、ネット使用料不要、床暖房、食器洗乾燥機、ダブルロックキー、24時間換気システム、複層ガラス、耐震構造、3駅以上利用可、駅徒歩10分以内、東南向き、都市ガス、南面バルコニー、ウォークスルークロゼット、シューズWIC、BS、保証会社利用可、IT重説 対応物件、初期費用カード決済可 | ||
| 備考 |
巡回管理/◆シンクロの宣言◆ 1.望まない仲介料以外の費用を直接請求致しません※24時間サポ、除菌消臭、事務手等 2.市場の物件は出し惜しみしません※近い物件だけの紹介や、自社物件のゴリ押し等 3.他社様の広告物件も空いていれば同条件以上でご紹介可※お気軽にご相談下さい 4.水曜日も営業中※年末年始、特別休暇除く 5.内見は車にてご案内※電車や徒歩でも可 6.初期費用分割払い可※審査あり、クレカ払い可 合計3.3万円(内訳:鍵交換代3.3万円) 更新料 新賃料1.00ヶ月分 二人入居可 普通借家 2年 保証会社利用必 保証料:賃料等50%(最低1.5万)、月次:賃料等1%(更新料無)、口座振替手数料借 |
||
| 契約期間 | お問い合わせください。 | ||
|---|---|---|---|
| 入居可能時期 |
お問い合わせください。
|
||
| 初期費用 |
お問い合わせください。
|
||
| 住宅保険 | 1.66万円2年 | 現状空室状況 | お問い合わせください。 |
情報提供元:シンクロ(株)
画像提供元:シンクロ(株)
※各種情報と現状に差異がある場合は、現状優先となります。取り扱い不動産会社が複数ある場合は、住宅保険等、一部条件が異なる場合もございますので、取扱店舗までご確認下さいませ。
この物件にお問い合わせ
周辺施設
| コンビニ |
ローソン 文京白山五丁目店 セブンイレブン 東洋大学白山キャンパス店 |
|||
|---|---|---|---|---|
| スーパー |
株式会社三徳 白山店 マルエツプチ千石店 |
|||
| ドラッグストア |
くすりの福太郎 白山店 くすりの福太郎 白山店調剤 |
|||
| 保育園 |
文京区立 千石保育園 |
|||
|---|---|---|---|---|
| 幼稚園 |
彰栄学園彰栄幼稚園 |
|||
| 小学校 |
文京区立明化小学校 |
|||
| 中学校 |
京華学園京華中学校 |
|||
※周辺情報は不動産会社から提供された情報ではなく、弊サービスで独自に収集した情報です。
担当者のオススメポイント!
シンクロは【最短5秒】でお返事!/『当部屋は”仲介料0円”』
賃貸物件は“1点もの”!それだけに物件検索と等しく【業者選び】が大切です!物件の強みも弱点も正直に、シンクロは無理なご提案をしません。焦らず納得できる選択をご一緒に!「空室確認はおヘヤ探しの第一歩!」
東京都文京区白山4の賃貸マンションの取扱会社情報 1件
| 取扱会社(1) | シンクロ(株) (情報提供媒体:SUUMO) | ||
|---|---|---|---|
| 住所 | 東京都豊島区南池袋2-10-5 中丸ビル201 | ||
| 電話番号 | 03-5985-4345 | 免許番号 | 東京都知事(1)第109538号 |
| 取引態様 | 仲介 | 物件管理番号 |
100467154978 ※お問い合わせの際には、担当者へ物件管理番号をお伝えください。 |
| 物件に関する情報 |
物件の所在地 : 東京都文京区白山4 /
交通の利便 : 都営三田線/白山駅 歩8分、都営三田線/千石駅 歩7分、東京メトロ南北線/本駒込駅 歩11分 /
面積 : 56.67m² /
築年月 : 2018年02月 /
賃料 : 28.5万円 /
管理費又は共益費等 : 1.5万円 /
礼金等 : 無料 /
敷金 : 1ヶ月、保証金等 : -、 償却、敷引 : - /
住宅総合保険等の損害保険料 : 1.66万円2年 /
その他 : 巡回管理/◆シンクロの宣言◆ 1.望まない仲介料以外の費用を直接請求致しません※24時間サポ、除菌消臭、事務手等 2.市場の物件は出し惜しみしません※近い物件だけの紹介や、自社物件のゴリ押し等 3.他社様の広告物件も空いていれば同条件以上でご紹介可※お気軽にご相談下さい 4.水曜日も営業中※年末年始、特別休暇除く 5.内見は車にてご案内※電車や徒歩でも可 6.初期費用分割払い可※審査あり、クレカ払い可
合計3.3万円(内訳:鍵交換代3.3万円)
更新料 新賃料1.00ヶ月分
二人入居可
普通借家 2年
保証会社利用必 保証料:賃料等50%(最低1.5万)、月次:賃料等1%(更新料無)、口座振替手数料借
/ 駐車場 : 無
シンクロは【最短5秒】でお返事!/『当部屋は”仲介料0円”』
賃貸物件は“1点もの”!それだけに物件検索と等しく【業者選び】が大切です!物件の強みも弱点も正直に、シンクロは無理なご提案をしません。焦らず納得できる選択をご一緒に!「空室確認はおヘヤ探しの第一歩!」 |
||
| 所属団体 |
(公社)全日本不動産協会東京都本部会員 (公社)首都圏不動産公正取引協議会加盟 |
||

