[一戸建] 東京都世田谷区玉川台2 の賃貸【東京都 / 世田谷区】
情報公開日:2025/10/24(残り15日)
次回更新日は情報公開日より15日以内
物件画像
画像提供元:(株)AX8高級賃貸部
この物件のタグ
この物件にお問い合わせ
[一戸建] 東京都世田谷区玉川台2 の賃貸【東京都 / 世田谷区】の物件情報
| 賃料/管理費等 |
32.0万円(管理費等 -)
|
||
|---|---|---|---|
| 敷金 | 64.0万円 | 礼金 | 32.0万円 |
| 種別/構造 | 一戸建/木造 | 築年月 | 2002年04月 |
| 所在地 |
東京都世田谷区玉川台2
|
||
| 主要交通機関 |
東急田園都市線/用賀駅 歩5分 東急田園都市線/二子玉川駅 歩22分 東急田園都市線/桜新町駅 歩21分 |
||
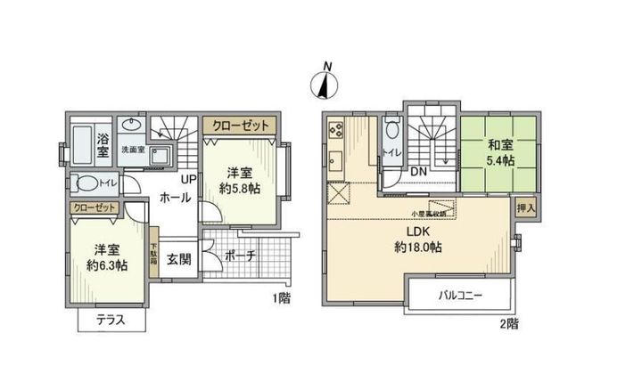
| 間取り | 3LDK | 面積 | 94.5m² |
| 間取り詳細 | 和5.4 洋6.3 洋5.8 LDK18 | 方位 | 南 |
| 階数/部屋番号 | 1-2階/地上2階建 | 駐車場 | 付無料 |
| 特徴 |
|
||
| 設備/条件 | バストイレ別、バルコニー、エアコン、クロゼット、フローリング、TVインターホン、浴室乾燥機、室内洗濯置、陽当り良好、シューズボックス、システムキッチン、南向き、追焚機能浴室、温水洗浄便座、脱衣所、洗面所独立、洗面化粧台、駐輪場、押入、CATV、外壁タイル張り、即入居可、2面採光、BS・CS、3口以上コンロ、駐車場1台無料、オートバス、グリル付、保証人不要、二人入居相談、バイク置場、3面採光、仲手0.55ヶ月、CS、テラス、キッチンに窓、眺望良好、24時間換気システム、楽器相談、トイレ2ヶ所、クロゼット2ヶ所、クロゼット3ヶ所、耐震構造、駅徒歩10分以内、LDK18畳以上、都市ガス、洗面所にドア、玄関収納、BS、保証会社利用可、LGBTフレンドリー、初期費用カード決済可、通風良好 | ||
| 備考 |
■リロサポ:1500円 ■除菌施工料:19800円 単身者可/二人入居可/子供可/楽器相談 定期借家 5年 保証会社利用必 初回保証料:月額総賃料の100%~ 月次保証料:総賃料2% |
||
| 契約期間 | お問い合わせください。 | ||
|---|---|---|---|
| 入居可能時期 |
即入居可
|
||
| 初期費用 |
お問い合わせください。
|
||
| 住宅保険 | 2.5万円2年 | 現状空室状況 | お問い合わせください。 |
情報提供元:(株)AX8高級賃貸部
画像提供元:(株)AX8高級賃貸部
※各種情報と現状に差異がある場合は、現状優先となります。取り扱い不動産会社が複数ある場合は、住宅保険等、一部条件が異なる場合もございますので、取扱店舗までご確認下さいませ。
この物件にお問い合わせ
周辺施設
| コンビニ |
ローソン 世田谷瀬田五丁目店 ファミリーマート 玉川台二丁目店 |
|||
|---|---|---|---|---|
| スーパー |
オーケー 新用賀店 オーケー用賀駅前店 |
|||
| ドラッグストア |
あいりす薬局 菊池薬局 |
|||
| 保育園 |
用賀なのはな保育園分園さくらの木 |
|||
|---|---|---|---|---|
| 幼稚園 |
慈眼寺瀬田幼稚園 |
|||
| 小学校 |
世田谷区立京西小学校 |
|||
| 中学校 |
世田谷区立瀬田中学校 |
|||
※周辺情報は不動産会社から提供された情報ではなく、弊サービスで独自に収集した情報です。
担当者のオススメポイント!
☆仲介手数料無料対象です!☆高級賃貸は弊社まで☆
★現地でのお待ち合わせ・オンラインでのご対応も可能★他の気になる物件も一括でご案内可能!最速のレスポンスで対応致します!高級賃貸は☆AX8-アクシエイト-☆☆へ!
[一戸建] 東京都世田谷区玉川台2 の賃貸【東京都 / 世田谷区】の取扱会社情報 1件
| 取扱会社(1) | (株)AX8高級賃貸部 (情報提供媒体:SUUMO) | ||
|---|---|---|---|
| 住所 | 東京都千代田区神田神保町2-7ー2武蔵屋ビル5階 | ||
| 電話番号 | 03-6811-7344 | 免許番号 | 東京都知事(2)第101501号 |
| 取引態様 | 仲介 | 物件管理番号 |
100452441282 ※お問い合わせの際には、担当者へ物件管理番号をお伝えください。 |
| 物件に関する情報 |
物件の所在地 : 東京都世田谷区玉川台2 /
交通の利便 : 東急田園都市線/用賀駅 歩5分、東急田園都市線/二子玉川駅 歩22分、東急田園都市線/桜新町駅 歩21分 /
面積 : 94.5m² /
築年月 : 2002年04月 /
賃料 : 32.0万円 /
管理費又は共益費等 : - /
礼金等 : 1ヶ月 /
敷金 : 2ヶ月、保証金等 : -、 償却、敷引 : - /
住宅総合保険等の損害保険料 : 2.5万円2年 /
その他 : ■リロサポ:1500円 ■除菌施工料:19800円
単身者可/二人入居可/子供可/楽器相談
定期借家 5年
保証会社利用必 初回保証料:月額総賃料の100%~ 月次保証料:総賃料2%
/ 駐車場 : 付無料
☆仲介手数料無料対象です!☆高級賃貸は弊社まで☆
★現地でのお待ち合わせ・オンラインでのご対応も可能★他の気になる物件も一括でご案内可能!最速のレスポンスで対応致します!高級賃貸は☆AX8-アクシエイト-☆☆へ! |
||
| 所属団体 |
(公社)東京都宅地建物取引業協会会員 (公社)首都圏不動産公正取引協議会加盟 |
||

