GENOVIA神戸湊川公園[5階]
情報公開日:2026/04/16(残り15日)
次回更新日は情報公開日より15日以内
物件画像
画像提供元:株式会社プラン・ドゥ・シー/SumoSumoJR尼崎駅前店
この物件のタグ
GENOVIA神戸湊川公園[5階]の物件情報
| 賃料/管理費等 |
6.53万円(管理費等 4,000円)
|
||
|---|---|---|---|
| 敷金 | 無料 | 礼金 | 無料 |
| 種別/構造 | マンション/RC | 築年月 | 築1年以内(2025年09月) |
| 所在地 |
兵庫県神戸市兵庫区福原町
|
||
| 主要交通機関 |
神戸市西神山手線/湊川公園 徒歩2分 神戸高速鉄道東西線/新開地 徒歩8分 東海道本線/神戸 徒歩14分 |
||
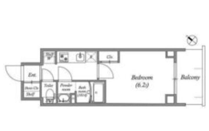
| 間取り | 1K | 面積 | 22.2m² |
| 間取り詳細 | - | 方位 | 南 |
| 階数/部屋番号 | 5階/地上15階建 | 駐車場 | 近隣 17,000円 物件からの距離 100m |
| 特徴 |
|
||
| 設備/条件 | エアコン、バス・トイレ別、浴室乾燥機、独立洗面台、温水洗浄便座、即入居可、保証人不要・代行、ペット相談、免震・耐震・制震、IT重説 対応物件、BSアンテナ、CSアンテナ、CATV、インターネット対応、光ファイバー、システムキッチン、ガスコンロ、コンロ二口以上、2階以上の物件、フローリング、室内洗濯機置場、バルコニー、エレベーター、外観タイル張り、駐車場あり、駐輪場あり、都市ガス、オートロック、TVドアホン | ||
| 備考 |
室内設備は洗面所独立・浴室乾燥機などが揃っており、とても充実しています。セキュリティ面は、TVインターホン・オートロックなど充実しているので、防犯対策もばっちりです。収納はシューズボックス・クロゼットなどが備え付けられているので、衣類や日用品の収納に重宝します。夏も冬もお部屋で快適に過ごすためには欠かせないエアコン付きです。新しい日々を送るにふさわしい、きれいな室内です。見た目もキレイで機能的なお部屋。ご覧ください、令和8年5月に入居可能の物件が多数ございます。地上15階建ての物件です。こちらの物件はマンションです。2口コンロ付きの物件は短い時間で一気に料理ができるので、一人暮らしの人にもおすすめです。 スマサポコンシェル入会金:5,500円 更新料:無し ※物件に関する備考は各社異なりますのでご確認のうえお問い合わせください。 |
||
| 契約期間 | 2年 | ||
|---|---|---|---|
| 入居可能時期 |
即時
|
||
| 初期費用 |
お問い合わせください。
|
||
| 住宅保険 | 22,000円(2年) | 現状空室状況 | 空家 |
情報提供元:株式会社プラン・ドゥ・シー/SumoSumoJR尼崎駅前店
画像提供元:株式会社プラン・ドゥ・シー/SumoSumoJR尼崎駅前店
※各種情報と現状に差異がある場合は、現状優先となります。取り扱い不動産会社が複数ある場合は、住宅保険等、一部条件が異なる場合もございますので、取扱店舗までご確認下さいませ。
この物件にお問い合わせ
周辺施設
| コンビニ |
ファミリーマート 柳筋北店 ファミリーマート 湊川公園南店 |
|||
|---|---|---|---|---|
| スーパー |
サンディ 湊川店 株式会社ダイエー 湊川店 |
|||
| ドラッグストア |
オーダー薬局湊川店 スギ薬局 湊川店 |
|||
| 保育園 |
わんぱくキッズ |
|||
|---|---|---|---|---|
| 幼稚園 |
みなと幼稚園 |
|||
| 小学校 |
神戸市立会下山小学校 |
|||
| 中学校 |
神戸市立湊川中学校 |
|||
※周辺情報は不動産会社から提供された情報ではなく、弊サービスで独自に収集した情報です。
担当者のオススメポイント!
セキュリティ面は、TVインターホン・オートロックなどを備え付けているので安心して暮らせます。収納はクロゼット・シューズボックスなどが備え付けられているので、衣類や日用品の収納に重宝します。室内設備は洗面所独立・浴室乾燥機などが揃っているので、快適に過ごしやすいお部屋になります。パソコンを快適に使いたい方に、光回線を繋いでいる物件です。徒歩2分に駅がある物件です。1人暮らしにおすすめなのがキッチン付きの物件です。近くに駐車場がありますので、駐車スペースの心配は要りません。スイッチ一つで温度管理できるエアコン付きのマンション。ペットに対する愛情が感じられるペット飼育可能物件です。造りとデザインに関して、自信をもって情報を提供できるマンションです。
GENOVIA神戸湊川公園[5階]の取扱会社情報 14件
| 取扱会社(1) | 初期費用分割払い対応株式会社プラン・ドゥ・シー SumoSumoJR尼崎駅前店 | ||
|---|---|---|---|
| 住所 | 兵庫県尼崎市潮江1-7-1 | ||
| 電話番号 | 06-4400-6315 | 免許番号 | 国土交通大臣免許(2)第9550号 |
| 取引態様 | 仲介 | 物件管理番号 |
553470001625426 ※お問い合わせの際には、担当者へ物件管理番号をお伝えください。 |
| 物件に関する情報 |
物件の所在地 : 兵庫県神戸市兵庫区福原町 /
交通の利便 : 神戸市西神山手線/湊川公園 徒歩2分、神戸高速鉄道東西線/新開地 徒歩8分、東海道本線/神戸 徒歩14分 /
面積 : 22.2m² /
築年月 : 築1年以内(2025年09月) /
賃料 : 6.53万円 /
管理費又は共益費等 : 4,000円 /
礼金等 : 無料 /
敷金 : 無料、保証金等 : -、 償却、敷引 : - /
住宅総合保険等の損害保険料 : 22,000円(2年) /
その他 : 室内設備は洗面所独立・浴室乾燥機などが揃っており、とても充実しています。セキュリティ面は、TVインターホン・オートロックなど充実しているので、防犯対策もばっちりです。収納はシューズボックス・クロゼットなどが備え付けられているので、衣類や日用品の収納に重宝します。夏も冬もお部屋で快適に過ごすためには欠かせないエアコン付きです。新しい日々を送るにふさわしい、きれいな室内です。見た目もキレイで機能的なお部屋。ご覧ください、令和8年5月に入居可能の物件が多数ございます。地上15階建ての物件です。こちらの物件はマンションです。2口コンロ付きの物件は短い時間で一気に料理ができるので、一人暮らしの人にもおすすめです。
スマサポコンシェル入会金:5,500円
更新料:無し
/ 駐車場 : 近隣
17,000円
物件からの距離 100m
セキュリティ面は、TVインターホン・オートロックなどを備え付けているので安心して暮らせます。収納はクロゼット・シューズボックスなどが備え付けられているので、衣類や日用品の収納に重宝します。室内設備は洗面所独立・浴室乾燥機などが揃っているので、快適に過ごしやすいお部屋になります。パソコンを快適に使いたい方に、光回線を繋いでいる物件です。徒歩2分に駅がある物件です。1人暮らしにおすすめなのがキッチン付きの物件です。近くに駐車場がありますので、駐車スペースの心配は要りません。スイッチ一つで温度管理できるエアコン付きのマンション。ペットに対する愛情が感じられるペット飼育可能物件です。造りとデザインに関して、自信をもって情報を提供できるマンションです。
|
||
| 所属団体 |
(公社)全日本不動産協会 公益社団法人近畿地区不動産公正取引協議会 (公社)不動産保証協会 |
||
| 取扱会社(2) | 初期費用分割払い対応株式会社SumoSumo大阪 SumoSumo心斎橋店 | ||
|---|---|---|---|
| 住所 | 大阪府大阪市中央区南船場3-3-23 | ||
| 電話番号 | 06-4400-6315 | 免許番号 | 大阪府知事免許(1)第62697号 |
| 取引態様 | 仲介 | 物件管理番号 |
553470001625413 ※お問い合わせの際には、担当者へ物件管理番号をお伝えください。 |
| 物件に関する情報 |
物件の所在地 : 兵庫県神戸市兵庫区福原町 /
交通の利便 : 神戸市西神山手線/湊川公園 徒歩2分、神戸高速鉄道東西線/新開地 徒歩8分、東海道本線/神戸 徒歩14分 /
面積 : 22.2m² /
築年月 : 築1年以内(2025年09月) /
賃料 : 6.53万円 /
管理費又は共益費等 : 4,000円 /
礼金等 : 無料 /
敷金 : 無料、保証金等 : -、 償却、敷引 : - /
住宅総合保険等の損害保険料 : 22,000円(2年) /
その他 : 室内設備は洗面所独立・浴室乾燥機などが揃っており、とても充実しています。セキュリティ面は、TVインターホン・オートロックなど充実しているので、防犯対策もばっちりです。収納はシューズボックス・クロゼットなどが備え付けられているので、衣類や日用品の収納に重宝します。夏も冬もお部屋で快適に過ごすためには欠かせないエアコン付きです。新しい日々を送るにふさわしい、きれいな室内です。見た目もキレイで機能的なお部屋。ご覧ください、令和8年5月に入居可能の物件が多数ございます。地上15階建ての物件です。こちらの物件はマンションです。2口コンロ付きの物件は短い時間で一気に料理ができるので、一人暮らしの人にもおすすめです。
スマサポコンシェル入会金:5,500円
更新料:無し
/ 駐車場 : 近隣
17,000円
物件からの距離 100m
セキュリティ面は、TVインターホン・オートロックなどを備え付けているので安心して暮らせます。収納はクロゼット・シューズボックスなどが備え付けられているので、衣類や日用品の収納に重宝します。室内設備は洗面所独立・浴室乾燥機などが揃っているので、快適に過ごしやすいお部屋になります。パソコンを快適に使いたい方に、光回線を繋いでいる物件です。徒歩2分に駅がある物件です。1人暮らしにおすすめなのがキッチン付きの物件です。近くに駐車場がありますので、駐車スペースの心配は要りません。スイッチ一つで温度管理できるエアコン付きのマンション。ペットに対する愛情が感じられるペット飼育可能物件です。造りとデザインに関して、自信をもって情報を提供できるマンションです。
|
||
| 所属団体 |
(公社)全日本不動産協会 公益社団法人近畿地区不動産公正取引協議会 (公社)不動産保証協会 |
||
| 取扱会社(3) | センチュリー21(株)リライフ神戸駅前店 (情報提供媒体:SUUMO) | ||
|---|---|---|---|
| 住所 | 兵庫県神戸市中央区相生町4-4-20 原田ビル2階 | ||
| 電話番号 | 078-366-0114 | 免許番号 | 兵庫県知事(3)第11692号 |
| 取引態様 | 仲介 | 物件管理番号 |
100495705396 ※お問い合わせの際には、担当者へ物件管理番号をお伝えください。 |
| 物件に関する情報 |
物件の所在地 : 兵庫県神戸市兵庫区福原町 /
交通の利便 : 地下鉄西神・山手線/湊川公園駅 歩2分、神戸電鉄有馬線/新開地駅 歩10分、JR東海道本線/神戸駅 歩10分 /
面積 : 22.2m² /
築年月 : 築1年以内(2025年10月) /
賃料 : 6.53万円 /
管理費又は共益費等 : 4,000円 /
礼金等 : 無料 /
敷金 : 無料、保証金等 : -、 償却、敷引 : - /
住宅総合保険等の損害保険料 : 2.2万円2年 /
その他 : ダイエー湊川店まで244m/ファミリーマート柳筋北店まで99m/巡回管理/宅配ボックス/カメラ付きインターホン/防犯カメラ/エレベーター2基/2口コンロ/温水洗浄便座/シャンプードレッサー/室内洗濯パン/浴室乾燥機/24時間換気/クローゼット/シューズボックス/都市ガス/自転車置き場/バイク置き場/オートロック/エアコン
スマサポコンシェル月額1320円
単身者可/ペット相談/楽器相談/事務所利用相談/ルームシェア相談
普通借家 2年
保証会社利用必 ルームバンクインシュア 初回保証料総賃料30% 更新料年間2万
/ 駐車場 : 近隣駐車場
近隣100m20000円
スーパー、商店街あり!初期費用クレジットカード利用可能!
駅近・スーパーコンビニも近い♪オートロック付・防犯カメラ付きで安心です★ペットOK!当社であれば仲介手数料半額!お部屋探しはぜひセンチュリー21リライフで! |
||
| 所属団体 |
(公社)全日本不動産協会兵庫県本部会員 (公社)近畿地区不動産公正取引協議会加盟 |
||
| 取扱会社(4) | センチュリー21 (株)リライフ神戸三宮店 (情報提供媒体:SUUMO) | ||
|---|---|---|---|
| 住所 | 兵庫県神戸市中央区小野柄通5-1-13 IPSXMAGNET201 | ||
| 電話番号 | 078-261-0114 | 免許番号 | 兵庫県知事(3)第11692号 |
| 取引態様 | 仲介 | 物件管理番号 |
100497160405 ※お問い合わせの際には、担当者へ物件管理番号をお伝えください。 |
| 物件に関する情報 |
物件の所在地 : 兵庫県神戸市兵庫区福原町 /
交通の利便 : 地下鉄西神・山手線/湊川公園駅 歩2分、神戸電鉄有馬線/新開地駅 歩10分、JR東海道本線/神戸駅 歩10分 /
面積 : 22.2m² /
築年月 : 築1年以内(2025年10月) /
賃料 : 6.53万円 /
管理費又は共益費等 : 4,000円 /
礼金等 : 無料 /
敷金 : 無料、保証金等 : -、 償却、敷引 : - /
住宅総合保険等の損害保険料 : 2.2万円2年 /
その他 : ダイエー湊川店まで244m/ファミリーマート柳筋北店まで99m/巡回管理/宅配ボックス/カメラ付きインターホン/防犯カメラ/エレベーター2基/2口コンロ/温水洗浄便座/シャンプードレッサー/室内洗濯パン/浴室乾燥機/24時間換気/クローゼット/シューズボックス/都市ガス/自転車置き場/バイク置き場/オートロック/エアコン
スマサポコンシェル月額1320円
単身者可/ペット相談/楽器相談/事務所利用相談/ルームシェア相談
普通借家 2年
保証会社利用必 ルームバンクインシュア 初回保証料総賃料30% 更新料年間2万
/ 駐車場 : 近隣駐車場
近隣100m20000円
スーパー、商店街あり!初期費用クレジットカード利用可能!
駅近・スーパーコンビニも近い♪オートロック付・防犯カメラ付きで安心です★ペットOK!当社であれば仲介手数料半額!お部屋探しはぜひセンチュリー21リライフで! |
||
| 所属団体 |
(公社)全日本不動産協会兵庫県本部会員 (公社)近畿地区不動産公正取引協議会加盟 |
||
| 取扱会社(5) | 初期費用分割払い対応株式会社プラン・ドゥ・シー SumoSumo元町店 | ||
|---|---|---|---|
| 住所 | 兵庫県神戸市中央区北長狭通3-3-1 | ||
| 電話番号 | 078-600-0540 | 免許番号 | 国土交通大臣免許(2)第9550号 |
| 取引態様 | 仲介 | 物件管理番号 |
553470001625417 ※お問い合わせの際には、担当者へ物件管理番号をお伝えください。 |
| 物件に関する情報 |
物件の所在地 : 兵庫県神戸市兵庫区福原町 /
交通の利便 : 神戸市西神山手線/湊川公園 徒歩2分、神戸高速鉄道東西線/新開地 徒歩8分、東海道本線/神戸 徒歩14分 /
面積 : 22.2m² /
築年月 : 築1年以内(2025年09月) /
賃料 : 6.53万円 /
管理費又は共益費等 : 4,000円 /
礼金等 : 無料 /
敷金 : 無料、保証金等 : -、 償却、敷引 : - /
住宅総合保険等の損害保険料 : 22,000円(2年) /
その他 : 室内設備は洗面所独立・浴室乾燥機などが揃っており、とても充実しています。セキュリティ面は、TVインターホン・オートロックなど充実しているので、防犯対策もばっちりです。収納はシューズボックス・クロゼットなどが備え付けられているので、衣類や日用品の収納に重宝します。夏も冬もお部屋で快適に過ごすためには欠かせないエアコン付きです。新しい日々を送るにふさわしい、きれいな室内です。見た目もキレイで機能的なお部屋。ご覧ください、令和8年5月に入居可能の物件が多数ございます。地上15階建ての物件です。こちらの物件はマンションです。2口コンロ付きの物件は短い時間で一気に料理ができるので、一人暮らしの人にもおすすめです。
スマサポコンシェル入会金:5,500円
更新料:無し
/ 駐車場 : 近隣
17,000円
物件からの距離 100m
セキュリティ面は、TVインターホン・オートロックなどを備え付けているので安心して暮らせます。収納はクロゼット・シューズボックスなどが備え付けられているので、衣類や日用品の収納に重宝します。室内設備は洗面所独立・浴室乾燥機などが揃っているので、快適に過ごしやすいお部屋になります。パソコンを快適に使いたい方に、光回線を繋いでいる物件です。徒歩2分に駅がある物件です。1人暮らしにおすすめなのがキッチン付きの物件です。近くに駐車場がありますので、駐車スペースの心配は要りません。スイッチ一つで温度管理できるエアコン付きのマンション。ペットに対する愛情が感じられるペット飼育可能物件です。造りとデザインに関して、自信をもって情報を提供できるマンションです。
|
||
| 所属団体 |
(公社)全日本不動産協会 公益社団法人近畿地区不動産公正取引協議会 (公社)不動産保証協会 |
||
| 取扱会社(6) | COCOLIV 三宮駅前店_UMANOホールディングス(株) (情報提供媒体:SUUMO) | ||
|---|---|---|---|
| 住所 | 兵庫県神戸市中央区布引町4-2-3 片山ビル4階 | ||
| 電話番号 | 078-977-7632 | 免許番号 | 兵庫県知事(1)第12631号 |
| 取引態様 | 仲介 | 物件管理番号 |
100492654370 ※お問い合わせの際には、担当者へ物件管理番号をお伝えください。 |
| 物件に関する情報 |
物件の所在地 : 兵庫県神戸市兵庫区福原町 /
交通の利便 : 地下鉄西神・山手線/湊川公園駅 歩2分、山陽電鉄本線/新開地駅 歩9分、JR東海道本線/神戸駅 歩14分 /
面積 : 22.2m² /
築年月 : 築1年以内(2025年09月) /
賃料 : 6.53万円 /
管理費又は共益費等 : 4,000円 /
礼金等 : 無料 /
敷金 : 無料、保証金等 : -、 償却、敷引 : - /
住宅総合保険等の損害保険料 : 2.2万円2年 /
その他 : インターネットで募集中の物件は全て弊社でご紹介可能です!オンライン内見、オンライン接客、現地集合、送迎も可能!来店予約はメールよりもおの方がスムーズな対応が可能です。【:】 までおください!※当日のご内見予約も可能!是非、COCOLIV三宮駅前店へお越しください!
合計3.63万円(内訳:スマサポコンシェル入会金0.55万円 鍵交換代3.08万円)
スマサポコンシェル 月額1320円
ペット相談
普通借家 2年
保証会社利用可 詳細はお問い合わせ下さい。
/ 駐車場 : 近隣駐車場
近隣100m18700円
☆4.5月ご成約のお客様仲介手数料無料キャンペーン実施中☆
COCOLIV三宮駅前店ではネット掲載中物件エリアも問わずすべてご紹介可能です!オンライン内見、オンライン接客、現地集合での案内なども可能です!【あなたの不動産コンシェルジュ】 |
||
| 所属団体 |
(一社)兵庫県宅地建物取引業協会会員 (公社)近畿地区不動産公正取引協議会加盟 |
||
| 取扱会社(7) | ホームメイトFC三宮店(有)アパマン住宅 (情報提供媒体:SUUMO) | ||
|---|---|---|---|
| 住所 | 兵庫県神戸市中央区三宮町1-8-1 さんプラザ112 | ||
| 電話番号 | 078-334-2960 | 免許番号 | 兵庫県知事(8)第9090号 |
| 取引態様 | 仲介 | 物件管理番号 |
100495992361 ※お問い合わせの際には、担当者へ物件管理番号をお伝えください。 |
| 物件に関する情報 |
物件の所在地 : 兵庫県神戸市兵庫区福原町 /
交通の利便 : 地下鉄西神・山手線/湊川公園駅 歩4分、神戸高速鉄道東西線/高速神戸駅 歩9分、神戸電鉄有馬線/湊川駅 歩5分 /
面積 : 22.2m² /
築年月 : 築1年以内(2025年09月) /
賃料 : 6.53万円 /
管理費又は共益費等 : 4,000円 /
礼金等 : 無料 /
敷金 : 無料、保証金等 : -、 償却、敷引 : - /
住宅総合保険等の損害保険料 : 2.2万円2年 /
その他 : 合計0.55万円(内訳:スマサポコンシェル入会金0.55万円)
スマサポコンシェル 月額1320円
ペット相談
普通借家 2年
/ 駐車場 : 無
新築 敷金礼金0円 小型犬または猫飼育可 ネット無料
保証会社加入要 短期解約違約金あり 退去時クリーニング費用33000円 小型犬or猫どちらか一匹まで、飼育の場合敷金要(家賃+共益費の1ヶ月分) 偶数と奇数階でカラーパターンが異なります |
||
| 所属団体 |
(一社)兵庫県宅地建物取引業協会会員 (公社)近畿地区不動産公正取引協議会加盟 |
||
| 取扱会社(8) | 初期費用分割払い対応株式会社プラン・ドゥ・シー SumoSumo渋谷店 | ||
|---|---|---|---|
| 住所 | 東京都渋谷区桜丘町16-9 DK渋谷ビル4F | ||
| 電話番号 | 03-6833-3971 | 免許番号 | 国土交通大臣免許(2)第9550号 |
| 取引態様 | 仲介 | 物件管理番号 |
553470001625411 ※お問い合わせの際には、担当者へ物件管理番号をお伝えください。 |
| 物件に関する情報 |
物件の所在地 : 兵庫県神戸市兵庫区福原町 /
交通の利便 : 神戸市西神山手線/湊川公園 徒歩2分、神戸高速鉄道東西線/新開地 徒歩8分、東海道本線/神戸 徒歩14分 /
面積 : 22.2m² /
築年月 : 築1年以内(2025年09月) /
賃料 : 6.53万円 /
管理費又は共益費等 : 4,000円 /
礼金等 : 無料 /
敷金 : 無料、保証金等 : -、 償却、敷引 : - /
住宅総合保険等の損害保険料 : 22,000円(2年) /
その他 : 室内設備は洗面所独立・浴室乾燥機などが揃っており、とても充実しています。セキュリティ面は、TVインターホン・オートロックなど充実しているので、防犯対策もばっちりです。収納はシューズボックス・クロゼットなどが備え付けられているので、衣類や日用品の収納に重宝します。夏も冬もお部屋で快適に過ごすためには欠かせないエアコン付きです。新しい日々を送るにふさわしい、きれいな室内です。見た目もキレイで機能的なお部屋。ご覧ください、令和8年5月に入居可能の物件が多数ございます。地上15階建ての物件です。こちらの物件はマンションです。2口コンロ付きの物件は短い時間で一気に料理ができるので、一人暮らしの人にもおすすめです。
スマサポコンシェル入会金:5,500円
更新料:無し
/ 駐車場 : 近隣
17,000円
物件からの距離 100m
セキュリティ面は、TVインターホン・オートロックなどを備え付けているので安心して暮らせます。収納はクロゼット・シューズボックスなどが備え付けられているので、衣類や日用品の収納に重宝します。室内設備は洗面所独立・浴室乾燥機などが揃っているので、快適に過ごしやすいお部屋になります。パソコンを快適に使いたい方に、光回線を繋いでいる物件です。徒歩2分に駅がある物件です。1人暮らしにおすすめなのがキッチン付きの物件です。近くに駐車場がありますので、駐車スペースの心配は要りません。スイッチ一つで温度管理できるエアコン付きのマンション。ペットに対する愛情が感じられるペット飼育可能物件です。造りとデザインに関して、自信をもって情報を提供できるマンションです。
|
||
| 所属団体 |
(公社)全日本不動産協会 (一社)不動産協会 公益社団法人首都圏不動産公正取引協議会 (公社)不動産保証協会 |
||
| 取扱会社(9) | いい部屋ネット大東建託リーシング(株)神戸店 (情報提供媒体:SUUMO) | ||
|---|---|---|---|
| 住所 | 兵庫県神戸市西区玉津町出合 200-2 | ||
| 電話番号 | 078-927-6060 | 免許番号 | 国土交通大臣(2)第9120号 |
| 取引態様 | 仲介 | 物件管理番号 |
100464600441 ※お問い合わせの際には、担当者へ物件管理番号をお伝えください。 |
| 物件に関する情報 |
物件の所在地 : 兵庫県神戸市兵庫区福原町 /
交通の利便 : JR東海道本線/神戸駅 歩14分、神戸電鉄有馬線/湊川駅 歩5分、地下鉄西神・山手線/大倉山駅 歩10分 /
面積 : 22.2m² /
築年月 : 築1年以内(2025年09月) /
賃料 : 6.53万円 /
管理費又は共益費等 : 4,000円 /
礼金等 : 無料 /
敷金 : 無料、保証金等 : -、 償却、敷引 : - /
住宅総合保険等の損害保険料 : 2.2万円2年 /
その他 : 解約予告2ヶ月前(月割)、入居者アプリ・スマサポコンシェル加入必須(法人契約は除く) 、1年未満の解約は家賃共益費合計の1ヶ月分の違約金要。引越会社指定あり:ファイン引っ越しサービス。ペット飼育時(小型犬・猫のどちらか1匹のみ):家賃共益費合計の1ヶ月要。更新事務手数料27500円/2年毎。
合計6.93万円(内訳:スマサポコンシェル入会金0.55万円 退去時RC代3.3万円 カギ代3.08万円)
スマサポコンシェル 1320円(月額)
ペット相談
保証会社利用必 初回保証料:総賃料30%、更新料20 000円/年、引落手数料:330円
/ 駐車場 : 無
お部屋さがしはいい部屋ネットの大東建託で!
スタッフ一同、お客様のご来店をこころよりお待ちしております! |
||
| 所属団体 |
(公財)日本賃貸住宅管理協会会員 (公社)首都圏不動産公正取引協議会加盟 |
||
| 取扱会社(10) | 初期費用分割払い対応株式会社プラン・ドゥ・シー SumoSumo兵庫店 | ||
|---|---|---|---|
| 住所 | 兵庫県神戸市兵庫区塚本通7-2-19 | ||
| 電話番号 | 078-600-0540 | 免許番号 | 国土交通大臣免許(2)第9550号 |
| 取引態様 | 仲介 | 物件管理番号 |
553470001625418 ※お問い合わせの際には、担当者へ物件管理番号をお伝えください。 |
| 物件に関する情報 |
物件の所在地 : 兵庫県神戸市兵庫区福原町 /
交通の利便 : 神戸市西神山手線/湊川公園 徒歩2分、神戸高速鉄道東西線/新開地 徒歩8分、東海道本線/神戸 徒歩14分 /
面積 : 22.2m² /
築年月 : 築1年以内(2025年09月) /
賃料 : 6.53万円 /
管理費又は共益費等 : 4,000円 /
礼金等 : 無料 /
敷金 : 無料、保証金等 : -、 償却、敷引 : - /
住宅総合保険等の損害保険料 : 22,000円(2年) /
その他 : 室内設備は洗面所独立・浴室乾燥機などが揃っており、とても充実しています。セキュリティ面は、TVインターホン・オートロックなど充実しているので、防犯対策もばっちりです。収納はシューズボックス・クロゼットなどが備え付けられているので、衣類や日用品の収納に重宝します。夏も冬もお部屋で快適に過ごすためには欠かせないエアコン付きです。新しい日々を送るにふさわしい、きれいな室内です。見た目もキレイで機能的なお部屋。ご覧ください、令和8年5月に入居可能の物件が多数ございます。地上15階建ての物件です。こちらの物件はマンションです。2口コンロ付きの物件は短い時間で一気に料理ができるので、一人暮らしの人にもおすすめです。
スマサポコンシェル入会金:5,500円
更新料:無し
/ 駐車場 : 近隣
17,000円
物件からの距離 100m
セキュリティ面は、TVインターホン・オートロックなどを備え付けているので安心して暮らせます。収納はクロゼット・シューズボックスなどが備え付けられているので、衣類や日用品の収納に重宝します。室内設備は洗面所独立・浴室乾燥機などが揃っているので、快適に過ごしやすいお部屋になります。パソコンを快適に使いたい方に、光回線を繋いでいる物件です。徒歩2分に駅がある物件です。1人暮らしにおすすめなのがキッチン付きの物件です。近くに駐車場がありますので、駐車スペースの心配は要りません。スイッチ一つで温度管理できるエアコン付きのマンション。ペットに対する愛情が感じられるペット飼育可能物件です。造りとデザインに関して、自信をもって情報を提供できるマンションです。
|
||
| 所属団体 |
(公社)全日本不動産協会 公益社団法人近畿地区不動産公正取引協議会 (公社)不動産保証協会 |
||
| 取扱会社(11) | いい部屋ネット大東建託リーシング(株)三宮店 (情報提供媒体:SUUMO) | ||
|---|---|---|---|
| 住所 | 兵庫県神戸市中央区北長狭通1-2-14 ポートビル201 | ||
| 電話番号 | 078-392-2561 | 免許番号 | 国土交通大臣(2)第9120号 |
| 取引態様 | 仲介 | 物件管理番号 |
100459895477 ※お問い合わせの際には、担当者へ物件管理番号をお伝えください。 |
| 物件に関する情報 |
物件の所在地 : 兵庫県神戸市兵庫区福原町 /
交通の利便 : JR東海道本線/神戸駅 歩14分、神戸電鉄有馬線/湊川駅 歩5分、地下鉄西神・山手線/大倉山駅 歩10分 /
面積 : 22.2m² /
築年月 : 築1年以内(2025年09月) /
賃料 : 6.53万円 /
管理費又は共益費等 : 4,000円 /
礼金等 : 無料 /
敷金 : 無料、保証金等 : -、 償却、敷引 : - /
住宅総合保険等の損害保険料 : 2.2万円2年 /
その他 : 解約予告2ヶ月前(月割)、入居者アプリ・スマサポコンシェル加入必須(法人契約は除く) 、1年未満の解約は家賃共益費合計の1ヶ月分の違約金要。引越会社指定あり:ファイン引っ越しサービス。ペット飼育時(小型犬・猫のどちらか1匹のみ):家賃共益費合計の1ヶ月要。更新事務手数料27500円/2年毎。
合計6.93万円(内訳:スマサポコンシェル入会金0.55万円 退去時RC代3.3万円 カギ代3.08万円)
スマサポコンシェル 1320円(月額)
ペット相談
保証会社利用必 初回保証料:総賃料30%、更新料20 000円/年、引落手数料:330円
/ 駐車場 : 無
お部屋さがしはいい部屋ネットの大東建託で!
収納はシューズボックス・クロゼットなど豊富なので、衣類や履き物の整理がしやすく便利です。室内設備は洗面化粧台・浴室乾燥機など大変充実しております。魅力も多い賃貸物件はいかがでしょうか。 |
||
| 所属団体 |
(公財)日本賃貸住宅管理協会会員 (公社)首都圏不動産公正取引協議会加盟 |
||
| 取扱会社(12) | 初期費用分割払い対応株式会社プラン・ドゥ・シー SumoSumo西宮北口店 | ||
|---|---|---|---|
| 住所 | 兵庫県西宮市甲風園1-5-8 | ||
| 電話番号 | 078-600-0540 | 免許番号 | 国土交通大臣免許(2)第9550号 |
| 取引態様 | 仲介 | 物件管理番号 |
553470001625423 ※お問い合わせの際には、担当者へ物件管理番号をお伝えください。 |
| 物件に関する情報 |
物件の所在地 : 兵庫県神戸市兵庫区福原町 /
交通の利便 : 神戸市西神山手線/湊川公園 徒歩2分、神戸高速鉄道東西線/新開地 徒歩8分、東海道本線/神戸 徒歩14分 /
面積 : 22.2m² /
築年月 : 築1年以内(2025年09月) /
賃料 : 6.53万円 /
管理費又は共益費等 : 4,000円 /
礼金等 : 無料 /
敷金 : 無料、保証金等 : -、 償却、敷引 : - /
住宅総合保険等の損害保険料 : 22,000円(2年) /
その他 : 室内設備は洗面所独立・浴室乾燥機などが揃っており、とても充実しています。セキュリティ面は、TVインターホン・オートロックなど充実しているので、防犯対策もばっちりです。収納はシューズボックス・クロゼットなどが備え付けられているので、衣類や日用品の収納に重宝します。夏も冬もお部屋で快適に過ごすためには欠かせないエアコン付きです。新しい日々を送るにふさわしい、きれいな室内です。見た目もキレイで機能的なお部屋。ご覧ください、令和8年5月に入居可能の物件が多数ございます。地上15階建ての物件です。こちらの物件はマンションです。2口コンロ付きの物件は短い時間で一気に料理ができるので、一人暮らしの人にもおすすめです。
スマサポコンシェル入会金:5,500円
更新料:無し
/ 駐車場 : 近隣
17,000円
物件からの距離 100m
セキュリティ面は、TVインターホン・オートロックなどを備え付けているので安心して暮らせます。収納はクロゼット・シューズボックスなどが備え付けられているので、衣類や日用品の収納に重宝します。室内設備は洗面所独立・浴室乾燥機などが揃っているので、快適に過ごしやすいお部屋になります。パソコンを快適に使いたい方に、光回線を繋いでいる物件です。徒歩2分に駅がある物件です。1人暮らしにおすすめなのがキッチン付きの物件です。近くに駐車場がありますので、駐車スペースの心配は要りません。スイッチ一つで温度管理できるエアコン付きのマンション。ペットに対する愛情が感じられるペット飼育可能物件です。造りとデザインに関して、自信をもって情報を提供できるマンションです。
|
||
| 所属団体 |
(公社)全日本不動産協会 公益社団法人近畿地区不動産公正取引協議会 (公社)不動産保証協会 |
||
| 取扱会社(13) | 株式会社ライブデザイン ピタットハウス三宮店 | ||
|---|---|---|---|
| 住所 | 兵庫県神戸市中央区布引町4-2-6 FSビル | ||
| 電話番号 | 078-272-2255 | 免許番号 | 国土交通大臣免許(1)第10464号 |
| 取引態様 | 仲介先物 | 物件管理番号 |
0000228514 ※お問い合わせの際には、担当者へ物件管理番号をお伝えください。 |
| 物件に関する情報 |
物件の所在地 : 兵庫県神戸市兵庫区福原町 /
交通の利便 : 神戸市西神山手線/湊川公園 徒歩2分、山陽本線/神戸 徒歩15分、神戸高速鉄道南北線/湊川 徒歩5分 /
面積 : 22.2m² /
築年月 : 築1年以内(2025年09月) /
賃料 : 6.53万円 /
管理費又は共益費等 : 4,000円 /
礼金等 : 無料 /
敷金 : 無料、保証金等 : -、 償却、敷引 : - /
住宅総合保険等の損害保険料 : 無 /
その他 : 管理人:巡回
保証人代行:必須
その他
保証人代行詳細:貸主指定
/ 駐車場 : 要問い合わせ
ペット飼育可能★オートロック・防犯カメラ・宅配用ボックス完備★システムキッチンや浴室乾燥など室内設備も充実しています★
|
||
| 所属団体 |
(公社)全日本不動産協会 公益社団法人近畿地区不動産公正取引協議会 (公社)不動産保証協会 |
||
| 取扱会社(14) | 初期費用分割払い対応株式会社プラン・ドゥ・シー SumoSumo博多店 | ||
|---|---|---|---|
| 住所 | 福岡県福岡市博多区博多駅前2-13-13 シャンソンビル博多4F | ||
| 電話番号 | 092-600-0801 | 免許番号 | 国土交通大臣免許(2)第9550号 |
| 取引態様 | 仲介 | 物件管理番号 |
553470001625427 ※お問い合わせの際には、担当者へ物件管理番号をお伝えください。 |
| 物件に関する情報 |
物件の所在地 : 兵庫県神戸市兵庫区福原町 /
交通の利便 : 神戸市西神山手線/湊川公園 徒歩2分、神戸高速鉄道東西線/新開地 徒歩8分、東海道本線/神戸 徒歩14分 /
面積 : 22.2m² /
築年月 : 築1年以内(2025年09月) /
賃料 : 6.53万円 /
管理費又は共益費等 : 4,000円 /
礼金等 : 無料 /
敷金 : 無料、保証金等 : -、 償却、敷引 : - /
住宅総合保険等の損害保険料 : 22,000円(2年) /
その他 : 室内設備は洗面所独立・浴室乾燥機などが揃っており、とても充実しています。セキュリティ面は、TVインターホン・オートロックなど充実しているので、防犯対策もばっちりです。収納はシューズボックス・クロゼットなどが備え付けられているので、衣類や日用品の収納に重宝します。夏も冬もお部屋で快適に過ごすためには欠かせないエアコン付きです。新しい日々を送るにふさわしい、きれいな室内です。見た目もキレイで機能的なお部屋。ご覧ください、令和8年5月に入居可能の物件が多数ございます。地上15階建ての物件です。こちらの物件はマンションです。2口コンロ付きの物件は短い時間で一気に料理ができるので、一人暮らしの人にもおすすめです。
スマサポコンシェル入会金:5,500円
更新料:無し
/ 駐車場 : 近隣
17,000円
物件からの距離 100m
セキュリティ面は、TVインターホン・オートロックなどを備え付けているので安心して暮らせます。収納はクロゼット・シューズボックスなどが備え付けられているので、衣類や日用品の収納に重宝します。室内設備は洗面所独立・浴室乾燥機などが揃っているので、快適に過ごしやすいお部屋になります。パソコンを快適に使いたい方に、光回線を繋いでいる物件です。徒歩2分に駅がある物件です。1人暮らしにおすすめなのがキッチン付きの物件です。近くに駐車場がありますので、駐車スペースの心配は要りません。スイッチ一つで温度管理できるエアコン付きのマンション。ペットに対する愛情が感じられるペット飼育可能物件です。造りとデザインに関して、自信をもって情報を提供できるマンションです。
|
||
| 所属団体 |
(公社)全日本不動産協会 (公社)全日本不動産協会兵庫県本部 公益社団法人近畿地区不動産公正取引協議会 (公社)不動産保証協会 |
||

