レジディア杉並方南町[5階]
情報公開日:2025/12/13(残り15日)
次回更新日は情報公開日より15日以内
物件画像
画像提供元:株式会社 大田ハウス/アパマンショップ中野店
この物件のタグ
この物件にお問い合わせ
レジディア杉並方南町[5階]の物件情報
| 賃料/管理費等 |
20.5万円(管理費等 1.5万円)
|
||
|---|---|---|---|
| 敷金 | 20.5万円 | 礼金 | 20.5万円 |
| 種別/構造 | マンション/鉄筋コンクリート | 築年月 | 2009年03月 |
| 所在地 |
東京都杉並区堀ノ内1丁目6-2
|
||
| 主要交通機関 | 東京地下鉄方南支線/方南町 徒歩3分 | ||
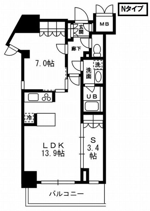
| 間取り | 1LDK | 面積 | 54.52m² |
| 間取り詳細 | 13.9LDK、7洋、3.4洋 | 方位 | - |
| 階数/部屋番号 | 5階/地上10階建 | 駐車場 | 空有 35,200円 |
| 特徴 |
|
||
| 設備/条件 | エアコン、バス・トイレ別、追い焚き、浴室乾燥機、独立洗面台、温水洗浄便座、CATV、インターネット対応、システムキッチン、ガスコンロ、コンロ二口以上、2階以上の物件、フローリング、室内洗濯機置場、バルコニー、エレベーター、駐車場あり、駐輪場あり、オートロック、宅配ボックス | ||
| 備考 |
バイク置場(空有):月額3,300円 無料駐輪場(空有) ※1年未満解約時、賃料1ヶ月分の違約金有り※保証会社利用必須※大手法人契約の場合は敷金2ヶ月※セカンドハウス利用不可 保証会社利用必須 【IRS③】IUCレジデンシャルサポート 初回契約時:40%、更新時:10,000円、月額:1,000円 鍵交換費用 22000円 更新料:1ヶ月 [退去時費用(故意・過失等別途実費):退去費用実費精算] ※物件に関する備考は各社異なりますのでご確認のうえお問い合わせください。 |
||
| 契約期間 | 24ヶ月 | ||
|---|---|---|---|
| 入居可能時期 |
お問い合わせください。
|
||
| 初期費用 |
お問い合わせください。
|
||
| 住宅保険 | 21500円(2年) | 現状空室状況 | お問い合わせください。 |
情報提供元:株式会社 大田ハウス/アパマンショップ中野店
画像提供元:株式会社 大田ハウス/アパマンショップ中野店
※各種情報と現状に差異がある場合は、現状優先となります。取り扱い不動産会社が複数ある場合は、住宅保険等、一部条件が異なる場合もございますので、取扱店舗までご確認下さいませ。
この物件にお問い合わせ
周辺施設
| コンビニ |
セブン‐イレブン 杉並堀ノ内1丁目店 (125m) ファミリーマート 杉並和泉店 (149m) |
|||
|---|---|---|---|---|
| スーパー |
サミット株式会社 和泉店 (168m) 肉のハナマサ 方南町店 (388m) |
|||
| ドラッグストア |
有限会社西岡調剤薬局 (153m) 志宝薬局 方南町店 (217m) |
|||
| 保育園 |
スクルドエンジェル保育園 方南町園 (322m) |
|||
|---|---|---|---|---|
| 幼稚園 |
杉並区立 堀ノ内子供園 (280m) |
|||
| 小学校 |
杉並区立大宮小学校 (405m) |
|||
| 中学校 |
杉並区立 泉南中学校 (143m) |
|||
※周辺情報は不動産会社から提供された情報ではなく、弊サービスで独自に収集した情報です。
担当者のオススメポイント!
当店では、このお部屋は仲介手数料不要です!
電話でお問い合わせご希望の方
株式会社 大田ハウス アパマンショップ東中野店
営業時間: 10:00〜19:00(定休日ナシ(年末年始除く)) 定休日: 定休日なし
株式会社 大田ハウス アパマンショップ中野店
営業時間: 10:00〜19:00(年中無休(年末年始を除く)) 定休日: 定休日なし
- ※電話経由でのお問い合せは、お祝い金プレゼントキャンペーンの適用になりませんのでご注意ください。
- ※電話でお問い合わせする場合は、光IP電話、及びIP電話からはご利用になれません。不動産会社の方からの電話番号によるお問合せはお断りしております。
レジディア杉並方南町[5階]の取扱会社情報 2件
| 取扱会社(1) | 株式会社 大田ハウス アパマンショップ中野店 | ||
|---|---|---|---|
| 住所 | 東京都中野区中野5丁目63-1 | ||
| 電話番号 | 03-5345-9733 | 免許番号 | 東京都知事(4)第89428号 |
| 取引態様 | 仲介 | 物件管理番号 |
92295741 ※お問い合わせの際には、担当者へ物件管理番号をお伝えください。 |
| 連絡先 | 0037-6008-1271 | ||
| 物件に関する情報 |
物件の所在地 : 東京都杉並区堀ノ内1丁目 /
交通の利便 : 東京地下鉄方南支線/方南町 徒歩3分 /
面積 : 54.52m² /
築年月 : 2009年03月 /
賃料 : 20.5万円 /
管理費又は共益費等 : 1.5万円 /
礼金等 : 1ヶ月 /
敷金 : 1ヶ月、保証金等 : -、 償却、敷引 : - /
住宅総合保険等の損害保険料 : 21500円(2年) /
その他 : バイク置場(空有):月額3,300円 無料駐輪場(空有) ※1年未満解約時、賃料1ヶ月分の違約金有り※保証会社利用必須※大手法人契約の場合は敷金2ヶ月※セカンドハウス利用不可 保証会社利用必須 【IRS③】IUCレジデンシャルサポート 初回契約時:40%、更新時:10,000円、月額:1,000円 鍵交換費用 22000円
更新料:1ヶ月
[退去時費用(故意・過失等別途実費):退去費用実費精算]
/ 駐車場 : 空有
35,200円
当店では、このお部屋は仲介手数料不要です!
|
||
| 所属団体 |
(公社)全日本不動産協会東京都本部 (公社) 首都圏不動産公正取引協議会加盟 - |
||
| 取扱会社(2) | 株式会社 大田ハウス アパマンショップ東中野店 | ||
|---|---|---|---|
| 住所 | 東京都中野区東中野3丁目1-1 | ||
| 電話番号 | 03-5332-6455 | 免許番号 | 東京都知事(4)第89428号 |
| 取引態様 | 仲介 | 物件管理番号 |
92295741 ※お問い合わせの際には、担当者へ物件管理番号をお伝えください。 |
| 連絡先 | 0037-6008-9682 | ||
| 物件に関する情報 |
物件の所在地 : 東京都杉並区堀ノ内1丁目 /
交通の利便 : 東京地下鉄方南支線/方南町 徒歩4分 /
面積 : 54.52m² /
築年月 : 2009年03月 /
賃料 : 20.5万円 /
管理費又は共益費等 : 1.5万円 /
礼金等 : 1ヶ月 /
敷金 : 1ヶ月、保証金等 : -、 償却、敷引 : - /
住宅総合保険等の損害保険料 : 21500円(2年) /
その他 : バイク置場(空有):月額3,300円 無料駐輪場(空有) ※1年未満解約時、賃料1ヶ月分の違約金有り※保証会社利用必須※大手法人契約の場合は敷金2ヶ月※セカンドハウス利用不可 保証会社利用必須 【IRS③】IUCレジデンシャルサポート 初回契約時:40%、更新時:10,000円、月額:1,000円 鍵交換費用 22000円
更新料:1ヶ月
[退去時費用(故意・過失等別途実費):退去費用実費精算]
/ 駐車場 : 空有
35,200円
当店では、仲介手数料(賃料の1.1ヶ月)の50%OFFです!
|
||
| 所属団体 |
(公社)全日本不動産協会東京都本部 (公社) 首都圏不動産公正取引協議会加盟 - |
||

