兵庫県神戸市中央区相生町1丁目の賃貸マンション
情報公開日:2025/10/25(残り15日)
次回更新日は情報公開日より15日以内
物件画像
画像提供元:株式会社プラン・ドゥ・シー/SumoSumo西宮北口店
この物件のタグ
この物件にお問い合わせ
兵庫県神戸市中央区相生町1丁目の賃貸マンションの物件情報
| 賃料/管理費等 |
30.0万円(管理費等 3.5万円)
|
||
|---|---|---|---|
| 敷金 | 30.0万円 | 礼金 | 60.0万円 |
| 種別/構造 | マンション/RC | 築年月 | 2019年02月 |
| 所在地 |
兵庫県神戸市中央区相生町1丁目
|
||
| 主要交通機関 |
山陽本線/神戸 徒歩5分 神戸高速鉄道東西線/西元町 徒歩4分 神戸市海岸線/みなと元町 徒歩6分 |
||
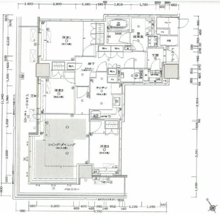
| 間取り | 3LDK | 面積 | 85.52m² |
| 間取り詳細 | - | 方位 | 南西 |
| 階数/部屋番号 | 17階/地上33階建 | 駐車場 | 近隣 20,000円 物件からの距離 100m |
| 特徴 |
|
||
| 設備/条件 | 床暖房、バス・トイレ別、追い焚き、浴室乾燥機、独立洗面台、温水洗浄便座、2人入居可、分譲賃貸、免震・耐震・制震、リフォーム済み、IT重説 対応物件、BSアンテナ、CSアンテナ、CATV、インターネット対応、システムキッチン、カウンターキッチン、ガスコンロ、コンロ二口以上、ディスポーザー、食洗機あり、2階以上の物件、フローリング、室内洗濯機置場、バルコニー、エレベーター、駐車場あり、駐輪場あり、バイク置き場あり、都市ガス、敷地内ゴミ置き場、オートロック、TVドアホン、宅配ボックス、防犯カメラ、セキュリティ会社加入済み | ||
| 備考 |
「ザ・パークハウス神戸タワー」:神戸市中央区エリアの新居にピッタリ。ローソン JPローソン神戸中央郵便局店まで徒歩2分と近場にコンビニがあるのもポイント。セキュリティ面は、オートロック・TVインターホンなどを設置しているので安全面でも優れております。収納はシューズボックス・クロゼットなどが備え付けられているので、衣類や日用品の収納に重宝します。室内設備は浴室乾燥機・洗面所独立・食器洗乾燥機などが揃っているので、快適に過ごしやすいお部屋になります。お届け指定時間に間に合わないとき、直接受け取れないかわりに荷物が届けられる宅配ボックスがあれば急いで帰る必要はありません。しっかりとした造りが自慢の築6年のマンション。あこがれのフローリング物件で新生活を始めましょう。33階建ての物件となっています。駐輪場付きのマンションです。2人入居可能の物件です。 保証会社:利用必須 要加入要加入 ※物件に関する備考は各社異なりますのでご確認のうえお問い合わせください。 |
||
| 契約期間 | 2年 | ||
|---|---|---|---|
| 入居可能時期 |
お問い合わせください。
|
||
| 初期費用 |
お問い合わせください。
|
||
| 住宅保険 | お問い合わせください。 | 現状空室状況 | 空家 |
情報提供元:株式会社プラン・ドゥ・シー/SumoSumo西宮北口店
画像提供元:株式会社プラン・ドゥ・シー/SumoSumo西宮北口店
※各種情報と現状に差異がある場合は、現状優先となります。取り扱い不動産会社が複数ある場合は、住宅保険等、一部条件が異なる場合もございますので、取扱店舗までご確認下さいませ。
この物件にお問い合わせ
周辺施設
| コンビニ |
JPローソン神戸中央郵便局店 (145m) セブン-イレブン 神戸西元町店 (162m) |
|||
|---|---|---|---|---|
| スーパー |
成城石井 プリコ神戸店 (424m) 業務スーパー ハーバーランド店 (434m) |
|||
| ドラッグストア |
潤心堂薬局 (44m) ココカラファイン 西元町店 (115m) |
|||
| 保育園 |
神戸ゆたか園 (226m) |
|||
|---|---|---|---|---|
| 幼稚園 |
大慈 幼保連携型認定こども園 とも分園 (568m) |
|||
| 小学校 |
神戸市立湊小学校 (647m) |
|||
| 中学校 |
神戸市立湊翔楠中学校 (757m) |
|||
※周辺情報は不動産会社から提供された情報ではなく、弊サービスで独自に収集した情報です。
担当者のオススメポイント!
室内設備は洗面化粧台・浴室乾燥機・食器洗乾燥機などが揃っており、とても充実しています。直接の荷物の受け取りを不安に思っている人でも宅配ボックスがあれば接触せずに荷物を受け取ることができます。収納はシューズボックス・クロゼットなど豊富なので、広々と空間を利用することも可能です。セキュリティ面は、TVインターホン・オートロックなどを設置しているので安全面でも優れております。入居日のご相談がございましたら何なりとお申し付けください。忙しい日でもゴミ出しをサクッと終えられるように、敷地内にゴミ置き場を備えております。隣室との接地面が少ない角部屋は、騒音トラブルのリスクが下がります。お部屋から徒歩5分の場所に駅が位置するので、毎日の移動時間を削減できます。BS用の環境は整っているため、BS加入後すぐに視聴できます。こちらは現在空家ですので、お早めのご案内・お引越しも可能です。駐輪場が併設されている物件です。
兵庫県神戸市中央区相生町1丁目の賃貸マンションの取扱会社情報 6件
| 取扱会社(1) | 株式会社プラン・ドゥ・シー SumoSumo西宮北口店 | ||
|---|---|---|---|
| 住所 | 兵庫県西宮市甲風園1-5-8 | ||
| 電話番号 | 078-600-0540 | 免許番号 | 国土交通大臣免許(2)第9550号 |
| 取引態様 | 仲介 | 物件管理番号 |
553470001516112 ※お問い合わせの際には、担当者へ物件管理番号をお伝えください。 |
| 物件に関する情報 |
物件の所在地 : 兵庫県神戸市中央区相生町1丁目 /
交通の利便 : 山陽本線/神戸 徒歩5分、神戸高速鉄道東西線/西元町 徒歩4分、神戸市海岸線/みなと元町 徒歩6分 /
面積 : 85.52m² /
築年月 : 2019年02月 /
賃料 : 30.0万円 /
管理費又は共益費等 : 3.5万円 /
礼金等 : 2ヶ月 /
敷金 : 1ヶ月、保証金等 : -、 償却、敷引 : - /
住宅総合保険等の損害保険料 : - /
その他 : 「ザ・パークハウス神戸タワー」:神戸市中央区エリアの新居にピッタリ。ローソン JPローソン神戸中央郵便局店まで徒歩2分と近場にコンビニがあるのもポイント。セキュリティ面は、オートロック・TVインターホンなどを設置しているので安全面でも優れております。収納はシューズボックス・クロゼットなどが備え付けられているので、衣類や日用品の収納に重宝します。室内設備は浴室乾燥機・洗面所独立・食器洗乾燥機などが揃っているので、快適に過ごしやすいお部屋になります。お届け指定時間に間に合わないとき、直接受け取れないかわりに荷物が届けられる宅配ボックスがあれば急いで帰る必要はありません。しっかりとした造りが自慢の築6年のマンション。あこがれのフローリング物件で新生活を始めましょう。33階建ての物件となっています。駐輪場付きのマンションです。2人入居可能の物件です。
保証会社:利用必須 要加入要加入
/ 駐車場 : 近隣
20,000円
物件からの距離 100m
室内設備は洗面化粧台・浴室乾燥機・食器洗乾燥機などが揃っており、とても充実しています。直接の荷物の受け取りを不安に思っている人でも宅配ボックスがあれば接触せずに荷物を受け取ることができます。収納はシューズボックス・クロゼットなど豊富なので、広々と空間を利用することも可能です。セキュリティ面は、TVインターホン・オートロックなどを設置しているので安全面でも優れております。入居日のご相談がございましたら何なりとお申し付けください。忙しい日でもゴミ出しをサクッと終えられるように、敷地内にゴミ置き場を備えております。隣室との接地面が少ない角部屋は、騒音トラブルのリスクが下がります。お部屋から徒歩5分の場所に駅が位置するので、毎日の移動時間を削減できます。BS用の環境は整っているため、BS加入後すぐに視聴できます。こちらは現在空家ですので、お早めのご案内・お引越しも可能です。駐輪場が併設されている物件です。
|
||
| 所属団体 |
(公社)全日本不動産協会 公益社団法人近畿地区不動産公正取引協議会 (公社)不動産保証協会 |
||
| 取扱会社(2) | 株式会社プラン・ドゥ・シー SumoSumo渋谷店 | ||
|---|---|---|---|
| 住所 | 東京都渋谷区桜丘町16-9 DK渋谷ビル4F | ||
| 電話番号 | 03-6833-3971 | 免許番号 | 国土交通大臣免許(2)第9550号 |
| 取引態様 | 仲介 | 物件管理番号 |
553470001516102 ※お問い合わせの際には、担当者へ物件管理番号をお伝えください。 |
| 物件に関する情報 |
物件の所在地 : 兵庫県神戸市中央区相生町1丁目 /
交通の利便 : 山陽本線/神戸 徒歩5分、神戸高速鉄道東西線/西元町 徒歩4分、神戸市海岸線/みなと元町 徒歩6分 /
面積 : 85.52m² /
築年月 : 2019年02月 /
賃料 : 30.0万円 /
管理費又は共益費等 : 3.5万円 /
礼金等 : 2ヶ月 /
敷金 : 1ヶ月、保証金等 : -、 償却、敷引 : - /
住宅総合保険等の損害保険料 : - /
その他 : 「ザ・パークハウス神戸タワー」:神戸市中央区エリアの新居にピッタリ。ローソン JPローソン神戸中央郵便局店まで徒歩2分と近場にコンビニがあるのもポイント。セキュリティ面は、オートロック・TVインターホンなどを設置しているので安全面でも優れております。収納はシューズボックス・クロゼットなどが備え付けられているので、衣類や日用品の収納に重宝します。室内設備は浴室乾燥機・洗面所独立・食器洗乾燥機などが揃っているので、快適に過ごしやすいお部屋になります。お届け指定時間に間に合わないとき、直接受け取れないかわりに荷物が届けられる宅配ボックスがあれば急いで帰る必要はありません。しっかりとした造りが自慢の築6年のマンション。あこがれのフローリング物件で新生活を始めましょう。33階建ての物件となっています。駐輪場付きのマンションです。2人入居可能の物件です。
保証会社:利用必須 要加入要加入
/ 駐車場 : 近隣
20,000円
物件からの距離 100m
室内設備は洗面化粧台・浴室乾燥機・食器洗乾燥機などが揃っており、とても充実しています。直接の荷物の受け取りを不安に思っている人でも宅配ボックスがあれば接触せずに荷物を受け取ることができます。収納はシューズボックス・クロゼットなど豊富なので、広々と空間を利用することも可能です。セキュリティ面は、TVインターホン・オートロックなどを設置しているので安全面でも優れております。入居日のご相談がございましたら何なりとお申し付けください。忙しい日でもゴミ出しをサクッと終えられるように、敷地内にゴミ置き場を備えております。隣室との接地面が少ない角部屋は、騒音トラブルのリスクが下がります。お部屋から徒歩5分の場所に駅が位置するので、毎日の移動時間を削減できます。BS用の環境は整っているため、BS加入後すぐに視聴できます。こちらは現在空家ですので、お早めのご案内・お引越しも可能です。駐輪場が併設されている物件です。
|
||
| 所属団体 |
(公社)全日本不動産協会 (一社)不動産協会 公益社団法人首都圏不動産公正取引協議会 (公社)不動産保証協会 |
||
| 取扱会社(3) | 株式会社SumoSumo大阪 SumoSumo心斎橋店 | ||
|---|---|---|---|
| 住所 | 大阪府大阪市中央区南船場3-3-23 | ||
| 電話番号 | 06-4400-6315 | 免許番号 | 大阪府知事免許(1)第62697号 |
| 取引態様 | 仲介 | 物件管理番号 |
553470001516104 ※お問い合わせの際には、担当者へ物件管理番号をお伝えください。 |
| 物件に関する情報 |
物件の所在地 : 兵庫県神戸市中央区相生町1丁目 /
交通の利便 : 山陽本線/神戸 徒歩5分、神戸高速鉄道東西線/西元町 徒歩4分、神戸市海岸線/みなと元町 徒歩6分 /
面積 : 85.52m² /
築年月 : 2019年02月 /
賃料 : 30.0万円 /
管理費又は共益費等 : 3.5万円 /
礼金等 : 2ヶ月 /
敷金 : 1ヶ月、保証金等 : -、 償却、敷引 : - /
住宅総合保険等の損害保険料 : - /
その他 : 「ザ・パークハウス神戸タワー」:神戸市中央区エリアの新居にピッタリ。ローソン JPローソン神戸中央郵便局店まで徒歩2分と近場にコンビニがあるのもポイント。セキュリティ面は、オートロック・TVインターホンなどを設置しているので安全面でも優れております。収納はシューズボックス・クロゼットなどが備え付けられているので、衣類や日用品の収納に重宝します。室内設備は浴室乾燥機・洗面所独立・食器洗乾燥機などが揃っているので、快適に過ごしやすいお部屋になります。お届け指定時間に間に合わないとき、直接受け取れないかわりに荷物が届けられる宅配ボックスがあれば急いで帰る必要はありません。しっかりとした造りが自慢の築6年のマンション。あこがれのフローリング物件で新生活を始めましょう。33階建ての物件となっています。駐輪場付きのマンションです。2人入居可能の物件です。
保証会社:利用必須 要加入要加入
/ 駐車場 : 近隣
20,000円
物件からの距離 100m
室内設備は洗面化粧台・浴室乾燥機・食器洗乾燥機などが揃っており、とても充実しています。直接の荷物の受け取りを不安に思っている人でも宅配ボックスがあれば接触せずに荷物を受け取ることができます。収納はシューズボックス・クロゼットなど豊富なので、広々と空間を利用することも可能です。セキュリティ面は、TVインターホン・オートロックなどを設置しているので安全面でも優れております。入居日のご相談がございましたら何なりとお申し付けください。忙しい日でもゴミ出しをサクッと終えられるように、敷地内にゴミ置き場を備えております。隣室との接地面が少ない角部屋は、騒音トラブルのリスクが下がります。お部屋から徒歩5分の場所に駅が位置するので、毎日の移動時間を削減できます。BS用の環境は整っているため、BS加入後すぐに視聴できます。こちらは現在空家ですので、お早めのご案内・お引越しも可能です。駐輪場が併設されている物件です。
|
||
| 所属団体 |
(公社)全日本不動産協会 公益社団法人近畿地区不動産公正取引協議会 (公社)不動産保証協会 |
||
| 取扱会社(4) | 株式会社プラン・ドゥ・シー SumoSumo兵庫店 | ||
|---|---|---|---|
| 住所 | 兵庫県神戸市兵庫区塚本通7-2-19 | ||
| 電話番号 | 078-600-0540 | 免許番号 | 国土交通大臣免許(2)第9550号 |
| 取引態様 | 仲介 | 物件管理番号 |
553470001516109 ※お問い合わせの際には、担当者へ物件管理番号をお伝えください。 |
| 物件に関する情報 |
物件の所在地 : 兵庫県神戸市中央区相生町1丁目 /
交通の利便 : 山陽本線/神戸 徒歩5分、神戸高速鉄道東西線/西元町 徒歩4分、神戸市海岸線/みなと元町 徒歩6分 /
面積 : 85.52m² /
築年月 : 2019年02月 /
賃料 : 30.0万円 /
管理費又は共益費等 : 3.5万円 /
礼金等 : 2ヶ月 /
敷金 : 1ヶ月、保証金等 : -、 償却、敷引 : - /
住宅総合保険等の損害保険料 : - /
その他 : 「ザ・パークハウス神戸タワー」:神戸市中央区エリアの新居にピッタリ。ローソン JPローソン神戸中央郵便局店まで徒歩2分と近場にコンビニがあるのもポイント。セキュリティ面は、オートロック・TVインターホンなどを設置しているので安全面でも優れております。収納はシューズボックス・クロゼットなどが備え付けられているので、衣類や日用品の収納に重宝します。室内設備は浴室乾燥機・洗面所独立・食器洗乾燥機などが揃っているので、快適に過ごしやすいお部屋になります。お届け指定時間に間に合わないとき、直接受け取れないかわりに荷物が届けられる宅配ボックスがあれば急いで帰る必要はありません。しっかりとした造りが自慢の築6年のマンション。あこがれのフローリング物件で新生活を始めましょう。33階建ての物件となっています。駐輪場付きのマンションです。2人入居可能の物件です。
保証会社:利用必須 要加入要加入
/ 駐車場 : 近隣
20,000円
物件からの距離 100m
室内設備は洗面化粧台・浴室乾燥機・食器洗乾燥機などが揃っており、とても充実しています。直接の荷物の受け取りを不安に思っている人でも宅配ボックスがあれば接触せずに荷物を受け取ることができます。収納はシューズボックス・クロゼットなど豊富なので、広々と空間を利用することも可能です。セキュリティ面は、TVインターホン・オートロックなどを設置しているので安全面でも優れております。入居日のご相談がございましたら何なりとお申し付けください。忙しい日でもゴミ出しをサクッと終えられるように、敷地内にゴミ置き場を備えております。隣室との接地面が少ない角部屋は、騒音トラブルのリスクが下がります。お部屋から徒歩5分の場所に駅が位置するので、毎日の移動時間を削減できます。BS用の環境は整っているため、BS加入後すぐに視聴できます。こちらは現在空家ですので、お早めのご案内・お引越しも可能です。駐輪場が併設されている物件です。
|
||
| 所属団体 |
(公社)全日本不動産協会 公益社団法人近畿地区不動産公正取引協議会 (公社)不動産保証協会 |
||
| 取扱会社(5) | 株式会社プラン・ドゥ・シー SumoSumo博多店 | ||
|---|---|---|---|
| 住所 | 福岡県福岡市博多区博多駅前2-13-13 シャンソンビル博多4F | ||
| 電話番号 | 092-600-0801 | 免許番号 | 国土交通大臣免許(2)第9550号 |
| 取引態様 | 仲介 | 物件管理番号 |
553470001516115 ※お問い合わせの際には、担当者へ物件管理番号をお伝えください。 |
| 物件に関する情報 |
物件の所在地 : 兵庫県神戸市中央区相生町1丁目 /
交通の利便 : 山陽本線/神戸 徒歩5分、神戸高速鉄道東西線/西元町 徒歩4分、神戸市海岸線/みなと元町 徒歩6分 /
面積 : 85.52m² /
築年月 : 2019年02月 /
賃料 : 30.0万円 /
管理費又は共益費等 : 3.5万円 /
礼金等 : 2ヶ月 /
敷金 : 1ヶ月、保証金等 : -、 償却、敷引 : - /
住宅総合保険等の損害保険料 : - /
その他 : 「ザ・パークハウス神戸タワー」:神戸市中央区エリアの新居にピッタリ。ローソン JPローソン神戸中央郵便局店まで徒歩2分と近場にコンビニがあるのもポイント。セキュリティ面は、オートロック・TVインターホンなどを設置しているので安全面でも優れております。収納はシューズボックス・クロゼットなどが備え付けられているので、衣類や日用品の収納に重宝します。室内設備は浴室乾燥機・洗面所独立・食器洗乾燥機などが揃っているので、快適に過ごしやすいお部屋になります。お届け指定時間に間に合わないとき、直接受け取れないかわりに荷物が届けられる宅配ボックスがあれば急いで帰る必要はありません。しっかりとした造りが自慢の築6年のマンション。あこがれのフローリング物件で新生活を始めましょう。33階建ての物件となっています。駐輪場付きのマンションです。2人入居可能の物件です。
保証会社:利用必須 要加入要加入
/ 駐車場 : 近隣
20,000円
物件からの距離 100m
室内設備は洗面化粧台・浴室乾燥機・食器洗乾燥機などが揃っており、とても充実しています。直接の荷物の受け取りを不安に思っている人でも宅配ボックスがあれば接触せずに荷物を受け取ることができます。収納はシューズボックス・クロゼットなど豊富なので、広々と空間を利用することも可能です。セキュリティ面は、TVインターホン・オートロックなどを設置しているので安全面でも優れております。入居日のご相談がございましたら何なりとお申し付けください。忙しい日でもゴミ出しをサクッと終えられるように、敷地内にゴミ置き場を備えております。隣室との接地面が少ない角部屋は、騒音トラブルのリスクが下がります。お部屋から徒歩5分の場所に駅が位置するので、毎日の移動時間を削減できます。BS用の環境は整っているため、BS加入後すぐに視聴できます。こちらは現在空家ですので、お早めのご案内・お引越しも可能です。駐輪場が併設されている物件です。
|
||
| 所属団体 |
(公社)全日本不動産協会 (公社)全日本不動産協会兵庫県本部 公益社団法人近畿地区不動産公正取引協議会 (公社)不動産保証協会 |
||
| 取扱会社(6) | 株式会社プラン・ドゥ・シー SumoSumo垂水店 | ||
|---|---|---|---|
| 住所 | 兵庫県神戸市垂水区神田町2-27 | ||
| 電話番号 | 078-798-7416 | 免許番号 | 国土交通大臣免許(2)第9550号 |
| 取引態様 | 仲介 | 物件管理番号 |
553470001516105 ※お問い合わせの際には、担当者へ物件管理番号をお伝えください。 |
| 物件に関する情報 |
物件の所在地 : 兵庫県神戸市中央区相生町1丁目 /
交通の利便 : 山陽本線/神戸 徒歩5分、神戸高速鉄道東西線/西元町 徒歩4分、神戸市海岸線/みなと元町 徒歩6分 /
面積 : 85.52m² /
築年月 : 2019年02月 /
賃料 : 30.0万円 /
管理費又は共益費等 : 3.5万円 /
礼金等 : 2ヶ月 /
敷金 : 1ヶ月、保証金等 : -、 償却、敷引 : - /
住宅総合保険等の損害保険料 : - /
その他 : 「ザ・パークハウス神戸タワー」:神戸市中央区エリアの新居にピッタリ。ローソン JPローソン神戸中央郵便局店まで徒歩2分と近場にコンビニがあるのもポイント。セキュリティ面は、オートロック・TVインターホンなどを設置しているので安全面でも優れております。収納はシューズボックス・クロゼットなどが備え付けられているので、衣類や日用品の収納に重宝します。室内設備は浴室乾燥機・洗面所独立・食器洗乾燥機などが揃っているので、快適に過ごしやすいお部屋になります。お届け指定時間に間に合わないとき、直接受け取れないかわりに荷物が届けられる宅配ボックスがあれば急いで帰る必要はありません。しっかりとした造りが自慢の築6年のマンション。あこがれのフローリング物件で新生活を始めましょう。33階建ての物件となっています。駐輪場付きのマンションです。2人入居可能の物件です。
保証会社:利用必須 要加入要加入
/ 駐車場 : 近隣
20,000円
物件からの距離 100m
室内設備は洗面化粧台・浴室乾燥機・食器洗乾燥機などが揃っており、とても充実しています。直接の荷物の受け取りを不安に思っている人でも宅配ボックスがあれば接触せずに荷物を受け取ることができます。収納はシューズボックス・クロゼットなど豊富なので、広々と空間を利用することも可能です。セキュリティ面は、TVインターホン・オートロックなどを設置しているので安全面でも優れております。入居日のご相談がございましたら何なりとお申し付けください。忙しい日でもゴミ出しをサクッと終えられるように、敷地内にゴミ置き場を備えております。隣室との接地面が少ない角部屋は、騒音トラブルのリスクが下がります。お部屋から徒歩5分の場所に駅が位置するので、毎日の移動時間を削減できます。BS用の環境は整っているため、BS加入後すぐに視聴できます。こちらは現在空家ですので、お早めのご案内・お引越しも可能です。駐輪場が併設されている物件です。
|
||
| 所属団体 |
(公社)全日本不動産協会 公益社団法人近畿地区不動産公正取引協議会 (公社)不動産保証協会 |
||

