ソルナクレイシア笹塚
情報公開日:2025/10/30(残り15日)
次回更新日は2025/11/13
物件画像
画像提供元:クラウドエステート 支店(株)BLAST MADE
この物件のタグ
この物件にお問い合わせ
ソルナクレイシア笹塚の物件情報
| 賃料/管理費等 | 
            12.8万円(管理費等 1.5万円)
           | ||
|---|---|---|---|
| 敷金 | 無料 | 礼金 | 無料 | 
| 種別/構造 | アパート/鉄骨造 | 築年月 | 新築(2025年06月) | 
| 所在地 | 
          東京都世田谷区大原1
         | ||
| 主要交通機関 | 京王線/笹塚駅 歩7分 京王線/代田橋駅 歩12分 | ||
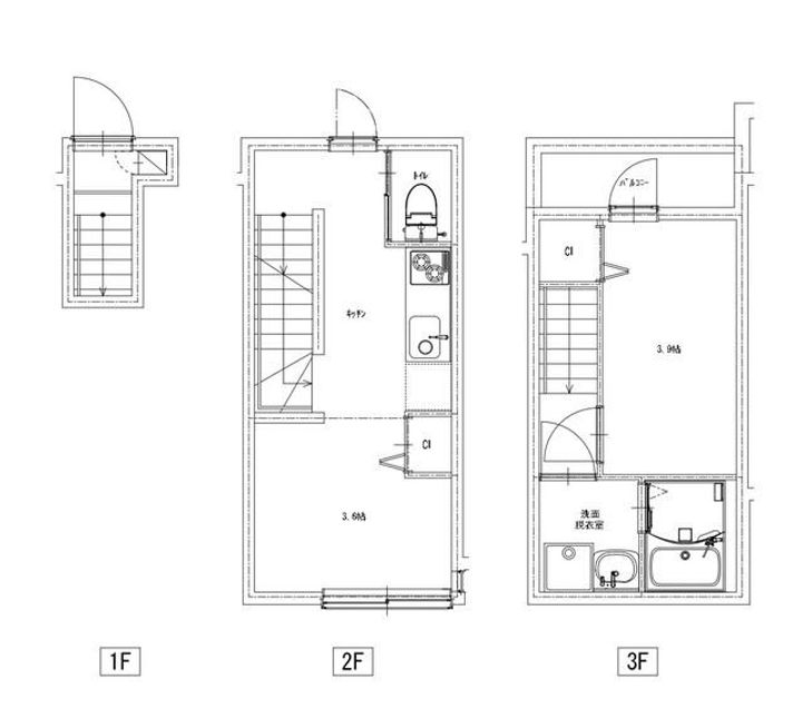
| 間取り | 1DK | 面積 | 31.88m² | 
| 間取り詳細 | 洋3.9 DK3.6 | 方位 | 北 | 
| 階数/部屋番号 | 1-3階/地上3階建 | 駐車場 | 無 | 
| 特徴 |  | ||
| 設備/条件 | バストイレ別、バルコニー、エアコン、クロゼット、フローリング、TVインターホン、浴室乾燥機、室内洗濯置、陽当り良好、シューズボックス、システムキッチン、温水洗浄便座、洗面所独立、洗面化粧台、2口コンロ、即入居可、礼金不要、2面採光、最上階、敷金不要、IHクッキングヒーター、保証人不要、仲介手数料不要、メゾネット、ネット使用料不要、フリーレント、眺望良好、ダブルロックキー、保証金不要、24時間換気システム、2駅利用可、駅徒歩10分以内、洗面所にドア、敷金・礼金不要、保証会社利用可、IT重説 対応物件、初期費用カード決済可、通風良好 | ||
| 備考 | ◇仲介手数料最大無料 【】◇  ■賢くリーズナブルに引越しされたい方はクラウドエステートへ!! ■入居費用のクレジットカード決済・分割もご利用可能です。 ■ LINEでのやり取りをご希望の際は、当社HPより公式LINEを追加いただきご連絡頂いても対応は可能でございます。 ※写真は同物件の別部屋の場合もございます。 更新料 新賃料1.00ヶ月分 室内清掃費用 55000円 フリーレント1ヶ月 1ヶ月 普通借家 2年 保証会社利用必 初回保証料:総賃料の60% 年間保証料:13,000円 口座振替手数料:月額330円 | ||
| 契約期間 | お問い合わせください。 | ||
|---|---|---|---|
| 入居可能時期 | 
            即入居可
           | ||
| 初期費用 | 
            お問い合わせください。
           | ||
| 住宅保険 | 2万円2年 | 現状空室状況 | お問い合わせください。 | 
  情報提供元:クラウドエステート 支店(株)BLAST MADE
  画像提供元:クラウドエステート 支店(株)BLAST MADE
  ※各種情報と現状に差異がある場合は、現状優先となります。取り扱い不動産会社が複数ある場合は、住宅保険等、一部条件が異なる場合もございますので、取扱店舗までご確認下さいませ。
この物件にお問い合わせ
周辺施設
| コンビニ | ローソン 大原一丁目店 セブン‐イレブン 世田谷羽根木2丁目店 | |||
|---|---|---|---|---|
| スーパー | 株式会社京王ストア 代田橋店 業務スーパー 笹塚店 | |||
| ドラッグストア | 薬樹薬局・大原 さくら薬局世田谷羽根木店 | |||
| 保育園 | 大原保育園 | |||
|---|---|---|---|---|
| 幼稚園 | 育成幼稚園 | |||
| 小学校 | 世田谷区立 下北沢小学校 | |||
| 中学校 | 世田谷区立北沢中学校 | |||
※周辺情報は不動産会社から提供された情報ではなく、弊サービスで独自に収集した情報です。
担当者のオススメポイント!
仲介手数料最大無料でございます♪ お気軽にお問合せ下さい!
【】★ご来店不要のZOOM応対やオンライン内覧も可能でございます★他社での高い初期費用のご相談もお気軽にお申し付けください★東京都内のすべてのお部屋をご紹介いたします
ソルナクレイシア笹塚の取扱会社情報 1件
| 取扱会社(1) | クラウドエステート 支店(株)BLAST MADE (情報提供媒体:SUUMO) | ||
|---|---|---|---|
| 住所 | 東京都渋谷区道玄坂1-22-8-9階 | ||
| 電話番号 | 03-6455-3801 | 免許番号 | 国土交通大臣(1)第10577号 | 
| 取引態様 | 仲介 | 物件管理番号 | 100469816163 ※お問い合わせの際には、担当者へ物件管理番号をお伝えください。 | 
| 物件に関する情報 | 
                  物件の所在地 : 東京都世田谷区大原1 /
                  交通の利便 : 京王線/笹塚駅 歩7分、京王線/代田橋駅 歩12分 /
                  面積 : 31.88m² /
                  築年月 : 新築(2025年06月) /
                  賃料 : 12.8万円 /
                  管理費又は共益費等 : 1.5万円 /
                  礼金等 : 無料 /
                  敷金 : 無料、保証金等 : -、 償却、敷引 : - /
                  住宅総合保険等の損害保険料 : 2万円2年 /
                  その他 : ◇仲介手数料最大無料 【】◇  ■賢くリーズナブルに引越しされたい方はクラウドエステートへ!! ■入居費用のクレジットカード決済・分割もご利用可能です。 ■ LINEでのやり取りをご希望の際は、当社HPより公式LINEを追加いただきご連絡頂いても対応は可能でございます。 ※写真は同物件の別部屋の場合もございます。
更新料 新賃料1.00ヶ月分 室内清掃費用 55000円
フリーレント1ヶ月 1ヶ月
普通借家 2年
保証会社利用必 初回保証料:総賃料の60% 年間保証料:13,000円 口座振替手数料:月額330円
                    / 駐車場 : 無
                 
                  仲介手数料最大無料でございます♪ お気軽にお問合せ下さい! 【】★ご来店不要のZOOM応対やオンライン内覧も可能でございます★他社での高い初期費用のご相談もお気軽にお申し付けください★東京都内のすべてのお部屋をご紹介いたします | ||
| 所属団体 | (公社)東京都宅地建物取引業協会会員 (公社)首都圏不動産公正取引協議会加盟 | ||


 
                 
                 
                 
                   
                   
                   
                   
                   
                   
                   
                   
                   
                   
                   
                   
                   
                   
                   
                   
                   
