ラオム麻布十番[6階]
情報公開日:2025/10/30(残り15日)
次回更新日は情報公開日より15日以内
物件画像
画像提供元:Ptif株式会社/Prime Realty AOYAMA
この物件のタグ
この物件にお問い合わせ
ラオム麻布十番[6階]の物件情報
| 賃料/管理費等 | 
            27.1万円(管理費等 2.0万円)
           | ||
|---|---|---|---|
| 敷金 | 27.1万円 | 礼金 | 無料 | 
| 種別/構造 | マンション/RC | 築年月 | 新築(2025年07月) | 
| 所在地 | 
          東京都港区麻布十番1丁目
         | ||
| 主要交通機関 | 東京地下鉄南北線/麻布十番 徒歩3分 東京地下鉄日比谷線/六本木 徒歩11分 東京都大江戸線/赤羽橋 徒歩13分 | ||
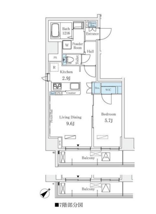
| 間取り | 1LDK | 面積 | 46.2m² | 
| 間取り詳細 | LDK 12.5帖、洋室 5.7帖 | 方位 | 南東 | 
| 階数/部屋番号 | 6階/地上9階建 | 駐車場 | 無し | 
| 特徴 |  | ||
| 設備/条件 | エアコン、バス・トイレ別、追い焚き、浴室乾燥機、独立洗面台、温水洗浄便座、即入居可、2人入居可、保証人不要・代行、定期借家権、免震・耐震・制震、CATV、インターネット対応、システムキッチン、カウンターキッチン、ガスコンロ、コンロ二口以上、2階以上の物件、室内洗濯機置場、バルコニー、エレベーター、出窓、駐輪場あり、都市ガス、敷地内ゴミ置き場、オートロック、TVドアホン、宅配ボックス、防犯カメラ、ウォークインクローゼット | ||
| 備考 | 初期費用分割払い可能☆最大24ヶ月払い☆カード決済も対応しております!! 遠方の方や忙しい方向けオンライン内見実施中☆ 保証会社:利用必須 初回保証委託料:月額賃料等の50%、2年目以降:9600円/年詳細はお問い合わせください。 | ||
| 契約期間 | 2年 | ||
|---|---|---|---|
| 入居可能時期 | 
            即時
           | ||
| 初期費用 | 
            お問い合わせください。
           | ||
| 住宅保険 | 18,000円(2年) | 現状空室状況 | 空家 | 
  情報提供元:Ptif株式会社/Prime Realty AOYAMA
  画像提供元:Ptif株式会社/Prime Realty AOYAMA
  ※各種情報と現状に差異がある場合は、現状優先となります。取り扱い不動産会社が複数ある場合は、住宅保険等、一部条件が異なる場合もございますので、取扱店舗までご確認下さいませ。
この物件にお問い合わせ
周辺施設
| コンビニ | セブン‐イレブン 港区麻布十番1丁目店 ファミリーマート 麻布十番一丁目店 | |||
|---|---|---|---|---|
| スーパー | 株式会社グルメシティ関東 麻布店 メトロマーケット | |||
| ドラッグストア | オバタ薬局 マツモトキヨシ 麻布十番店 | |||
| 保育園 | オハナインターナショナルスクール | |||
|---|---|---|---|---|
| 幼稚園 | 港区立 南山幼稚園 | |||
| 小学校 | 港区立南山小学校 | |||
| 中学校 | 東洋英和女学院 中学部 | |||
※周辺情報は不動産会社から提供された情報ではなく、弊サービスで独自に収集した情報です。
担当者のオススメポイント!
新築☆麻布十番駅徒歩3分☆南東向き☆設備充実☆宅配BOX有
電話でお問い合わせご希望の方
 
        Ptif株式会社 Prime Realty AOYAMA
営業時間: 9:00〜20:00 定休日: 年中無休
 
         
        - ※電話経由でのお問い合せは、お祝い金プレゼントキャンペーンの適用になりませんのでご注意ください。
- ※電話でお問い合わせする場合は、光IP電話、及びIP電話からはご利用になれません。不動産会社の方からの電話番号によるお問合せはお断りしております。
ラオム麻布十番[6階]の取扱会社情報 1件
| 取扱会社(1) | Ptif株式会社 Prime Realty AOYAMA | ||
|---|---|---|---|
| 住所 | 東京都港区北青山1-3-3 三橋ビル6F | ||
| 電話番号 | 03-6384-5426 | 免許番号 | 東京都知事免許(1)第107647号 | 
| 取引態様 | 一般 | 物件管理番号 | 352810000577450 ※お問い合わせの際には、担当者へ物件管理番号をお伝えください。 | 
| 連絡先 | 0037-6008-0295 | ||
| 物件に関する情報 | 
                  物件の所在地 : 東京都港区麻布十番1丁目 /
                  交通の利便 : 東京地下鉄南北線/麻布十番 徒歩3分、東京地下鉄日比谷線/六本木 徒歩11分、東京都大江戸線/赤羽橋 徒歩13分 /
                  面積 : 46.2m² /
                  築年月 : 新築(2025年07月) /
                  賃料 : 27.1万円 /
                  管理費又は共益費等 : 2.0万円 /
                  礼金等 : 無料 /
                  敷金 : 1ヶ月、保証金等 : -、 償却、敷引 : - /
                  住宅総合保険等の損害保険料 : 18,000円(2年) /
                  その他 : 初期費用分割払い可能☆最大24ヶ月払い☆カード決済も対応しております!! 遠方の方や忙しい方向けオンライン内見実施中☆
保証会社:利用必須 初回保証委託料:月額賃料等の50%、2年目以降:9600円/年詳細はお問い合わせください。
                    / 駐車場 : 無し
                 
                  新築☆麻布十番駅徒歩3分☆南東向き☆設備充実☆宅配BOX有
                 | ||
| 所属団体 | (公社)東京都宅地建物取引業協会会員 公益社団法人首都圏不動産公正取引協議会 (公社)全国宅地建物取引業保証協会 | ||


 
                 
                 
                 
                   
                   
                   
                   
                   
                   
                   
                   
                   
                   
                   
                   
                  ![ラオム麻布十番[6階]の間取り](https://smocca.jp/assets/common/spinner-1d171161728705657e0dc19391353959.gif) 
