京都府京都市南区東九条柳下町の賃貸マンション
情報公開日:2026/01/05(残り15日)
次回更新日は情報公開日より15日以内
物件画像
画像提供元:株式会社 京都ライフ/伏見桃山店
この物件のタグ
京都府京都市南区東九条柳下町の賃貸マンションの物件情報
| 賃料/管理費等 |
6.3万円(管理費等 6,330円)
|
||
|---|---|---|---|
| 敷金 | 無料 | 礼金 | 無料 |
| 種別/構造 | マンション/RC | 築年月 | 建築中(2026年02月) |
| 所在地 |
京都府京都市南区東九条柳下町
|
||
| 主要交通機関 |
京都市烏丸線/十条 徒歩4分 東海道本線/京都 徒歩14分 |
||
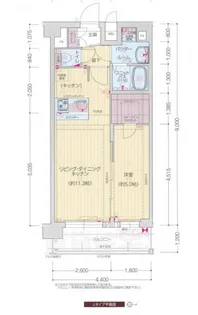
| 間取り | 1K | 面積 | 21.83m² |
| 間取り詳細 | 洋室 6帖、K 2帖 | 方位 | 西 |
| 階数/部屋番号 | 4階/地上7階建 | 駐車場 | 空有 10,000円 |
| 特徴 |
|
||
| 設備/条件 | エアコン、バス・トイレ別、浴室乾燥機、独立洗面台、温水洗浄便座、保証人不要・代行、分譲賃貸、BSアンテナ、CSアンテナ、システムキッチン、ガスコンロ、コンロ二口以上、2階以上の物件、角部屋、フローリング、室内洗濯機置場、バルコニー、エレベーター、駐車場あり、駐輪場あり、都市ガス、オートロック、TVドアホン、宅配ボックス | ||
| 備考 |
地下鉄十条駅まで徒歩4分。JR、京阪、近鉄、地下鉄にアクセス便利。敷金ナシです。嬉しい3点セパレートに浴室乾燥機、システムキッチン、温水洗浄便座など充実の設備。オートロック、防犯カメラ、TVホンでセキュリティも安心です。コンビニ、スーパーなど近くにあって便利ですよ。インターネットを無料でご利用いただけます。 プレサポ24:990円 更新料:11,000円 保証会社:利用必須 初回:月額賃料等の50%、月額:保証料として月額賃料等の2% |
||
| 契約期間 | 1年 | ||
|---|---|---|---|
| 入居可能時期 |
期日指定(2026年02月下旬)
|
||
| 初期費用 |
お問い合わせください。
|
||
| 住宅保険 | お問い合わせください。 | 現状空室状況 | 未完成 |
情報提供元:株式会社 京都ライフ/伏見桃山店
画像提供元:株式会社 京都ライフ/伏見桃山店
※各種情報と現状に差異がある場合は、現状優先となります。取り扱い不動産会社が複数ある場合は、住宅保険等、一部条件が異なる場合もございますので、取扱店舗までご確認下さいませ。
この物件にお問い合わせ
周辺施設
| コンビニ |
ファミリーマート 河原町十条店 (242m) セブン‐イレブン 京都烏丸十条店 (318m) |
|||
|---|---|---|---|---|
| スーパー |
ライフ 伏見深草店 (499m) スーパーフジタ洛南店 (580m) |
|||
| ドラッグストア |
足立薬局 (312m) あさがお薬局 (521m) |
|||
| 保育園 |
東和保育園 (443m) |
|||
|---|---|---|---|---|
| 幼稚園 |
陶化幼稚園 (594m) |
|||
| 小学校 |
京都市立稲荷小学校 (849m) |
|||
| 中学校 |
京都市立凌風小中学校 (865m) |
|||
※周辺情報は不動産会社から提供された情報ではなく、弊サービスで独自に収集した情報です。
担当者のオススメポイント!
インターネットを無料でご利用いただけます。 2026年2月完成のマンションです。
電話でお問い合わせご希望の方
株式会社 京都ライフ 伏見桃山店
営業時間: 09:30〜19:00 定休日: 年中無休
- ※電話経由でのお問い合せは、お祝い金プレゼントキャンペーンの適用になりませんのでご注意ください。
- ※電話でお問い合わせする場合は、光IP電話、及びIP電話からはご利用になれません。不動産会社の方からの電話番号によるお問合せはお断りしております。
京都府京都市南区東九条柳下町の賃貸マンションの取扱会社情報 1件
| 取扱会社(1) | 初期費用分割払い対応株式会社 京都ライフ 伏見桃山店 | ||
|---|---|---|---|
| 住所 | 京都市伏見区観音寺町215-1 CONNECT桃山2F | ||
| 電話番号 | 075-644-5463 | 免許番号 | 京都府知事(11)第6353号 |
| 取引態様 | 仲介 | 物件管理番号 |
059B0-418-25 ※お問い合わせの際には、担当者へ物件管理番号をお伝えください。 |
| 連絡先 | 0037-6008-9950 | ||
| PR | 全力でお部屋探しをサポート! | ||
| 物件に関する情報 |
物件の所在地 : 京都府京都市南区東九条柳下町 /
交通の利便 : 京都市烏丸線/十条 徒歩4分、東海道本線/京都 徒歩14分 /
面積 : 21.83m² /
築年月 : 建築中(2026年02月) /
賃料 : 6.3万円 /
管理費又は共益費等 : 6,330円 /
礼金等 : 無料 /
敷金 : 無料、保証金等 : -、 償却、敷引 : - /
住宅総合保険等の損害保険料 : - /
その他 : 地下鉄十条駅まで徒歩4分。JR、京阪、近鉄、地下鉄にアクセス便利。敷金ナシです。嬉しい3点セパレートに浴室乾燥機、システムキッチン、温水洗浄便座など充実の設備。オートロック、防犯カメラ、TVホンでセキュリティも安心です。コンビニ、スーパーなど近くにあって便利ですよ。インターネットを無料でご利用いただけます。
プレサポ24:990円
更新料:11,000円
保証会社:利用必須 初回:月額賃料等の50%、月額:保証料として月額賃料等の2%
/ 駐車場 : 空有
10,000円
インターネットを無料でご利用いただけます。 2026年2月完成のマンションです。
|
||
| 所属団体 |
京都府宅地建物取引業協会 公益社団法人近畿地区不動産公正取引協議会 全国宅地建物取引業保証協会 |
||

