コンサーム等々力[2階]
情報公開日:2025/10/02(残り15日)
次回更新日は情報公開日より15日以内
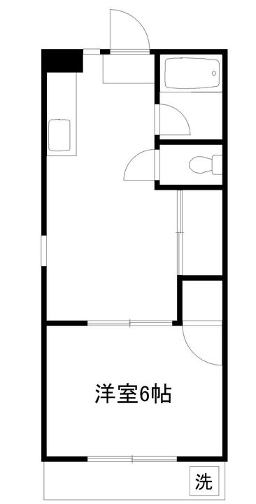
物件画像
画像提供元:(株)フォレスト興産
この物件のタグ
この物件にお問い合わせ
コンサーム等々力[2階]の物件情報
| 賃料/管理費等 |
7.7万円(管理費等 3,000円)
|
||
|---|---|---|---|
| 敷金 | 7.7万円 | 礼金 | 7.7万円 |
| 種別/構造 | アパート/軽量鉄骨 | 築年月 | 1977年10月 |
| 所在地 |
東京都世田谷区等々力2
|
||
| 主要交通機関 |
東急大井町線/等々力駅 歩1分 東急大井町線/尾山台駅 歩7分 東急大井町線/上野毛駅 歩11分 |
||
| 間取り | 1DK | 面積 | 29.7m² |
| 間取り詳細 | - | 方位 | - |
| 階数/部屋番号 | 2階/地上3階建 | 駐車場 | 無 |
| 特徴 |
|
||
| 設備/条件 | バストイレ別、バルコニー、エアコン、ガスコンロ対応、フローリング、駐輪場、押入、保証人不要、仲介手数料不要、敷金1ヶ月、二人入居相談、全居室フローリング、眺望良好、エアコン全室、ルームシェア相談、2駅利用可、3駅以上利用可、駅前、都市ガス、礼金1ヶ月、初期費用30万円以下、初期費用カード決済可 | ||
| 備考 |
★自転車相談可☆お子様相談可☆2名入居・シェアルーム相談可☆定期借家2年 単身者可/二人入居可/子供可/ルームシェア相談 定期借家 2年 全保連利用必 月額総賃料の50% ※他 保証会社あり |
||
| 契約期間 | お問い合わせください。 | ||
|---|---|---|---|
| 入居可能時期 |
''25年10月下旬
|
||
| 初期費用 |
お問い合わせください。
|
||
| 住宅保険 | 要 | 現状空室状況 | お問い合わせください。 |
情報提供元:(株)フォレスト興産
画像提供元:(株)フォレスト興産
※各種情報と現状に差異がある場合は、現状優先となります。取り扱い不動産会社が複数ある場合は、住宅保険等、一部条件が異なる場合もございますので、取扱店舗までご確認下さいませ。
この物件にお問い合わせ
周辺施設
| コンビニ |
セブン‐イレブン 世田谷等々力駅南店 セブンイレブン世田谷等々力4丁目店 |
|||
|---|---|---|---|---|
| スーパー |
株式会社成城石井等々力店 オオゼキ尾山台店 |
|||
| ドラッグストア |
トモズ 等々力南口店 ココカラファイン 等々力店 |
|||
| 保育園 |
コンビプラザ等々力保育園 |
|||
|---|---|---|---|---|
| 幼稚園 |
等々力教会善隣幼稚園 |
|||
| 小学校 |
世田谷区立尾山台小学校 |
|||
| 中学校 |
世田谷区立尾山台中学校 |
|||
※周辺情報は不動産会社から提供された情報ではなく、弊サービスで独自に収集した情報です。
担当者のオススメポイント!
オーナー直接取引物件!仲介手数料♪初期費用抑えられます
等々力駅徒歩1分の好立地!通勤通学、買い物に大変便利です★2人入居相談可能です。バス・トイレ別、広々とした12帖のお部屋です♪
コンサーム等々力[2階]の取扱会社情報 1件
| 取扱会社(1) | (株)フォレスト興産 (情報提供媒体:SUUMO) | ||
|---|---|---|---|
| 住所 | 東京都目黒区鷹番2-21-6 | ||
| 電話番号 | 03-3794-0311 | 免許番号 | 東京都知事(10)第45173号 |
| 取引態様 | 仲介 | 物件管理番号 |
100459532634 ※お問い合わせの際には、担当者へ物件管理番号をお伝えください。 |
| 物件に関する情報 |
物件の所在地 : 東京都世田谷区等々力2 /
交通の利便 : 東急大井町線/等々力駅 歩1分、東急大井町線/尾山台駅 歩7分、東急大井町線/上野毛駅 歩11分 /
面積 : 29.7m² /
築年月 : 1977年10月 /
賃料 : 7.7万円 /
管理費又は共益費等 : 3,000円 /
礼金等 : 1ヶ月 /
敷金 : 1ヶ月、保証金等 : -、 償却、敷引 : - /
住宅総合保険等の損害保険料 : 要 /
その他 : ★自転車相談可☆お子様相談可☆2名入居・シェアルーム相談可☆定期借家2年
単身者可/二人入居可/子供可/ルームシェア相談
定期借家 2年
全保連利用必 月額総賃料の50% ※他 保証会社あり
/ 駐車場 : 無
オーナー直接取引物件!仲介手数料♪初期費用抑えられます
等々力駅徒歩1分の好立地!通勤通学、買い物に大変便利です★2人入居相談可能です。バス・トイレ別、広々とした12帖のお部屋です♪ |
||
| 所属団体 |
(公社)全日本不動産協会東京都本部会員 (公社)首都圏不動産公正取引協議会加盟 |
||

