埼玉県草加市旭町2の賃貸マンション
情報公開日:2025/10/30(残り15日)
次回更新日は2025/11/06
物件画像
画像提供元:(株)ユニバーサルエステート上野店
この物件のタグ
この物件にお問い合わせ
埼玉県草加市旭町2の賃貸マンションの物件情報
| 賃料/管理費等 | 
            11.1万円(管理費等 4,000円)
           | ||
|---|---|---|---|
| 敷金 | 無料 | 礼金 | 11.1万円 | 
| 種別/構造 | マンション/RC | 築年月 | 1998年02月 | 
| 所在地 | 
          埼玉県草加市旭町2
         | ||
| 主要交通機関 | 東武伊勢崎線/獨協大学前駅 歩9分 東武伊勢崎線/新田駅 歩8分 | ||
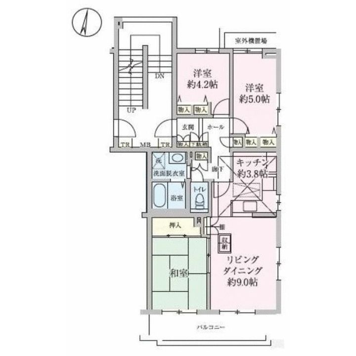
| 間取り | 3LDK | 面積 | 71.3m² | 
| 間取り詳細 | 和6 洋5 洋4.2 LDK12.8 | 方位 | 南 | 
| 階数/部屋番号 | 2階/地上4階建 | 駐車場 | 無 | 
| 特徴 |  | ||
| 設備/条件 | バストイレ別、バルコニー、エアコン、ガスコンロ対応、クロゼット、フローリング、TVインターホン、浴室乾燥機、室内洗濯置、シューズボックス、南向き、追焚機能浴室、角住戸、脱衣所、洗面所独立、駐輪場、宅配ボックス、外壁タイル張り、即入居可、敷金不要、トランクルーム、保証金不要、2駅利用可、駅徒歩10分以内、敷地内ごみ置き場、LDK12畳以上、和室、都市ガス、礼金1ヶ月、IT重説 対応物件、初期費用カード決済可 | ||
| 備考 | 合計9.68万円(内訳:鍵交換費用 22000円/ハウスクリーニング費用(退去時) 60500円/エアコンクリーニング費用1台あたり(退去 11000円/更新事務手数料 3300円) 事務所利用不可 普通借家 2年 オリコフォレントインシュア利用必 初回総賃料50% 月額総賃料1% ※物件に関する備考は各社異なりますのでご確認のうえお問い合わせください。 | ||
| 契約期間 | お問い合わせください。 | ||
|---|---|---|---|
| 入居可能時期 | 
            即入居可
           | ||
| 初期費用 | 
            お問い合わせください。
           | ||
| 住宅保険 | 2.1万円2年 | 現状空室状況 | お問い合わせください。 | 
  情報提供元:(株)ユニバーサルエステート上野店
  画像提供元:(株)ユニバーサルエステート上野店
  ※各種情報と現状に差異がある場合は、現状優先となります。取り扱い不動産会社が複数ある場合は、住宅保険等、一部条件が異なる場合もございますので、取扱店舗までご確認下さいませ。
この物件にお問い合わせ
周辺施設
| コンビニ | セブン‐イレブン 草加新田駅東口店 セブン‐イレブン 草加松原5丁目店 | |||
|---|---|---|---|---|
| スーパー | マルエツ松原店 新鮮市場 八幡店 | |||
| ドラッグストア | 草加調剤薬局 金明堂薬局本店 | |||
| 保育園 | 草加市立さかえ保育園 | |||
|---|---|---|---|---|
| 幼稚園 | 草加みどり幼稚園 | |||
| 小学校 | 草加市立 栄小学校 | |||
| 中学校 | 草加市立栄中学校 | |||
※周辺情報は不動産会社から提供された情報ではなく、弊サービスで独自に収集した情報です。
担当者のオススメポイント!
■どのエリアもお探し可能です実績18年以上当店にお任せ下さい
■お部屋探しは【おまとめ・一本化不動産】ユニバーサルエステートにお任せ下さい!初期費用の分割 家賃交渉、入居時期等引越しシーズンによりお早めにご連絡・ご相談下さいませ。【】まで
埼玉県草加市旭町2の賃貸マンションの取扱会社情報 2件
| 取扱会社(1) | (株)ユニバーサルエステート上野店 (情報提供媒体:SUUMO) | ||
|---|---|---|---|
| 住所 | 東京都台東区上野6-16-21 | ||
| 電話番号 | 03-5812-9336 | 免許番号 | 東京都知事(4)第87856号 | 
| 取引態様 | 仲介 | 物件管理番号 | 100470134356 ※お問い合わせの際には、担当者へ物件管理番号をお伝えください。 | 
| 物件に関する情報 | 
                  物件の所在地 : 埼玉県草加市旭町2 /
                  交通の利便 : 東武伊勢崎線/獨協大学前駅 歩9分、東武伊勢崎線/新田駅 歩8分 /
                  面積 : 71.3m² /
                  築年月 : 1998年02月 /
                  賃料 : 11.1万円 /
                  管理費又は共益費等 : 4,000円 /
                  礼金等 : 1ヶ月 /
                  敷金 : 無料、保証金等 : -、 償却、敷引 : - /
                  住宅総合保険等の損害保険料 : 2.1万円2年 /
                  その他 : 合計9.68万円(内訳:鍵交換費用 22000円/ハウスクリーニング費用(退去時) 60500円/エアコンクリーニング費用1台あたり(退去 11000円/更新事務手数料 3300円)
事務所利用不可
普通借家 2年
オリコフォレントインシュア利用必 初回総賃料50% 月額総賃料1%
                    / 駐車場 : 無
                 
                  ■どのエリアもお探し可能です実績18年以上当店にお任せ下さい ■お部屋探しは【おまとめ・一本化不動産】ユニバーサルエステートにお任せ下さい!初期費用の分割 家賃交渉、入居時期等引越しシーズンによりお早めにご連絡・ご相談下さいませ。【】まで | ||
| 所属団体 | (公社)全日本不動産協会東京都本部会員 (公社)首都圏不動産公正取引協議会加盟 | ||
| 取扱会社(2) | (株)ユニバーサルエステート (情報提供媒体:SUUMO) | ||
|---|---|---|---|
| 住所 | 東京都練馬区豊玉北2-16-1-1階 | ||
| 電話番号 | 03-5812-9336 | 免許番号 | 東京都知事(4)第87856号 | 
| 取引態様 | 仲介 | 物件管理番号 | 100470134323 ※お問い合わせの際には、担当者へ物件管理番号をお伝えください。 | 
| 物件に関する情報 | 
                  物件の所在地 : 埼玉県草加市旭町2 /
                  交通の利便 : 東武伊勢崎線/獨協大学前駅 歩9分、東武伊勢崎線/新田駅 歩8分 /
                  面積 : 71.3m² /
                  築年月 : 1998年02月 /
                  賃料 : 11.1万円 /
                  管理費又は共益費等 : 4,000円 /
                  礼金等 : 1ヶ月 /
                  敷金 : 無料、保証金等 : -、 償却、敷引 : - /
                  住宅総合保険等の損害保険料 : 2.1万円2年 /
                  その他 : 合計9.68万円(内訳:鍵交換費用 22000円/ハウスクリーニング費用(退去時) 60500円/エアコンクリーニング費用1台あたり(退去 11000円/更新事務手数料 3300円)
事務所利用不可
普通借家 2年
オリコフォレントインシュア利用必 初回総賃料50% 月額総賃料1%
                    / 駐車場 : 無
                 
                  ■どのエリアもお探し可能です実績18年以上当店にお任せ下さい ■お部屋探しは【おまとめ・一本化不動産】ユニバーサルエステートにお任せ下さい!初期費用の分割 家賃交渉、入居時期等引越しシーズンによりお早めにご連絡・ご相談下さいませ。【】まで | ||
| 所属団体 | (公社)全日本不動産協会東京都本部会員 (公社)首都圏不動産公正取引協議会加盟 | ||


 
                 
                 
                 
                   
                   
                   
                   
                   
                   
                   
                   
                   
                   
                   
                   
                   
                   
                   
                  