愛知県名古屋市昭和区阿由知通1丁目の賃貸マンション
情報公開日:2025/10/27(残り15日)
次回更新日は情報公開日より15日以内
物件画像
画像提供元:株式会社ユナイテッド・ウィル・キョウト/ユナイテッドルーム名古屋店
この物件のタグ
この物件にお問い合わせ
愛知県名古屋市昭和区阿由知通1丁目の賃貸マンションの物件情報
| 賃料/管理費等 |
8.032万円(管理費等 8,680円)
|
||
|---|---|---|---|
| 敷金 | 無料 | 礼金 | 8.9万円 |
| 種別/構造 | マンション/RC | 築年月 | 築1年以内(2025年01月) |
| 所在地 |
愛知県名古屋市昭和区阿由知通1丁目
|
||
| 主要交通機関 |
名古屋市桜通線/吹上 徒歩2分 名古屋市鶴舞線/御器所 徒歩10分 名古屋市桜通線/御器所 徒歩10分 |
||
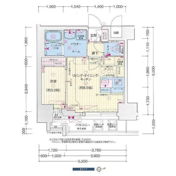
| 間取り | 1LDK | 面積 | 29.93m² |
| 間取り詳細 | LDK 8.5帖、洋室 3.0帖 | 方位 | 西 |
| 階数/部屋番号 | 11階/地上15階建 | 駐車場 | 空有 10,000円 |
| 特徴 |
|
||
| 設備/条件 | エアコン、バス・トイレ別、浴室乾燥機、独立洗面台、温水洗浄便座、デザイナーズ、免震・耐震・制震、IT重説 対応物件、インターネット対応、光ファイバー、システムキッチン、カウンターキッチン、ガスコンロ、コンロ二口以上、2階以上の物件、フローリング、室内洗濯機置場、バルコニー、エレベーター、駐車場あり、駐輪場あり、バイク置き場あり、都市ガス、敷地内ゴミ置き場、オートロック、TVドアホン、宅配ボックス、防犯カメラ | ||
| 備考 |
家から316mの場所に名古屋阿由知郵便局があります。セキュリティ面は、オートロック・TVインターホンなど充実しているので安心して生活できます。共用部には宅配ボックス・ゴミ出し24時間OKなどが備わっておりとても充実しています。できるだけ早めに不動産情報を集めたい方は当社スタッフまでご連絡ください。地域の不動産情報をいち早くお届けします。 更新料:11,000円 保証会社:利用必須 初回保証料:総賃料50% 月次保証料:1.5% |
||
| 契約期間 | 1年 | ||
|---|---|---|---|
| 入居可能時期 |
お問い合わせください。
|
||
| 初期費用 |
お問い合わせください。
|
||
| 住宅保険 | 11,000円(1年) | 現状空室状況 | 居住中 |
情報提供元:株式会社ユナイテッド・ウィル・キョウト/ユナイテッドルーム名古屋店
画像提供元:株式会社ユナイテッド・ウィル・キョウト/ユナイテッドルーム名古屋店
※各種情報と現状に差異がある場合は、現状優先となります。取り扱い不動産会社が複数ある場合は、住宅保険等、一部条件が異なる場合もございますので、取扱店舗までご確認下さいませ。
この物件にお問い合わせ
周辺施設
| コンビニ |
ファミリーマート 吹上駅前店 (88m) セブン‐イレブン 名古屋吹上駅前店 (251m) |
|||
|---|---|---|---|---|
| スーパー |
株式会社トミダ ナフコ春岡店 (391m) マックスバリュエクスプレス 北山店 (580m) |
|||
| ドラッグストア |
きしはた調剤薬局 (308m) 吹上調剤薬局 (370m) |
|||
| 保育園 |
FlappingKids (458m) |
|||
|---|---|---|---|---|
| 幼稚園 |
みちる幼稚園 (445m) |
|||
| 小学校 |
名古屋市立吹上小学校 (536m) |
|||
| 中学校 |
名古屋市立今池中学校 (1030m) |
|||
※周辺情報は不動産会社から提供された情報ではなく、弊サービスで独自に収集した情報です。
担当者のオススメポイント!
「プレサンス吹上駅前エテルノ」:名古屋市昭和区エリアの新居にピッタリ。家から316mの場所に名古屋阿由知郵便局があります。室内設備は浴室乾燥機・洗面所独立などが揃っているので、快適に過ごしやすいお部屋になります。豊富な知識を持ったスタッフが、名古屋市昭和区や名古屋市営桜通線吹上周辺でのお部屋探しを快適にサポート致します。まずはお問い合わせください。
愛知県名古屋市昭和区阿由知通1丁目の賃貸マンションの取扱会社情報 1件
| 取扱会社(1) | 株式会社ユナイテッド・ウィル・キョウト ユナイテッドルーム名古屋店 | ||
|---|---|---|---|
| 住所 | 愛知県名古屋市中村区名駅3丁目22-8 大東海ビル 102A | ||
| 電話番号 | 052-562-0313 | 免許番号 | 国土交通大臣免許(1)第10752号 |
| 取引態様 | 仲介 | 物件管理番号 |
321350001476894 ※お問い合わせの際には、担当者へ物件管理番号をお伝えください。 |
| 物件に関する情報 |
物件の所在地 : 愛知県名古屋市昭和区阿由知通1丁目 /
交通の利便 : 名古屋市桜通線/吹上 徒歩2分、名古屋市鶴舞線/御器所 徒歩10分、名古屋市桜通線/御器所 徒歩10分 /
面積 : 29.93m² /
築年月 : 築1年以内(2025年01月) /
賃料 : 8.032万円 /
管理費又は共益費等 : 8,680円 /
礼金等 : 8.9万円 /
敷金 : 無料、保証金等 : -、 償却、敷引 : - /
住宅総合保険等の損害保険料 : 11,000円(1年) /
その他 : 家から316mの場所に名古屋阿由知郵便局があります。セキュリティ面は、オートロック・TVインターホンなど充実しているので安心して生活できます。共用部には宅配ボックス・ゴミ出し24時間OKなどが備わっておりとても充実しています。できるだけ早めに不動産情報を集めたい方は当社スタッフまでご連絡ください。地域の不動産情報をいち早くお届けします。
更新料:11,000円
保証会社:利用必須 初回保証料:総賃料50% 月次保証料:1.5%
/ 駐車場 : 空有
10,000円
「プレサンス吹上駅前エテルノ」:名古屋市昭和区エリアの新居にピッタリ。家から316mの場所に名古屋阿由知郵便局があります。室内設備は浴室乾燥機・洗面所独立などが揃っているので、快適に過ごしやすいお部屋になります。豊富な知識を持ったスタッフが、名古屋市昭和区や名古屋市営桜通線吹上周辺でのお部屋探しを快適にサポート致します。まずはお問い合わせください。
|
||
| 所属団体 |
(公社)愛知県宅地建物取引業協会 - |
||

