ルクレ初台[3階]
情報公開日:2025/12/10(残り15日)
次回更新日は情報公開日より15日以内
物件画像
画像提供元:株式会社 アップル/アパマンショップ下北沢店
この物件のタグ
この物件にお問い合わせ
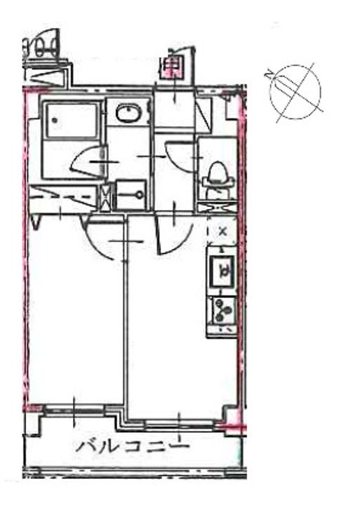
ルクレ初台[3階]の物件情報
| 賃料/管理費等 |
13.5万円(管理費等 1.5万円)
|
||
|---|---|---|---|
| 敷金 | 無料 | 礼金 | 13.5万円 |
| 種別/構造 | マンション/鉄筋コンクリート | 築年月 | 2003年05月 |
| 所在地 |
東京都渋谷区初台1丁目
|
||
| 主要交通機関 | 京王電鉄京王線/幡ヶ谷 徒歩6分 | ||
| 間取り | 1DK | 面積 | 30.22m² |
| 間取り詳細 | - | 方位 | 南西 |
| 階数/部屋番号 | 3階/地上6階建 | 駐車場 | 無し |
| 特徴 |
|
||
| 設備/条件 | エアコン、バス・トイレ別、追い焚き、浴室乾燥機、温水洗浄便座、ペット相談、BSアンテナ、CSアンテナ、CATV、システムキッチン、ガスコンロ、2階以上の物件、南向き、フローリング、室内洗濯機置場、バルコニー、エレベーター、バイク置き場あり、都市ガス、宅配ボックス | ||
| 備考 |
解約予告2ヶ月前※短期解約違約金有(1年未満/1ヶ月) 保証会社利用必須 ①シノケン②ルームID ①初回:月額総賃料の50%〜(最低保証料5万円、連保付3万円)、次年度以降1万円〜※引落とし手数料660円②初回:月額総賃料の50%/月次保証料:月額総賃料の1.5% プレミアデスク(2年/税込) 16500円/契約時ルームクリーニング費用(税込) 60500円/鍵交換費用 38500円 更新料:1ヶ月 [退去時費用(故意・過失等別途実費):退去費用実費精算] ※物件に関する備考は各社異なりますのでご確認のうえお問い合わせください。 |
||
| 契約期間 | 24ヶ月 | ||
|---|---|---|---|
| 入居可能時期 |
お問い合わせください。
|
||
| 初期費用 |
お問い合わせください。
|
||
| 住宅保険 | 20000円(2年) | 現状空室状況 | お問い合わせください。 |
情報提供元:株式会社 アップル/アパマンショップ下北沢店
画像提供元:株式会社 アップル/アパマンショップ下北沢店
※各種情報と現状に差異がある場合は、現状優先となります。取り扱い不動産会社が複数ある場合は、住宅保険等、一部条件が異なる場合もございますので、取扱店舗までご確認下さいませ。
この物件にお問い合わせ
周辺施設
| コンビニ |
ファミリーマート 渋谷本町一丁目店 JPローソン代々木郵便局店 |
|||
|---|---|---|---|---|
| スーパー |
全日食チェーンエフマートほしの 株式会社グルメシティ関東 幡ケ谷店 |
|||
| ドラッグストア |
クオール薬局 初台南店 六号通り調剤薬局 |
|||
| 保育園 |
ゆめの樹保育園はつだい |
|||
|---|---|---|---|---|
| 幼稚園 |
福田幼稚園 |
|||
| 小学校 |
渋谷区立幡代小学校 |
|||
| 中学校 |
渋谷区立代々木中学校 |
|||
※周辺情報は不動産会社から提供された情報ではなく、弊サービスで独自に収集した情報です。
担当者のオススメポイント!
新生活応援♪オンライン接客対応♪アパマンショップ下北沢店へ♪
ルクレ初台[3階]の取扱会社情報 28件
| 取扱会社(1) | 株式会社 アップル アパマンショップ下北沢店 | ||
|---|---|---|---|
| 住所 | 東京都世田谷区北沢2丁目26-23 | ||
| 電話番号 | 03-6858-2626 | 免許番号 | 国土交通大臣(5)第6971号 |
| 取引態様 | 仲介 | 物件管理番号 |
111221403 ※お問い合わせの際には、担当者へ物件管理番号をお伝えください。 |
| 物件に関する情報 |
物件の所在地 : 東京都渋谷区初台1丁目 /
交通の利便 : 京王電鉄京王線/幡ヶ谷 徒歩6分 /
面積 : 30.22m² /
築年月 : 2003年05月 /
賃料 : 13.5万円 /
管理費又は共益費等 : 1.5万円 /
礼金等 : 1ヶ月 /
敷金 : 無料、保証金等 : -、 償却、敷引 : - /
住宅総合保険等の損害保険料 : 20000円(2年) /
その他 : 解約予告2ヶ月前※短期解約違約金有(1年未満/1ヶ月) 保証会社利用必須 ①シノケン②ルームID ①初回:月額総賃料の50%〜(最低保証料5万円、連保付3万円)、次年度以降1万円〜※引落とし手数料660円②初回:月額総賃料の50%/月次保証料:月額総賃料の1.5% プレミアデスク(2年/税込) 16500円/契約時ルームクリーニング費用(税込) 60500円/鍵交換費用 38500円
更新料:1ヶ月
[退去時費用(故意・過失等別途実費):退去費用実費精算]
/ 駐車場 : 無し
新生活応援♪オンライン接客対応♪アパマンショップ下北沢店へ♪
|
||
| 所属団体 |
(公社)埼玉県宅地建物取引業協会 (公社) 首都圏不動産公正取引協議会加盟 - |
||
| 取扱会社(2) | リロの不動産(株)東都笹塚店 (情報提供媒体:SUUMO) | ||
|---|---|---|---|
| 住所 | 東京都渋谷区笹塚1-22-5 | ||
| 電話番号 | 03-5452-1411 | 免許番号 | 国土交通大臣(10)第3496号 |
| 取引態様 | 仲介 | 物件管理番号 |
100469750734 ※お問い合わせの際には、担当者へ物件管理番号をお伝えください。 |
| 物件に関する情報 |
物件の所在地 : 東京都渋谷区初台1 /
交通の利便 : 京王新線/初台駅 歩8分、京王新線/幡ヶ谷駅 歩8分 /
面積 : 30.22m² /
築年月 : 2003年05月 /
賃料 : 13.5万円 /
管理費又は共益費等 : 1.5万円 /
礼金等 : 1ヶ月 /
敷金 : 無料、保証金等 : -、 償却、敷引 : - /
住宅総合保険等の損害保険料 : 2万円2年 /
その他 : 合計11.55万円(内訳:プレミアデスク(2年/税込)1.65万円 契約時ルームクリーニング費用(税込)6.05万円 鍵交換代3.85万円)
更新料 新賃料1.00ヶ月分
ペット相談/事務所利用不可
普通借家 2年
保証会社利用必 ※エポス ルームIDからの審査になります。 【ルームID】月額総賃料の50%/月次保証料、月額総賃料の1.5%/1年毎10 000円 【アーク賃貸保証】月額総賃料の40%/次年度以降10,000円※引落し手数料550円(税込)
/ 駐車場 : 無
◆初期費用分割払い(後払い)サービスあり☆オンライン内見可☆
◆エリアに密着して45年以上!東京・神奈川エリアのお部屋探しならリロの不動産東都にお任せ☆物件のご相談などお気軽にご連絡下さい♪ |
||
| 取扱会社(3) | 株式会社 アップル アパマンショップ渋谷道玄坂店 | ||
|---|---|---|---|
| 住所 | 東京都渋谷区道玄坂2丁目9-9 | ||
| 電話番号 | 03-6892-7272 | 免許番号 | 国土交通大臣(5)第6971号 |
| 取引態様 | 仲介 | 物件管理番号 |
111221403 ※お問い合わせの際には、担当者へ物件管理番号をお伝えください。 |
| 物件に関する情報 |
物件の所在地 : 東京都渋谷区初台1丁目 /
交通の利便 : 京王電鉄京王線/幡ヶ谷 徒歩6分 /
面積 : 30.22m² /
築年月 : 2003年05月 /
賃料 : 13.5万円 /
管理費又は共益費等 : 1.5万円 /
礼金等 : 1ヶ月 /
敷金 : 無料、保証金等 : -、 償却、敷引 : - /
住宅総合保険等の損害保険料 : 20000円(2年) /
その他 : 解約予告2ヶ月前※短期解約違約金有(1年未満/1ヶ月) 保証会社利用必須 ①シノケン②ルームID ①初回:月額総賃料の50%〜(最低保証料5万円、連保付3万円)、次年度以降1万円〜※引落とし手数料660円②初回:月額総賃料の50%/月次保証料:月額総賃料の1.5% プレミアデスク(2年/税込) 16500円/契約時ルームクリーニング費用(税込) 60500円/鍵交換費用 38500円
更新料:1ヶ月
[退去時費用(故意・過失等別途実費):退去費用実費精算]
/ 駐車場 : 無し
契約金の分割払い相談出来ます!まで!
|
||
| 所属団体 |
(公社)東京都宅地建物取引協会 (公社) 首都圏不動産公正取引協議会加盟 - |
||
| 取扱会社(4) | 株式会社 アップル アパマンショップ経堂店 | ||
|---|---|---|---|
| 住所 | 東京都世田谷区経堂1丁目19-8 | ||
| 電話番号 | 03-6893-1010 | 免許番号 | 国土交通大臣(5)第6971号 |
| 取引態様 | 仲介 | 物件管理番号 |
111221403 ※お問い合わせの際には、担当者へ物件管理番号をお伝えください。 |
| 物件に関する情報 |
物件の所在地 : 東京都渋谷区初台1丁目 /
交通の利便 : 京王電鉄京王線/幡ヶ谷 徒歩6分 /
面積 : 30.22m² /
築年月 : 2003年05月 /
賃料 : 13.5万円 /
管理費又は共益費等 : 1.5万円 /
礼金等 : 1ヶ月 /
敷金 : 無料、保証金等 : -、 償却、敷引 : - /
住宅総合保険等の損害保険料 : 20000円(2年) /
その他 : 解約予告2ヶ月前※短期解約違約金有(1年未満/1ヶ月) 保証会社利用必須 ①シノケン②ルームID ①初回:月額総賃料の50%〜(最低保証料5万円、連保付3万円)、次年度以降1万円〜※引落とし手数料660円②初回:月額総賃料の50%/月次保証料:月額総賃料の1.5% プレミアデスク(2年/税込) 16500円/契約時ルームクリーニング費用(税込) 60500円/鍵交換費用 38500円
更新料:1ヶ月
[退去時費用(故意・過失等別途実費):退去費用実費精算]
/ 駐車場 : 無し
世田谷のお部屋探しはアパマンショップ経堂店にお任せ下さい!
|
||
| 所属団体 |
(公社)埼玉県宅地建物取引業協会 (公社) 首都圏不動産公正取引協議会加盟 - |
||
| 取扱会社(5) | (株)リライフ葛西店 (情報提供媒体:SUUMO) | ||
|---|---|---|---|
| 住所 | 東京都江戸川区東葛西6-4-19 HARUKAS 3階 | ||
| 電話番号 | 03-4329-2486 | 免許番号 | 国土交通大臣(1)第10792号 |
| 取引態様 | 仲介 | 物件管理番号 |
100469741455 ※お問い合わせの際には、担当者へ物件管理番号をお伝えください。 |
| 物件に関する情報 |
物件の所在地 : 東京都渋谷区初台1 /
交通の利便 : 京王新線/初台駅 歩8分、京王新線/幡ヶ谷駅 歩8分 /
面積 : 30.22m² /
築年月 : 2003年05月 /
賃料 : 13.5万円 /
管理費又は共益費等 : 1.5万円 /
礼金等 : 1ヶ月 /
敷金 : 無料、保証金等 : -、 償却、敷引 : - /
住宅総合保険等の損害保険料 : 2万円2年 /
その他 : 合計11.55万円(内訳:プレミアデスク(2年/税込)1.65万円 契約時ルームクリーニング費用(税込)6.05万円 鍵交換代3.85万円)
更新料 新賃料1.00ヶ月分
ペット相談/事務所利用不可
普通借家 2年
保証会社利用必 ※エポス ルームIDからの審査になります。 【ルームID】月額総賃料の50%/月次保証料、月額総賃料の1.5%/1年毎10 000円 【アーク賃貸保証】月額総賃料の40%/次年度以降10,000円※引落し手数料550円(税込)
/ 駐車場 : 無
|
||
| 所属団体 |
(公社)東京都宅地建物取引業協会会員 (公社)首都圏不動産公正取引協議会加盟 |
||
| 取扱会社(6) | 株式会社 大田ハウス アパマンショップ東中野店 | ||
|---|---|---|---|
| 住所 | 東京都中野区東中野3丁目1-1 | ||
| 電話番号 | 03-5332-6455 | 免許番号 | 東京都知事(4)第89428号 |
| 取引態様 | 仲介 | 物件管理番号 |
111221403 ※お問い合わせの際には、担当者へ物件管理番号をお伝えください。 |
| 物件に関する情報 |
物件の所在地 : 東京都渋谷区初台1丁目 /
交通の利便 : 京王電鉄京王線/幡ヶ谷 徒歩6分 /
面積 : 30.22m² /
築年月 : 2003年05月 /
賃料 : 13.5万円 /
管理費又は共益費等 : 1.5万円 /
礼金等 : 1ヶ月 /
敷金 : 無料、保証金等 : -、 償却、敷引 : - /
住宅総合保険等の損害保険料 : 20000円(2年) /
その他 : 解約予告2ヶ月前※短期解約違約金有(1年未満/1ヶ月) 保証会社利用必須 ①シノケン②ルームID ①初回:月額総賃料の50%〜(最低保証料5万円、連保付3万円)、次年度以降1万円〜※引落とし手数料660円②初回:月額総賃料の50%/月次保証料:月額総賃料の1.5% プレミアデスク(2年/税込) 16500円/契約時ルームクリーニング費用(税込) 60500円/鍵交換費用 38500円
更新料:1ヶ月
[退去時費用(故意・過失等別途実費):退去費用実費精算]
/ 駐車場 : 無し
当店では、仲介手数料(賃料の1.1ヶ月)の50%OFFです!
|
||
| 所属団体 |
(公社)全日本不動産協会東京都本部 (公社) 首都圏不動産公正取引協議会加盟 - |
||
| 取扱会社(7) | (株)リライフ池袋店 (情報提供媒体:SUUMO) | ||
|---|---|---|---|
| 住所 | 東京都豊島区南池袋1-21-7 イー・パートナーズ池袋駅前ビル502 | ||
| 電話番号 | 03-6370-0632 | 免許番号 | 国土交通大臣(1)第10792号 |
| 取引態様 | 仲介 | 物件管理番号 |
100469485715 ※お問い合わせの際には、担当者へ物件管理番号をお伝えください。 |
| 物件に関する情報 |
物件の所在地 : 東京都渋谷区初台1 /
交通の利便 : 京王新線/初台駅 歩8分、京王新線/幡ヶ谷駅 歩8分 /
面積 : 30.22m² /
築年月 : 2003年05月 /
賃料 : 13.5万円 /
管理費又は共益費等 : 1.5万円 /
礼金等 : 1ヶ月 /
敷金 : 無料、保証金等 : -、 償却、敷引 : - /
住宅総合保険等の損害保険料 : 2万円2年 /
その他 : 合計11.55万円(内訳:プレミアデスク(2年/税込)1.65万円 契約時ルームクリーニング費用(税込)6.05万円 鍵交換代3.85万円)
更新料 新賃料1.00ヶ月分
ペット相談/事務所利用不可
普通借家 2年
保証会社利用必 ※エポス ルームIDからの審査になります。 【ルームID】月額総賃料の50%/月次保証料、月額総賃料の1.5%/1年毎10 000円 【アーク賃貸保証】月額総賃料の40%/次年度以降10,000円※引落し手数料550円(税込)
/ 駐車場 : 無
当物件はオンラインまたはお近くの店舗でご相談お申込を承ります
室内見学承ります・お客様のご都合に合わせてオンラインまたはお近くの店舗でご提案可・初期費用分割払い可・クレジットカード利用可・引越業者割引・初期費用のお見積や入居日のご相談もお気軽にお問合せください |
||
| 所属団体 |
(公社)東京都宅地建物取引業協会会員 (公社)首都圏不動産公正取引協議会加盟 |
||
| 取扱会社(8) | (株)リライフ中野坂上店 (情報提供媒体:SUUMO) | ||
|---|---|---|---|
| 住所 | 東京都中野区本町2-49-12 誠文堂ビル1階 | ||
| 電話番号 | 03-6372-1936 | 免許番号 | 国土交通大臣(1)第10792号 |
| 取引態様 | 仲介 | 物件管理番号 |
100469675034 ※お問い合わせの際には、担当者へ物件管理番号をお伝えください。 |
| 物件に関する情報 |
物件の所在地 : 東京都渋谷区初台1 /
交通の利便 : 京王新線/初台駅 歩8分、京王新線/幡ヶ谷駅 歩8分 /
面積 : 30.22m² /
築年月 : 2003年05月 /
賃料 : 13.5万円 /
管理費又は共益費等 : 1.5万円 /
礼金等 : 1ヶ月 /
敷金 : 無料、保証金等 : -、 償却、敷引 : - /
住宅総合保険等の損害保険料 : 2万円2年 /
その他 : 合計11.55万円(内訳:プレミアデスク(2年/税込)1.65万円 契約時ルームクリーニング費用(税込)6.05万円 鍵交換代3.85万円)
更新料 新賃料1.00ヶ月分
ペット相談/事務所利用不可
普通借家 2年
保証会社利用必 ※エポス ルームIDからの審査になります。 【ルームID】月額総賃料の50%/月次保証料、月額総賃料の1.5%/1年毎10 000円 【アーク賃貸保証】月額総賃料の40%/次年度以降10,000円※引落し手数料550円(税込)
/ 駐車場 : 無
|
||
| 所属団体 |
(公社)東京都宅地建物取引業協会会員 (公社)首都圏不動産公正取引協議会加盟 |
||
| 取扱会社(9) | (株)リライフ練馬店 (情報提供媒体:SUUMO) | ||
|---|---|---|---|
| 住所 | 東京都練馬区豊玉北5-17-8 石山ビル3階 | ||
| 電話番号 | 03-4214-5152 | 免許番号 | 国土交通大臣(1)第10792号 |
| 取引態様 | 仲介 | 物件管理番号 |
100470079682 ※お問い合わせの際には、担当者へ物件管理番号をお伝えください。 |
| 物件に関する情報 |
物件の所在地 : 東京都渋谷区初台1 /
交通の利便 : 京王新線/初台駅 歩8分、京王新線/幡ヶ谷駅 歩8分 /
面積 : 30.22m² /
築年月 : 2003年05月 /
賃料 : 13.5万円 /
管理費又は共益費等 : 1.5万円 /
礼金等 : 1ヶ月 /
敷金 : 無料、保証金等 : -、 償却、敷引 : - /
住宅総合保険等の損害保険料 : 2万円2年 /
その他 : 合計11.55万円(内訳:プレミアデスク(2年/税込)1.65万円 契約時ルームクリーニング費用(税込)6.05万円 鍵交換代3.85万円)
更新料 新賃料1.00ヶ月分
ペット相談/事務所利用不可
普通借家 2年
保証会社利用必 ※エポス ルームIDからの審査になります。 【ルームID】月額総賃料の50%/月次保証料、月額総賃料の1.5%/1年毎10 000円 【アーク賃貸保証】月額総賃料の40%/次年度以降10,000円※引落し手数料550円(税込)
/ 駐車場 : 無
|
||
| 所属団体 |
(公社)東京都宅地建物取引業協会会員 (公社)首都圏不動産公正取引協議会加盟 |
||
| 取扱会社(10) | いい部屋ネット大東建託リーシング(株)新宿店 (情報提供媒体:SUUMO) | ||
|---|---|---|---|
| 住所 | 東京都新宿区西新宿1-16-13 桑原ビル4階 | ||
| 電話番号 | 03-3340-5770 | 免許番号 | 国土交通大臣(2)第9120号 |
| 取引態様 | 仲介 | 物件管理番号 |
100469345222 ※お問い合わせの際には、担当者へ物件管理番号をお伝えください。 |
| 物件に関する情報 |
物件の所在地 : 東京都渋谷区初台1 /
交通の利便 : 京王新線/幡ヶ谷駅 歩6分、京王新線/初台駅 歩8分、小田急線/代々木上原駅 歩17分 /
面積 : 30.22m² /
築年月 : 2003年05月 /
賃料 : 13.5万円 /
管理費又は共益費等 : 1.5万円 /
礼金等 : 1ヶ月 /
敷金 : 無料、保証金等 : -、 償却、敷引 : - /
住宅総合保険等の損害保険料 : 2万円2年 /
その他 : 合計11.55万円(内訳:プレミアデスク(2年/税込)1.65万円 契約時ルームクリーニング費用(税込)6.05万円 鍵交換代3.85万円)
更新料 新賃料1.00ヶ月分
ペット相談/事務所利用不可
普通借家 2年
保証会社利用必 ※エポス ルームIDからの審査になります。 【ルームID】月額総賃料の50%/月次保証料、月額総賃料の1.5%/1年毎10 000円 【アーク賃貸保証】月額総賃料の40%/次年度以降10,000円※引落し手数料550円(税込)
/ 駐車場 : 無
お部屋探しはいい部屋ネット新宿店で!!
初期費用クレカ利用OK!来店不要で契約できるIT重説対応物件!ご内覧は物件現地でのお待ち合わせも可能です。 |
||
| 所属団体 |
(公財)日本賃貸住宅管理協会会員 (公社)首都圏不動産公正取引協議会加盟 |
||
| 取扱会社(11) | シェルビー不動産(株)ROGER ROOM (情報提供媒体:SUUMO) | ||
|---|---|---|---|
| 住所 | 東京都渋谷区渋谷3-18-10大野ビル5階 | ||
| 電話番号 | 03-6450-6984 | 免許番号 | 東京都知事(1)第110173号 |
| 取引態様 | 仲介 | 物件管理番号 |
100469816217 ※お問い合わせの際には、担当者へ物件管理番号をお伝えください。 |
| 物件に関する情報 |
物件の所在地 : 東京都渋谷区初台1 /
交通の利便 : 京王新線/初台駅 歩8分、京王新線/幡ヶ谷駅 歩8分 /
面積 : 30.22m² /
築年月 : 2003年05月 /
賃料 : 13.5万円 /
管理費又は共益費等 : 1.5万円 /
礼金等 : 1ヶ月 /
敷金 : 無料、保証金等 : -、 償却、敷引 : - /
住宅総合保険等の損害保険料 : - /
その他 : 合計11.55万円(内訳:プレミアデスク(2年/税込)1.65万円 契約時ルームクリーニング費用(税込)6.05万円 鍵交換代3.85万円)
更新料 新賃料1.00ヶ月分
普通借家 2年
保証会社利用必 【ルームID】月額総賃料の50%【アーク賃貸保証】月額総賃料の40% 【ルームID】月次保証料、月額総賃料の1.5%/1年毎10,000円 、【アーク賃貸保証】次年度以降10,000円※引
/ 駐車場 : 無
仲介手数料・フリーレントなど気軽にご相談下さい♪
QUOカードプレゼントキャンペーン実施中 【】 ★公式LINE24時間お問い合わせ可能 ★シェルビー不動産へお気軽にお問合せ下さい♪ |
||
| 所属団体 |
(公社)東京都宅地建物取引業協会会員 (公社)首都圏不動産公正取引協議会加盟 |
||
| 取扱会社(12) | 株式会社 アップル アパマンショップ自由が丘店 | ||
|---|---|---|---|
| 住所 | 東京都目黒区自由が丘2丁目11-5 | ||
| 電話番号 | 03-6891-3636 | 免許番号 | 国土交通大臣(5)第6971号 |
| 取引態様 | 仲介 | 物件管理番号 |
111221403 ※お問い合わせの際には、担当者へ物件管理番号をお伝えください。 |
| 物件に関する情報 |
物件の所在地 : 東京都渋谷区初台1丁目 /
交通の利便 : 京王電鉄京王線/幡ヶ谷 徒歩6分 /
面積 : 30.22m² /
築年月 : 2003年05月 /
賃料 : 13.5万円 /
管理費又は共益費等 : 1.5万円 /
礼金等 : 1ヶ月 /
敷金 : 無料、保証金等 : -、 償却、敷引 : - /
住宅総合保険等の損害保険料 : 20000円(2年) /
その他 : 解約予告2ヶ月前※短期解約違約金有(1年未満/1ヶ月) 保証会社利用必須 ①シノケン②ルームID ①初回:月額総賃料の50%〜(最低保証料5万円、連保付3万円)、次年度以降1万円〜※引落とし手数料660円②初回:月額総賃料の50%/月次保証料:月額総賃料の1.5% プレミアデスク(2年/税込) 16500円/契約時ルームクリーニング費用(税込) 60500円/鍵交換費用 38500円
更新料:1ヶ月
[退去時費用(故意・過失等別途実費):退去費用実費精算]
/ 駐車場 : 無し
|
||
| 所属団体 |
(公社)東京都宅地建物取引業協会 (公社) 首都圏不動産公正取引協議会加盟 - |
||
| 取扱会社(13) | いい部屋ネット(株)ONE RED (情報提供媒体:SUUMO) | ||
|---|---|---|---|
| 住所 | 東京都世田谷区太子堂4-18-15 マガザン三軒茶屋2-3階 | ||
| 電話番号 | 03-6413-8218 | 免許番号 | 東京都知事(1)第109691号 |
| 取引態様 | 仲介 | 物件管理番号 |
100469576699 ※お問い合わせの際には、担当者へ物件管理番号をお伝えください。 |
| 物件に関する情報 |
物件の所在地 : 東京都渋谷区初台1 /
交通の利便 : 京王新線/初台駅 歩8分、京王新線/幡ヶ谷駅 歩8分 /
面積 : 30.22m² /
築年月 : 2003年05月 /
賃料 : 13.5万円 /
管理費又は共益費等 : 1.5万円 /
礼金等 : 1ヶ月 /
敷金 : 無料、保証金等 : -、 償却、敷引 : - /
住宅総合保険等の損害保険料 : 2万円2年 /
その他 : 合計7.7万円(内訳:プレミアデスク(2年/税込):16500円、契約時ルームクリーニング費用(税込):60500円)
更新料:1ヶ月、更新手数料:0ヶ月
ペット相談/事務所利用不可
保証会社利用必 ※エポス ルームIDからの審査になります。 【ルームID】月額総賃料の50%/月次保証料、月額総賃料の1.5%/1年毎10,000円 【アーク賃貸保証】月額総賃料の40%/次年度以降10,000円※引落し手数料550円(税込)
/ 駐車場 : 無
|
||
| 所属団体 |
(公社)東京都宅地建物取引業協会会員 (公社)首都圏不動産公正取引協議会加盟 |
||
| 取扱会社(14) | ハウスコム西東京(株)千歳烏山店 (情報提供媒体:SUUMO) | ||
|---|---|---|---|
| 住所 | 東京都世田谷区南烏山6-2-1 駅前ビル1階 | ||
| 電話番号 | 0800-1700824 | 免許番号 | 東京都知事(1)第108225号 |
| 取引態様 | 仲介 | 物件管理番号 |
100469407373 ※お問い合わせの際には、担当者へ物件管理番号をお伝えください。 |
| 物件に関する情報 |
物件の所在地 : 東京都渋谷区初台1 /
交通の利便 : 京王新線/初台駅 歩8分、京王新線/幡ヶ谷駅 歩8分 /
面積 : 30.22m² /
築年月 : 2003年05月 /
賃料 : 13.5万円 /
管理費又は共益費等 : 1.5万円 /
礼金等 : 1ヶ月 /
敷金 : 無料、保証金等 : -、 償却、敷引 : - /
住宅総合保険等の損害保険料 : 2万円2年 /
その他 : 合計11.55万円(内訳:プレミアデスク(2年/税込)1.65万円 契約時ルームクリーニング費用(税込)6.05万円 鍵交換代3.85万円)
更新料 新賃料1.00ヶ月分
ペット相談/事務所利用不可
普通借家 2年
保証会社利用必 ※エポス ルームIDからの審査になります。 【ルームID】月額総賃料の50%/月次保証料、月額総賃料の1.5%/1年毎10 000円 【アーク賃貸保証】月額総賃料の40%/次年度以降10,000円※引落し手数料550円(税込)
/ 駐車場 : 無
|
||
| 所属団体 |
(公財)日本賃貸住宅管理協会会員 (公社)首都圏不動産公正取引協議会加盟 |
||
| 取扱会社(15) | 株式会社ロイヤルコミュニティ アパマンショップ麻布店 | ||
|---|---|---|---|
| 住所 | 東京都港区麻布十番1丁目3-8 | ||
| 電話番号 | 03-5575-3441 | 免許番号 | 国土交通大臣(4)第7464号 |
| 取引態様 | 仲介 | 物件管理番号 |
111221403 ※お問い合わせの際には、担当者へ物件管理番号をお伝えください。 |
| 物件に関する情報 |
物件の所在地 : 東京都渋谷区初台1丁目 /
交通の利便 : 京王電鉄京王線/幡ヶ谷 徒歩6分 /
面積 : 30.22m² /
築年月 : 2003年05月 /
賃料 : 13.5万円 /
管理費又は共益費等 : 1.5万円 /
礼金等 : 1ヶ月 /
敷金 : 無料、保証金等 : -、 償却、敷引 : - /
住宅総合保険等の損害保険料 : 20000円(2年) /
その他 : 解約予告2ヶ月前※短期解約違約金有(1年未満/1ヶ月) 保証会社利用必須 ①シノケン②ルームID ①初回:月額総賃料の50%〜(最低保証料5万円、連保付3万円)、次年度以降1万円〜※引落とし手数料660円②初回:月額総賃料の50%/月次保証料:月額総賃料の1.5% プレミアデスク(2年/税込) 16500円/契約時ルームクリーニング費用(税込) 60500円/鍵交換費用 38500円
更新料:1ヶ月
[退去時費用(故意・過失等別途実費):退去費用実費精算]
/ 駐車場 : 無し
|
||
| 所属団体 |
(公社)全日本不動産協会東京都本部 (公社) 首都圏不動産公正取引協議会加盟 - |
||
| 取扱会社(16) | ハウスコム西東京(株)渋谷店 (情報提供媒体:SUUMO) | ||
|---|---|---|---|
| 住所 | 東京都渋谷区道玄坂2-30-4 玉久ビル6階 | ||
| 電話番号 | 0800-7770425 | 免許番号 | 東京都知事(1)第108225号 |
| 取引態様 | 仲介 | 物件管理番号 |
100469863342 ※お問い合わせの際には、担当者へ物件管理番号をお伝えください。 |
| 物件に関する情報 |
物件の所在地 : 東京都渋谷区初台1 /
交通の利便 : 京王新線/初台駅 歩8分、京王新線/幡ヶ谷駅 歩8分 /
面積 : 30.22m² /
築年月 : 2003年05月 /
賃料 : 13.5万円 /
管理費又は共益費等 : 1.5万円 /
礼金等 : 1ヶ月 /
敷金 : 無料、保証金等 : -、 償却、敷引 : - /
住宅総合保険等の損害保険料 : 2万円2年 /
その他 : 火災保険要加入
合計11.55万円(内訳:プレミアデスク(2年/税込)1.65万円 契約時ルームクリーニング費用(税込)6.05万円 鍵交換代3.85万円)
更新料 賃料1.00ヶ月分
ペット相談/事務所利用不可
保証会社利用必 ※エポス ルームIDからの審査になります。 【ルームID】月額総賃料の50%/月次保証料、月額総賃料の1.5%/1年毎10,000円
/ 駐車場 : 無
成約者特典BOOKOFF買取価格10%UP(景品限度額内)
独立洗面台が付いているので床が水で濡れたり鏡が曇ったりしにくく、清潔な状態を保ちやすくなっております。セキュリティ面は、オートロック・TVインターホンなどを設置しているので安全面でも優れております。 |
||
| 所属団体 |
(公財)日本賃貸住宅管理協会会員 (公社)首都圏不動産公正取引協議会加盟 |
||
| 取扱会社(17) | (株)リライフ門前仲町店 (情報提供媒体:SUUMO) | ||
|---|---|---|---|
| 住所 | 東京都江東区富岡1-7-4 キーポイントビル1階 | ||
| 電話番号 | 03-6478-1446 | 免許番号 | 国土交通大臣(1)第10792号 |
| 取引態様 | 仲介 | 物件管理番号 |
100469347843 ※お問い合わせの際には、担当者へ物件管理番号をお伝えください。 |
| 物件に関する情報 |
物件の所在地 : 東京都渋谷区初台1 /
交通の利便 : 京王新線/初台駅 歩8分、京王新線/幡ヶ谷駅 歩8分 /
面積 : 30.22m² /
築年月 : 2003年05月 /
賃料 : 13.5万円 /
管理費又は共益費等 : 1.5万円 /
礼金等 : 1ヶ月 /
敷金 : 無料、保証金等 : -、 償却、敷引 : - /
住宅総合保険等の損害保険料 : 2万円2年 /
その他 : 合計11.55万円(内訳:プレミアデスク(2年/税込)1.65万円 契約時ルームクリーニング費用(税込)6.05万円 鍵交換代3.85万円)
更新料 新賃料1.00ヶ月分
ペット相談/事務所利用不可
普通借家 2年
保証会社利用必 ※エポス ルームIDからの審査になります。 【ルームID】月額総賃料の50%/月次保証料、月額総賃料の1.5%/1年毎10 000円 【アーク賃貸保証】月額総賃料の40%/次年度以降10,000円※引落し手数料550円(税込)
/ 駐車場 : 無
当物件はオンラインまたはお近くの店舗でご相談お申込を承ります
室内見学承ります・お客様のご都合に合わせてオンラインまたはお近くの店舗でご提案可・初期費用分割払い可・クレジットカード利用可・引越業者割引・初期費用のお見積や入居日のご相談もお気軽にお問合せください |
||
| 所属団体 |
(公社)東京都宅地建物取引業協会会員 (公社)首都圏不動産公正取引協議会加盟 |
||
| 取扱会社(18) | 株式会社 アップル アパマンショップ目黒西口店 | ||
|---|---|---|---|
| 住所 | 東京都品川区上大崎2丁目27-1 | ||
| 電話番号 | 03-6867-1010 | 免許番号 | 国土交通大臣(5)第6971号 |
| 取引態様 | 仲介 | 物件管理番号 |
111221403 ※お問い合わせの際には、担当者へ物件管理番号をお伝えください。 |
| 物件に関する情報 |
物件の所在地 : 東京都渋谷区初台1丁目 /
交通の利便 : 京王電鉄京王線/幡ヶ谷 徒歩6分 /
面積 : 30.22m² /
築年月 : 2003年05月 /
賃料 : 13.5万円 /
管理費又は共益費等 : 1.5万円 /
礼金等 : 1ヶ月 /
敷金 : 無料、保証金等 : -、 償却、敷引 : - /
住宅総合保険等の損害保険料 : 20000円(2年) /
その他 : 解約予告2ヶ月前※短期解約違約金有(1年未満/1ヶ月) 保証会社利用必須 ①シノケン②ルームID ①初回:月額総賃料の50%〜(最低保証料5万円、連保付3万円)、次年度以降1万円〜※引落とし手数料660円②初回:月額総賃料の50%/月次保証料:月額総賃料の1.5% プレミアデスク(2年/税込) 16500円/契約時ルームクリーニング費用(税込) 60500円/鍵交換費用 38500円
更新料:1ヶ月
[退去時費用(故意・過失等別途実費):退去費用実費精算]
/ 駐車場 : 無し
お問い合わせはこちらまで!!【】
|
||
| 所属団体 |
(公社)東京都宅地建物取引協会 (公社) 首都圏不動産公正取引協議会加盟 - |
||
| 取扱会社(19) | 株式会社 アップル アパマンショップ品川駅前店 | ||
|---|---|---|---|
| 住所 | 東京都港区港南2丁目2-15 | ||
| 電話番号 | 03-5715-5353 | 免許番号 | 国土交通大臣(5)第6971号 |
| 取引態様 | 仲介 | 物件管理番号 |
111221403 ※お問い合わせの際には、担当者へ物件管理番号をお伝えください。 |
| 物件に関する情報 |
物件の所在地 : 東京都渋谷区初台1丁目 /
交通の利便 : 京王電鉄京王線/幡ヶ谷 徒歩6分 /
面積 : 30.22m² /
築年月 : 2003年05月 /
賃料 : 13.5万円 /
管理費又は共益費等 : 1.5万円 /
礼金等 : 1ヶ月 /
敷金 : 無料、保証金等 : -、 償却、敷引 : - /
住宅総合保険等の損害保険料 : 20000円(2年) /
その他 : 解約予告2ヶ月前※短期解約違約金有(1年未満/1ヶ月) 保証会社利用必須 ①シノケン②ルームID ①初回:月額総賃料の50%〜(最低保証料5万円、連保付3万円)、次年度以降1万円〜※引落とし手数料660円②初回:月額総賃料の50%/月次保証料:月額総賃料の1.5% プレミアデスク(2年/税込) 16500円/契約時ルームクリーニング費用(税込) 60500円/鍵交換費用 38500円
更新料:1ヶ月
[退去時費用(故意・過失等別途実費):退去費用実費精算]
/ 駐車場 : 無し
|
||
| 所属団体 |
(公社)東京都宅地建物取引協会 (公社) 首都圏不動産公正取引協議会加盟 - |
||
| 取扱会社(20) | (株)クレアスレント本店 (情報提供媒体:SUUMO) | ||
|---|---|---|---|
| 住所 | 東京都港区西新橋2-39-3 SVAX西新橋ビルディング2階 | ||
| 電話番号 | 0120-083089 | 免許番号 | 国土交通大臣(1)第10473号 |
| 取引態様 | 仲介 | 物件管理番号 |
100469402328 ※お問い合わせの際には、担当者へ物件管理番号をお伝えください。 |
| 物件に関する情報 |
物件の所在地 : 東京都渋谷区初台1 /
交通の利便 : 京王新線/初台駅 歩8分、京王新線/幡ヶ谷駅 歩8分 /
面積 : 30.22m² /
築年月 : 2003年05月 /
賃料 : 13.5万円 /
管理費又は共益費等 : 1.5万円 /
礼金等 : 1ヶ月 /
敷金 : 無料、保証金等 : -、 償却、敷引 : - /
住宅総合保険等の損害保険料 : 2万円2年 /
その他 : 合計11.55万円(内訳:プレミアデスク(2年/税込)1.65万円 契約時ルームクリーニング費用(税込)6.05万円 鍵交換代3.85万円)
更新料 新賃料1.00ヶ月分
ペット相談/事務所利用不可
普通借家 2年
保証会社利用必 ※エポス ルームIDからの審査になります。 【ルームID】月額総賃料の50%/月次保証料、月額総賃料の1.5%/1年毎10 000円 【アーク賃貸保証】月額総賃料の40%/次年度以降10,000円※引落し手数料550円(税込)
/ 駐車場 : 無
【インターネット無料】★こだわり設備のお部屋★
【お部屋探しはクレアスレント】★空室の確認は即時返答★LINEで簡単にお部屋探し★営業時間外もご対応可能★インターネットで紹介していない類似物件も多数ご用意、ご案内!お客様のご要望にお応えいたします! |
||
| 所属団体 |
(公社)東京都宅地建物取引業協会会員 (公社)首都圏不動産公正取引協議会加盟 |
||
| 取扱会社(21) | ピタットハウス池袋店スターツピタットハウス(株) (情報提供媒体:SUUMO) | ||
|---|---|---|---|
| 住所 | 東京都豊島区南池袋1-21-5 池袋大栄ビル6階 | ||
| 電話番号 | 03-5952-6222 | 免許番号 | 国土交通大臣(4)第7129号 |
| 取引態様 | 仲介 | 物件管理番号 |
100470454587 ※お問い合わせの際には、担当者へ物件管理番号をお伝えください。 |
| 物件に関する情報 |
物件の所在地 : 東京都渋谷区初台1 /
交通の利便 : 京王新線/初台駅 歩8分、京王新線/幡ヶ谷駅 歩8分 /
面積 : 30.22m² /
築年月 : 2003年05月 /
賃料 : 13.5万円 /
管理費又は共益費等 : 1.5万円 /
礼金等 : 1ヶ月 /
敷金 : 無料、保証金等 : -、 償却、敷引 : - /
住宅総合保険等の損害保険料 : 2万円2年 /
その他 : 合計11.55万円(内訳:プレミアデスク(2年/税込)1.65万円 契約時ルームクリーニング費用(税込)6.05万円 鍵交換代3.85万円)
更新料 新賃料1.00ヶ月分
ペット相談/事務所利用不可
普通借家 2年
保証会社利用必 ※エポス ルームIDからの審査になります。 【ルームID】月額総賃料の50%/月次保証料、月額総賃料の1.5%/1年毎10 000円 【アーク賃貸保証】月額総賃料の40%/次年度以降10,000円※引落し手数料550円(税込)
/ 駐車場 : 無
|
||
| 所属団体 |
(一社)全国住宅産業協会会員 (公社)首都圏不動産公正取引協議会加盟 |
||
| 取扱会社(22) | 株式会社 ジェイサポート アパマンショップ祖師ヶ谷大蔵店 | ||
|---|---|---|---|
| 住所 | 東京都世田谷区砧8丁目8-22 | ||
| 電話番号 | 03-6411-0490 | 免許番号 | 東京都知事(1)第109008号 |
| 取引態様 | 仲介 | 物件管理番号 |
111221403 ※お問い合わせの際には、担当者へ物件管理番号をお伝えください。 |
| 物件に関する情報 |
物件の所在地 : 東京都渋谷区初台1丁目 /
交通の利便 : 京王電鉄京王線/幡ヶ谷 徒歩6分 /
面積 : 30.22m² /
築年月 : 2003年05月 /
賃料 : 13.5万円 /
管理費又は共益費等 : 1.5万円 /
礼金等 : 1ヶ月 /
敷金 : 無料、保証金等 : -、 償却、敷引 : - /
住宅総合保険等の損害保険料 : 20000円(2年) /
その他 : 解約予告2ヶ月前※短期解約違約金有(1年未満/1ヶ月) 保証会社利用必須 ①シノケン②ルームID ①初回:月額総賃料の50%〜(最低保証料5万円、連保付3万円)、次年度以降1万円〜※引落とし手数料660円②初回:月額総賃料の50%/月次保証料:月額総賃料の1.5% プレミアデスク(2年/税込) 16500円/契約時ルームクリーニング費用(税込) 60500円/鍵交換費用 38500円
更新料:1ヶ月
[退去時費用(故意・過失等別途実費):退去費用実費精算]
/ 駐車場 : 無し
|
||
| 所属団体 |
公益社団法人東京都宅地建物取引業協会 (公社) 全国宅地建物取引業協会連合会加盟 - |
||
| 取扱会社(23) | 株式会社 大田ハウス アパマンショップ中野店 | ||
|---|---|---|---|
| 住所 | 東京都中野区中野5丁目63-1 | ||
| 電話番号 | 03-5345-9733 | 免許番号 | 東京都知事(4)第89428号 |
| 取引態様 | 仲介 | 物件管理番号 |
111221403 ※お問い合わせの際には、担当者へ物件管理番号をお伝えください。 |
| 物件に関する情報 |
物件の所在地 : 東京都渋谷区初台1丁目 /
交通の利便 : 京王電鉄京王線/幡ヶ谷 徒歩6分 /
面積 : 30.22m² /
築年月 : 2003年05月 /
賃料 : 13.5万円 /
管理費又は共益費等 : 1.5万円 /
礼金等 : 1ヶ月 /
敷金 : 無料、保証金等 : -、 償却、敷引 : - /
住宅総合保険等の損害保険料 : 20000円(2年) /
その他 : 解約予告2ヶ月前※短期解約違約金有(1年未満/1ヶ月) 保証会社利用必須 ①シノケン②ルームID ①初回:月額総賃料の50%〜(最低保証料5万円、連保付3万円)、次年度以降1万円〜※引落とし手数料660円②初回:月額総賃料の50%/月次保証料:月額総賃料の1.5% プレミアデスク(2年/税込) 16500円/契約時ルームクリーニング費用(税込) 60500円/鍵交換費用 38500円
更新料:1ヶ月
[退去時費用(故意・過失等別途実費):退去費用実費精算]
/ 駐車場 : 無し
当店では、仲介手数料(賃料の1.1ヶ月)の50%OFFです!
|
||
| 所属団体 |
(公社)全日本不動産協会東京都本部 (公社) 首都圏不動産公正取引協議会加盟 - |
||
| 取扱会社(24) | ピタットハウス明大前店スターツピタットハウス(株) (情報提供媒体:SUUMO) | ||
|---|---|---|---|
| 住所 | 東京都世田谷区松原2-45-2 レインボー591ビル3階 | ||
| 電話番号 | 03-5355-1313 | 免許番号 | 国土交通大臣(4)第7129号 |
| 取引態様 | 仲介 | 物件管理番号 |
100469432064 ※お問い合わせの際には、担当者へ物件管理番号をお伝えください。 |
| 物件に関する情報 |
物件の所在地 : 東京都渋谷区初台1 /
交通の利便 : 京王新線/初台駅 歩8分、京王新線/幡ヶ谷駅 歩8分 /
面積 : 30.22m² /
築年月 : 2003年05月 /
賃料 : 13.5万円 /
管理費又は共益費等 : 1.5万円 /
礼金等 : 1ヶ月 /
敷金 : 無料、保証金等 : -、 償却、敷引 : - /
住宅総合保険等の損害保険料 : 2万円2年 /
その他 : 合計11.55万円(内訳:プレミアデスク(2年/税込)1.65万円 契約時ルームクリーニング費用(税込)6.05万円 鍵交換代3.85万円)
更新料 新賃料1.00ヶ月分
ペット相談/事務所利用不可
普通借家 2年
保証会社利用必 ※エポス ルームIDからの審査になります。 【ルームID】月額総賃料の50%/月次保証料、月額総賃料の1.5%/1年毎10 000円 【アーク賃貸保証】月額総賃料の40%/次年度以降10,000円※引落し手数料550円(税込)
/ 駐車場 : 無
|
||
| 所属団体 |
(一社)全国住宅産業協会会員 (公社)首都圏不動産公正取引協議会加盟 |
||
| 取扱会社(25) | 株式会社 ネハヤス不動産 アパマンショップ池袋東口店 | ||
|---|---|---|---|
| 住所 | 東京都豊島区南池袋1丁目22-5 | ||
| 電話番号 | 03-5985-0525 | 免許番号 | 東京都知事(5)第82643号 |
| 取引態様 | 仲介 | 物件管理番号 |
111221403 ※お問い合わせの際には、担当者へ物件管理番号をお伝えください。 |
| 物件に関する情報 |
物件の所在地 : 東京都渋谷区初台1丁目 /
交通の利便 : 京王電鉄京王線/幡ヶ谷 徒歩6分 /
面積 : 30.22m² /
築年月 : 2003年05月 /
賃料 : 13.5万円 /
管理費又は共益費等 : 1.5万円 /
礼金等 : 1ヶ月 /
敷金 : 無料、保証金等 : -、 償却、敷引 : - /
住宅総合保険等の損害保険料 : 20000円(2年) /
その他 : 解約予告2ヶ月前※短期解約違約金有(1年未満/1ヶ月) 保証会社利用必須 ①シノケン②ルームID ①初回:月額総賃料の50%〜(最低保証料5万円、連保付3万円)、次年度以降1万円〜※引落とし手数料660円②初回:月額総賃料の50%/月次保証料:月額総賃料の1.5% プレミアデスク(2年/税込) 16500円/契約時ルームクリーニング費用(税込) 60500円/鍵交換費用 38500円
更新料:1ヶ月
[退去時費用(故意・過失等別途実費):退去費用実費精算]
/ 駐車場 : 無し
|
||
| 所属団体 |
(公社)全日本不動産協会東京都本部 (公社) 首都圏不動産公正取引協議会加盟 - |
||
| 取扱会社(26) | ハウスコム東東京(株)中野店 (情報提供媒体:SUUMO) | ||
|---|---|---|---|
| 住所 | 東京都中野区中野2-24-9 ナカノサウステラ レジデンス棟1階 | ||
| 電話番号 | 0800-1705715 | 免許番号 | 東京都知事(1)第108283号 |
| 取引態様 | 仲介 | 物件管理番号 |
100469788774 ※お問い合わせの際には、担当者へ物件管理番号をお伝えください。 |
| 物件に関する情報 |
物件の所在地 : 東京都渋谷区初台1 /
交通の利便 : 京王新線/初台駅 歩8分、京王新線/幡ヶ谷駅 歩8分 /
面積 : 30.22m² /
築年月 : 2003年05月 /
賃料 : 13.5万円 /
管理費又は共益費等 : 1.5万円 /
礼金等 : 1ヶ月 /
敷金 : 無料、保証金等 : -、 償却、敷引 : - /
住宅総合保険等の損害保険料 : 2万円2年 /
その他 : 火災保険要加入
合計11.55万円(内訳:プレミアデスク(2年/税込)1.65万円 契約時ルームクリーニング費用(税込)6.05万円 鍵交換代3.85万円)
更新料 賃料1.00ヶ月分
ペット相談/事務所利用不可
保証会社利用必 ※エポス ルームIDからの審査になります。 【ルームID】月額総賃料の50%/月次保証料、月額総賃料の1.5%/1年毎10,000円
/ 駐車場 : 無
成約者特典BOOKOFF買取価格10%UP(景品限度額内)
独立洗面台が付いているので床が水で濡れたり鏡が曇ったりしにくく、清潔な状態を保ちやすくなっております。セキュリティ面は、オートロック・TVインターホンなどを設置しているので安全面でも優れております。 |
||
| 所属団体 |
(公財)日本賃貸住宅管理協会会員 (公社)首都圏不動産公正取引協議会加盟 |
||
| 取扱会社(27) | (株)リライフ蒲田店 (情報提供媒体:SUUMO) | ||
|---|---|---|---|
| 住所 | 東京都大田区蒲田5-18-1 ザ・シティ蒲田6階 | ||
| 電話番号 | 03-4216-2419 | 免許番号 | 国土交通大臣(1)第10792号 |
| 取引態様 | 仲介 | 物件管理番号 |
100469497121 ※お問い合わせの際には、担当者へ物件管理番号をお伝えください。 |
| 物件に関する情報 |
物件の所在地 : 東京都渋谷区初台1 /
交通の利便 : 京王新線/初台駅 歩8分、京王新線/幡ヶ谷駅 歩8分 /
面積 : 30.22m² /
築年月 : 2003年05月 /
賃料 : 13.5万円 /
管理費又は共益費等 : 1.5万円 /
礼金等 : 1ヶ月 /
敷金 : 無料、保証金等 : -、 償却、敷引 : - /
住宅総合保険等の損害保険料 : 2万円2年 /
その他 : 合計11.55万円(内訳:プレミアデスク(2年/税込)1.65万円 契約時ルームクリーニング費用(税込)6.05万円 鍵交換代3.85万円)
更新料 新賃料1.00ヶ月分
ペット相談/事務所利用不可
普通借家 2年
保証会社利用必 ※エポス ルームIDからの審査になります。 【ルームID】月額総賃料の50%/月次保証料、月額総賃料の1.5%/1年毎10 000円 【アーク賃貸保証】月額総賃料の40%/次年度以降10,000円※引落し手数料550円(税込)
/ 駐車場 : 無
当物件はオンラインまたはお近くの店舗でご相談お申込を承ります
室内見学承ります・お客様のご都合に合わせてオンラインまたはお近くの店舗でご提案可・初期費用分割払い可・クレジットカード利用可・引越業者割引・初期費用のお見積や入居日のご相談もお気軽にお問合せください |
||
| 所属団体 |
(公社)東京都宅地建物取引業協会会員 (公社)首都圏不動産公正取引協議会加盟 |
||
| 取扱会社(28) | 株式会社 アップル アパマンショップ新宿東南口店 | ||
|---|---|---|---|
| 住所 | 東京都新宿区新宿3丁目36-18 | ||
| 電話番号 | 03-5312-7331 | 免許番号 | 国土交通大臣(5)第6971号 |
| 取引態様 | 仲介 | 物件管理番号 |
111221403 ※お問い合わせの際には、担当者へ物件管理番号をお伝えください。 |
| 物件に関する情報 |
物件の所在地 : 東京都渋谷区初台1丁目 /
交通の利便 : 京王電鉄京王線/幡ヶ谷 徒歩6分 /
面積 : 30.22m² /
築年月 : 2003年05月 /
賃料 : 13.5万円 /
管理費又は共益費等 : 1.5万円 /
礼金等 : 1ヶ月 /
敷金 : 無料、保証金等 : -、 償却、敷引 : - /
住宅総合保険等の損害保険料 : 20000円(2年) /
その他 : 解約予告2ヶ月前※短期解約違約金有(1年未満/1ヶ月) 保証会社利用必須 ①シノケン②ルームID ①初回:月額総賃料の50%〜(最低保証料5万円、連保付3万円)、次年度以降1万円〜※引落とし手数料660円②初回:月額総賃料の50%/月次保証料:月額総賃料の1.5% プレミアデスク(2年/税込) 16500円/契約時ルームクリーニング費用(税込) 60500円/鍵交換費用 38500円
更新料:1ヶ月
[退去時費用(故意・過失等別途実費):退去費用実費精算]
/ 駐車場 : 無し
初期費用立替・分割対応可!アパマンショップ新宿東南口店まで♪
|
||
| 所属団体 |
(公社)埼玉県宅地建物取引業協会 (公社) 首都圏不動産公正取引協議会加盟 - |
||

