東京都北区上十条5丁目の賃貸マンション
情報公開日:2025/10/31(残り15日)
次回更新日は情報公開日より15日以内
物件画像
画像提供元:株式会社 アップル/アパマンショップ新宿東南口店
この物件のタグ
この物件にお問い合わせ
東京都北区上十条5丁目の賃貸マンションの物件情報
| 賃料/管理費等 | 
            7.5万円(管理費等 9,000円)
           | ||
|---|---|---|---|
| 敷金 | 7.5万円 | 礼金 | 15.0万円 | 
| 種別/構造 | マンション/鉄骨鉄筋コンクリート | 築年月 | 1992年04月 | 
| 所在地 | 
          東京都北区上十条5丁目
         | ||
| 主要交通機関 | 東京都三田線/板橋本町 徒歩11分 | ||
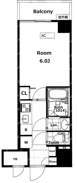
| 間取り | 1K | 面積 | 20.37m² | 
| 間取り詳細 | 6洋 | 方位 | 南東 | 
| 階数/部屋番号 | 7階/地上10階建 | 駐車場 | 無し | 
| 特徴 |  | ||
| 設備/条件 | エアコン、バス・トイレ別、浴室乾燥機、温水洗浄便座、リノベーション物件、CSアンテナ、インターネット対応、システムキッチン、IHコンロ、コンロ二口以上、2階以上の物件、南向き、室内洗濯機置場、バルコニー、エレベーター、外観タイル張り、駐輪場あり、都市ガス、オートロック | ||
| 備考 | (退去時)エアコンクリーニング費用/1台につき13200円 火災保険(地震特約付き)26000円 保証会社利用必須 日本セーフティー 保証料:賃料等の0.5ヶ月分(最低保証料2万円)/月額保証料 賃料等の1.2%  鍵交換費用 23100円 更新料:1ヶ月 [退去時費用(故意・過失等別途実費):室内清掃費用 38,500円] ※物件に関する備考は各社異なりますのでご確認のうえお問い合わせください。 | ||
| 契約期間 | 24ヶ月 | ||
|---|---|---|---|
| 入居可能時期 | 
            2025年12月上旬
           | ||
| 初期費用 | 
            お問い合わせください。
           | ||
| 住宅保険 | 20000円(2年) | 現状空室状況 | お問い合わせください。 | 
  情報提供元:株式会社 アップル/アパマンショップ新宿東南口店
  画像提供元:株式会社 アップル/アパマンショップ新宿東南口店
  ※各種情報と現状に差異がある場合は、現状優先となります。取り扱い不動産会社が複数ある場合は、住宅保険等、一部条件が異なる場合もございますので、取扱店舗までご確認下さいませ。
この物件にお問い合わせ
周辺施設
| コンビニ | ローソン 北区上十条5丁目店 セブン‐イレブン 北区上十条4丁目 | |||
|---|---|---|---|---|
| スーパー | スーパーJ&M まいばすけっと 十条仲原店 | |||
| ドラッグストア | 天心堂薬局 マツモトキヨシ板橋帝京大前店 | |||
| 保育園 | あおば保育園 西が丘 | |||
|---|---|---|---|---|
| 幼稚園 | 北区立 うめのき幼稚園 | |||
| 小学校 | 北区立 王子第三小学校 | |||
| 中学校 | 板橋区立 加賀中学校 | |||
※周辺情報は不動産会社から提供された情報ではなく、弊サービスで独自に収集した情報です。
担当者のオススメポイント!
アパマンショップ新宿東南口店はオンライン接客を導入しています
東京都北区上十条5丁目の賃貸マンションの取扱会社情報 5件
| 取扱会社(1) | 株式会社 アップル アパマンショップ新宿東南口店 | ||
|---|---|---|---|
| 住所 | 東京都新宿区新宿3丁目36-18 | ||
| 電話番号 | 03-5312-7331 | 免許番号 | 国土交通大臣(5)第6971号 | 
| 取引態様 | 仲介 | 物件管理番号 | 75591504 ※お問い合わせの際には、担当者へ物件管理番号をお伝えください。 | 
| 物件に関する情報 | 
                  物件の所在地 : 東京都北区上十条5丁目 /
                  交通の利便 : 東京都三田線/板橋本町 徒歩11分 /
                  面積 : 20.37m² /
                  築年月 : 1992年04月 /
                  賃料 : 7.5万円 /
                  管理費又は共益費等 : 9,000円 /
                  礼金等 : 2ヶ月 /
                  敷金 : 1ヶ月、保証金等 : -、 償却、敷引 : - /
                  住宅総合保険等の損害保険料 : 20000円(2年) /
                  その他 : (退去時)エアコンクリーニング費用/1台につき13200円 火災保険(地震特約付き)26000円 保証会社利用必須 日本セーフティー 保証料:賃料等の0.5ヶ月分(最低保証料2万円)/月額保証料 賃料等の1.2%  鍵交換費用 23100円
更新料:1ヶ月
[退去時費用(故意・過失等別途実費):室内清掃費用 38,500円]
                    / 駐車場 : 無し
                 
                  アパマンショップ新宿東南口店はオンライン接客を導入しています
                 | ||
| 所属団体 | (公社)埼玉県宅地建物取引業協会 (公社) 首都圏不動産公正取引協議会加盟 - | ||
| 取扱会社(2) | 株式会社 エスアールエステート アパマンショップ駒込店 | ||
|---|---|---|---|
| 住所 | 東京都豊島区駒込2丁目14-12 | ||
| 電話番号 | 03-5961-5656 | 免許番号 | 東京都知事(4)第89517号 | 
| 取引態様 | 仲介 | 物件管理番号 | 75591504 ※お問い合わせの際には、担当者へ物件管理番号をお伝えください。 | 
| 物件に関する情報 | 
                  物件の所在地 : 東京都北区上十条5丁目 /
                  交通の利便 : 東京都三田線/板橋本町 徒歩11分 /
                  面積 : 20.37m² /
                  築年月 : 1992年04月 /
                  賃料 : 7.5万円 /
                  管理費又は共益費等 : 9,000円 /
                  礼金等 : 2ヶ月 /
                  敷金 : 1ヶ月、保証金等 : -、 償却、敷引 : - /
                  住宅総合保険等の損害保険料 : 20000円(2年) /
                  その他 : (退去時)エアコンクリーニング費用/1台につき13200円 火災保険(地震特約付き)26000円 保証会社利用必須 日本セーフティー 保証料:賃料等の0.5ヶ月分(最低保証料2万円)/月額保証料 賃料等の1.2%  鍵交換費用 23100円
更新料:1ヶ月
[退去時費用(故意・過失等別途実費):室内清掃費用 38,500円]
                    / 駐車場 : 無し
                 | ||
| 所属団体 | (公社)東京都宅地建物取引業協会 (公社) 首都圏不動産公正取引協議会加盟 - | ||
| 取扱会社(3) | 株式会社 ネハヤス不動産 アパマンショップ池袋東口店 | ||
|---|---|---|---|
| 住所 | 東京都豊島区南池袋1丁目22-5 | ||
| 電話番号 | 03-5985-0525 | 免許番号 | 東京都知事(5)第82643号 | 
| 取引態様 | 仲介 | 物件管理番号 | 75591504 ※お問い合わせの際には、担当者へ物件管理番号をお伝えください。 | 
| 物件に関する情報 | 
                  物件の所在地 : 東京都北区上十条5丁目 /
                  交通の利便 : 東京都三田線/板橋本町 徒歩11分 /
                  面積 : 20.37m² /
                  築年月 : 1992年04月 /
                  賃料 : 7.5万円 /
                  管理費又は共益費等 : 9,000円 /
                  礼金等 : 2ヶ月 /
                  敷金 : 1ヶ月、保証金等 : -、 償却、敷引 : - /
                  住宅総合保険等の損害保険料 : 20000円(2年) /
                  その他 : (退去時)エアコンクリーニング費用/1台につき13200円 火災保険(地震特約付き)26000円 保証会社利用必須 日本セーフティー 保証料:賃料等の0.5ヶ月分(最低保証料2万円)/月額保証料 賃料等の1.2%  鍵交換費用 23100円
更新料:1ヶ月
[退去時費用(故意・過失等別途実費):室内清掃費用 38,500円]
                    / 駐車場 : 無し
                 | ||
| 所属団体 | (公社)全日本不動産協会東京都本部 (公社) 首都圏不動産公正取引協議会加盟 - | ||
| 取扱会社(4) | 株式会社 アップル アパマンショップ十条店 | ||
|---|---|---|---|
| 住所 | 東京都北区上十条2丁目30-1 | ||
| 電話番号 | 03-6893-2626 | 免許番号 | 国土交通大臣(5)第6971号 | 
| 取引態様 | 仲介 | 物件管理番号 | 75591504 ※お問い合わせの際には、担当者へ物件管理番号をお伝えください。 | 
| 物件に関する情報 | 
                  物件の所在地 : 東京都北区上十条5丁目 /
                  交通の利便 : 東京都三田線/板橋本町 徒歩11分 /
                  面積 : 20.37m² /
                  築年月 : 1992年04月 /
                  賃料 : 7.5万円 /
                  管理費又は共益費等 : 9,000円 /
                  礼金等 : 2ヶ月 /
                  敷金 : 1ヶ月、保証金等 : -、 償却、敷引 : - /
                  住宅総合保険等の損害保険料 : 20000円(2年) /
                  その他 : (退去時)エアコンクリーニング費用/1台につき13200円 火災保険(地震特約付き)26000円 保証会社利用必須 日本セーフティー 保証料:賃料等の0.5ヶ月分(最低保証料2万円)/月額保証料 賃料等の1.2%  鍵交換費用 23100円
更新料:1ヶ月
[退去時費用(故意・過失等別途実費):室内清掃費用 38,500円]
                    / 駐車場 : 無し
                 
                  ★お問合せはアパマンショップ十条店★
                 | ||
| 所属団体 | (公社)東京都宅地建物取引業協会 (公社) 首都圏不動産公正取引協議会加盟 - | ||
| 取扱会社(5) | 株式会社 アップル アパマンショップ赤羽南口店 | ||
|---|---|---|---|
| 住所 | 東京都北区赤羽南1丁目7-3 | ||
| 電話番号 | 03-3903-7733 | 免許番号 | 国土交通大臣(5)第6971号 | 
| 取引態様 | 仲介 | 物件管理番号 | 75591504 ※お問い合わせの際には、担当者へ物件管理番号をお伝えください。 | 
| 物件に関する情報 | 
                  物件の所在地 : 東京都北区上十条5丁目 /
                  交通の利便 : 東京都三田線/板橋本町 徒歩11分 /
                  面積 : 20.37m² /
                  築年月 : 1992年04月 /
                  賃料 : 7.5万円 /
                  管理費又は共益費等 : 9,000円 /
                  礼金等 : 2ヶ月 /
                  敷金 : 1ヶ月、保証金等 : -、 償却、敷引 : - /
                  住宅総合保険等の損害保険料 : 20000円(2年) /
                  その他 : (退去時)エアコンクリーニング費用/1台につき13200円 火災保険(地震特約付き)26000円 保証会社利用必須 日本セーフティー 保証料:賃料等の0.5ヶ月分(最低保証料2万円)/月額保証料 賃料等の1.2%  鍵交換費用 23100円
更新料:1ヶ月
[退去時費用(故意・過失等別途実費):室内清掃費用 38,500円]
                    / 駐車場 : 無し
                 | ||
| 所属団体 | (公社)東京都宅地建物取引業協会 (公社) 首都圏不動産公正取引協議会加盟 - | ||


 
                 
                 
                 
                   
                   
                   
                   
                   
                   
                   
                   
                   
                   
                   
                   
                   
                   
                   
                   
                   
                   
                   
                   
                   
                   
                   
                   
                   
                   
                   
                   
                   
