ブライズ鷺沼
情報公開日:2025/12/11(残り15日)
次回更新日は2025/12/18
物件画像
画像提供元:(株)ネクストライフ立川店
この物件のタグ
この物件にお問い合わせ
ブライズ鷺沼の物件情報
| 賃料/管理費等 |
9.25万円(管理費等 1.2万円)
|
||
|---|---|---|---|
| 敷金 | 無料 | 礼金 | 9.25万円 |
| 種別/構造 | マンション/RC | 築年月 | 新築(2025年09月) |
| 敷金積み増し | ペット飼育の場合敷金1ヶ月(総額) | ||
| 所在地 |
神奈川県川崎市宮前区土橋2
|
||
| 主要交通機関 | 東急田園都市線/鷺沼駅 歩11分 | ||
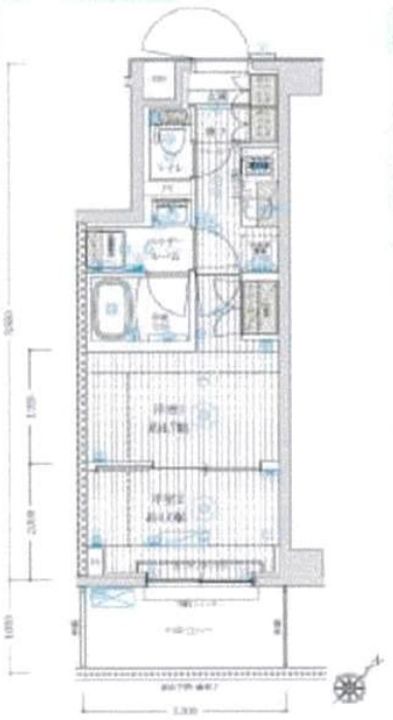
| 間取り | 1K | 面積 | 26.86m² |
| 間取り詳細 | - | 方位 | 南東 |
| 階数/部屋番号 | B1階/地下1地上4階建 | 駐車場 | 無 |
| 特徴 |
|
||
| 設備/条件 | バストイレ別、ガスコンロ対応、クロゼット、浴室乾燥機、オートロック、室内洗濯置、シューズボックス、脱衣所、エレベーター、洗面所独立、洗面化粧台、宅配ボックス、外壁タイル張り、即入居可、敷金不要、分譲賃貸、専用庭、CS、ネット使用料不要、築2年以内、敷地内ごみ置き場、東南向き、都市ガス、BS、初期費用カード決済可 | ||
| 備考 |
更新事務手数料:5500円 引落手数料:330円/月 24時間サポート:16500円/2年 ペット飼育:敷金1ヶ月分追加(償却)、小型犬または猫1匹まで 退去時のクリーニング費用(実費)は借主負担になります エアコンクリーニング費:16500円 違約金:1年未満の解約時総賃料1ヶ月分 更新料 新賃料1.00ヶ月分 二人入居可 普通借家 2年 保証会社利用必 初回(月額総賃料の50%)、1年毎(15000円) ※物件に関する備考は各社異なりますのでご確認のうえお問い合わせください。 |
||
| 契約期間 | お問い合わせください。 | ||
|---|---|---|---|
| 入居可能時期 |
即入居可
|
||
| 初期費用 |
お問い合わせください。
|
||
| 住宅保険 | 1.8万円2年 | 現状空室状況 | お問い合わせください。 |
情報提供元:(株)ネクストライフ立川店
画像提供元:(株)ネクストライフ立川店
※各種情報と現状に差異がある場合は、現状優先となります。取り扱い不動産会社が複数ある場合は、住宅保険等、一部条件が異なる場合もございますので、取扱店舗までご確認下さいませ。
この物件にお問い合わせ
周辺施設
| コンビニ |
ファミリーマート 土橋一丁目店 セブン‐イレブン 川崎土橋南店 |
|||
|---|---|---|---|---|
| スーパー |
株式会社いなげや 川崎土橋店 成城石井 宮前平店 |
|||
| ドラッグストア |
FitCareDEPOT 東名川崎店 マツモトキヨシ ドラッグストア宮前平駅前店 |
|||
| 保育園 |
あおぞら 保育園 |
|||
|---|---|---|---|---|
| 幼稚園 |
さぎぬま幼稚園 |
|||
| 小学校 |
川崎市立土橋小学校 |
|||
| 中学校 |
川崎市立宮前平中学校 |
|||
※周辺情報は不動産会社から提供された情報ではなく、弊サービスで独自に収集した情報です。
担当者のオススメポイント!
【0120-955-199】お気軽におくださいませ♪
おでのお問い合わせは 8時30分 から 21時まで 可能です!お気軽にフリーダイヤルまでご連絡ください♪◇webでのお申し込みも対応可能です◇
ブライズ鷺沼の取扱会社情報 7件
| 取扱会社(1) | (株)ネクストライフ立川店 (情報提供媒体:SUUMO) | ||
|---|---|---|---|
| 住所 | 東京都立川市柴崎町3-8-1 NACビル5階 | ||
| 電話番号 | 050-5530-2874 | 免許番号 | 国土交通大臣(3)第8175号 |
| 取引態様 | 仲介 | 物件管理番号 |
100475672253 ※お問い合わせの際には、担当者へ物件管理番号をお伝えください。 |
| 物件に関する情報 |
物件の所在地 : 神奈川県川崎市宮前区土橋2 /
交通の利便 : 東急田園都市線/鷺沼駅 歩11分 /
面積 : 26.86m² /
築年月 : 新築(2025年09月) /
賃料 : 9.25万円 /
管理費又は共益費等 : 1.2万円 /
礼金等 : 1ヶ月 /
敷金 : 無料、保証金等 : -、 償却、敷引 : - /
住宅総合保険等の損害保険料 : 1.8万円2年 /
その他 : 更新事務手数料:5500円 引落手数料:330円/月 24時間サポート:16500円/2年 ペット飼育:敷金1ヶ月分追加(償却)、小型犬または猫1匹まで 退去時のクリーニング費用(実費)は借主負担になります エアコンクリーニング費:16500円 違約金:1年未満の解約時総賃料1ヶ月分
更新料 新賃料1.00ヶ月分
二人入居可
普通借家 2年
保証会社利用必 初回(月額総賃料の50%)、1年毎(15000円)
/ 駐車場 : 無
【0120-955-199】お気軽におくださいませ♪
おでのお問い合わせは 8時30分 から 21時まで 可能です!お気軽にフリーダイヤルまでご連絡ください♪◇webでのお申し込みも対応可能です◇ |
||
| 所属団体 |
(公社)東京都宅地建物取引業協会会員 (公社)首都圏不動産公正取引協議会加盟 |
||
| 取扱会社(2) | (株)ネクストライフ町田本店 (情報提供媒体:SUUMO) | ||
|---|---|---|---|
| 住所 | 東京都町田市原町田4-1-10 フジモトビル2階 | ||
| 電話番号 | 050-5530-2874 | 免許番号 | 国土交通大臣(3)第8175号 |
| 取引態様 | 仲介 | 物件管理番号 |
100465669202 ※お問い合わせの際には、担当者へ物件管理番号をお伝えください。 |
| 物件に関する情報 |
物件の所在地 : 神奈川県川崎市宮前区土橋2 /
交通の利便 : 東急田園都市線/鷺沼駅 歩11分 /
面積 : 26.86m² /
築年月 : 新築(2025年09月) /
賃料 : 9.25万円 /
管理費又は共益費等 : 1.2万円 /
礼金等 : 1ヶ月 /
敷金 : 無料、保証金等 : -、 償却、敷引 : - /
住宅総合保険等の損害保険料 : 1.8万円2年 /
その他 : 更新事務手数料:5500円 引落手数料:330円/月 24時間サポート:16500円/2年 ペット飼育:敷金1ヶ月分追加(償却)、小型犬または猫1匹まで 退去時のクリーニング費用(実費)は借主負担になります エアコンクリーニング費:16500円 違約金:1年未満の解約時総賃料1ヶ月分
更新料 新賃料1.00ヶ月分
二人入居可
普通借家 2年
保証会社利用必 初回(月額総賃料の50%)、1年毎(15000円)
/ 駐車場 : 無
【0120-955-199】お気軽におくださいませ♪
おでのお問い合わせは 8時30分 から 20時まで 可能です!お気軽にフリーダイヤルまでご連絡ください♪◇webでのお申し込みも対応可能です◇ |
||
| 所属団体 |
(公社)東京都宅地建物取引業協会会員 (公社)首都圏不動産公正取引協議会加盟 |
||
| 取扱会社(3) | いい部屋ネット大東建託リーシング(株)溝の口店 (情報提供媒体:SUUMO) | ||
|---|---|---|---|
| 住所 | 神奈川県川崎市高津区溝口2-9-26 HARUKA BLDG2階 | ||
| 電話番号 | 044-833-5551 | 免許番号 | 国土交通大臣(2)第9120号 |
| 取引態様 | 仲介 | 物件管理番号 |
100452354140 ※お問い合わせの際には、担当者へ物件管理番号をお伝えください。 |
| 物件に関する情報 |
物件の所在地 : 神奈川県川崎市宮前区土橋2 /
交通の利便 : 東急田園都市線/鷺沼駅 歩11分、東急田園都市線/宮前平駅 歩12分、東急田園都市線/たまプラーザ駅 歩26分 /
面積 : 26.86m² /
築年月 : 新築(2025年09月) /
賃料 : 9.25万円 /
管理費又は共益費等 : 1.2万円 /
礼金等 : 1ヶ月 /
敷金 : 無料、保証金等 : -、 償却、敷引 : - /
住宅総合保険等の損害保険料 : 1.8万円2年 /
その他 : エアコンクリーニング代:16500円 ルームクリーニング代:66000円~77000円占有面積により異なります。更新時事務手数料5500円ペット飼育時敷金1ヵ月増(退去時償却)短期解約違約金:1年未満解約時、賃料1ヵ月分
更新料 新賃料1.00ヶ月分 24時間サポート 16500円()
ペット相談
保証会社利用必 利用必須 備考:初回契約時:50%、更新時:15 000円、※学生プラン:初回契約時30% 更新料15000円
/ 駐車場 : 無
お部屋さがしはいい部屋ネットの大東建託で!
室内設備は洗面化粧台・浴室乾燥機など豊富に揃っており、過ごしやすいお部屋になっております。共用部には宅配ボックスを設置しているため、対面で荷物を受け取る必要がなくなります。 |
||
| 所属団体 |
(公財)日本賃貸住宅管理協会会員 (公社)首都圏不動産公正取引協議会加盟 |
||
| 取扱会社(4) | (株)賃貸ステーション青葉台店 (情報提供媒体:SUUMO) | ||
|---|---|---|---|
| 住所 | 神奈川県横浜市青葉区青葉台1-6-12カンゼームビル3F | ||
| 電話番号 | 045-511-7422 | 免許番号 | 国土交通大臣(3)第8686号 |
| 取引態様 | 仲介 | 物件管理番号 |
100451560036 ※お問い合わせの際には、担当者へ物件管理番号をお伝えください。 |
| 物件に関する情報 |
物件の所在地 : 神奈川県川崎市宮前区土橋2 /
交通の利便 : 東急田園都市線/鷺沼駅 歩10分、東急田園都市線/宮前平駅 歩13分、東急田園都市線/たまプラーザ駅 歩26分 /
面積 : 26.86m² /
築年月 : 新築(2025年09月) /
賃料 : 9.25万円 /
管理費又は共益費等 : 1.2万円 /
礼金等 : 1ヶ月 /
敷金 : 無料、保証金等 : -、 償却、敷引 : - /
住宅総合保険等の損害保険料 : 1.8万円2年 /
その他 : 当社は【賃貸物件】に特化した不動産業者です。【初めての一人暮らし】、【カップル様の同棲】、【お友達とのルームシェア】、【ファミリーの住み替え、転勤】等‥、どのようなお客様のご希望にあった物件をご紹介いたします!当社は、近隣他社様とのネットワークによりほぼ全ての物件をご紹介できます。些細な事でもかまいません。お気軽にご相談ください!お部屋探しは~素敵なお部屋の最寄り駅~賃貸ステーションまで!
合計3.3万円(内訳:エアコンクリーニング代16500円/24時間サポート〈2年〉16500円)
室内清掃費用66000円
ペット相談
普通借家 2年
保証会社利用必 初回契約時:50%、更新時:15,000円、※学生プラン:初回契約時30% 更新料15000円
/ 駐車場 : 近隣駐車場
近隣250m17600円
TEL 045-511-7422 賃貸ステーション青葉台店へ
【オートロック付新築マンション♪】【インターネット無料】【都市ガス、ペット可】 |
||
| 所属団体 |
(公社)全日本不動産協会神奈川県本部会員 (公社)首都圏不動産公正取引協議会加盟 |
||
| 取扱会社(5) | (株)賃貸ステーション向ヶ丘遊園店 (情報提供媒体:SUUMO) | ||
|---|---|---|---|
| 住所 | 神奈川県川崎市多摩区登戸 2130-2 109号 110号 | ||
| 電話番号 | 044-299-7936 | 免許番号 | 国土交通大臣(3)第8686号 |
| 取引態様 | 仲介 | 物件管理番号 |
100452416418 ※お問い合わせの際には、担当者へ物件管理番号をお伝えください。 |
| 物件に関する情報 |
物件の所在地 : 神奈川県川崎市宮前区土橋2 /
交通の利便 : 東急田園都市線/鷺沼駅 歩10分、東急田園都市線/宮前平駅 歩13分、東急田園都市線/たまプラーザ駅 歩26分 /
面積 : 26.86m² /
築年月 : 新築(2025年09月) /
賃料 : 9.25万円 /
管理費又は共益費等 : 1.2万円 /
礼金等 : 1ヶ月 /
敷金 : 無料、保証金等 : -、 償却、敷引 : - /
住宅総合保険等の損害保険料 : 1.8万円2年 /
その他 : ご条件はお客様それぞれ【お客様に合った物件まとめて】ご提案します【向ヶ丘遊園駅から徒歩1分】★だと今日・明日のご見学もスムーズ★小田急小田原線と南武線、東急田園都市線・京王相模原線は、【向ヶ丘遊園店】にお任せを。当社がネットに掲載している物件は勿論、他社掲載の物件もまとめてご見学可能です。空室状況確認・先行申込・審査等おでも可能です★
合計3.3万円(内訳:エアコンクリーニング代16500円/24時間安心サポート16500円)
室内清掃費用66000円
単身者可/二人入居可/子供可/ペット相談
普通借家 2年
保証会社利用必 初回:総賃料の50%・年15,000円
/ 駐車場 : 近隣駐車場
近隣250m17600円
★お部屋探しは賃貸ステーション向ヶ丘遊園店へ★
★大切なペットと一緒にお暮しになれます★経済的な都市ガス★インターネット無料★オートロック付で防犯面も安心★浴室乾燥機、独立洗面台等人気設備が充実★システムキッチンでお料理もバッチシ★ |
||
| 所属団体 |
(公社)全日本不動産協会神奈川県本部会員 (公社)首都圏不動産公正取引協議会加盟 |
||
| 取扱会社(6) | (株)ネクストライフ溝の口店 (情報提供媒体:SUUMO) | ||
|---|---|---|---|
| 住所 | 神奈川県川崎市高津区溝口1-13-18 セキグチビル3階 | ||
| 電話番号 | 050-5530-2874 | 免許番号 | 国土交通大臣(3)第8175号 |
| 取引態様 | 仲介 | 物件管理番号 |
100451580893 ※お問い合わせの際には、担当者へ物件管理番号をお伝えください。 |
| 物件に関する情報 |
物件の所在地 : 神奈川県川崎市宮前区土橋2 /
交通の利便 : 東急田園都市線/鷺沼駅 歩11分 /
面積 : 26.86m² /
築年月 : 新築(2025年09月) /
賃料 : 9.25万円 /
管理費又は共益費等 : 1.2万円 /
礼金等 : 1ヶ月 /
敷金 : 無料、保証金等 : -、 償却、敷引 : - /
住宅総合保険等の損害保険料 : 1.8万円2年 /
その他 : 更新事務手数料:5500円 引落手数料:330円/月 24時間サポート:16500円/2年 ペット飼育:敷金1ヶ月分追加(償却)、小型犬または猫1匹まで 退去時のクリーニング費用(実費)は借主負担になります エアコンクリーニング費:16500円 違約金:1年未満の解約時総賃料1ヶ月分
更新料 新賃料1.00ヶ月分
二人入居可
普通借家 2年
保証会社利用必 初回(月額総賃料の50%)、1年毎(15000円)
/ 駐車場 : 無
【0120-955-199】お気軽におくださいませ♪
おでのお問い合わせは 8時30分 から 21時まで 可能です!お気軽にフリーダイヤルまでご連絡ください♪◇webでのお申し込みも対応可能です◇ |
||
| 所属団体 |
(公社)神奈川県宅地建物取引業協会会員 (公社)首都圏不動産公正取引協議会加盟 |
||
| 取扱会社(7) | (株)ネクストライフ相模大野店 (情報提供媒体:SUUMO) | ||
|---|---|---|---|
| 住所 | 神奈川県相模原市南区相模大野3-12-6 アポロ相模大野ビル2階 | ||
| 電話番号 | 050-5530-2874 | 免許番号 | 国土交通大臣(3)第8175号 |
| 取引態様 | 仲介 | 物件管理番号 |
100465470397 ※お問い合わせの際には、担当者へ物件管理番号をお伝えください。 |
| 物件に関する情報 |
物件の所在地 : 神奈川県川崎市宮前区土橋2 /
交通の利便 : 東急田園都市線/鷺沼駅 歩11分 /
面積 : 26.86m² /
築年月 : 新築(2025年09月) /
賃料 : 9.25万円 /
管理費又は共益費等 : 1.2万円 /
礼金等 : 1ヶ月 /
敷金 : 無料、保証金等 : -、 償却、敷引 : - /
住宅総合保険等の損害保険料 : 1.8万円2年 /
その他 : 更新事務手数料:5500円 引落手数料:330円/月 24時間サポート:16500円/2年 ペット飼育:敷金1ヶ月分追加(償却)、小型犬または猫1匹まで 退去時のクリーニング費用(実費)は借主負担になります エアコンクリーニング費:16500円 違約金:1年未満の解約時総賃料1ヶ月分
更新料 新賃料1.00ヶ月分
二人入居可
普通借家 2年
保証会社利用必 初回(月額総賃料の50%)、1年毎(15000円)
/ 駐車場 : 無
【0120-955-199】お気軽におくださいませ♪
おでのお問い合わせは 8時30分 から 21時まで 可能です!お気軽にフリーダイヤルまでご連絡ください♪◇webでのお申し込みも対応可能です◇ |
||
| 所属団体 |
(公社)神奈川県宅地建物取引業協会会員 (公社)首都圏不動産公正取引協議会加盟 |
||

