リバーノース川内[1階]
情報公開日:2025/10/28(残り15日)
次回更新日は情報公開日より15日以内
物件画像
画像提供元:株式会社ハコ企画/ハウスプランニング西原店
この物件のタグ
この物件にお問い合わせ
リバーノース川内[1階]の物件情報
| 賃料/管理費等 | 
            4.5万円(管理費等 4,000円)
           | ||
|---|---|---|---|
| 敷金 | 4.5万円 | 礼金 | 4.5万円 | 
| 種別/構造 | アパート/木造 | 築年月 | 2019年01月 | 
| 所在地 | 
          広島県広島市安佐南区川内1丁目
         | ||
| 主要交通機関 | アストラムライン/古市 徒歩12分 アストラムライン/中筋 徒歩12分 | ||
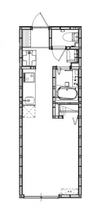
| 間取り | 1R | 面積 | 21.11m² | 
| 間取り詳細 | 洋室 8.1帖 | 方位 | - | 
| 階数/部屋番号 | 1階/地上2階建 | 駐車場 | 有(敷地内) 空き台数:要確認 11,000円 | 
| 特徴 |  | ||
| 設備/条件 | エアコン、バス・トイレ別、浴室乾燥機、独立洗面台、温水洗浄便座、即入居可、ペット相談、システムキッチン、IHコンロ、ガスコンロ、コンロ二口以上、フローリング、室内洗濯機置場、駐車場あり、TVドアホン、宅配ボックス | ||
| 備考 | その他一時金:鍵交換費用:19800円、ハウスクリーニング費用:44000円 その他月次費用:月額保証料:1300円 保証人:要 保証人代行:必須 その他 保証人代行詳細:その他 NAP賃貸保証 初回保証料50% 1年毎更新 口座振替手数料550円 年間保証料15,000円※学割プラン 初回保証料13,000円 月額保証料1300円 振替手数料330円 年間保証料10, | ||
| 契約期間 | 2年 | ||
|---|---|---|---|
| 入居可能時期 | 
            即時
           | ||
| 初期費用 | 
            お問い合わせください。
           | ||
| 住宅保険 | 無 | 現状空室状況 | 空家 | 
  情報提供元:株式会社ハコ企画/ハウスプランニング西原店
  画像提供元:株式会社ハコ企画/ハウスプランニング西原店
  ※各種情報と現状に差異がある場合は、現状優先となります。取り扱い不動産会社が複数ある場合は、住宅保険等、一部条件が異なる場合もございますので、取扱店舗までご確認下さいませ。
この物件にお問い合わせ
周辺施設
| コンビニ | セブン-イレブン広島川内2丁目店 (276m) セブンイレブン広島古市2丁目店 (550m) | |||
|---|---|---|---|---|
| スーパー | マルシェー川内店 (360m) 株式会社ユアーズ 中筋店 (422m) | |||
| ドラッグストア | スーパードラッグひまわり 川内店 (120m) すずらん薬局 川内店 (322m) | |||
| 保育園 | 広島市私立保育園協会 みのり愛児園 (431m) | |||
|---|---|---|---|---|
| 幼稚園 | サンセリテ アカデミー (482m) | |||
| 小学校 | 広島市立川内小学校 (839m) | |||
| 中学校 | 広島市立東原中学校 (1404m) | |||
※周辺情報は不動産会社から提供された情報ではなく、弊サービスで独自に収集した情報です。
担当者のオススメポイント!
築浅単身物件。広島インターも近くです。
リバーノース川内[1階]の取扱会社情報 1件
| 取扱会社(1) | 初期費用分割払い対応株式会社ハコ企画 ハウスプランニング西原店 | ||
|---|---|---|---|
| 住所 | 広島県広島市安佐南区西原5丁目11-3 | ||
| 電話番号 | 082-962-3737 | 免許番号 | 広島県知事免許(2)第10552号 | 
| 取引態様 | 仲介元付(一般) | 物件管理番号 | 0000029667 ※お問い合わせの際には、担当者へ物件管理番号をお伝えください。 | 
| 物件に関する情報 | 
                  物件の所在地 : 広島県広島市安佐南区川内1丁目 /
                  交通の利便 : アストラムライン/古市 徒歩12分、アストラムライン/中筋 徒歩12分 /
                  面積 : 21.11m² /
                  築年月 : 2019年01月 /
                  賃料 : 4.5万円 /
                  管理費又は共益費等 : 4,000円 /
                  礼金等 : 1ヶ月 /
                  敷金 : 1ヶ月、保証金等 : -、 償却、敷引 : - /
                  住宅総合保険等の損害保険料 : 無 /
                  その他 : その他一時金:鍵交換費用:19800円、ハウスクリーニング費用:44000円
その他月次費用:月額保証料:1300円
保証人:要
保証人代行:必須
その他
保証人代行詳細:その他 NAP賃貸保証 初回保証料50% 1年毎更新 口座振替手数料550円 年間保証料15,000円※学割プラン 初回保証料13,000円 月額保証料1300円 振替手数料330円 年間保証料10,
                    / 駐車場 : 有(敷地内)
空き台数:要確認
11,000円
                 
                  築浅単身物件。広島インターも近くです。
                 | ||
| 所属団体 | (公社)全日本不動産協会 (公社)不動産保証協会 | ||


 
                 
                 
                 
                   
                   
                   
                   
                   
                   
                   
                   
                   
                   
                   
                   
                   
                   
                   
                   
  ![リバーノース川内[1階]の間取り](https://smocca.jp/assets/common/spinner-1d171161728705657e0dc19391353959.gif) 
