S-RESIDENCE上社aureate[206号室]
情報公開日:2025/10/27(残り15日)
次回更新日は情報公開日より15日以内
物件画像
画像提供元:(株)S-point 部屋セレブ 覚王山店
この物件のタグ
この物件にお問い合わせ
S-RESIDENCE上社aureate[206号室]の物件情報
| 賃料/管理費等 |
6.55万円(管理費等 1.0万円)
|
||
|---|---|---|---|
| 敷金 | 無料 | 礼金 | 無料 |
| 種別/構造 | マンション/RC | 築年月 | 新築(2025年07月) |
| 所在地 |
愛知県名古屋市名東区猪高台1丁目
|
||
| 主要交通機関 |
名古屋市東山線/上社 徒歩10分 名古屋市東山線/本郷 徒歩15分 名古屋市東山線/一社 徒歩22分 |
||
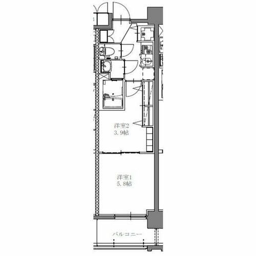
| 間取り | 2K | 面積 | 28.56m² |
| 間取り詳細 | 洋室3.9・洋室5.8 | 方位 | - |
| 階数/部屋番号 | 2階/地上6階建 206号室 | 駐車場 | 空有 月額:22,000円 |
| 特徴 |
|
||
| 設備/条件 | 室内洗濯機置場、エレベーター、オートロック、CATV、B・T別、バルコニー、収納スペース、エアコン、浴室乾燥機、モニタ付インターホン、宅配BOX、駐輪場、システムキッチン、温水洗浄便座、フローリング、洗面所独立、ネット使用料無料、CATVインターネット、ガスコンロ付、全居室収納、シューズボックス、全居室フローリング、火災警報器(報知機)、クローゼット、都市ガス、洗面所、洗濯機置場、2口コンロ、洗面台、給湯、シャワー、トイレ、24時間換気システム、管理人巡回 | ||
| 備考 |
法人契約は礼金1ヶ月必要 短期解約違約金 雑費無 その他一時金無 更新料: (新賃料: 1.0ヶ月) 管理人巡回 バイク置き場: なし 駐輪場: 有(無料) |
||
| 契約期間 | 2年 | ||
|---|---|---|---|
| 入居可能時期 |
即入居可
|
||
| 初期費用 |
お問い合わせください。
|
||
| 住宅保険 | 20,000円(2年) | 現状空室状況 | 空家 |
情報提供元:(株)S-point 部屋セレブ 覚王山店
画像提供元:(株)S-point 部屋セレブ 覚王山店
※各種情報と現状に差異がある場合は、現状優先となります。取り扱い不動産会社が複数ある場合は、住宅保険等、一部条件が異なる場合もございますので、取扱店舗までご確認下さいませ。
この物件にお問い合わせ
周辺施設
| コンビニ |
セブン‐イレブン 名古屋猪高台店 (208m) ローソン 名東区文教台店 (492m) |
|||
|---|---|---|---|---|
| スーパー |
トップワン食品館本郷店 (793m) マックスバリュ 香流店 (820m) |
|||
| ドラッグストア |
スギ薬局 文教台店 (295m) こぐま薬局 (550m) |
|||
| 保育園 |
名古屋市立 猪子石第二保育園 (245m) |
|||
|---|---|---|---|---|
| 幼稚園 |
名古屋市立 猪高幼稚園 (424m) |
|||
| 小学校 |
名古屋市立猪子石小学校 (468m) |
|||
| 中学校 |
名古屋市立猪高中学校 (424m) |
|||
※周辺情報は不動産会社から提供された情報ではなく、弊サービスで独自に収集した情報です。
担当者のオススメポイント!
上社駅徒歩10分の立地です。
S-RESIDENCE上社aureate[206号室]の取扱会社情報 1件
| 取扱会社(1) | (株)S-point 部屋セレブ 覚王山店 (情報提供媒体:at home) | ||
|---|---|---|---|
| 住所 | 愛知県名古屋市千種区覚王山通9丁目18 | ||
| 電話番号 | 052-757-5577 | 免許番号 | 愛知県知事免許(4)第20705号 |
| 取引態様 | 媒介 | 物件管理番号 |
1141277010 ※お問い合わせの際には、担当者へ物件管理番号をお伝えください。 |
| 物件に関する情報 |
物件の所在地 : 愛知県名古屋市名東区猪高台1丁目 /
交通の利便 : 名古屋市東山線/上社 徒歩10分、名古屋市東山線/本郷 徒歩15分、名古屋市東山線/一社 徒歩22分 /
面積 : 28.56m² /
築年月 : 新築(2025年07月) /
賃料 : 6.55万円 /
管理費又は共益費等 : 1.0万円 /
礼金等 : 無料 /
敷金 : 無料、保証金等 : -、 償却、敷引 : - /
住宅総合保険等の損害保険料 : 20,000円(2年) /
その他 : 法人契約は礼金1ヶ月必要 短期解約違約金
雑費無
その他一時金無
更新料: (新賃料: 1.0ヶ月)
管理人巡回
バイク置き場: なし
駐輪場: 有(無料)
/ 駐車場 : 空有
月額:22,000円
上社駅徒歩10分の立地です。
|
||
| 所属団体 |
(公社)全日本不動産協会 東海不動産公正取引協議会 - |
||

