[一戸建] 東京都八王子市めじろ台3 の賃貸【東京都 / 八王子市】
情報公開日:2025/10/30(残り15日)
次回更新日は2025/11/06
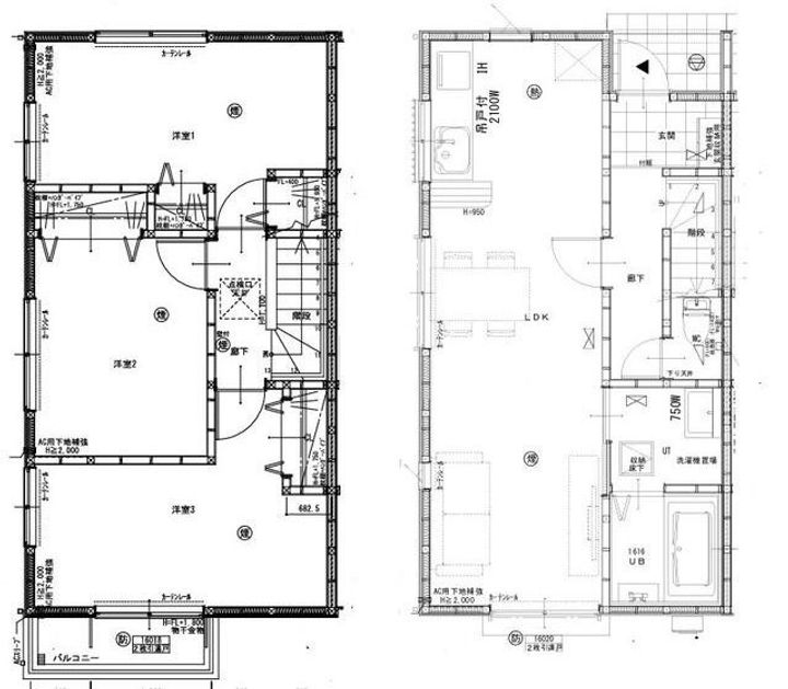
物件画像
画像提供元:アエラス立川店 (株)アエラス.ER
この物件のタグ
この物件にお問い合わせ
[一戸建] 東京都八王子市めじろ台3 の賃貸【東京都 / 八王子市】の物件情報
| 賃料/管理費等 |
14.5万円(管理費等 -)
|
||
|---|---|---|---|
| 敷金 | 14.5万円 | 礼金 | 14.5万円 |
| 種別/構造 | 一戸建/木造 | 築年月 | 建築中(2025年11月) |
| 所在地 |
東京都八王子市めじろ台3
|
||
| 主要交通機関 |
京王高尾線/めじろ台駅 歩4分 京王高尾線/山田駅 歩22分 京王高尾線/狭間駅 歩26分 |
||
| 間取り | 3LDK | 面積 | 77.0m² |
| 間取り詳細 | 和6.8 洋6.5 洋5.6 | 方位 | 南 |
| 階数/部屋番号 | -/地上2階建 | 駐車場 | 付無料 |
| 特徴 |
|
||
| 設備/条件 | バストイレ別、バルコニー、フローリング、シャワー付洗面台、TVインターホン、浴室乾燥機、室内洗濯置、システムキッチン、南向き、追焚機能浴室、角住戸、温水洗浄便座、脱衣所、洗面所独立、洗面化粧台、駐輪場、光ファイバー、2面採光、3口以上コンロ、IHクッキングヒーター、全居室収納、オートバス、グリル付、振分、敷金1ヶ月、二人入居相談、バイク置場、全居室フローリング、2沿線利用可、エアコン全室、保証金不要、事務所相談、雨戸、エアコン3台、3駅以上利用可、駅徒歩5分以内、都市ガス、シャッター、玄関収納、高速ネット対応、礼金1ヶ月、初期費用カード決済可 | ||
| 備考 |
中央本線西八王子駅徒歩31分/めじろ台内科医院まで329m/めじろ台駅前郵便局まで212m/保険等加入 加入要 / 2年間 20000円 スマートキー1650円月額/短期解約違約金(1年未満/1ヶ月分賃料)/ペット飼育時敷金1ヶ月積み増し有り(頭数種類は要相談)/退去時清掃費105000円その他一時金 ホームマイスター2416500円鍵交換代借主負担 合計1.65万円(内訳:ホームマイスター2416500円) 二人入居可/子供可/ペット相談/事務所利用相談 普通借家 2年 保証会社利用必 初回:賃料等の100%、継続保証料:年毎に賃料等の15% ※物件に関する備考は各社異なりますのでご確認のうえお問い合わせください。 |
||
| 契約期間 | お問い合わせください。 | ||
|---|---|---|---|
| 入居可能時期 |
''25年12月上旬
|
||
| 初期費用 |
お問い合わせください。
|
||
| 住宅保険 | 要 | 現状空室状況 | お問い合わせください。 |
情報提供元:アエラス立川店 (株)アエラス.ER
画像提供元:アエラス立川店 (株)アエラス.ER
※各種情報と現状に差異がある場合は、現状優先となります。取り扱い不動産会社が複数ある場合は、住宅保険等、一部条件が異なる場合もございますので、取扱店舗までご確認下さいませ。
この物件にお問い合わせ
周辺施設
| コンビニ |
セブン‐イレブン 八王子めじろ台駅南店 スリーエフ京王めじろ台駅前店 |
|||
|---|---|---|---|---|
| スーパー |
株式会社京王ストア めじろ台店 スーパーアルプスはざま店 |
|||
| ドラッグストア |
あい薬局 サンドラッグめじろ台店 |
|||
| 保育園 |
敬愛 クレヨン保育園 |
|||
|---|---|---|---|---|
| 幼稚園 |
八王子中央幼稚園 |
|||
| 小学校 |
八王子市立 椚田小学校・特別支援学級 |
|||
| 中学校 |
八王子市立横山中学校 |
|||
※周辺情報は不動産会社から提供された情報ではなく、弊サービスで独自に収集した情報です。
担当者のオススメポイント!
オンラインで申込から契約手続き、LINEでのご相談も可能です
当物件は初期費用分割払い可(クレジットカード決済も可)/お客様のご希望に合わせた方法(店頭、オンライン等)で物件をご提案いたします。初期費用のお見積りや入居希望日のご相談もお気軽にお問い合わせください
[一戸建] 東京都八王子市めじろ台3 の賃貸【東京都 / 八王子市】の取扱会社情報 2件
| 取扱会社(1) | アエラス立川店 (株)アエラス.ER (情報提供媒体:SUUMO) | ||
|---|---|---|---|
| 住所 | 東京都立川市曙町2-12-16 サワービル第一 6階 | ||
| 電話番号 | 042-548-0805 | 免許番号 | 国土交通大臣(1)第10724号 |
| 取引態様 | 仲介 | 物件管理番号 |
100469993360 ※お問い合わせの際には、担当者へ物件管理番号をお伝えください。 |
| 物件に関する情報 |
物件の所在地 : 東京都八王子市めじろ台3 /
交通の利便 : 京王高尾線/めじろ台駅 歩4分、京王高尾線/山田駅 歩22分、京王高尾線/狭間駅 歩26分 /
面積 : 77.0m² /
築年月 : 建築中(2025年11月) /
賃料 : 14.5万円 /
管理費又は共益費等 : - /
礼金等 : 1ヶ月 /
敷金 : 1ヶ月、保証金等 : -、 償却、敷引 : - /
住宅総合保険等の損害保険料 : 要 /
その他 : 中央本線西八王子駅徒歩31分/めじろ台内科医院まで329m/めじろ台駅前郵便局まで212m/保険等加入 加入要 / 2年間 20000円 スマートキー1650円月額/短期解約違約金(1年未満/1ヶ月分賃料)/ペット飼育時敷金1ヶ月積み増し有り(頭数種類は要相談)/退去時清掃費105000円その他一時金 ホームマイスター2416500円鍵交換代借主負担
合計1.65万円(内訳:ホームマイスター2416500円)
二人入居可/子供可/ペット相談/事務所利用相談
普通借家 2年
保証会社利用必 初回:賃料等の100%、継続保証料:年毎に賃料等の15%
/ 駐車場 : 付無料
オンラインで申込から契約手続き、LINEでのご相談も可能です
当物件は初期費用分割払い可(クレジットカード決済も可)/お客様のご希望に合わせた方法(店頭、オンライン等)で物件をご提案いたします。初期費用のお見積りや入居希望日のご相談もお気軽にお問い合わせください |
||
| 所属団体 |
(公社)全日本不動産協会東京都本部会員 (公社)首都圏不動産公正取引協議会加盟 |
||
| 取扱会社(2) | アエラス橋本店 (株)アエラス.ER (情報提供媒体:SUUMO) | ||
|---|---|---|---|
| 住所 | 神奈川県相模原市緑区橋本3-29-9 フェイスビル 2階 | ||
| 電話番号 | 042-703-3881 | 免許番号 | 国土交通大臣(1)第10724号 |
| 取引態様 | 仲介 | 物件管理番号 |
100469993242 ※お問い合わせの際には、担当者へ物件管理番号をお伝えください。 |
| 物件に関する情報 |
物件の所在地 : 東京都八王子市めじろ台3 /
交通の利便 : 京王高尾線/めじろ台駅 歩4分、京王高尾線/山田駅 歩22分、京王高尾線/狭間駅 歩26分 /
面積 : 77.0m² /
築年月 : 建築中(2025年11月) /
賃料 : 14.5万円 /
管理費又は共益費等 : - /
礼金等 : 1ヶ月 /
敷金 : 1ヶ月、保証金等 : -、 償却、敷引 : - /
住宅総合保険等の損害保険料 : 要 /
その他 : 中央本線西八王子駅徒歩31分/めじろ台内科医院まで329m/めじろ台駅前郵便局まで212m/保険等加入 加入要 / 2年間 20000円 スマートキー1650円月額/短期解約違約金(1年未満/1ヶ月分賃料)/ペット飼育時敷金1ヶ月積み増し有り(頭数種類は要相談)/退去時清掃費105000円その他一時金 ホームマイスター2416500円鍵交換代借主負担
合計1.65万円(内訳:ホームマイスター2416500円)
二人入居可/子供可/ペット相談/事務所利用相談
普通借家 2年
保証会社利用必 初回:賃料等の100%、継続保証料:年毎に賃料等の15%
/ 駐車場 : 付無料
オンラインで申込から契約手続き、LINEでのご相談も可能です
当物件は初期費用分割払い可(クレジットカード決済も可)/お客様のご希望に合わせた方法(店頭、オンライン等)で物件をご提案いたします。初期費用のお見積りや入居希望日のご相談もお気軽にお問い合わせください |
||
| 所属団体 |
(公社)全日本不動産協会神奈川県本部会員 (公社)首都圏不動産公正取引協議会加盟 |
||

