ザ・パークハビオ神楽坂レジデンスSouth[7階]
情報公開日:2025/10/29(残り15日)
次回更新日は2025/11/11
物件画像
画像提供元:そらうみリアルエステート(株)賃貸事業本部
この物件のタグ
この物件にお問い合わせ
ザ・パークハビオ神楽坂レジデンスSouth[7階]の物件情報
| 賃料/管理費等 | 
            17.9万円(管理費等 2.1万円)
           | ||
|---|---|---|---|
| 敷金 | 17.9万円 | 礼金 | 17.9万円 | 
| 種別/構造 | マンション/RC | 築年月 | 新築(2025年06月) | 
| 敷金積み増し | ペット飼育の場合敷金2ヶ月(総額) | ||
| 所在地 | 
          東京都新宿区東五軒町
         | ||
| 主要交通機関 | 東京メトロ東西線/神楽坂駅 歩8分 東京メトロ有楽町線/江戸川橋駅 歩8分 JR中央線/飯田橋駅 歩10分 | ||
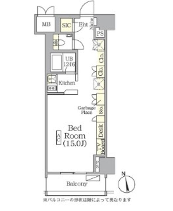
| 間取り | 1R | 面積 | 36.9m² | 
| 間取り詳細 | 洋15 | 方位 | 南 | 
| 階数/部屋番号 | 7階/地上10階建 | 駐車場 | 無 | 
| 特徴 |  | ||
| 設備/条件 | バストイレ別、バルコニー、エアコン、クロゼット、フローリング、TVインターホン、浴室乾燥機、オートロック、室内洗濯置、シューズボックス、システムキッチン、南向き、追焚機能浴室、温水洗浄便座、エレベーター、洗面化粧台、2口コンロ、駐輪場、宅配ボックス、防犯カメラ、ペット相談、IHクッキングヒーター、オートバス、保証人不要、バイク置場、2沿線利用可、ネット使用料不要、フロントサービス、納戸、2駅利用可、3駅以上利用可、3沿線以上利用可、駅徒歩10分以内、24時間ゴミ出し可、敷地内ごみ置き場、都市ガス、南面バルコニー、シューズWIC、天井高シューズクロゼット、保証会社利用可 | ||
| 備考 | 常駐管理/退去時清掃費実費 ペット相談可:敷金1ヶ月積み増し※詳細はお問い合わせください 駐輪場・駐輪場・バイク置場※詳細はお問い合わせください 合計1.65万円(内訳:M REALプレミアム会費/2年1.65万円) 単身者可/ペット相談 普通借家 2年 保証会社利用必 初回保証料:賃料等の40%・詳細はお問い合わせください ※物件に関する備考は各社異なりますのでご確認のうえお問い合わせください。 | ||
| 契約期間 | お問い合わせください。 | ||
|---|---|---|---|
| 入居可能時期 | 
            即入居可
           | ||
| 初期費用 | 
            お問い合わせください。
           | ||
| 住宅保険 | 3.1万円2年 | 現状空室状況 | お問い合わせください。 | 
  情報提供元:そらうみリアルエステート(株)賃貸事業本部
  画像提供元:そらうみリアルエステート(株)賃貸事業本部
  ※各種情報と現状に差異がある場合は、現状優先となります。取り扱い不動産会社が複数ある場合は、住宅保険等、一部条件が異なる場合もございますので、取扱店舗までご確認下さいませ。
この物件にお問い合わせ
周辺施設
| コンビニ | セブン‐イレブン新宿東五軒町店 ファミリーマート 東五軒町店 | |||
|---|---|---|---|---|
| スーパー | マルエツ 江戸川橋店 いなげや 飯田橋店 | |||
| ドラッグストア | たから薬局江戸川橋店 地蔵通り薬局 | |||
| 保育園 | 新宿区立 東五軒町保育園育児相談 | |||
|---|---|---|---|---|
| 幼稚園 | 文京区立子育て広場 子育てひろば・水道 | |||
| 小学校 | 新宿区立江戸川小学校 | |||
| 中学校 | 文京区立第三中学校 | |||
※周辺情報は不動産会社から提供された情報ではなく、弊サービスで独自に収集した情報です。
担当者のオススメポイント!
★ネット使用料不要★ペット可★南向き★SIC★宅配ボックス★
★カウンターキッチン・2口IHコンロ★追焚機能付・浴室乾燥機★独立洗面台★温水洗浄便座★南面バルコニー★エアコン★モニター付インターホン★オートロック★駐車場★詳細はお気軽にお問い合わせください!★
ザ・パークハビオ神楽坂レジデンスSouth[7階]の取扱会社情報 11件
| 取扱会社(1) | そらうみリアルエステート(株)賃貸事業本部 (情報提供媒体:SUUMO) | ||
|---|---|---|---|
| 住所 | 東京都港区麻布十番1-11-16 SHビル1階 | ||
| 電話番号 | 03-6441-0981 | 免許番号 | 東京都知事(3)第94395号 | 
| 取引態様 | 仲介 | 物件管理番号 | 100438123879 ※お問い合わせの際には、担当者へ物件管理番号をお伝えください。 | 
| 物件に関する情報 | 
                  物件の所在地 : 東京都新宿区東五軒町 /
                  交通の利便 : 東京メトロ東西線/神楽坂駅 歩8分、東京メトロ有楽町線/江戸川橋駅 歩8分、JR中央線/飯田橋駅 歩10分 /
                  面積 : 36.9m² /
                  築年月 : 新築(2025年06月) /
                  賃料 : 17.9万円 /
                  管理費又は共益費等 : 2.1万円 /
                  礼金等 : 1ヶ月 /
                  敷金 : 1ヶ月、保証金等 : -、 償却、敷引 : - /
                  住宅総合保険等の損害保険料 : 3.1万円2年 /
                  その他 : 常駐管理/退去時清掃費実費 ペット相談可:敷金1ヶ月積み増し※詳細はお問い合わせください 駐輪場・駐輪場・バイク置場※詳細はお問い合わせください
合計1.65万円(内訳:M REALプレミアム会費/2年1.65万円)
単身者可/ペット相談
普通借家 2年
保証会社利用必 初回保証料:賃料等の40%・詳細はお問い合わせください
                    / 駐車場 : 無
                 
                  ★ネット使用料不要★ペット可★南向き★SIC★宅配ボックス★ ★カウンターキッチン・2口IHコンロ★追焚機能付・浴室乾燥機★独立洗面台★温水洗浄便座★南面バルコニー★エアコン★モニター付インターホン★オートロック★駐車場★詳細はお気軽にお問い合わせください!★ | ||
| 所属団体 | (公社)東京都宅地建物取引業協会会員 (公社)首都圏不動産公正取引協議会加盟 | ||
| 取扱会社(2) | 御茶ノ水不動産スーペリアホーム スーペリアス(株) (情報提供媒体:SUUMO) | ||
|---|---|---|---|
| 住所 | 東京都文京区本郷3-2-2 リベール御茶ノ水ビル1階 | ||
| 電話番号 | 03-6801-5861 | 免許番号 | 東京都知事(2)第99564号 | 
| 取引態様 | 仲介 | 物件管理番号 | 100447499150 ※お問い合わせの際には、担当者へ物件管理番号をお伝えください。 | 
| 物件に関する情報 | 
                  物件の所在地 : 東京都新宿区東五軒町 /
                  交通の利便 : 東京メトロ東西線/神楽坂駅 歩8分、都営大江戸線/飯田橋駅 歩10分、東京メトロ有楽町線/江戸川橋駅 歩8分 /
                  面積 : 36.9m² /
                  築年月 : 新築(2025年06月) /
                  賃料 : 17.9万円 /
                  管理費又は共益費等 : 2.1万円 /
                  礼金等 : 1ヶ月 /
                  敷金 : 1ヶ月、保証金等 : -、 償却、敷引 : - /
                  住宅総合保険等の損害保険料 : 要 /
                  その他 : 都営大江戸線 牛込神楽坂駅徒歩12分/常駐管理/■都心部でのお部屋探しは賃貸専門店の【 御茶ノ水不動産スーペリアホーム 】にお任せ下さい。当社掲未掲載の他社様公開物件も含め、まとめてご案内を承っております。『オンライン内見』『社用車でのご案内』『現地でのお待合わせ』など、お客様のご都合に合わせて臨機応変に対応をさせていただいておりますのでお気軽にお問合せ、ご相談くださいませ。
合計1.65万円(内訳:24時間サポート:16500円)
更新料新賃料(ヶ月):1.00ヶ月
二人入居可/ペット相談
普通借家 2年
保証会社利用必 詳細はお問い合わせください。
                    / 駐車場 : 無
                 
                  【当社ではオンライン内見も受付中!】お気軽にご相談ください。 ■ 当社では全物件クレジットカード決済可能でございます ■都心部のお部屋探しは賃貸専門店のスーペリアホームへお任せください。当社では業界歴10年以上の経験豊富な社員がお部屋探しをサポートいたします。 | ||
| 所属団体 | (公社)東京都宅地建物取引業協会会員 (公社)首都圏不動産公正取引協議会加盟 | ||
| 取扱会社(3) | リブマックス高田馬場店(株)リブマックスリーシング (情報提供媒体:SUUMO) | ||
|---|---|---|---|
| 住所 | 東京都新宿区高田馬場4-12-5 ホテルリブマックス高田馬場駅前1階 | ||
| 電話番号 | 03-5338-5570 | 免許番号 | 国土交通大臣(3)第8116号 | 
| 取引態様 | 仲介 | 物件管理番号 | 100462954006 ※お問い合わせの際には、担当者へ物件管理番号をお伝えください。 | 
| 物件に関する情報 | 
                  物件の所在地 : 東京都新宿区東五軒町 /
                  交通の利便 : 東京メトロ東西線/神楽坂駅 歩8分、東京メトロ有楽町線/江戸川橋駅 歩8分、JR中央線/飯田橋駅 歩10分 /
                  面積 : 36.9m² /
                  築年月 : 新築(2025年06月) /
                  賃料 : 17.9万円 /
                  管理費又は共益費等 : 2.1万円 /
                  礼金等 : 1ヶ月 /
                  敷金 : 1ヶ月、保証金等 : -、 償却、敷引 : - /
                  住宅総合保険等の損害保険料 : 3.2万円2年 /
                  その他 : 内見代行・写真撮影/動画撮影/WEB契約等来店不要でご契約可能です。お気軽にご相談下さい。
合計1.98万円(内訳:サポート1.98万円)
更新料 新賃料1.00ヶ月分
ペット相談
普通借家 2年
保証会社利用必 初回保証料:総賃料の50%
                    / 駐車場 : 無
                 
                  お気軽にお問い合わせください! 内見代行・写真撮影/動画撮影/WEB契約等来店不要でご契約可能です。お気軽にご相談下さい。 | ||
| 所属団体 | (公社)東京都宅地建物取引業協会会員 (公社)首都圏不動産公正取引協議会加盟 | ||
| 取扱会社(4) | (株)ユウキ・ホーム麻布十番網代公園店 (情報提供媒体:SUUMO) | ||
|---|---|---|---|
| 住所 | 東京都港区麻布十番2-19-10 桂麻布十番ビル1階 | ||
| 電話番号 | 03-6271-4669 | 免許番号 | 東京都知事(5)第76214号 | 
| 取引態様 | 仲介 | 物件管理番号 | 100438123548 ※お問い合わせの際には、担当者へ物件管理番号をお伝えください。 | 
| 物件に関する情報 | 
                  物件の所在地 : 東京都新宿区東五軒町 /
                  交通の利便 : 東京メトロ東西線/神楽坂駅 歩8分、東京メトロ有楽町線/江戸川橋駅 歩8分、JR中央線/飯田橋駅 歩10分 /
                  面積 : 36.9m² /
                  築年月 : 新築(2025年06月) /
                  賃料 : 17.9万円 /
                  管理費又は共益費等 : 2.1万円 /
                  礼金等 : 1ヶ月 /
                  敷金 : 1ヶ月、保証金等 : -、 償却、敷引 : - /
                  住宅総合保険等の損害保険料 : 3.1万円2年 /
                  その他 : 常駐管理/退去時清掃費実費 ペット相談可:敷金1ヶ月積み増し※詳細はお問い合わせください 駐輪場・駐輪場・バイク置場※詳細はお問い合わせください
合計1.65万円(内訳:M REALプレミアム会費/2年1.65万円)
単身者可/ペット相談
普通借家 2年
保証会社利用必 初回保証料:賃料等の40%・詳細はお問い合わせください
                    / 駐車場 : 無
                 
                  ★ネット使用料不要★ペット可★南向き★SIC★宅配ボックス★ ★カウンターキッチン・2口IHコンロ★追焚機能付・浴室乾燥機★独立洗面台★温水洗浄便座★南面バルコニー★エアコン★モニター付インターホン★オートロック★駐車場★詳細はお気軽にお問い合わせください!★ | ||
| 所属団体 | (公社)東京都宅地建物取引業協会会員 (公社)首都圏不動産公正取引協議会加盟 | ||
| 取扱会社(5) | (株)アブレイズ・コーポレーション池袋駅前支店 (情報提供媒体:SUUMO) | ||
|---|---|---|---|
| 住所 | 東京都豊島区南池袋1-22-5 鈴木ビル7階 | ||
| 電話番号 | 03-5928-0388 | 免許番号 | 東京都知事(4)第90182号 | 
| 取引態様 | 仲介 | 物件管理番号 | 100454854085 ※お問い合わせの際には、担当者へ物件管理番号をお伝えください。 | 
| 物件に関する情報 | 
                  物件の所在地 : 東京都新宿区東五軒町 /
                  交通の利便 : 東京メトロ有楽町線/江戸川橋駅 歩8分、東京メトロ東西線/神楽坂駅 歩8分、JR中央線/飯田橋駅 歩10分 /
                  面積 : 36.9m² /
                  築年月 : 新築(2025年06月) /
                  賃料 : 17.9万円 /
                  管理費又は共益費等 : 2.1万円 /
                  礼金等 : 1ヶ月 /
                  敷金 : 1ヶ月、保証金等 : -、 償却、敷引 : - /
                  住宅総合保険等の損害保険料 : 3.1万円2年 /
                  その他 : 常駐管理/◆初期費用に関してはクレジット決済も可能です。初期費用全額からご指定の一部まで選択してご利用できます。詳細についてはお気軽にご質問ください♪ ◆お見積りは無料で承っております。お問い合わせ時にお気軽にご依頼下さい♪ ◆オンラインでご相談・ご見学・ご契約まで可能です♪ ◆ご質問・ご要望等に関しては、その他の問合せからお気軽にご相談下さい! ※退去時清掃費あり
合計1.98万円(内訳:M-REALプレミアム会費1.98万円)
更新料 新賃料1.00ヶ月分
ペット相談
普通借家 2年
保証会社利用必 初回:賃料等の50パーセント 月次:賃料等の1パーセント
                    / 駐車場 : 無
                 
                  ★10月の注目物件★こちらの物件は仲介手数料無料でご紹介中♪ 【見学予約受付中♪】担当ルームアドバイザーがお客様のニーズを素早く診断し、周辺施設や住環境・交通の便などご説明させていただきます!こちらは見積もり無料・クレカ決済可☆その他お気軽にお問い合わせ下さい♪ | ||
| 所属団体 | (公社)全日本不動産協会東京都本部会員 (公社)首都圏不動産公正取引協議会加盟 | ||
| 取扱会社(6) | そらうみリアルエステート(株)本店 (情報提供媒体:SUUMO) | ||
|---|---|---|---|
| 住所 | 東京都港区麻布十番2-20-14 麻布十番ハウス104 | ||
| 電話番号 | 03-6435-2093 | 免許番号 | 東京都知事(3)第94395号 | 
| 取引態様 | 仲介 | 物件管理番号 | 100438123798 ※お問い合わせの際には、担当者へ物件管理番号をお伝えください。 | 
| 物件に関する情報 | 
                  物件の所在地 : 東京都新宿区東五軒町 /
                  交通の利便 : 東京メトロ東西線/神楽坂駅 歩8分、東京メトロ有楽町線/江戸川橋駅 歩8分、JR中央線/飯田橋駅 歩10分 /
                  面積 : 36.9m² /
                  築年月 : 新築(2025年06月) /
                  賃料 : 17.9万円 /
                  管理費又は共益費等 : 2.1万円 /
                  礼金等 : 1ヶ月 /
                  敷金 : 1ヶ月、保証金等 : -、 償却、敷引 : - /
                  住宅総合保険等の損害保険料 : 3.1万円2年 /
                  その他 : 常駐管理/退去時清掃費実費 ペット相談可:敷金1ヶ月積み増し※詳細はお問い合わせください 駐輪場・駐輪場・バイク置場※詳細はお問い合わせください
合計1.65万円(内訳:M REALプレミアム会費/2年1.65万円)
単身者可/ペット相談
普通借家 2年
保証会社利用必 初回保証料:賃料等の40%・詳細はお問い合わせください
                    / 駐車場 : 無
                 
                  ★ネット使用料不要★ペット可★南向き★SIC★宅配ボックス★ ★カウンターキッチン・2口IHコンロ★追焚機能付・浴室乾燥機★独立洗面台★温水洗浄便座★南面バルコニー★エアコン★モニター付インターホン★オートロック★駐車場★詳細はお気軽にお問い合わせください!★ | ||
| 所属団体 | (公社)東京都宅地建物取引業協会会員 (公社)首都圏不動産公正取引協議会加盟 | ||
| 取扱会社(7) | リブマックス飯田橋店(株)リブマックスリーシング (情報提供媒体:SUUMO) | ||
|---|---|---|---|
| 住所 | 東京都新宿区下宮比町 1-1 相沢ビル5階 | ||
| 電話番号 | 03-5227-8881 | 免許番号 | 国土交通大臣(3)第8116号 | 
| 取引態様 | 仲介 | 物件管理番号 | 100462912793 ※お問い合わせの際には、担当者へ物件管理番号をお伝えください。 | 
| 物件に関する情報 | 
                  物件の所在地 : 東京都新宿区東五軒町 /
                  交通の利便 : 東京メトロ東西線/神楽坂駅 歩8分、東京メトロ有楽町線/江戸川橋駅 歩8分、JR中央線/飯田橋駅 歩10分 /
                  面積 : 36.9m² /
                  築年月 : 新築(2025年06月) /
                  賃料 : 17.9万円 /
                  管理費又は共益費等 : 2.1万円 /
                  礼金等 : 1ヶ月 /
                  敷金 : 1ヶ月、保証金等 : -、 償却、敷引 : - /
                  住宅総合保険等の損害保険料 : 3.2万円2年 /
                  その他 : 内見代行・写真撮影/動画撮影/WEB契約等来店不要でご契約可能です。お気軽にご相談下さい。
合計1.98万円(内訳:サポート1.98万円)
更新料 新賃料1.00ヶ月分
ペット相談
普通借家 2年
保証会社利用必 初回保証料:総賃料の50%
                    / 駐車場 : 無
                 
                  お気軽にお問い合わせください! 内見代行・写真撮影/動画撮影/WEB契約等来店不要でご契約可能です。お気軽にご相談下さい。 | ||
| 所属団体 | (公社)東京都宅地建物取引業協会会員 (公社)首都圏不動産公正取引協議会加盟 | ||
| 取扱会社(8) | アエラス目白店 (株)アエラス.ER (情報提供媒体:SUUMO) | ||
|---|---|---|---|
| 住所 | 東京都豊島区目白3-5-16 青山ビル 4階・5階 | ||
| 電話番号 | 03-6914-4811 | 免許番号 | 国土交通大臣(1)第10724号 | 
| 取引態様 | 仲介 | 物件管理番号 | 100464644937 ※お問い合わせの際には、担当者へ物件管理番号をお伝えください。 | 
| 物件に関する情報 | 
                  物件の所在地 : 東京都新宿区東五軒町 /
                  交通の利便 : 東京メトロ有楽町線/江戸川橋駅 歩8分、東京メトロ東西線/神楽坂駅 歩8分、JR中央線/飯田橋駅 歩15分 /
                  面積 : 36.9m² /
                  築年月 : 新築(2025年06月) /
                  賃料 : 17.9万円 /
                  管理費又は共益費等 : 2.1万円 /
                  礼金等 : 1ヶ月 /
                  敷金 : 1ヶ月、保証金等 : -、 償却、敷引 : - /
                  住宅総合保険等の損害保険料 : 要 /
                  その他 : 石原医院まで576m/文京水道郵便局まで595m/退去時清掃実費/鍵交換代借主負担/駐輪場代借主負担(使用時)/バイク置場代借主負担(使用時)/ペット飼育時、敷金積み増し1ヶ月
合計1.98万円(内訳:MREALプレミアム会費2年19800円)
ペット相談
普通借家 2年
保証会社利用必 初回:賃料等の50%、月次:賃料等の1%、その他保証会社条件有
                    / 駐車場 : 近隣駐車場
近隣249m33000円
                 
                  オンラインで申込から契約手続き、LINEでのご相談も可能です 当物件は初期費用分割払い可(クレジットカード決済も可)/お客様のご希望に合わせた方法(店頭、オンライン等)で物件をご提案いたします。初期費用のお見積りや入居希望日のご相談もお気軽にお問い合わせください | ||
| 所属団体 | (公社)全日本不動産協会東京都本部会員 (公社)首都圏不動産公正取引協議会加盟 | ||
| 取扱会社(9) | リブマックス新宿店(株)リブ・マックス (情報提供媒体:SUUMO) | ||
|---|---|---|---|
| 住所 | 東京都新宿区新宿2-6-11 カスタリア新宿1階 | ||
| 電話番号 | 03-3355-1717 | 免許番号 | 国土交通大臣(5)第7032号 | 
| 取引態様 | 仲介 | 物件管理番号 | 100462904848 ※お問い合わせの際には、担当者へ物件管理番号をお伝えください。 | 
| 物件に関する情報 | 
                  物件の所在地 : 東京都新宿区東五軒町 /
                  交通の利便 : 東京メトロ東西線/神楽坂駅 歩8分、東京メトロ有楽町線/江戸川橋駅 歩8分、JR中央線/飯田橋駅 歩10分 /
                  面積 : 36.9m² /
                  築年月 : 新築(2025年06月) /
                  賃料 : 17.9万円 /
                  管理費又は共益費等 : 2.1万円 /
                  礼金等 : 1ヶ月 /
                  敷金 : 1ヶ月、保証金等 : -、 償却、敷引 : - /
                  住宅総合保険等の損害保険料 : 3.2万円2年 /
                  その他 : 内見代行・写真撮影/動画撮影/WEB契約等来店不要でご契約可能です。お気軽にご相談下さい。
合計1.98万円(内訳:サポート1.98万円)
更新料 新賃料1.00ヶ月分
ペット相談
普通借家 2年
保証会社利用必 初回保証料:総賃料の50%
                    / 駐車場 : 無
                 
                  お気軽にお問い合わせください! 内見代行・写真撮影/動画撮影/WEB契約等来店不要でご契約可能です。お気軽にご相談下さい。 | ||
| 所属団体 | (公社)全日本不動産協会東京都本部会員 (公社)首都圏不動産公正取引協議会加盟 | ||
| 取扱会社(10) | (株)ユウキ・ホーム麻布十番サテライト店 (情報提供媒体:SUUMO) | ||
|---|---|---|---|
| 住所 | 東京都港区麻布十番2-19-10 桂麻布十番ビル1階 | ||
| 電話番号 | 03-6435-0195 | 免許番号 | 東京都知事(5)第76214号 | 
| 取引態様 | 仲介 | 物件管理番号 | 100438123200 ※お問い合わせの際には、担当者へ物件管理番号をお伝えください。 | 
| 物件に関する情報 | 
                  物件の所在地 : 東京都新宿区東五軒町 /
                  交通の利便 : 東京メトロ東西線/神楽坂駅 歩8分、東京メトロ有楽町線/江戸川橋駅 歩8分、JR中央線/飯田橋駅 歩10分 /
                  面積 : 36.9m² /
                  築年月 : 新築(2025年06月) /
                  賃料 : 17.9万円 /
                  管理費又は共益費等 : 2.1万円 /
                  礼金等 : 1ヶ月 /
                  敷金 : 1ヶ月、保証金等 : -、 償却、敷引 : - /
                  住宅総合保険等の損害保険料 : 3.1万円2年 /
                  その他 : 常駐管理/退去時清掃費実費 ペット相談可:敷金1ヶ月積み増し※詳細はお問い合わせください 駐輪場・駐輪場・バイク置場※詳細はお問い合わせください
合計1.65万円(内訳:M REALプレミアム会費/2年1.65万円)
単身者可/ペット相談
普通借家 2年
保証会社利用必 初回保証料:賃料等の40%・詳細はお問い合わせください
                    / 駐車場 : 無
                 
                  ★ネット使用料不要★ペット可★南向き★SIC★宅配ボックス★ ★カウンターキッチン・2口IHコンロ★追焚機能付・浴室乾燥機★独立洗面台★温水洗浄便座★南面バルコニー★エアコン★モニター付インターホン★オートロック★駐車場★詳細はお気軽にお問い合わせください!★ | ||
| 所属団体 | (公社)東京都宅地建物取引業協会会員 (公社)首都圏不動産公正取引協議会加盟 | ||
| 取扱会社(11) | (株)ユウキ・ホーム麻布十番店 (情報提供媒体:SUUMO) | ||
|---|---|---|---|
| 住所 | 東京都港区麻布十番2-19-10 | ||
| 電話番号 | 03-5730-0066 | 免許番号 | 東京都知事(5)第76214号 | 
| 取引態様 | 仲介 | 物件管理番号 | 100438123367 ※お問い合わせの際には、担当者へ物件管理番号をお伝えください。 | 
| 物件に関する情報 | 
                  物件の所在地 : 東京都新宿区東五軒町 /
                  交通の利便 : 東京メトロ東西線/神楽坂駅 歩8分、東京メトロ有楽町線/江戸川橋駅 歩8分、JR中央線/飯田橋駅 歩10分 /
                  面積 : 36.9m² /
                  築年月 : 新築(2025年06月) /
                  賃料 : 17.9万円 /
                  管理費又は共益費等 : 2.1万円 /
                  礼金等 : 1ヶ月 /
                  敷金 : 1ヶ月、保証金等 : -、 償却、敷引 : - /
                  住宅総合保険等の損害保険料 : 3.1万円2年 /
                  その他 : 常駐管理/退去時清掃費実費 ペット相談可:敷金1ヶ月積み増し※詳細はお問い合わせください 駐輪場・駐輪場・バイク置場※詳細はお問い合わせください
合計1.65万円(内訳:M REALプレミアム会費/2年1.65万円)
単身者可/ペット相談
普通借家 2年
保証会社利用必 初回保証料:賃料等の40%・詳細はお問い合わせください
                    / 駐車場 : 無
                 
                  ★ネット使用料不要★ペット可★南向き★SIC★宅配ボックス★ ★カウンターキッチン・2口IHコンロ★追焚機能付・浴室乾燥機★独立洗面台★温水洗浄便座★南面バルコニー★エアコン★モニター付インターホン★オートロック★駐車場★詳細はお気軽にお問い合わせください!★ | ||
| 所属団体 | (公社)東京都宅地建物取引業協会会員 (公社)首都圏不動産公正取引協議会加盟 | ||


 
                 
                 
                   
                   
                  ![ザ・パークハビオ神楽坂レジデンスSouth[7階]の間取り](https://smocca.jp/assets/common/spinner-1d171161728705657e0dc19391353959.gif) 
