[一戸建] 東京都八王子市下柚木2 の賃貸【東京都 / 八王子市】
情報公開日:2025/10/29(残り15日)
次回更新日は2025/11/06
物件画像
画像提供元:(株)RoomConnect多摩センター店
この物件のタグ
この物件にお問い合わせ
[一戸建] 東京都八王子市下柚木2 の賃貸【東京都 / 八王子市】の物件情報
| 賃料/管理費等 |
18.0万円(管理費等 -)
|
||
|---|---|---|---|
| 敷金 | 18.0万円 | 礼金 | 18.0万円 |
| 種別/構造 | 一戸建/木造 | 築年月 | 新築(2025年02月) |
| 所在地 |
東京都八王子市下柚木2
|
||
| 主要交通機関 |
京王相模原線/南大沢駅 歩21分 京王相模原線/京王堀之内駅 歩32分 京王線/長沼駅 車12分(3.6km) |
||
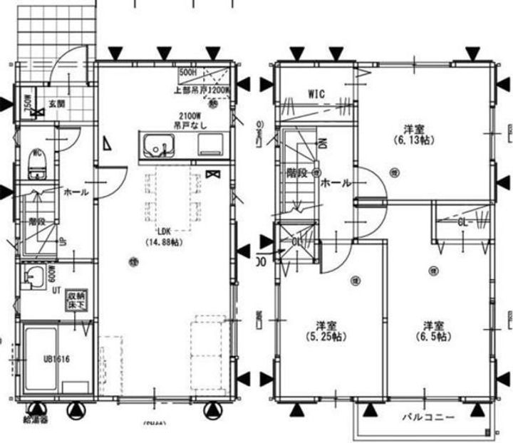
| 間取り | 3LDK | 面積 | 76.59m² |
| 間取り詳細 | 洋6.5 洋6.1 洋5.2 LDK14.8 | 方位 | 南東 |
| 階数/部屋番号 | 1-2階/地上2階建 | 駐車場 | 付無料 |
| 特徴 |
|
||
| 設備/条件 | バストイレ別、バルコニー、エアコン、フローリング、シャワー付洗面台、浴室乾燥機、室内洗濯置、シューズボックス、システムキッチン、追焚機能浴室、角住戸、温水洗浄便座、脱衣所、洗面所独立、洗面化粧台、駐輪場、閑静な住宅地、最上階、3口以上コンロ、対面式キッチン、IHクッキングヒーター、全居室収納、グリル付、全居室洋室、振分、ウォークインクロゼット、駐車2台可、東南角住戸、バイク置場、防犯シャッター、南西角住戸、全居室フローリング、玄関ホール、3面採光、2沿線利用可、専用庭、緑豊かな住宅地、エアコン全室、浴室に窓、雨戸、24時間換気システム、1フロア1住戸、庭、収納2間半、南面リビング、浴室1坪以上、クロゼット3ヶ所、3方角住戸、南面3室、南庭、四方角部屋、全室2面採光、3駅以上利用可、外壁サイディング、上階無し、東南向き、LDK12畳以上、都市ガス、シャッター、玄関収納 | ||
| 備考 |
お部屋探しは~ひと、街、暮らしのつながりを~ルームコネクト橋本店にお任せください。当店ではお客様のご要望をしっかりとお伺いして、最新の物件情報の中からお客様にとって最適な物件をご提案いたします。大手ハウスメーカー施工物件から、昔ながらの地元の不動産屋さんの物件までお任せください!ご入居に向けて、引っ越し業者さんのご紹介やインターネット接続サポートなど素敵な新生活につながるお手伝いもしていきます。 合計4.4万円(内訳:ホームマイスター2416500円/カギ交換費用27500円) スマートキー費用1650円 単身者可/二人入居可/子供可/ペット相談/事務所利用相談 普通借家 2年 保証会社利用必 賃料の100% 年毎に賃料の15% ※物件に関する備考は各社異なりますのでご確認のうえお問い合わせください。 |
||
| 契約期間 | お問い合わせください。 | ||
|---|---|---|---|
| 入居可能時期 |
''25年12月中旬
|
||
| 初期費用 |
お問い合わせください。
|
||
| 住宅保険 | 2万円2年 | 現状空室状況 | お問い合わせください。 |
情報提供元:(株)RoomConnect多摩センター店
画像提供元:(株)RoomConnect多摩センター店
※各種情報と現状に差異がある場合は、現状優先となります。取り扱い不動産会社が複数ある場合は、住宅保険等、一部条件が異なる場合もございますので、取扱店舗までご確認下さいませ。
この物件にお問い合わせ
周辺施設
| コンビニ |
セブンイレブン 八王子由木中央店 ファミリーマート 八王子上柚木店 |
|||
|---|---|---|---|---|
| スーパー |
サカガミグランルパ 南大沢店 グランルパ・サカガミ 南大沢店 |
|||
| ドラッグストア |
ひまわり薬局下柚木店 クリエイトS・D 八王子越野店 |
|||
| 保育園 |
なみのり第二保育園 |
|||
|---|---|---|---|---|
| 幼稚園 |
柚木武蔵野幼稚園 |
|||
| 小学校 |
八王子市立 下柚木小学校・特別支援学級 |
|||
| 中学校 |
八王子市立由木中学校 |
|||
※周辺情報は不動産会社から提供された情報ではなく、弊サービスで独自に収集した情報です。
担当者のオススメポイント!
★【ルムコネ多摩センター店】では初期費用分割払いご相談可能★
★【ペット可築浅戸建てです♪】【駐車場2台無料♪】★人気の賃貸戸建てです★経済的な都市ガス★3口IHシステムキッチン★追い炊き機能・浴室乾燥機・温水洗浄便座と設備充実★
[一戸建] 東京都八王子市下柚木2 の賃貸【東京都 / 八王子市】の取扱会社情報 6件
| 取扱会社(1) | (株)RoomConnect多摩センター店 (情報提供媒体:SUUMO) | ||
|---|---|---|---|
| 住所 | 東京都多摩市鶴牧1-6-16 キャピタルビル・1階 | ||
| 電話番号 | 042-400-5785 | 免許番号 | 国土交通大臣(1)第10983号 |
| 取引態様 | 仲介 | 物件管理番号 |
100470082214 ※お問い合わせの際には、担当者へ物件管理番号をお伝えください。 |
| 物件に関する情報 |
物件の所在地 : 東京都八王子市下柚木2 /
交通の利便 : 京王相模原線/南大沢駅 歩21分、京王相模原線/京王堀之内駅 歩32分、京王線/長沼駅 車12分(3.6km) /
面積 : 76.59m² /
築年月 : 新築(2025年02月) /
賃料 : 18.0万円 /
管理費又は共益費等 : - /
礼金等 : 1ヶ月 /
敷金 : 1ヶ月、保証金等 : -、 償却、敷引 : - /
住宅総合保険等の損害保険料 : 2万円2年 /
その他 : お部屋探しは~ひと、街、暮らしのつながりを~ルームコネクト橋本店にお任せください。当店ではお客様のご要望をしっかりとお伺いして、最新の物件情報の中からお客様にとって最適な物件をご提案いたします。大手ハウスメーカー施工物件から、昔ながらの地元の不動産屋さんの物件までお任せください!ご入居に向けて、引っ越し業者さんのご紹介やインターネット接続サポートなど素敵な新生活につながるお手伝いもしていきます。
合計4.4万円(内訳:ホームマイスター2416500円/カギ交換費用27500円)
スマートキー費用1650円
単身者可/二人入居可/子供可/ペット相談/事務所利用相談
普通借家 2年
保証会社利用必 賃料の100% 年毎に賃料の15%
/ 駐車場 : 付無料
★【ルムコネ多摩センター店】では初期費用分割払いご相談可能★
★【ペット可築浅戸建てです♪】【駐車場2台無料♪】★人気の賃貸戸建てです★経済的な都市ガス★3口IHシステムキッチン★追い炊き機能・浴室乾燥機・温水洗浄便座と設備充実★ |
||
| 所属団体 |
(公社)東京都宅地建物取引業協会会員 (公社)首都圏不動産公正取引協議会加盟 |
||
| 取扱会社(2) | (株)ネクストライフ立川店 (情報提供媒体:SUUMO) | ||
|---|---|---|---|
| 住所 | 東京都立川市柴崎町3-8-1 NACビル5階 | ||
| 電話番号 | 050-5530-2874 | 免許番号 | 国土交通大臣(3)第8175号 |
| 取引態様 | 仲介 | 物件管理番号 |
100470040541 ※お問い合わせの際には、担当者へ物件管理番号をお伝えください。 |
| 物件に関する情報 |
物件の所在地 : 東京都八王子市下柚木2 /
交通の利便 : 京王相模原線/南大沢駅 歩21分 /
面積 : 76.59m² /
築年月 : 築1年以内(2025年02月) /
賃料 : 18.0万円 /
管理費又は共益費等 : - /
礼金等 : 1ヶ月 /
敷金 : 1ヶ月、保証金等 : -、 償却、敷引 : - /
住宅総合保険等の損害保険料 : 2万円2年 /
その他 : ホームマイスター24:16500円/2年 ハウスクリーニング代:115500円 スマートキー代:1650円/月 ペット飼育時:敷金1ヶ月追加 短期解約違約金:1年未満の解約で月額総賃料の1ヶ月分 ◆お持ちのクレジットカードで初期費用の決済が可能です◆初期費用のお見積り等、お気軽にお問い合わせくださいませ◆0120-955-199◆
更新料 新賃料1.00ヶ月分
普通借家 2年
保証会社利用必 初回保証料(月額総賃料の100%)以降一年毎月額総賃料の15%
/ 駐車場 : 付無料
【0120-955-199】お気軽におくださいませ♪
おでのお問い合わせは 8時30分 から 21時まで 可能です!お気軽にフリーダイヤルまでご連絡ください♪◇webでのお申し込みも対応可能です◇ |
||
| 所属団体 |
(公社)東京都宅地建物取引業協会会員 (公社)首都圏不動産公正取引協議会加盟 |
||
| 取扱会社(3) | (株)ネクストライフ府中本店 (情報提供媒体:SUUMO) | ||
|---|---|---|---|
| 住所 | 東京都府中市宮西町2-9-9 こだまビル3階 | ||
| 電話番号 | 050-5530-2874 | 免許番号 | 国土交通大臣(3)第8175号 |
| 取引態様 | 仲介 | 物件管理番号 |
100470035007 ※お問い合わせの際には、担当者へ物件管理番号をお伝えください。 |
| 物件に関する情報 |
物件の所在地 : 東京都八王子市下柚木2 /
交通の利便 : 京王相模原線/南大沢駅 歩21分 /
面積 : 76.59m² /
築年月 : 築1年以内(2025年02月) /
賃料 : 18.0万円 /
管理費又は共益費等 : - /
礼金等 : 1ヶ月 /
敷金 : 1ヶ月、保証金等 : -、 償却、敷引 : - /
住宅総合保険等の損害保険料 : 2万円2年 /
その他 : ホームマイスター24:16500円/2年 ハウスクリーニング代:115500円 スマートキー代:1650円/月 ペット飼育時:敷金1ヶ月追加 短期解約違約金:1年未満の解約で月額総賃料の1ヶ月分 ◆お持ちのクレジットカードで初期費用の決済が可能です◆初期費用のお見積り等、お気軽にお問い合わせくださいませ◆0120-955-199◆
更新料 新賃料1.00ヶ月分
普通借家 2年
保証会社利用必 初回保証料(月額総賃料の100%)以降一年毎月額総賃料の15%
/ 駐車場 : 付無料
【0120-955-199】お気軽におくださいませ♪
おでのお問い合わせは 8時30分 から 21時まで 可能です!お気軽にフリーダイヤルまでご連絡ください♪◇webでのお申し込みも対応可能です◇ |
||
| 所属団体 |
(公社)東京都宅地建物取引業協会会員 (公社)首都圏不動産公正取引協議会加盟 |
||
| 取扱会社(4) | ロイヤルハウジング(株)南大沢駅前ショップ (情報提供媒体:SUUMO) | ||
|---|---|---|---|
| 住所 | 東京都八王子市南大沢2-2 パオレビル4階 | ||
| 電話番号 | 0120-899251 | 免許番号 | 東京都知事(13)第29649号 |
| 取引態様 | 仲介 | 物件管理番号 |
100470036042 ※お問い合わせの際には、担当者へ物件管理番号をお伝えください。 |
| 物件に関する情報 |
物件の所在地 : 東京都八王子市下柚木2 /
交通の利便 : 京王相模原線/南大沢駅 歩21分、京王相模原線/京王堀之内駅 歩32分、京王線/長沼駅 歩50分 /
面積 : 76.59m² /
築年月 : 築1年以内(2025年02月) /
賃料 : 18.0万円 /
管理費又は共益費等 : - /
礼金等 : 1ヶ月 /
敷金 : 1ヶ月、保証金等 : -、 償却、敷引 : - /
住宅総合保険等の損害保険料 : 2万円2年 /
その他 : 弊社は京王相模原線「南大沢」駅から徒歩1分に店舗があり、 駅からのアクセスが良く、お車でお越しの方には提携の駐車場もございます。 また、ご自宅からでも相談、お部屋の内覧ができるサービスをご用意しております。 お部屋探しはロイヤルハウジング(株)南大沢駅前ショップにお任せください。
合計15.95万円(内訳:退去時クリーニング代11.55万円 ホームマイスター24(2年毎)1.65万円 鍵交換代2.75万円)
更新料 新賃料1.00ヶ月分 スマートキー 月額1650円
二人入居可/子供可/ペット相談/事務所利用相談/ルームシェア不可
普通借家 2年
保証会社利用必 契約時:月額賃料等総額の100% 継続保証料:月額賃料等総額の15%(1年毎) 契約時:月額賃料等総額の100% 継続保証料:月額賃料等総額の15%(1年毎)
/ 駐車場 : 付無料/平置駐
☆築浅戸建☆ペット可☆犬種・猫種・頭数相談可能☆事務所可☆
☆築浅戸建☆ペット可☆犬種・猫種・頭数相談可能☆事務所可☆都市ガス☆駐車2台可☆全居室フローリング☆全居室照明付☆カウンターキッチン☆ウォークインクローゼット☆ ぜひ1度、お問い合わせください! |
||
| 所属団体 |
(一社)全国住宅産業協会会員 (公社)首都圏不動産公正取引協議会加盟 |
||
| 取扱会社(5) | (株)東日本地所 (情報提供媒体:SUUMO) | ||
|---|---|---|---|
| 住所 | 埼玉県さいたま市中央区新都心 7-2 大宮サウスゲート5階 | ||
| 電話番号 | 048-711-7715 | 免許番号 | 国土交通大臣(1)第10280号 |
| 取引態様 | 代理 | 物件管理番号 |
100416664401 ※お問い合わせの際には、担当者へ物件管理番号をお伝えください。 |
| 物件に関する情報 |
物件の所在地 : 東京都八王子市下柚木2 /
交通の利便 : 京王相模原線/南大沢駅 歩21分、京王相模原線/京王堀之内駅 歩32分、京王線/長沼駅 歩50分 /
面積 : 76.59m² /
築年月 : 築1年以内(2025年02月) /
賃料 : 18.0万円 /
管理費又は共益費等 : - /
礼金等 : 1ヶ月 /
敷金 : 1ヶ月、保証金等 : -、 償却、敷引 : - /
住宅総合保険等の損害保険料 : 2万円2年 /
その他 : 短期解約違約金あり(1年未満/1ヶ月分賃料)、ペット飼育時:敷金1ヶ月積み増し(頭数・種類は要相談)諸条件の変更の可能性あり、退去時クリーニング費用105 000円(税別)、町会費発生時、入居者加入と負担あり。
合計4.4万円(内訳:ホームマイスター241.65万円 鍵交換代2.75万円)
更新料 新賃料1.00ヶ月分 スマートキー 月額1650円
二人入居可/子供可/ペット相談/事務所利用相談
普通借家 2年
保証会社利用必 初回保証料:総賃料の100%、継続保証料:1年毎に総賃料の15% 初回保証料:総賃料の100%、継続保証料:1年毎に総賃料の15%
/ 駐車場 : 付無料/駐2台可
|
||
| 所属団体 |
(公社)全日本不動産協会埼玉県本部会員 (公社)首都圏不動産公正取引協議会加盟 |
||
| 取扱会社(6) | (株)ネクストライフ八王子店 (情報提供媒体:SUUMO) | ||
|---|---|---|---|
| 住所 | 東京都八王子市旭町 12-7 KDX八王子ビル 4階 | ||
| 電話番号 | 050-5530-2874 | 免許番号 | 国土交通大臣(3)第8175号 |
| 取引態様 | 仲介 | 物件管理番号 |
100470045309 ※お問い合わせの際には、担当者へ物件管理番号をお伝えください。 |
| 物件に関する情報 |
物件の所在地 : 東京都八王子市下柚木2 /
交通の利便 : 京王相模原線/南大沢駅 歩21分 /
面積 : 76.59m² /
築年月 : 築1年以内(2025年02月) /
賃料 : 18.0万円 /
管理費又は共益費等 : - /
礼金等 : 1ヶ月 /
敷金 : 1ヶ月、保証金等 : -、 償却、敷引 : - /
住宅総合保険等の損害保険料 : 2万円2年 /
その他 : ホームマイスター24:16500円/2年 ハウスクリーニング代:115500円 スマートキー代:1650円/月 ペット飼育時:敷金1ヶ月追加 短期解約違約金:1年未満の解約で月額総賃料の1ヶ月分 ◆お持ちのクレジットカードで初期費用の決済が可能です◆初期費用のお見積り等、お気軽にお問い合わせくださいませ◆0120-955-199◆
更新料 新賃料1.00ヶ月分
普通借家 2年
保証会社利用必 初回保証料(月額総賃料の100%)以降一年毎月額総賃料の15%
/ 駐車場 : 付無料
【0120-955-199】お気軽におくださいませ♪
おでのお問い合わせは 8時30分 から 21時まで 可能です!お気軽にフリーダイヤルまでご連絡ください♪◇webでのお申し込みも対応可能です◇ |
||
| 所属団体 |
(公社)東京都宅地建物取引業協会会員 (公社)首都圏不動産公正取引協議会加盟 |
||

