エヌステージジェイアール新白岡駅前[9階]
情報公開日:2025/10/11(残り15日)
次回更新日は情報公開日より15日以内
物件画像
画像提供元:ハウスコム埼玉(株)久喜店
この物件のタグ
この物件にお問い合わせ
エヌステージジェイアール新白岡駅前[9階]の物件情報
| 賃料/管理費等 |
5.73万円(管理費等 1.8万円)
|
||
|---|---|---|---|
| 敷金 | 無料 | 礼金 | 無料 |
| 種別/構造 | マンション/RC | 築年月 | 新築(2025年03月) |
| 所在地 |
埼玉県白岡市新白岡8
|
||
| 主要交通機関 |
JR宇都宮線/新白岡駅 歩1分 湘南新宿ライン宇須/新白岡駅 歩1分 |
||
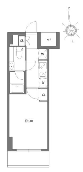
| 間取り | 1K | 面積 | 22.48m² |
| 間取り詳細 | 洋6.8 K2.0 | 方位 | 南 |
| 階数/部屋番号 | 9階/地上9階建 | 駐車場 | 無 |
| 特徴 |
|
||
| 設備/条件 | バストイレ別、エアコン、ガスコンロ対応、クロゼット、フローリング、浴室乾燥機、オートロック、シューズボックス、システムキッチン、南向き、温水洗浄便座、エレベーター、洗面所独立、2口コンロ、宅配ボックス、礼金不要、最上階、敷金不要、単身者相談、CS、駅まで平坦、駅徒歩5分以内、駅徒歩10分以内、上階無し、セキュリティ会社加入済、都市ガス、BS、敷金・礼金不要、IT重説 対応物件、通風良好 | ||
| 備考 |
■短期解約違約金:1年未満2カ月 ■解約予告:2カ月前 ■プレミアデスク代の中に登録料4400円(税込)を含みます。 プレミアデスク(2年/税込):16500円 契約時ルームクリーニング費用(税込):55000円 合計7.15万円(内訳:プレミアデスク(2年/税込)1.65万円 契約時ルームクリーニング費用(税込)5.5万円) 更新料 賃料1.00ヶ月分 事務所利用不可 保証会社利用必 【ルームID】月額総賃料の50%/月次保証料、月額総賃料の1.5%/1年毎10,000円 【オリコフォレントインシュア】→月額総賃料の50%~ /年間保証料 ※物件に関する備考は各社異なりますのでご確認のうえお問い合わせください。 |
||
| 契約期間 | お問い合わせください。 | ||
|---|---|---|---|
| 入居可能時期 |
即入居可
|
||
| 初期費用 |
お問い合わせください。
|
||
| 住宅保険 | 要 | 現状空室状況 | お問い合わせください。 |
情報提供元:ハウスコム埼玉(株)久喜店
画像提供元:ハウスコム埼玉(株)久喜店
※各種情報と現状に差異がある場合は、現状優先となります。取り扱い不動産会社が複数ある場合は、住宅保険等、一部条件が異なる場合もございますので、取扱店舗までご確認下さいませ。
この物件にお問い合わせ
周辺施設
| コンビニ |
ミニストップ新白岡駅東口店 セブン‐イレブン 新白岡駅西口店 |
|||
|---|---|---|---|---|
| スーパー |
フレンドマートさいとう商店 ヤオコー 新白岡店 |
|||
| ドラッグストア |
ドラッグスギ新白岡店 クスリのアオキ 新白岡店 |
|||
| 保育園 |
フレンドキッズランド 新白岡東口園 |
|||
|---|---|---|---|---|
| 幼稚園 |
杉の子幼稚園 |
|||
| 小学校 |
白岡市立白岡東小学校 |
|||
| 中学校 |
白岡市立篠津中学校 |
|||
※周辺情報は不動産会社から提供された情報ではなく、弊サービスで独自に収集した情報です。
担当者のオススメポイント!
成約者特典BOOKOFF買取価格10%UP(景品限度額内)
最寄り駅まで徒歩1分の駅近物件です。
エヌステージジェイアール新白岡駅前[9階]の取扱会社情報 14件
| 取扱会社(1) | ハウスコム埼玉(株)久喜店 (情報提供媒体:SUUMO) | ||
|---|---|---|---|
| 住所 | 埼玉県久喜市久喜中央2-2-6 YAORIビル1階 | ||
| 電話番号 | 0800-1706603 | 免許番号 | 埼玉県知事(1)第24888号 |
| 取引態様 | 仲介 | 物件管理番号 |
100432057224 ※お問い合わせの際には、担当者へ物件管理番号をお伝えください。 |
| 物件に関する情報 |
物件の所在地 : 埼玉県白岡市新白岡8 /
交通の利便 : JR宇都宮線/新白岡駅 歩1分、湘南新宿ライン宇須/新白岡駅 歩1分 /
面積 : 22.48m² /
築年月 : 新築(2025年03月) /
賃料 : 5.73万円 /
管理費又は共益費等 : 1.8万円 /
礼金等 : 無料 /
敷金 : 無料、保証金等 : -、 償却、敷引 : - /
住宅総合保険等の損害保険料 : 要 /
その他 : ■短期解約違約金:1年未満2カ月 ■解約予告:2カ月前 ■プレミアデスク代の中に登録料4400円(税込)を含みます。 プレミアデスク(2年/税込):16500円 契約時ルームクリーニング費用(税込):55000円
合計7.15万円(内訳:プレミアデスク(2年/税込)1.65万円 契約時ルームクリーニング費用(税込)5.5万円)
更新料 賃料1.00ヶ月分
事務所利用不可
保証会社利用必 【ルームID】月額総賃料の50%/月次保証料、月額総賃料の1.5%/1年毎10,000円 【オリコフォレントインシュア】→月額総賃料の50%~ /年間保証料
/ 駐車場 : 無
成約者特典BOOKOFF買取価格10%UP(景品限度額内)
最寄り駅まで徒歩1分の駅近物件です。 |
||
| 所属団体 |
(公財)日本賃貸住宅管理協会会員 (公社)首都圏不動産公正取引協議会加盟 |
||
| 取扱会社(2) | いい部屋ネット大東建託リーシング(株)坂戸店 (情報提供媒体:SUUMO) | ||
|---|---|---|---|
| 住所 | 埼玉県鶴ヶ島市脚折町1-5-3 | ||
| 電話番号 | 049-285-4343 | 免許番号 | 国土交通大臣(2)第9120号 |
| 取引態様 | 仲介 | 物件管理番号 |
100435197927 ※お問い合わせの際には、担当者へ物件管理番号をお伝えください。 |
| 物件に関する情報 |
物件の所在地 : 埼玉県白岡市新白岡8 /
交通の利便 : JR宇都宮線/新白岡駅 歩1分、湘南新宿ライン宇須/新白岡駅 歩1分 /
面積 : 22.48m² /
築年月 : 新築(2025年03月) /
賃料 : 5.73万円 /
管理費又は共益費等 : 1.8万円 /
礼金等 : 無料 /
敷金 : 無料、保証金等 : -、 償却、敷引 : - /
住宅総合保険等の損害保険料 : 2万円2年 /
その他 : ■短期解約違約金:1年未満2カ月 ■解約予告:2カ月前 ■プレミアデスク代の中に登録料4 400円(税込)を含みます。
合計7.15万円(内訳:プレミアデスク(2年/税込)1.65万円 契約時ルームクリーニング費用(税込)5.5万円 鍵交換代0万円)
更新料 新賃料1.00ヶ月分
事務所利用不可
保証会社利用必 会社2:オリコフォレントインシュア
/ 駐車場 : 無
お部屋さがしはいい部屋ネットの大東建託で!
スタッフ一同、お客様のご来店をこころよりお待ちしております! |
||
| 所属団体 |
(公財)日本賃貸住宅管理協会会員 (公社)首都圏不動産公正取引協議会加盟 |
||
| 取扱会社(3) | いい部屋ネット大東建託リーシング(株)古河店 (情報提供媒体:SUUMO) | ||
|---|---|---|---|
| 住所 | 茨城県古河市下辺見 2196-1 | ||
| 電話番号 | 0280-33-0825 | 免許番号 | 国土交通大臣(2)第9120号 |
| 取引態様 | 仲介 | 物件管理番号 |
100435285750 ※お問い合わせの際には、担当者へ物件管理番号をお伝えください。 |
| 物件に関する情報 |
物件の所在地 : 埼玉県白岡市新白岡8 /
交通の利便 : JR宇都宮線/新白岡駅 歩1分、湘南新宿ライン宇須/新白岡駅 歩1分 /
面積 : 22.48m² /
築年月 : 新築(2025年03月) /
賃料 : 5.73万円 /
管理費又は共益費等 : 1.8万円 /
礼金等 : 無料 /
敷金 : 無料、保証金等 : -、 償却、敷引 : - /
住宅総合保険等の損害保険料 : 2万円2年 /
その他 : ■短期解約違約金:1年未満2カ月 ■解約予告:2カ月前 ■プレミアデスク代の中に登録料4 400円(税込)を含みます。
合計7.15万円(内訳:プレミアデスク(2年/税込)1.65万円 契約時ルームクリーニング費用(税込)5.5万円 鍵交換代0万円)
更新料 新賃料1.00ヶ月分
事務所利用不可
保証会社利用必 会社2:オリコフォレントインシュア
/ 駐車場 : 無
お部屋さがしはいい部屋ネットの大東建託で!
スタッフ一同、お客様のご来店をこころよりお待ちしております! |
||
| 所属団体 |
(公財)日本賃貸住宅管理協会会員 (公社)首都圏不動産公正取引協議会加盟 |
||
| 取扱会社(4) | いい部屋ネット大東建託リーシング(株)狭山店 (情報提供媒体:SUUMO) | ||
|---|---|---|---|
| 住所 | 埼玉県狭山市入間川1-7-7 HIRO'S入間川1階 | ||
| 電話番号 | 04-2954-5910 | 免許番号 | 国土交通大臣(2)第9120号 |
| 取引態様 | 仲介 | 物件管理番号 |
100434624479 ※お問い合わせの際には、担当者へ物件管理番号をお伝えください。 |
| 物件に関する情報 |
物件の所在地 : 埼玉県白岡市新白岡8 /
交通の利便 : JR宇都宮線/新白岡駅 歩1分、湘南新宿ライン宇須/新白岡駅 歩1分 /
面積 : 22.48m² /
築年月 : 新築(2025年03月) /
賃料 : 5.73万円 /
管理費又は共益費等 : 1.8万円 /
礼金等 : 無料 /
敷金 : 無料、保証金等 : -、 償却、敷引 : - /
住宅総合保険等の損害保険料 : 2万円2年 /
その他 : ■短期解約違約金:1年未満2カ月 ■解約予告:2カ月前 ■プレミアデスク代の中に登録料4 400円(税込)を含みます。
合計7.15万円(内訳:プレミアデスク(2年/税込)1.65万円 契約時ルームクリーニング費用(税込)5.5万円 鍵交換代0万円)
更新料 新賃料1.00ヶ月分
事務所利用不可
保証会社利用必 会社2:オリコフォレントインシュア
/ 駐車場 : 無
お部屋さがしはいい部屋ネットの大東建託で!
スタッフ一同、お客様のご来店をこころよりお待ちしております! |
||
| 所属団体 |
(公財)日本賃貸住宅管理協会会員 (公社)首都圏不動産公正取引協議会加盟 |
||
| 取扱会社(5) | いい部屋ネット大東建託リーシング(株)佐野店 (情報提供媒体:SUUMO) | ||
|---|---|---|---|
| 住所 | 栃木県佐野市浅沼町 559-3 | ||
| 電話番号 | 0283-21-3281 | 免許番号 | 国土交通大臣(2)第9120号 |
| 取引態様 | 仲介 | 物件管理番号 |
100434621370 ※お問い合わせの際には、担当者へ物件管理番号をお伝えください。 |
| 物件に関する情報 |
物件の所在地 : 埼玉県白岡市新白岡8 /
交通の利便 : JR宇都宮線/新白岡駅 歩1分、湘南新宿ライン宇須/新白岡駅 歩1分 /
面積 : 22.48m² /
築年月 : 新築(2025年03月) /
賃料 : 5.73万円 /
管理費又は共益費等 : 1.8万円 /
礼金等 : 無料 /
敷金 : 無料、保証金等 : -、 償却、敷引 : - /
住宅総合保険等の損害保険料 : 2万円2年 /
その他 : ■短期解約違約金:1年未満2カ月 ■解約予告:2カ月前 ■プレミアデスク代の中に登録料4 400円(税込)を含みます。
合計7.15万円(内訳:プレミアデスク(2年/税込)1.65万円 契約時ルームクリーニング費用(税込)5.5万円 鍵交換代0万円)
更新料 新賃料1.00ヶ月分
事務所利用不可
保証会社利用必 会社2:オリコフォレントインシュア
/ 駐車場 : 無
お部屋さがしはいい部屋ネットの大東建託で!
スタッフ一同、お客様のご来店をこころよりお待ちしております! |
||
| 所属団体 |
(公財)日本賃貸住宅管理協会会員 (公社)首都圏不動産公正取引協議会加盟 |
||
| 取扱会社(6) | いい部屋ネット大東建託リーシング(株)深谷店 (情報提供媒体:SUUMO) | ||
|---|---|---|---|
| 住所 | 埼玉県深谷市原郷 2143-5 | ||
| 電話番号 | 048-574-8491 | 免許番号 | 国土交通大臣(2)第9120号 |
| 取引態様 | 仲介 | 物件管理番号 |
100434622740 ※お問い合わせの際には、担当者へ物件管理番号をお伝えください。 |
| 物件に関する情報 |
物件の所在地 : 埼玉県白岡市新白岡8 /
交通の利便 : JR宇都宮線/新白岡駅 歩1分、湘南新宿ライン宇須/新白岡駅 歩1分 /
面積 : 22.48m² /
築年月 : 新築(2025年03月) /
賃料 : 5.73万円 /
管理費又は共益費等 : 1.8万円 /
礼金等 : 無料 /
敷金 : 無料、保証金等 : -、 償却、敷引 : - /
住宅総合保険等の損害保険料 : 2万円2年 /
その他 : ■短期解約違約金:1年未満2カ月 ■解約予告:2カ月前 ■プレミアデスク代の中に登録料4 400円(税込)を含みます。
合計7.15万円(内訳:プレミアデスク(2年/税込)1.65万円 契約時ルームクリーニング費用(税込)5.5万円 鍵交換代0万円)
更新料 新賃料1.00ヶ月分
事務所利用不可
保証会社利用必 会社2:オリコフォレントインシュア
/ 駐車場 : 無
お部屋さがしはいい部屋ネットの大東建託で!
スタッフ一同、お客様のご来店をこころよりお待ちしております! |
||
| 所属団体 |
(公財)日本賃貸住宅管理協会会員 (公社)首都圏不動産公正取引協議会加盟 |
||
| 取扱会社(7) | いい部屋ネット大東建託リーシング(株)桶川店 (情報提供媒体:SUUMO) | ||
|---|---|---|---|
| 住所 | 埼玉県桶川市泉1-8-20 | ||
| 電話番号 | 048-787-8070 | 免許番号 | 国土交通大臣(2)第9120号 |
| 取引態様 | 仲介 | 物件管理番号 |
100435695777 ※お問い合わせの際には、担当者へ物件管理番号をお伝えください。 |
| 物件に関する情報 |
物件の所在地 : 埼玉県白岡市新白岡8 /
交通の利便 : JR宇都宮線/新白岡駅 歩1分、湘南新宿ライン宇須/新白岡駅 歩1分 /
面積 : 22.48m² /
築年月 : 新築(2025年03月) /
賃料 : 5.73万円 /
管理費又は共益費等 : 1.8万円 /
礼金等 : 無料 /
敷金 : 無料、保証金等 : -、 償却、敷引 : - /
住宅総合保険等の損害保険料 : 2万円2年 /
その他 : ■短期解約違約金:1年未満2カ月 ■解約予告:2カ月前 ■プレミアデスク代の中に登録料4 400円(税込)を含みます。
合計7.15万円(内訳:プレミアデスク(2年/税込)1.65万円 契約時ルームクリーニング費用(税込)5.5万円 鍵交換代0万円)
更新料 新賃料1.00ヶ月分
事務所利用不可
保証会社利用必 会社2:オリコフォレントインシュア
/ 駐車場 : 無
お部屋さがしはいい部屋ネットの大東建託で!
スタッフ一同、お客様のご来店をこころよりお待ちしております! |
||
| 所属団体 |
(公財)日本賃貸住宅管理協会会員 (公社)首都圏不動産公正取引協議会加盟 |
||
| 取扱会社(8) | いい部屋ネット大東建託リーシング(株)久喜店 (情報提供媒体:SUUMO) | ||
|---|---|---|---|
| 住所 | 埼玉県久喜市久喜北1-9-8 | ||
| 電話番号 | 0480-24-5172 | 免許番号 | 国土交通大臣(2)第9120号 |
| 取引態様 | 仲介 | 物件管理番号 |
100434578931 ※お問い合わせの際には、担当者へ物件管理番号をお伝えください。 |
| 物件に関する情報 |
物件の所在地 : 埼玉県白岡市新白岡8 /
交通の利便 : JR宇都宮線/新白岡駅 歩1分、湘南新宿ライン宇須/新白岡駅 歩1分 /
面積 : 22.48m² /
築年月 : 新築(2025年03月) /
賃料 : 5.73万円 /
管理費又は共益費等 : 1.8万円 /
礼金等 : 無料 /
敷金 : 無料、保証金等 : -、 償却、敷引 : - /
住宅総合保険等の損害保険料 : 2万円2年 /
その他 : ■短期解約違約金:1年未満2カ月 ■解約予告:2カ月前 ■プレミアデスク代の中に登録料4 400円(税込)を含みます。
合計7.15万円(内訳:プレミアデスク(2年/税込)1.65万円 契約時ルームクリーニング費用(税込)5.5万円 鍵交換代0万円)
更新料 新賃料1.00ヶ月分
事務所利用不可
保証会社利用必 会社2:オリコフォレントインシュア
/ 駐車場 : 無
お部屋さがしはいい部屋ネットの大東建託で!
収納はクロゼット・シューズボックスなど豊富なので、衣類や履き物の整理がしやすく便利です。知らない来訪者が玄関前まで来ることが減るので防犯対策につながるオートロック機能を備えております。 |
||
| 所属団体 |
(公財)日本賃貸住宅管理協会会員 (公社)首都圏不動産公正取引協議会加盟 |
||
| 取扱会社(9) | ハウスコム埼玉(株)大宮店 (情報提供媒体:SUUMO) | ||
|---|---|---|---|
| 住所 | 埼玉県さいたま市大宮区桜木町1-1-4 TS-114ビル | ||
| 電話番号 | 0800-1700144 | 免許番号 | 埼玉県知事(1)第24888号 |
| 取引態様 | 仲介 | 物件管理番号 |
100434037686 ※お問い合わせの際には、担当者へ物件管理番号をお伝えください。 |
| 物件に関する情報 |
物件の所在地 : 埼玉県白岡市新白岡8 /
交通の利便 : JR宇都宮線/新白岡駅 歩1分、湘南新宿ライン宇須/新白岡駅 歩1分 /
面積 : 22.48m² /
築年月 : 新築(2025年03月) /
賃料 : 5.73万円 /
管理費又は共益費等 : 1.8万円 /
礼金等 : 無料 /
敷金 : 無料、保証金等 : -、 償却、敷引 : - /
住宅総合保険等の損害保険料 : 要 /
その他 : ■短期解約違約金:1年未満2カ月 ■解約予告:2カ月前 ■プレミアデスク代の中に登録料4400円(税込)を含みます。 プレミアデスク(2年/税込):16500円 契約時ルームクリーニング費用(税込):55000円
合計7.15万円(内訳:プレミアデスク(2年/税込)1.65万円 契約時ルームクリーニング費用(税込)5.5万円)
更新料 賃料1.00ヶ月分
事務所利用不可
保証会社利用必 【ルームID】月額総賃料の50%/月次保証料、月額総賃料の1.5%/1年毎10,000円 【オリコフォレントインシュア】→月額総賃料の50%~ /年間保証料
/ 駐車場 : 無
成約者特典BOOKOFF買取価格10%UP(景品限度額内)
最寄り駅まで徒歩1分の駅近物件です。 |
||
| 所属団体 |
(公財)日本賃貸住宅管理協会会員 (公社)首都圏不動産公正取引協議会加盟 |
||
| 取扱会社(10) | ハウスコム埼玉(株)大宮東口店 (情報提供媒体:SUUMO) | ||
|---|---|---|---|
| 住所 | 埼玉県さいたま市大宮区大門町1-92-7 ハイカラ堂ビル2階 | ||
| 電話番号 | 0800-1705189 | 免許番号 | 埼玉県知事(1)第24888号 |
| 取引態様 | 仲介 | 物件管理番号 |
100464595175 ※お問い合わせの際には、担当者へ物件管理番号をお伝えください。 |
| 物件に関する情報 |
物件の所在地 : 埼玉県白岡市新白岡8 /
交通の利便 : JR宇都宮線/新白岡駅 歩1分、湘南新宿ライン宇須/新白岡駅 歩1分 /
面積 : 22.48m² /
築年月 : 新築(2025年03月) /
賃料 : 5.73万円 /
管理費又は共益費等 : 1.8万円 /
礼金等 : 無料 /
敷金 : 無料、保証金等 : -、 償却、敷引 : - /
住宅総合保険等の損害保険料 : 要 /
その他 : 合計7.15万円(内訳:プレミアデスク(2年/税込)1.65万円 契約時ルームクリーニング費用(税込)5.5万円)
更新料 賃料1.00ヶ月分
単身者限定
保証会社利用必 初回、月額総賃料の50%/月次保証料、月額総賃料の1.5%/1年毎10 000円
/ 駐車場 : 無
成約者特典BOOKOFF買取価格10%UP(景品限度額内)
共用部には宅配ボックスが付いているため、家で何時間も待機する必要がありません。室内設備は洗面所独立・浴室乾燥機など充実した設備を備え付けています。エアコン付きなので、室内の温度調整が簡単です。 |
||
| 所属団体 |
(公財)日本賃貸住宅管理協会会員 (公社)首都圏不動産公正取引協議会加盟 |
||
| 取扱会社(11) | ハウスコム埼玉(株)春日部店 (情報提供媒体:SUUMO) | ||
|---|---|---|---|
| 住所 | 埼玉県春日部市粕壁1-1-4 折原ビル1階 | ||
| 電話番号 | 0800-1700224 | 免許番号 | 埼玉県知事(1)第24888号 |
| 取引態様 | 仲介 | 物件管理番号 |
100441005330 ※お問い合わせの際には、担当者へ物件管理番号をお伝えください。 |
| 物件に関する情報 |
物件の所在地 : 埼玉県白岡市新白岡8 /
交通の利便 : JR宇都宮線/新白岡駅 歩1分、湘南新宿ライン宇須/新白岡駅 歩1分 /
面積 : 22.48m² /
築年月 : 新築(2025年03月) /
賃料 : 5.73万円 /
管理費又は共益費等 : 1.8万円 /
礼金等 : 無料 /
敷金 : 無料、保証金等 : -、 償却、敷引 : - /
住宅総合保険等の損害保険料 : 要 /
その他 : ■短期解約違約金:1年未満2カ月 ■解約予告:2カ月前 ■プレミアデスク代の中に登録料4400円(税込)を含みます。 プレミアデスク(2年/税込):16500円 契約時ルームクリーニング費用(税込):55000円
合計7.15万円(内訳:プレミアデスク(2年/税込)1.65万円 契約時ルームクリーニング費用(税込)5.5万円)
更新料 賃料1.00ヶ月分
事務所利用不可
保証会社利用必 【ルームID】月額総賃料の50%/月次保証料、月額総賃料の1.5%/1年毎10,000円 【オリコフォレントインシュア】→月額総賃料の50%~ /年間保証料
/ 駐車場 : 無
成約者特典BOOKOFF買取価格10%UP(景品限度額内)
最寄り駅まで徒歩1分の駅近物件です。 |
||
| 所属団体 |
(公財)日本賃貸住宅管理協会会員 (公社)首都圏不動産公正取引協議会加盟 |
||
| 取扱会社(12) | いい部屋ネット大東建託リーシング(株)所沢店 (情報提供媒体:SUUMO) | ||
|---|---|---|---|
| 住所 | 埼玉県所沢市東町 11-1 グラシスタワー所沢1階 | ||
| 電話番号 | 04-2928-9606 | 免許番号 | 国土交通大臣(2)第9120号 |
| 取引態様 | 仲介 | 物件管理番号 |
100434573013 ※お問い合わせの際には、担当者へ物件管理番号をお伝えください。 |
| 物件に関する情報 |
物件の所在地 : 埼玉県白岡市新白岡8 /
交通の利便 : JR宇都宮線/新白岡駅 歩1分、湘南新宿ライン宇須/新白岡駅 歩1分 /
面積 : 22.48m² /
築年月 : 新築(2025年03月) /
賃料 : 5.73万円 /
管理費又は共益費等 : 1.8万円 /
礼金等 : 無料 /
敷金 : 無料、保証金等 : -、 償却、敷引 : - /
住宅総合保険等の損害保険料 : 2万円2年 /
その他 : ■短期解約違約金:1年未満2カ月 ■解約予告:2カ月前 ■プレミアデスク代の中に登録料4 400円(税込)を含みます。
合計7.15万円(内訳:プレミアデスク(2年/税込)1.65万円 契約時ルームクリーニング費用(税込)5.5万円 鍵交換代0万円)
更新料 新賃料1.00ヶ月分
事務所利用不可
保証会社利用必 会社2:オリコフォレントインシュア
/ 駐車場 : 無
お部屋さがしはいい部屋ネットの大東建託で!
スタッフ一同、お客様のご来店をこころよりお待ちしております! |
||
| 所属団体 |
(公財)日本賃貸住宅管理協会会員 (公社)首都圏不動産公正取引協議会加盟 |
||
| 取扱会社(13) | いい部屋ネット大東建託リーシング(株)川口駅前店 (情報提供媒体:SUUMO) | ||
|---|---|---|---|
| 住所 | 埼玉県川口市川口1-1-1 キュポ・ラ本館棟A208 | ||
| 電話番号 | 048-226-4600 | 免許番号 | 国土交通大臣(2)第9120号 |
| 取引態様 | 仲介 | 物件管理番号 |
100434675914 ※お問い合わせの際には、担当者へ物件管理番号をお伝えください。 |
| 物件に関する情報 |
物件の所在地 : 埼玉県白岡市新白岡8 /
交通の利便 : JR宇都宮線/新白岡駅 歩1分、湘南新宿ライン宇須/新白岡駅 歩1分 /
面積 : 22.48m² /
築年月 : 新築(2025年03月) /
賃料 : 5.73万円 /
管理費又は共益費等 : 1.8万円 /
礼金等 : 無料 /
敷金 : 無料、保証金等 : -、 償却、敷引 : - /
住宅総合保険等の損害保険料 : 2万円2年 /
その他 : ■短期解約違約金:1年未満2カ月 ■解約予告:2カ月前 ■プレミアデスク代の中に登録料4 400円(税込)を含みます。
合計7.15万円(内訳:プレミアデスク(2年/税込)1.65万円 契約時ルームクリーニング費用(税込)5.5万円 鍵交換代0万円)
更新料 新賃料1.00ヶ月分
事務所利用不可
保証会社利用必 会社2:オリコフォレントインシュア
/ 駐車場 : 無
お部屋さがしはいい部屋ネットの大東建託で!
スタッフ一同、お客様のご来店をこころよりお待ちしております! |
||
| 所属団体 |
(公財)日本賃貸住宅管理協会会員 (公社)首都圏不動産公正取引協議会加盟 |
||
| 取扱会社(14) | ハウスコム埼玉(株)上尾店 (情報提供媒体:SUUMO) | ||
|---|---|---|---|
| 住所 | 埼玉県上尾市谷津2-1-50-32 | ||
| 電話番号 | 0800-1700135 | 免許番号 | 埼玉県知事(1)第24888号 |
| 取引態様 | 仲介 | 物件管理番号 |
100429596690 ※お問い合わせの際には、担当者へ物件管理番号をお伝えください。 |
| 物件に関する情報 |
物件の所在地 : 埼玉県白岡市新白岡8 /
交通の利便 : JR宇都宮線/新白岡駅 歩1分、湘南新宿ライン宇須/新白岡駅 歩1分 /
面積 : 22.48m² /
築年月 : 新築(2025年03月) /
賃料 : 5.73万円 /
管理費又は共益費等 : 1.8万円 /
礼金等 : 無料 /
敷金 : 無料、保証金等 : -、 償却、敷引 : - /
住宅総合保険等の損害保険料 : 要 /
その他 : ■短期解約違約金:1年未満2カ月 ■解約予告:2カ月前 ■プレミアデスク代の中に登録料4400円(税込)を含みます。 プレミアデスク(2年/税込):16500円 契約時ルームクリーニング費用(税込):55000円
合計7.15万円(内訳:プレミアデスク(2年/税込)1.65万円 契約時ルームクリーニング費用(税込)5.5万円)
更新料 賃料1.00ヶ月分
事務所利用不可
保証会社利用必 【ルームID】月額総賃料の50%/月次保証料、月額総賃料の1.5%/1年毎10,000円 【オリコフォレントインシュア】→月額総賃料の50%~ /年間保証料
/ 駐車場 : 無
成約者特典BOOKOFF買取価格10%UP(景品限度額内)
最寄り駅まで徒歩1分の駅近物件です。 |
||
| 所属団体 |
(公財)日本賃貸住宅管理協会会員 (公社)首都圏不動産公正取引協議会加盟 |
||

