エヌステージジェイアール新白岡駅前[3階]
情報公開日:2025/12/11(残り15日)
次回更新日は2025/12/25
物件画像
画像提供元:ハウスコム埼玉(株)春日部店
この物件のタグ
この物件にお問い合わせ
エヌステージジェイアール新白岡駅前[3階]の物件情報
| 賃料/管理費等 |
5.43万円(管理費等 1.8万円)
|
||
|---|---|---|---|
| 敷金 | 無料 | 礼金 | 無料 |
| 種別/構造 | マンション/RC | 築年月 | 新築(2025年03月) |
| 所在地 |
埼玉県白岡市新白岡8
|
||
| 主要交通機関 |
JR宇都宮線/新白岡駅 歩1分 湘南新宿ライン宇須/新白岡駅 歩3分 |
||
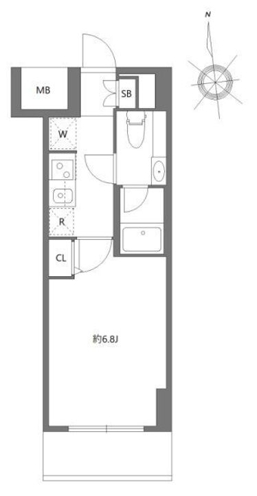
| 間取り | 1K | 面積 | 22.48m² |
| 間取り詳細 | 洋6.8 K2.0 | 方位 | 南 |
| 階数/部屋番号 | 3階/地上9階建 | 駐車場 | 無 |
| 特徴 |
|
||
| 設備/条件 | バストイレ別、エアコン、ガスコンロ対応、クロゼット、フローリング、浴室乾燥機、オートロック、室内洗濯置、シューズボックス、システムキッチン、南向き、温水洗浄便座、エレベーター、洗面所独立、2口コンロ、宅配ボックス、即入居可、礼金不要、敷金不要、CS、駅まで平坦、駅徒歩5分以内、駅徒歩10分以内、セキュリティ会社加入済、都市ガス、BS、敷金・礼金不要、IT重説 対応物件 | ||
| 備考 |
■インターネット:別途契約フレッツ光 ■短期解約違約金:1年未満2ヶ月 ■解約予告:2ヶ月前 ■プレミアデスク代の中に登録料4 400円を含みます。 ■駐車場:13 200円/月※空き要確認 ■バイク置き場:3 300円/月※空き要確認 ■駐輪場:330円/月※空き要確認 合計7.15万円(内訳:プレミアデスク(2年/税込)1.65万円 契約時ルームクリーニング費用(税込)5.5万円) 更新料 賃料1.00ヶ月分 事務所利用不可 保証会社利用必 【ルームID】初回保証料:総賃料の50%/月額保証料:総賃料の1.5%/1年毎10 000円 ※物件に関する備考は各社異なりますのでご確認のうえお問い合わせください。 |
||
| 契約期間 | お問い合わせください。 | ||
|---|---|---|---|
| 入居可能時期 |
即入居可
|
||
| 初期費用 |
お問い合わせください。
|
||
| 住宅保険 | 2万円2年 | 現状空室状況 | お問い合わせください。 |
情報提供元:ハウスコム埼玉(株)春日部店
画像提供元:ハウスコム埼玉(株)春日部店
※各種情報と現状に差異がある場合は、現状優先となります。取り扱い不動産会社が複数ある場合は、住宅保険等、一部条件が異なる場合もございますので、取扱店舗までご確認下さいませ。
この物件にお問い合わせ
周辺施設
| コンビニ |
ミニストップ新白岡駅東口店 ローソン 白岡野牛 |
|||
|---|---|---|---|---|
| スーパー |
フレンドマートさいとう商店 ヤオコー 新白岡店 |
|||
| ドラッグストア |
ドラッグスギ 新白岡店 クスリのアオキ 新白岡店 |
|||
| 保育園 |
フレンドキッズランド 新白岡東口園 |
|||
|---|---|---|---|---|
| 幼稚園 |
杉の子幼稚園 |
|||
| 小学校 |
白岡市立白岡東小学校 |
|||
| 中学校 |
白岡市立篠津中学校 |
|||
※周辺情報は不動産会社から提供された情報ではなく、弊サービスで独自に収集した情報です。
担当者のオススメポイント!
成約者特典BOOKOFF買取価格10%UP(景品限度額内)
直接の荷物の受け取りを不安に思っている人でも宅配ボックスがあれば接触せずに荷物を受け取ることができます。知らない人が玄関前まで来ることが減るので防犯対策につながるオートロック機能がついております。
エヌステージジェイアール新白岡駅前[3階]の取扱会社情報 14件
| 取扱会社(1) | ハウスコム埼玉(株)春日部店 (情報提供媒体:SUUMO) | ||
|---|---|---|---|
| 住所 | 埼玉県春日部市粕壁1-1-4 折原ビル1階 | ||
| 電話番号 | 0800-1700224 | 免許番号 | 埼玉県知事(1)第24888号 |
| 取引態様 | 仲介 | 物件管理番号 |
100441005408 ※お問い合わせの際には、担当者へ物件管理番号をお伝えください。 |
| 物件に関する情報 |
物件の所在地 : 埼玉県白岡市新白岡8 /
交通の利便 : JR宇都宮線/新白岡駅 歩1分、湘南新宿ライン宇須/新白岡駅 歩3分 /
面積 : 22.48m² /
築年月 : 新築(2025年03月) /
賃料 : 5.43万円 /
管理費又は共益費等 : 1.8万円 /
礼金等 : 無料 /
敷金 : 無料、保証金等 : -、 償却、敷引 : - /
住宅総合保険等の損害保険料 : 2万円2年 /
その他 : ■インターネット:別途契約フレッツ光 ■短期解約違約金:1年未満2ヶ月 ■解約予告:2ヶ月前 ■プレミアデスク代の中に登録料4 400円を含みます。 ■駐車場:13 200円/月※空き要確認 ■バイク置き場:3 300円/月※空き要確認 ■駐輪場:330円/月※空き要確認
合計7.15万円(内訳:プレミアデスク(2年/税込)1.65万円 契約時ルームクリーニング費用(税込)5.5万円)
更新料 賃料1.00ヶ月分
事務所利用不可
保証会社利用必 【ルームID】初回保証料:総賃料の50%/月額保証料:総賃料の1.5%/1年毎10 000円
/ 駐車場 : 無
成約者特典BOOKOFF買取価格10%UP(景品限度額内)
直接の荷物の受け取りを不安に思っている人でも宅配ボックスがあれば接触せずに荷物を受け取ることができます。知らない人が玄関前まで来ることが減るので防犯対策につながるオートロック機能がついております。 |
||
| 所属団体 |
(公財)日本賃貸住宅管理協会会員 (公社)首都圏不動産公正取引協議会加盟 |
||
| 取扱会社(2) | ハウスコム埼玉(株)大宮東口店 (情報提供媒体:SUUMO) | ||
|---|---|---|---|
| 住所 | 埼玉県さいたま市大宮区大門町1-92-7 ハイカラ堂ビル2階 | ||
| 電話番号 | 0800-1705189 | 免許番号 | 埼玉県知事(1)第24888号 |
| 取引態様 | 仲介 | 物件管理番号 |
100427120873 ※お問い合わせの際には、担当者へ物件管理番号をお伝えください。 |
| 物件に関する情報 |
物件の所在地 : 埼玉県白岡市新白岡8 /
交通の利便 : JR宇都宮線/新白岡駅 歩1分、湘南新宿ライン宇須/新白岡駅 歩3分 /
面積 : 22.48m² /
築年月 : 新築(2025年03月) /
賃料 : 5.43万円 /
管理費又は共益費等 : 1.8万円 /
礼金等 : 無料 /
敷金 : 無料、保証金等 : -、 償却、敷引 : - /
住宅総合保険等の損害保険料 : 2万円2年 /
その他 : ■インターネット:別途契約フレッツ光 ■短期解約違約金:1年未満2ヶ月 ■解約予告:2ヶ月前 ■プレミアデスク代の中に登録料4 400円を含みます。 ■駐車場:13 200円/月※空き要確認 ■バイク置き場:3 300円/月※空き要確認 ■駐輪場:330円/月※空き要確認
合計7.15万円(内訳:プレミアデスク(2年/税込)1.65万円 契約時ルームクリーニング費用(税込)5.5万円)
更新料 賃料1.00ヶ月分
事務所利用不可
保証会社利用必 【ルームID】初回保証料:総賃料の50%/月額保証料:総賃料の1.5%/1年毎10 000円
/ 駐車場 : 無
成約者特典BOOKOFF買取価格10%UP(景品限度額内)
直接の荷物の受け取りを不安に思っている人でも宅配ボックスがあれば接触せずに荷物を受け取ることができます。知らない人が玄関前まで来ることが減るので防犯対策につながるオートロック機能がついております。 |
||
| 所属団体 |
(公財)日本賃貸住宅管理協会会員 (公社)首都圏不動産公正取引協議会加盟 |
||
| 取扱会社(3) | ハウスコム埼玉(株)大宮店 (情報提供媒体:SUUMO) | ||
|---|---|---|---|
| 住所 | 埼玉県さいたま市大宮区桜木町1-1-4 TS-114ビル | ||
| 電話番号 | 0800-1700144 | 免許番号 | 埼玉県知事(1)第24888号 |
| 取引態様 | 仲介 | 物件管理番号 |
100434036280 ※お問い合わせの際には、担当者へ物件管理番号をお伝えください。 |
| 物件に関する情報 |
物件の所在地 : 埼玉県白岡市新白岡8 /
交通の利便 : JR宇都宮線/新白岡駅 歩1分、湘南新宿ライン宇須/新白岡駅 歩3分 /
面積 : 22.48m² /
築年月 : 新築(2025年03月) /
賃料 : 5.43万円 /
管理費又は共益費等 : 1.8万円 /
礼金等 : 無料 /
敷金 : 無料、保証金等 : -、 償却、敷引 : - /
住宅総合保険等の損害保険料 : 2万円2年 /
その他 : ■インターネット:別途契約フレッツ光 ■短期解約違約金:1年未満2ヶ月 ■解約予告:2ヶ月前 ■プレミアデスク代の中に登録料4 400円を含みます。 ■駐車場:13 200円/月※空き要確認 ■バイク置き場:3 300円/月※空き要確認 ■駐輪場:330円/月※空き要確認
合計7.15万円(内訳:プレミアデスク(2年/税込)1.65万円 契約時ルームクリーニング費用(税込)5.5万円)
更新料 賃料1.00ヶ月分
事務所利用不可
保証会社利用必 【ルームID】初回保証料:総賃料の50%/月額保証料:総賃料の1.5%/1年毎10 000円
/ 駐車場 : 無
成約者特典BOOKOFF買取価格10%UP(景品限度額内)
直接の荷物の受け取りを不安に思っている人でも宅配ボックスがあれば接触せずに荷物を受け取ることができます。知らない人が玄関前まで来ることが減るので防犯対策につながるオートロック機能がついております。 |
||
| 所属団体 |
(公財)日本賃貸住宅管理協会会員 (公社)首都圏不動産公正取引協議会加盟 |
||
| 取扱会社(4) | いい部屋ネット大東建託リーシング(株)川口駅前店 (情報提供媒体:SUUMO) | ||
|---|---|---|---|
| 住所 | 埼玉県川口市川口1-1-1 キュポ・ラ本館棟A208 | ||
| 電話番号 | 048-226-4600 | 免許番号 | 国土交通大臣(2)第9120号 |
| 取引態様 | 仲介 | 物件管理番号 |
100434675978 ※お問い合わせの際には、担当者へ物件管理番号をお伝えください。 |
| 物件に関する情報 |
物件の所在地 : 埼玉県白岡市新白岡8 /
交通の利便 : JR宇都宮線/新白岡駅 歩1分、湘南新宿ライン宇須/新白岡駅 歩1分 /
面積 : 22.48m² /
築年月 : 新築(2025年03月) /
賃料 : 5.43万円 /
管理費又は共益費等 : 1.8万円 /
礼金等 : 無料 /
敷金 : 無料、保証金等 : -、 償却、敷引 : - /
住宅総合保険等の損害保険料 : 2万円2年 /
その他 : ■短期解約違約金:1年未満2カ月 ■解約予告:2カ月前 ■プレミアデスク代の中に登録料4 400円(税込)を含みます。
合計7.15万円(内訳:プレミアデスク(2年/税込)1.65万円 契約時ルームクリーニング費用(税込)5.5万円 鍵交換代0万円)
更新料 新賃料1.00ヶ月分
事務所利用不可
保証会社利用必 会社2:オリコフォレントインシュア
/ 駐車場 : 無
お部屋さがしはいい部屋ネットの大東建託で!
スタッフ一同、お客様のご来店をこころよりお待ちしております! |
||
| 所属団体 |
(公財)日本賃貸住宅管理協会会員 (公社)首都圏不動産公正取引協議会加盟 |
||
| 取扱会社(5) | いい部屋ネット大東建託リーシング(株)所沢店 (情報提供媒体:SUUMO) | ||
|---|---|---|---|
| 住所 | 埼玉県所沢市東町 11-1 グラシスタワー所沢1階 | ||
| 電話番号 | 04-2928-9606 | 免許番号 | 国土交通大臣(2)第9120号 |
| 取引態様 | 仲介 | 物件管理番号 |
100434572941 ※お問い合わせの際には、担当者へ物件管理番号をお伝えください。 |
| 物件に関する情報 |
物件の所在地 : 埼玉県白岡市新白岡8 /
交通の利便 : JR宇都宮線/新白岡駅 歩1分、湘南新宿ライン宇須/新白岡駅 歩1分 /
面積 : 22.48m² /
築年月 : 新築(2025年03月) /
賃料 : 5.43万円 /
管理費又は共益費等 : 1.8万円 /
礼金等 : 無料 /
敷金 : 無料、保証金等 : -、 償却、敷引 : - /
住宅総合保険等の損害保険料 : 2万円2年 /
その他 : ■短期解約違約金:1年未満2カ月 ■解約予告:2カ月前 ■プレミアデスク代の中に登録料4 400円(税込)を含みます。
合計7.15万円(内訳:プレミアデスク(2年/税込)1.65万円 契約時ルームクリーニング費用(税込)5.5万円 鍵交換代0万円)
更新料 新賃料1.00ヶ月分
事務所利用不可
保証会社利用必 会社2:オリコフォレントインシュア
/ 駐車場 : 無
お部屋さがしはいい部屋ネットの大東建託で!
スタッフ一同、お客様のご来店をこころよりお待ちしております! |
||
| 所属団体 |
(公財)日本賃貸住宅管理協会会員 (公社)首都圏不動産公正取引協議会加盟 |
||
| 取扱会社(6) | ハウスコム埼玉(株)久喜店 (情報提供媒体:SUUMO) | ||
|---|---|---|---|
| 住所 | 埼玉県久喜市久喜中央2-2-6 YAORIビル1階 | ||
| 電話番号 | 0800-1706603 | 免許番号 | 埼玉県知事(1)第24888号 |
| 取引態様 | 仲介 | 物件管理番号 |
100432057252 ※お問い合わせの際には、担当者へ物件管理番号をお伝えください。 |
| 物件に関する情報 |
物件の所在地 : 埼玉県白岡市新白岡8 /
交通の利便 : JR宇都宮線/新白岡駅 歩1分、湘南新宿ライン宇須/新白岡駅 歩3分 /
面積 : 22.48m² /
築年月 : 新築(2025年03月) /
賃料 : 5.43万円 /
管理費又は共益費等 : 1.8万円 /
礼金等 : 無料 /
敷金 : 無料、保証金等 : -、 償却、敷引 : - /
住宅総合保険等の損害保険料 : 2万円2年 /
その他 : ■インターネット:別途契約フレッツ光 ■短期解約違約金:1年未満2ヶ月 ■解約予告:2ヶ月前 ■プレミアデスク代の中に登録料4 400円を含みます。 ■駐車場:13 200円/月※空き要確認 ■バイク置き場:3 300円/月※空き要確認 ■駐輪場:330円/月※空き要確認
合計7.15万円(内訳:プレミアデスク(2年/税込)1.65万円 契約時ルームクリーニング費用(税込)5.5万円)
更新料 賃料1.00ヶ月分
事務所利用不可
保証会社利用必 【ルームID】初回保証料:総賃料の50%/月額保証料:総賃料の1.5%/1年毎10 000円
/ 駐車場 : 無
成約者特典BOOKOFF買取価格10%UP(景品限度額内)
直接の荷物の受け取りを不安に思っている人でも宅配ボックスがあれば接触せずに荷物を受け取ることができます。知らない人が玄関前まで来ることが減るので防犯対策につながるオートロック機能がついております。 |
||
| 所属団体 |
(公財)日本賃貸住宅管理協会会員 (公社)首都圏不動産公正取引協議会加盟 |
||
| 取扱会社(7) | いい部屋ネット大東建託リーシング(株)桶川店 (情報提供媒体:SUUMO) | ||
|---|---|---|---|
| 住所 | 埼玉県桶川市泉1-8-20 | ||
| 電話番号 | 048-787-8070 | 免許番号 | 国土交通大臣(2)第9120号 |
| 取引態様 | 仲介 | 物件管理番号 |
100435695713 ※お問い合わせの際には、担当者へ物件管理番号をお伝えください。 |
| 物件に関する情報 |
物件の所在地 : 埼玉県白岡市新白岡8 /
交通の利便 : JR宇都宮線/新白岡駅 歩1分、湘南新宿ライン宇須/新白岡駅 歩1分 /
面積 : 22.48m² /
築年月 : 新築(2025年03月) /
賃料 : 5.43万円 /
管理費又は共益費等 : 1.8万円 /
礼金等 : 無料 /
敷金 : 無料、保証金等 : -、 償却、敷引 : - /
住宅総合保険等の損害保険料 : 2万円2年 /
その他 : ■短期解約違約金:1年未満2カ月 ■解約予告:2カ月前 ■プレミアデスク代の中に登録料4 400円(税込)を含みます。
合計7.15万円(内訳:プレミアデスク(2年/税込)1.65万円 契約時ルームクリーニング費用(税込)5.5万円 鍵交換代0万円)
更新料 新賃料1.00ヶ月分
事務所利用不可
保証会社利用必 会社2:オリコフォレントインシュア
/ 駐車場 : 無
お部屋さがしはいい部屋ネットの大東建託で!
スタッフ一同、お客様のご来店をこころよりお待ちしております! |
||
| 所属団体 |
(公財)日本賃貸住宅管理協会会員 (公社)首都圏不動産公正取引協議会加盟 |
||
| 取扱会社(8) | ハウスコム埼玉(株)上尾店 (情報提供媒体:SUUMO) | ||
|---|---|---|---|
| 住所 | 埼玉県上尾市谷津2-1-50-32 | ||
| 電話番号 | 0800-1700135 | 免許番号 | 埼玉県知事(1)第24888号 |
| 取引態様 | 仲介 | 物件管理番号 |
100429534703 ※お問い合わせの際には、担当者へ物件管理番号をお伝えください。 |
| 物件に関する情報 |
物件の所在地 : 埼玉県白岡市新白岡8 /
交通の利便 : JR宇都宮線/新白岡駅 歩1分、湘南新宿ライン宇須/新白岡駅 歩3分 /
面積 : 22.48m² /
築年月 : 新築(2025年03月) /
賃料 : 5.43万円 /
管理費又は共益費等 : 1.8万円 /
礼金等 : 無料 /
敷金 : 無料、保証金等 : -、 償却、敷引 : - /
住宅総合保険等の損害保険料 : 2万円2年 /
その他 : ■インターネット:別途契約フレッツ光 ■短期解約違約金:1年未満2ヶ月 ■解約予告:2ヶ月前 ■プレミアデスク代の中に登録料4 400円を含みます。 ■駐車場:13 200円/月※空き要確認 ■バイク置き場:3 300円/月※空き要確認 ■駐輪場:330円/月※空き要確認
合計7.15万円(内訳:プレミアデスク(2年/税込)1.65万円 契約時ルームクリーニング費用(税込)5.5万円)
更新料 賃料1.00ヶ月分
事務所利用不可
保証会社利用必 【ルームID】初回保証料:総賃料の50%/月額保証料:総賃料の1.5%/1年毎10 000円
/ 駐車場 : 無
成約者特典BOOKOFF買取価格10%UP(景品限度額内)
直接の荷物の受け取りを不安に思っている人でも宅配ボックスがあれば接触せずに荷物を受け取ることができます。知らない人が玄関前まで来ることが減るので防犯対策につながるオートロック機能がついております。 |
||
| 所属団体 |
(公財)日本賃貸住宅管理協会会員 (公社)首都圏不動産公正取引協議会加盟 |
||
| 取扱会社(9) | いい部屋ネット大東建託リーシング(株)狭山店 (情報提供媒体:SUUMO) | ||
|---|---|---|---|
| 住所 | 埼玉県狭山市入間川1-7-7 HIRO'S入間川1階 | ||
| 電話番号 | 04-2954-5910 | 免許番号 | 国土交通大臣(2)第9120号 |
| 取引態様 | 仲介 | 物件管理番号 |
100434624502 ※お問い合わせの際には、担当者へ物件管理番号をお伝えください。 |
| 物件に関する情報 |
物件の所在地 : 埼玉県白岡市新白岡8 /
交通の利便 : JR宇都宮線/新白岡駅 歩1分、湘南新宿ライン宇須/新白岡駅 歩1分 /
面積 : 22.48m² /
築年月 : 新築(2025年03月) /
賃料 : 5.43万円 /
管理費又は共益費等 : 1.8万円 /
礼金等 : 無料 /
敷金 : 無料、保証金等 : -、 償却、敷引 : - /
住宅総合保険等の損害保険料 : 2万円2年 /
その他 : ■短期解約違約金:1年未満2カ月 ■解約予告:2カ月前 ■プレミアデスク代の中に登録料4 400円(税込)を含みます。
合計7.15万円(内訳:プレミアデスク(2年/税込)1.65万円 契約時ルームクリーニング費用(税込)5.5万円 鍵交換代0万円)
更新料 新賃料1.00ヶ月分
事務所利用不可
保証会社利用必 会社2:オリコフォレントインシュア
/ 駐車場 : 無
お部屋さがしはいい部屋ネットの大東建託で!
スタッフ一同、お客様のご来店をこころよりお待ちしております! |
||
| 所属団体 |
(公財)日本賃貸住宅管理協会会員 (公社)首都圏不動産公正取引協議会加盟 |
||
| 取扱会社(10) | いい部屋ネット大東建託リーシング(株)坂戸店 (情報提供媒体:SUUMO) | ||
|---|---|---|---|
| 住所 | 埼玉県鶴ヶ島市脚折町1-5-3 | ||
| 電話番号 | 049-285-4343 | 免許番号 | 国土交通大臣(2)第9120号 |
| 取引態様 | 仲介 | 物件管理番号 |
100435197884 ※お問い合わせの際には、担当者へ物件管理番号をお伝えください。 |
| 物件に関する情報 |
物件の所在地 : 埼玉県白岡市新白岡8 /
交通の利便 : JR宇都宮線/新白岡駅 歩1分、湘南新宿ライン宇須/新白岡駅 歩1分 /
面積 : 22.48m² /
築年月 : 新築(2025年03月) /
賃料 : 5.43万円 /
管理費又は共益費等 : 1.8万円 /
礼金等 : 無料 /
敷金 : 無料、保証金等 : -、 償却、敷引 : - /
住宅総合保険等の損害保険料 : 2万円2年 /
その他 : ■短期解約違約金:1年未満2カ月 ■解約予告:2カ月前 ■プレミアデスク代の中に登録料4 400円(税込)を含みます。
合計7.15万円(内訳:プレミアデスク(2年/税込)1.65万円 契約時ルームクリーニング費用(税込)5.5万円 鍵交換代0万円)
更新料 新賃料1.00ヶ月分
事務所利用不可
保証会社利用必 会社2:オリコフォレントインシュア
/ 駐車場 : 無
お部屋さがしはいい部屋ネットの大東建託で!
スタッフ一同、お客様のご来店をこころよりお待ちしております! |
||
| 所属団体 |
(公財)日本賃貸住宅管理協会会員 (公社)首都圏不動産公正取引協議会加盟 |
||
| 取扱会社(11) | いい部屋ネット大東建託リーシング(株)深谷店 (情報提供媒体:SUUMO) | ||
|---|---|---|---|
| 住所 | 埼玉県深谷市原郷 2143-5 | ||
| 電話番号 | 048-574-8491 | 免許番号 | 国土交通大臣(2)第9120号 |
| 取引態様 | 仲介 | 物件管理番号 |
100434622769 ※お問い合わせの際には、担当者へ物件管理番号をお伝えください。 |
| 物件に関する情報 |
物件の所在地 : 埼玉県白岡市新白岡8 /
交通の利便 : JR宇都宮線/新白岡駅 歩1分、湘南新宿ライン宇須/新白岡駅 歩1分 /
面積 : 22.48m² /
築年月 : 新築(2025年03月) /
賃料 : 5.43万円 /
管理費又は共益費等 : 1.8万円 /
礼金等 : 無料 /
敷金 : 無料、保証金等 : -、 償却、敷引 : - /
住宅総合保険等の損害保険料 : 2万円2年 /
その他 : ■短期解約違約金:1年未満2カ月 ■解約予告:2カ月前 ■プレミアデスク代の中に登録料4 400円(税込)を含みます。
合計7.15万円(内訳:プレミアデスク(2年/税込)1.65万円 契約時ルームクリーニング費用(税込)5.5万円 鍵交換代0万円)
更新料 新賃料1.00ヶ月分
事務所利用不可
保証会社利用必 会社2:オリコフォレントインシュア
/ 駐車場 : 無
お部屋さがしはいい部屋ネットの大東建託で!
スタッフ一同、お客様のご来店をこころよりお待ちしております! |
||
| 所属団体 |
(公財)日本賃貸住宅管理協会会員 (公社)首都圏不動産公正取引協議会加盟 |
||
| 取扱会社(12) | いい部屋ネット大東建託リーシング(株)古河店 (情報提供媒体:SUUMO) | ||
|---|---|---|---|
| 住所 | 茨城県古河市下辺見 2196-1 | ||
| 電話番号 | 0280-33-0825 | 免許番号 | 国土交通大臣(2)第9120号 |
| 取引態様 | 仲介 | 物件管理番号 |
100435285838 ※お問い合わせの際には、担当者へ物件管理番号をお伝えください。 |
| 物件に関する情報 |
物件の所在地 : 埼玉県白岡市新白岡8 /
交通の利便 : JR宇都宮線/新白岡駅 歩1分、湘南新宿ライン宇須/新白岡駅 歩1分 /
面積 : 22.48m² /
築年月 : 新築(2025年03月) /
賃料 : 5.43万円 /
管理費又は共益費等 : 1.8万円 /
礼金等 : 無料 /
敷金 : 無料、保証金等 : -、 償却、敷引 : - /
住宅総合保険等の損害保険料 : 2万円2年 /
その他 : ■短期解約違約金:1年未満2カ月 ■解約予告:2カ月前 ■プレミアデスク代の中に登録料4 400円(税込)を含みます。
合計7.15万円(内訳:プレミアデスク(2年/税込)1.65万円 契約時ルームクリーニング費用(税込)5.5万円 鍵交換代0万円)
更新料 新賃料1.00ヶ月分
事務所利用不可
保証会社利用必 会社2:オリコフォレントインシュア
/ 駐車場 : 無
お部屋さがしはいい部屋ネットの大東建託で!
スタッフ一同、お客様のご来店をこころよりお待ちしております! |
||
| 所属団体 |
(公財)日本賃貸住宅管理協会会員 (公社)首都圏不動産公正取引協議会加盟 |
||
| 取扱会社(13) | いい部屋ネット大東建託リーシング(株)久喜店 (情報提供媒体:SUUMO) | ||
|---|---|---|---|
| 住所 | 埼玉県久喜市久喜北1-9-8 | ||
| 電話番号 | 0480-24-5172 | 免許番号 | 国土交通大臣(2)第9120号 |
| 取引態様 | 仲介 | 物件管理番号 |
100434578878 ※お問い合わせの際には、担当者へ物件管理番号をお伝えください。 |
| 物件に関する情報 |
物件の所在地 : 埼玉県白岡市新白岡8 /
交通の利便 : JR宇都宮線/新白岡駅 歩1分、湘南新宿ライン宇須/新白岡駅 歩1分 /
面積 : 22.48m² /
築年月 : 新築(2025年03月) /
賃料 : 5.43万円 /
管理費又は共益費等 : 1.8万円 /
礼金等 : 無料 /
敷金 : 無料、保証金等 : -、 償却、敷引 : - /
住宅総合保険等の損害保険料 : 2万円2年 /
その他 : ■短期解約違約金:1年未満2カ月 ■解約予告:2カ月前 ■プレミアデスク代の中に登録料4 400円(税込)を含みます。
合計7.15万円(内訳:プレミアデスク(2年/税込)1.65万円 契約時ルームクリーニング費用(税込)5.5万円 鍵交換代0万円)
更新料 新賃料1.00ヶ月分
事務所利用不可
保証会社利用必 会社2:オリコフォレントインシュア
/ 駐車場 : 無
お部屋さがしはいい部屋ネットの大東建託で!
収納はクロゼット・シューズボックスなど豊富なので、衣類や履き物の整理がしやすく便利です。知らない来訪者が玄関前まで来ることが減るので防犯対策につながるオートロック機能を備えております。 |
||
| 所属団体 |
(公財)日本賃貸住宅管理協会会員 (公社)首都圏不動産公正取引協議会加盟 |
||
| 取扱会社(14) | いい部屋ネット大東建託リーシング(株)佐野店 (情報提供媒体:SUUMO) | ||
|---|---|---|---|
| 住所 | 栃木県佐野市浅沼町 559-3 | ||
| 電話番号 | 0283-21-3281 | 免許番号 | 国土交通大臣(2)第9120号 |
| 取引態様 | 仲介 | 物件管理番号 |
100434560203 ※お問い合わせの際には、担当者へ物件管理番号をお伝えください。 |
| 物件に関する情報 |
物件の所在地 : 埼玉県白岡市新白岡8 /
交通の利便 : JR宇都宮線/新白岡駅 歩1分、湘南新宿ライン宇須/新白岡駅 歩1分 /
面積 : 22.48m² /
築年月 : 新築(2025年03月) /
賃料 : 5.43万円 /
管理費又は共益費等 : 1.8万円 /
礼金等 : 無料 /
敷金 : 無料、保証金等 : -、 償却、敷引 : - /
住宅総合保険等の損害保険料 : 2万円2年 /
その他 : ■短期解約違約金:1年未満2カ月 ■解約予告:2カ月前 ■プレミアデスク代の中に登録料4 400円(税込)を含みます。
合計7.15万円(内訳:プレミアデスク(2年/税込)1.65万円 契約時ルームクリーニング費用(税込)5.5万円 鍵交換代0万円)
更新料 新賃料1.00ヶ月分
事務所利用不可
保証会社利用必 会社2:オリコフォレントインシュア
/ 駐車場 : 無
お部屋さがしはいい部屋ネットの大東建託で!
スタッフ一同、お客様のご来店をこころよりお待ちしております! |
||
| 所属団体 |
(公財)日本賃貸住宅管理協会会員 (公社)首都圏不動産公正取引協議会加盟 |
||

