プライムメゾン大塚[9階]
情報公開日:2025/09/27(残り15日)
次回更新日は情報公開日より15日以内
物件画像
画像提供元:(株)イチイ国際部
この物件のタグ
この物件にお問い合わせ
プライムメゾン大塚[9階]の物件情報
| 賃料/管理費等 |
15.7万円(管理費等 1.0万円)
|
||
|---|---|---|---|
| 敷金 | 15.7万円 | 礼金 | 無料 |
| 種別/構造 | マンション/RC | 築年月 | 2017年01月 |
| 所在地 |
東京都豊島区北大塚1
|
||
| 主要交通機関 |
JR山手線/大塚駅 歩3分 都電荒川線/大塚駅前駅 歩3分 東京メトロ丸ノ内線/新大塚駅 歩9分 |
||
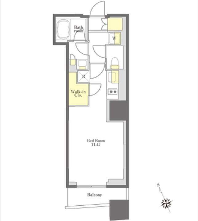
| 間取り | 1R | 面積 | 30.17m² |
| 間取り詳細 | 洋11.4 | 方位 | 南 |
| 階数/部屋番号 | 9階/地上19階建 | 駐車場 | 有(敷地内) 敷地内33000円/機械式駐 |
| 特徴 |
|
||
| 設備/条件 | バストイレ別、バルコニー、エアコン、ガスコンロ対応、フローリング、TVインターホン、浴室乾燥機、オートロック、室内洗濯置、システムキッチン、南向き、温水洗浄便座、脱衣所、エレベーター、洗面所独立、洗面化粧台、2口コンロ、駐輪場、宅配ボックス、CATV、光ファイバー、即入居可、礼金不要、防犯カメラ、ウォークインクロゼット、保証人不要、仲介手数料不要、敷金1ヶ月、バイク置場、ディンプルキー、ネット使用料不要、ダブルロックキー、24時間換気システム、複層ガラス、3駅以上利用可、3沿線以上利用可、駅徒歩5分以内、24時間ゴミ出し可、風除室、敷地内ごみ置き場、日勤管理、当社管理物件、都市ガス、洗面所にドア、天井高シューズクロゼット、年内入居可、年度内入居可、保証会社利用可、IT重説 対応物件、初期費用カード決済可 | ||
| 備考 |
通勤管理/短期解約違約金設定有り(1年未満の解約で賃料の1ヶ月分。学生契約の場合、1年未満の解約で賃料の1ヶ月分、1年以上2年未満の解約で賃料の0.5ヶ月分)。留学生の場合、敷金2ヶ月。つなぐネットコミュニケーションズ提供のインターネットを無料で利用可能(別会社の回線の個別引き込み不可)。線路から近いので、電車の通行時の騒音・振動などの影響についてはお客様ご自身でご確認ください。 合計2.75万円(内訳:鍵交換代2.75万円) 更新料 新賃料1.00ヶ月分 室内清掃費用 38500円 シャーメゾンライフSUPPORT 月額1320円 単身者限定/子供不可/事務所利用不可/ルームシェア不可 普通借家 2年 保証会社利用必 【らくらくパートナー(アプラス)】 契約事務手数料:33000円(入居後、初回家賃引き落とし時) 継続保証料:(賃料+管理費+シャーメゾンライフSUPPORT24)×2%/月 ※法人契約の場合は個別にご相談ください。 |
||
| 契約期間 | お問い合わせください。 | ||
|---|---|---|---|
| 入居可能時期 |
即入居可
|
||
| 初期費用 |
お問い合わせください。
|
||
| 住宅保険 | 要 | 現状空室状況 | お問い合わせください。 |
情報提供元:(株)イチイ国際部
画像提供元:(株)イチイ国際部
※各種情報と現状に差異がある場合は、現状優先となります。取り扱い不動産会社が複数ある場合は、住宅保険等、一部条件が異なる場合もございますので、取扱店舗までご確認下さいませ。
この物件にお問い合わせ
周辺施設
| コンビニ |
ファミリーマート北大塚店 グリーンローソン北大塚一丁目 |
|||
|---|---|---|---|---|
| スーパー |
まいばすけっと 北大塚1丁目店 株式会社よしや 大塚店 |
|||
| ドラッグストア |
巣鴨萬盛堂薬局 株式会社萬盛堂薬局 巣鴨本店 |
|||
| 保育園 |
つくしんぼ保育所 |
|||
|---|---|---|---|---|
| 幼稚園 |
白鳩幼稚園 |
|||
| 小学校 |
豊島区立清和小学校 |
|||
| 中学校 |
十文字中学校 |
|||
※周辺情報は不動産会社から提供された情報ではなく、弊サービスで独自に収集した情報です。
担当者のオススメポイント!
大塚駅から徒歩3分 礼金0 仲手0 ネット利用料0
8月5日退去予定。駅周辺は商業施設等が充実していてとても生活しやすい環境です。大塚駅から徒歩3分と通勤・通学にも便利。
プライムメゾン大塚[9階]の取扱会社情報 1件
| 取扱会社(1) | (株)イチイ国際部 (情報提供媒体:SUUMO) | ||
|---|---|---|---|
| 住所 | 東京都新宿区高田馬場2-2-3 ハードビル1階 | ||
| 電話番号 | 03-6380-2513 | 免許番号 | 東京都知事(12)第39368号 |
| 取引態様 | 仲介 | 物件管理番号 |
100450385433 ※お問い合わせの際には、担当者へ物件管理番号をお伝えください。 |
| 物件に関する情報 |
物件の所在地 : 東京都豊島区北大塚1 /
交通の利便 : JR山手線/大塚駅 歩3分、都電荒川線/大塚駅前駅 歩3分、東京メトロ丸ノ内線/新大塚駅 歩9分 /
面積 : 30.17m² /
築年月 : 2017年01月 /
賃料 : 15.7万円 /
管理費又は共益費等 : 1.0万円 /
礼金等 : 無料 /
敷金 : 1ヶ月、保証金等 : -、 償却、敷引 : - /
住宅総合保険等の損害保険料 : 要 /
その他 : 通勤管理/短期解約違約金設定有り(1年未満の解約で賃料の1ヶ月分。学生契約の場合、1年未満の解約で賃料の1ヶ月分、1年以上2年未満の解約で賃料の0.5ヶ月分)。留学生の場合、敷金2ヶ月。つなぐネットコミュニケーションズ提供のインターネットを無料で利用可能(別会社の回線の個別引き込み不可)。線路から近いので、電車の通行時の騒音・振動などの影響についてはお客様ご自身でご確認ください。
合計2.75万円(内訳:鍵交換代2.75万円)
更新料 新賃料1.00ヶ月分 室内清掃費用 38500円 シャーメゾンライフSUPPORT 月額1320円
単身者限定/子供不可/事務所利用不可/ルームシェア不可
普通借家 2年
保証会社利用必 【らくらくパートナー(アプラス)】 契約事務手数料:33000円(入居後、初回家賃引き落とし時) 継続保証料:(賃料+管理費+シャーメゾンライフSUPPORT24)×2%/月 ※法人契約の場合は個別にご相談ください。
/ 駐車場 : 有(敷地内)
敷地内33000円/機械式駐
大塚駅から徒歩3分 礼金0 仲手0 ネット利用料0
8月5日退去予定。駅周辺は商業施設等が充実していてとても生活しやすい環境です。大塚駅から徒歩3分と通勤・通学にも便利。 |
||
| 所属団体 |
(公社)全日本不動産協会東京都本部会員 (公社)首都圏不動産公正取引協議会加盟 |
||

