ドルチェ椥辻[215号室]
情報公開日:2025/10/26(残り15日)
次回更新日は情報公開日より15日以内
物件画像
画像提供元:株式会社 京都ライフ/山科店
この物件のタグ
この物件にお問い合わせ
ドルチェ椥辻[215号室]の物件情報
| 賃料/管理費等 |
6.7万円(管理費等 7,000円)
|
||
|---|---|---|---|
| 敷金 | 無料 | 礼金 | 無料 |
| 種別/構造 | マンション/RC | 築年月 | 1996年03月 |
| 所在地 |
京都府京都市山科区椥辻平田町
|
||
| 主要交通機関 |
京都市東西線/椥辻 徒歩6分 京都市東西線/小野 徒歩14分 |
||
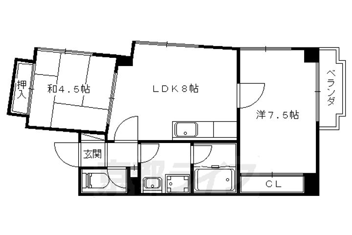
| 間取り | 2LDK | 面積 | 48.0m² |
| 間取り詳細 | 洋室 7.5帖、和室 4.5畳、LDK 8帖 | 方位 | 東 |
| 階数/部屋番号 | 2階/地上5階建 215号室 | 駐車場 | 空有 11,000円 |
| 特徴 |
|
||
| 設備/条件 | エアコン、バス・トイレ別、独立洗面台、温水洗浄便座、2人入居可、BSアンテナ、インターネット対応、光ファイバー、システムキッチン、ガスコンロ、コンロ二口以上、2階以上の物件、角部屋、フローリング、室内洗濯機置場、バルコニー、エレベーター、駐車場あり、駐輪場あり、バイク置き場あり、都市ガス、オートロック、TVドアホン | ||
| 備考 |
山科椥辻エリアより1LDK、2LDK、3LDKと様々な間取りのお部屋がございますのでお客様のニーズに合わせてお選びいただけます。オートロック機能完備で防犯面ではご安心いただけます。また、地下駐車場もございますので、ご利用をお考えの方はお気軽にお問い合わせください。周辺には、徒歩6分圏内に椥辻駅があり、そのほかにもコンビニやスーパーなど生活に欠かせない施設も徒歩圏内にございますので便利です。気... LIFE SUPPORT:1,100円 更新料:無し 保証会社:利用必須 初回:月額賃料等の40%/2年、月額:支払い手数料880円、更新時:月額賃料等の20%/2年 |
||
| 契約期間 | 2年 | ||
|---|---|---|---|
| 入居可能時期 |
期日指定(2025年12月中旬)
|
||
| 初期費用 |
お問い合わせください。
|
||
| 住宅保険 | お問い合わせください。 | 現状空室状況 | 賃貸中 |
情報提供元:株式会社 京都ライフ/山科店
画像提供元:株式会社 京都ライフ/山科店
※各種情報と現状に差異がある場合は、現状優先となります。取り扱い不動産会社が複数ある場合は、住宅保険等、一部条件が異なる場合もございますので、取扱店舗までご確認下さいませ。
この物件にお問い合わせ
周辺施設
| コンビニ |
セブン‐イレブン 京都山科椥辻店 (248m) ローソン 山科一本道店 (350m) |
|||
|---|---|---|---|---|
| スーパー |
株式会社マツヤスーパー 大宅店 (386m) フレスコ勧修店 (402m) |
|||
| ドラッグストア |
スギ薬局山科椥辻店 (163m) えくぼ調剤薬局 椥辻店 (408m) |
|||
| 保育園 |
なかとみ保育園 (794m) |
|||
|---|---|---|---|---|
| 幼稚園 |
椥辻 こども園 (287m) |
|||
| 小学校 |
京都市立勧修小学校 (341m) |
|||
| 中学校 |
京都市立勧修中学校 (423m) |
|||
※周辺情報は不動産会社から提供された情報ではなく、弊サービスで独自に収集した情報です。
担当者のオススメポイント!
山科椥辻エリアより スーパー、病院、ドラッグストアも揃っている住みやすい地域
ドルチェ椥辻[215号室]の取扱会社情報 1件
| 取扱会社(1) | 初期費用分割払い対応株式会社 京都ライフ 山科店 | ||
|---|---|---|---|
| 住所 | 京都市山科区竹鼻竹ノ街道町11スタービル1F | ||
| 電話番号 | 075-595-7677 | 免許番号 | 京都府知事(11)第6353号 |
| 取引態様 | 専属 | 物件管理番号 |
18200-215 ※お問い合わせの際には、担当者へ物件管理番号をお伝えください。 |
| PR | お部屋探しのアドバイザー | ||
| 物件に関する情報 |
物件の所在地 : 京都府京都市山科区椥辻平田町 /
交通の利便 : 京都市東西線/椥辻 徒歩6分、京都市東西線/小野 徒歩14分 /
面積 : 48.0m² /
築年月 : 1996年03月 /
賃料 : 6.7万円 /
管理費又は共益費等 : 7,000円 /
礼金等 : 無料 /
敷金 : 無料、保証金等 : -、 償却、敷引 : - /
住宅総合保険等の損害保険料 : - /
その他 : 山科椥辻エリアより1LDK、2LDK、3LDKと様々な間取りのお部屋がございますのでお客様のニーズに合わせてお選びいただけます。オートロック機能完備で防犯面ではご安心いただけます。また、地下駐車場もございますので、ご利用をお考えの方はお気軽にお問い合わせください。周辺には、徒歩6分圏内に椥辻駅があり、そのほかにもコンビニやスーパーなど生活に欠かせない施設も徒歩圏内にございますので便利です。気...
LIFE SUPPORT:1,100円
更新料:無し
保証会社:利用必須 初回:月額賃料等の40%/2年、月額:支払い手数料880円、更新時:月額賃料等の20%/2年
/ 駐車場 : 空有
11,000円
山科椥辻エリアより スーパー、病院、ドラッグストアも揃っている住みやすい地域
|
||
| 所属団体 |
京都府宅地建物取引業協会 公益社団法人近畿地区不動産公正取引協議会 全国宅地建物取引業保証協会 |
||

