CITYWALK下板橋[3階]
情報公開日:2025/10/29(残り15日)
次回更新日は2025/11/12
物件画像
画像提供元:ハウスコム東東京(株)赤羽店
この物件のタグ
この物件にお問い合わせ
CITYWALK下板橋[3階]の物件情報
| 賃料/管理費等 |
8.8万円(管理費等 5,000円)
|
||
|---|---|---|---|
| 敷金 | 無料 | 礼金 | 無料 |
| 種別/構造 | マンション/RC | 築年月 | 建築中(2025年11月) |
| 所在地 |
東京都板橋区板橋2
|
||
| 主要交通機関 |
東武東上線/下板橋駅 歩7分 都営三田線/板橋区役所前駅 歩7分 |
||
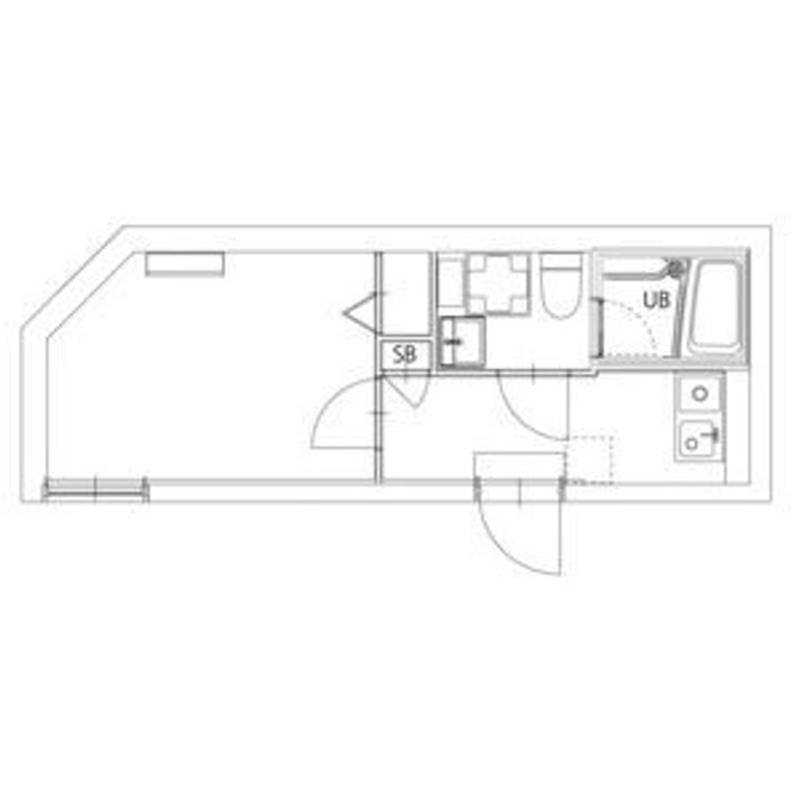
| 間取り | 1K | 面積 | 18.04m² |
| 間取り詳細 | - | 方位 | 西 |
| 階数/部屋番号 | 3階/地上5階建 | 駐車場 | 無 |
| 特徴 |
|
||
| 設備/条件 | バストイレ別、エアコン、TVインターホン、浴室乾燥機、オートロック、室内洗濯置、シューズボックス、システムキッチン、角住戸、温水洗浄便座、洗面所独立、宅配ボックス、防犯カメラ、IHクッキングヒーター、ネット使用料不要、都市ガス | ||
| 備考 |
合計7.7万円(内訳:24時間安心サポート1.65万円 基本クリーニング費4.4万円 エアコンクリーニング費1.65万円) 更新料 賃料1.00ヶ月分 法人希望 保証会社利用必 初回総賃料50% 月額保証料1% ※物件に関する備考は各社異なりますのでご確認のうえお問い合わせください。 |
||
| 契約期間 | お問い合わせください。 | ||
|---|---|---|---|
| 入居可能時期 |
''25年12月下旬
|
||
| 初期費用 |
お問い合わせください。
|
||
| 住宅保険 | 1.8万円2年 | 現状空室状況 | お問い合わせください。 |
情報提供元:ハウスコム東東京(株)赤羽店
画像提供元:ハウスコム東東京(株)赤羽店
※各種情報と現状に差異がある場合は、現状優先となります。取り扱い不動産会社が複数ある場合は、住宅保険等、一部条件が異なる場合もございますので、取扱店舗までご確認下さいませ。
この物件にお問い合わせ
周辺施設
| コンビニ |
セブンイレブン板橋2丁目店 セブン‐イレブン 板橋3丁目南店 |
|||
|---|---|---|---|---|
| スーパー |
株式会社スーパーみらべる本部 株式会社ヨークマート 下板橋店 |
|||
| ドラッグストア |
グリーン薬局 板橋鈴薬局 |
|||
| 保育園 |
板橋区立 保育園かないくぼ |
|||
|---|---|---|---|---|
| 幼稚園 |
落合幼稚園 |
|||
| 小学校 |
板橋区立 板橋第二小学校 |
|||
| 中学校 |
板橋区立 板橋第一中学校 |
|||
※周辺情報は不動産会社から提供された情報ではなく、弊サービスで独自に収集した情報です。
担当者のオススメポイント!
成約者特典BOOKOFF買取価格10%UP(景品限度額内)
詳細はハウスコム赤羽店()まで
CITYWALK下板橋[3階]の取扱会社情報 16件
| 取扱会社(1) | ハウスコム東東京(株)赤羽店 (情報提供媒体:SUUMO) | ||
|---|---|---|---|
| 住所 | 東京都北区赤羽南1-7-3 厚生堂ビル1階 | ||
| 電話番号 | 0800-1700723 | 免許番号 | 東京都知事(1)第108283号 |
| 取引態様 | 仲介 | 物件管理番号 |
100460029267 ※お問い合わせの際には、担当者へ物件管理番号をお伝えください。 |
| 物件に関する情報 |
物件の所在地 : 東京都板橋区板橋2 /
交通の利便 : 東武東上線/下板橋駅 歩7分、都営三田線/板橋区役所前駅 歩7分 /
面積 : 18.04m² /
築年月 : 建築中(2025年11月) /
賃料 : 8.8万円 /
管理費又は共益費等 : 5,000円 /
礼金等 : 無料 /
敷金 : 無料、保証金等 : -、 償却、敷引 : - /
住宅総合保険等の損害保険料 : 1.8万円2年 /
その他 : 合計7.7万円(内訳:24時間安心サポート1.65万円 基本クリーニング費4.4万円 エアコンクリーニング費1.65万円)
更新料 賃料1.00ヶ月分
法人希望
保証会社利用必 初回総賃料50% 月額保証料1%
/ 駐車場 : 無
成約者特典BOOKOFF買取価格10%UP(景品限度額内)
詳細はハウスコム赤羽店()まで |
||
| 所属団体 |
(公財)日本賃貸住宅管理協会会員 (公社)首都圏不動産公正取引協議会加盟 |
||
| 取扱会社(2) | ハウス・トゥ・ハウス・ネットサービス(株)板橋桜通り店 (情報提供媒体:SUUMO) | ||
|---|---|---|---|
| 住所 | 東京都北区滝野川7-8-10第二城北ビル | ||
| 電話番号 | 03-5944-5577 | 免許番号 | 国土交通大臣(4)第7400号 |
| 取引態様 | 仲介 | 物件管理番号 |
100460503658 ※お問い合わせの際には、担当者へ物件管理番号をお伝えください。 |
| 物件に関する情報 |
物件の所在地 : 東京都板橋区板橋2 /
交通の利便 : 都営三田線/板橋区役所前駅 歩7分、東武東上線/下板橋駅 歩7分、JR埼京線/板橋駅 歩12分 /
面積 : 18.04m² /
築年月 : 建築中(2025年11月) /
賃料 : 8.8万円 /
管理費又は共益費等 : 5,000円 /
礼金等 : 無料 /
敷金 : 無料、保証金等 : -、 償却、敷引 : - /
住宅総合保険等の損害保険料 : 1.8万円2年 /
その他 : 顔認証システムのオートロック・TVインターホンなどを設置しているので安全面でも優れております。解約予告2ヶ月前。短期解約違約金:1年未満は総賃料の2ヶ月分、1年以上2年未満は総賃料の1ヶ月分。更新手数料5000円+消費税。退去時にエアコンクリーニング費用1台あたり15000円+消費税がかかります。お車でご案内します。お気軽にお問い合わせ下さい。
合計6.05万円(内訳:24時間安心サポート1.65万円 ハウスクリーニング費用4.4万円)
更新料 新賃料1.00ヶ月分
事務所利用不可
普通借家 2年
保証会社利用必 初回:総賃料の50%、月次:総賃料の1%
/ 駐車場 : 無
2025年11月完成予定のデザイナーズマンション。
外干しできない時も居室の一部を物干しスペースにしなくて済む、浴室乾燥機があります。共用部には宅配ボックスが付いているため、好きなタイミングで荷物を受け取ることができます。 |
||
| 所属団体 |
(公社)全日本不動産協会東京都本部会員 (公社)首都圏不動産公正取引協議会加盟 |
||
| 取扱会社(3) | ハウス・トゥ・ハウス・ネットサービス(株)板橋店 (情報提供媒体:SUUMO) | ||
|---|---|---|---|
| 住所 | 東京都板橋区板橋1-20-8 | ||
| 電話番号 | 03-5943-3555 | 免許番号 | 国土交通大臣(4)第7400号 |
| 取引態様 | 仲介 | 物件管理番号 |
100460498351 ※お問い合わせの際には、担当者へ物件管理番号をお伝えください。 |
| 物件に関する情報 |
物件の所在地 : 東京都板橋区板橋2 /
交通の利便 : 都営三田線/板橋区役所前駅 歩7分、東武東上線/下板橋駅 歩7分、JR埼京線/板橋駅 歩12分 /
面積 : 18.04m² /
築年月 : 建築中(2025年11月) /
賃料 : 8.8万円 /
管理費又は共益費等 : 5,000円 /
礼金等 : 無料 /
敷金 : 無料、保証金等 : -、 償却、敷引 : - /
住宅総合保険等の損害保険料 : 1.8万円2年 /
その他 : 顔認証システムのオートロック・TVインターホンなどを設置しているので安全面でも優れております。解約予告2ヶ月前。短期解約違約金:1年未満は総賃料の2ヶ月分、1年以上2年未満は総賃料の1ヶ月分。更新手数料5000円+消費税。退去時にエアコンクリーニング費用1台あたり15000円+消費税がかかります。お車でご案内します。お気軽にお問い合わせ下さい。
合計6.05万円(内訳:24時間安心サポート1.65万円 ハウスクリーニング費用4.4万円)
更新料 新賃料1.00ヶ月分
事務所利用不可
普通借家 2年
保証会社利用必 初回:総賃料の50%、月次:総賃料の1%
/ 駐車場 : 無
2025年11月完成予定のデザイナーズマンション。
外干しできない時も居室の一部を物干しスペースにしなくて済む、浴室乾燥機があります。共用部には宅配ボックスが付いているため、好きなタイミングで荷物を受け取ることができます。 |
||
| 所属団体 |
(公社)全日本不動産協会東京都本部会員 (公社)首都圏不動産公正取引協議会加盟 |
||
| 取扱会社(4) | アエラス板橋店 (株)アエラス.ER (情報提供媒体:SUUMO) | ||
|---|---|---|---|
| 住所 | 東京都板橋区板橋1-13-8 協立コーポレーション第3ビル 5階 | ||
| 電話番号 | 03-6905-4880 | 免許番号 | 国土交通大臣(1)第10724号 |
| 取引態様 | 仲介 | 物件管理番号 |
100460209305 ※お問い合わせの際には、担当者へ物件管理番号をお伝えください。 |
| 物件に関する情報 |
物件の所在地 : 東京都板橋区板橋2 /
交通の利便 : 東武東上線/下板橋駅 歩7分、都営三田線/板橋区役所前駅 歩7分、東武東上線/大山駅 歩9分 /
面積 : 18.04m² /
築年月 : 建築中(2025年11月) /
賃料 : 8.8万円 /
管理費又は共益費等 : 5,000円 /
礼金等 : 無料 /
敷金 : 無料、保証金等 : -、 償却、敷引 : - /
住宅総合保険等の損害保険料 : 要 /
その他 : 埼京線板橋駅徒歩12分/板橋郵便局まで561m/板橋区役所まで553m/更新手数料5000円(税抜)/火災保険18000円2年/退去時エアコン清掃費15000円(税抜)/短期解約違約金1年未満の解約で賃料2ヶ月2年未満の解約で賃料1か月解約予告期間2ヶ月/鍵交換代借主負担
合計6.05万円(内訳:24時間安心サポート16500円/室内清掃費用44000円)
普通借家 2年
保証会社利用必 初回:賃料等の50%、月額賃料等の1%
/ 駐車場 : 近隣駐車場
近隣148m25300円
オンラインで申込から契約手続き、LINEでのご相談も可能です
当物件は初期費用分割払い可(クレジットカード決済も可)/お客様のご希望に合わせた方法(店頭、オンライン等)で物件をご提案いたします。初期費用のお見積りや入居希望日のご相談もお気軽にお問い合わせください |
||
| 所属団体 |
(公社)全日本不動産協会東京都本部会員 (公社)首都圏不動産公正取引協議会加盟 |
||
| 取扱会社(5) | ハウスコム東東京(株)成増店 (情報提供媒体:SUUMO) | ||
|---|---|---|---|
| 住所 | 東京都板橋区成増3-3-11 成増アクト2 1階 | ||
| 電話番号 | 0800-1700386 | 免許番号 | 東京都知事(1)第108283号 |
| 取引態様 | 仲介 | 物件管理番号 |
100460099513 ※お問い合わせの際には、担当者へ物件管理番号をお伝えください。 |
| 物件に関する情報 |
物件の所在地 : 東京都板橋区板橋2 /
交通の利便 : 東武東上線/下板橋駅 歩7分、都営三田線/板橋区役所前駅 歩7分、JR埼京線/板橋駅 歩12分 /
面積 : 18.04m² /
築年月 : 建築中(2025年11月) /
賃料 : 8.8万円 /
管理費又は共益費等 : 5,000円 /
礼金等 : 無料 /
敷金 : 無料、保証金等 : -、 償却、敷引 : - /
住宅総合保険等の損害保険料 : 要 /
その他 : 火災保険加入要18000円
合計6.05万円(内訳:24時間サポート1.65万円 ハウスクリーニング代4.4万円)
更新料 新賃料1.00ヶ月分
保証会社利用必 初回保証料 賃料等の50%、月額保証料 賃料等の1%
/ 駐車場 : 無
成約者特典BOOKOFF買取価格10%UP(景品限度額内)
セキュリティ面は、オートロック・TVインターホンなどを備え付けているので安心して暮らせます。宅配ボックス付きのマンションなので不在時の荷物受け取りもできます。こちらは賃料8.8万円の物件です。 |
||
| 所属団体 |
(公財)日本賃貸住宅管理協会会員 (公社)首都圏不動産公正取引協議会加盟 |
||
| 取扱会社(6) | ハウスコム埼玉(株)和光店 (情報提供媒体:SUUMO) | ||
|---|---|---|---|
| 住所 | 埼玉県和光市本町 6-8 | ||
| 電話番号 | 0800-1700216 | 免許番号 | 埼玉県知事(1)第24888号 |
| 取引態様 | 仲介 | 物件管理番号 |
100460205177 ※お問い合わせの際には、担当者へ物件管理番号をお伝えください。 |
| 物件に関する情報 |
物件の所在地 : 東京都板橋区板橋2 /
交通の利便 : 東武東上線/下板橋駅 歩7分、都営三田線/板橋区役所前駅 歩7分、JR埼京線/板橋駅 歩12分 /
面積 : 18.04m² /
築年月 : 建築中(2025年11月) /
賃料 : 8.8万円 /
管理費又は共益費等 : 5,000円 /
礼金等 : 無料 /
敷金 : 無料、保証金等 : -、 償却、敷引 : - /
住宅総合保険等の損害保険料 : 要 /
その他 : 火災保険加入要18000円
合計6.05万円(内訳:24時間サポート1.65万円 ハウスクリーニング代4.4万円)
更新料 新賃料1.00ヶ月分
保証会社利用必 初回保証料 賃料等の50%、月額保証料 賃料等の1%
/ 駐車場 : 無
成約者特典BOOKOFF買取価格10%UP(景品限度額内)
セキュリティ面は、オートロック・TVインターホンなどを備え付けているので安心して暮らせます。宅配ボックス付きのマンションなので不在時の荷物受け取りもできます。こちらは賃料8.8万円の物件です。 |
||
| 所属団体 |
(公財)日本賃貸住宅管理協会会員 (公社)首都圏不動産公正取引協議会加盟 |
||
| 取扱会社(7) | ハウス・トゥ・ハウス・ネットサービス(株)板橋区役所前店 (情報提供媒体:SUUMO) | ||
|---|---|---|---|
| 住所 | 東京都板橋区仲宿 46-12 | ||
| 電話番号 | 03-6915-5666 | 免許番号 | 国土交通大臣(4)第7400号 |
| 取引態様 | 仲介 | 物件管理番号 |
100460500298 ※お問い合わせの際には、担当者へ物件管理番号をお伝えください。 |
| 物件に関する情報 |
物件の所在地 : 東京都板橋区板橋2 /
交通の利便 : 都営三田線/板橋区役所前駅 歩7分、東武東上線/下板橋駅 歩7分、JR埼京線/板橋駅 歩12分 /
面積 : 18.04m² /
築年月 : 建築中(2025年11月) /
賃料 : 8.8万円 /
管理費又は共益費等 : 5,000円 /
礼金等 : 無料 /
敷金 : 無料、保証金等 : -、 償却、敷引 : - /
住宅総合保険等の損害保険料 : 1.8万円2年 /
その他 : 顔認証システムのオートロック・TVインターホンなどを設置しているので安全面でも優れております。解約予告2ヶ月前。短期解約違約金:1年未満は総賃料の2ヶ月分、1年以上2年未満は総賃料の1ヶ月分。更新手数料5000円+消費税。退去時にエアコンクリーニング費用1台あたり15000円+消費税がかかります。お車でご案内します。お気軽にお問い合わせ下さい。
合計6.05万円(内訳:24時間安心サポート1.65万円 ハウスクリーニング費用4.4万円)
更新料 新賃料1.00ヶ月分
事務所利用不可
普通借家 2年
保証会社利用必 初回:総賃料の50%、月次:総賃料の1%
/ 駐車場 : 無
2025年11月完成予定のデザイナーズマンション。
外干しできない時も居室の一部を物干しスペースにしなくて済む、浴室乾燥機があります。共用部には宅配ボックスが付いているため、好きなタイミングで荷物を受け取ることができます。 |
||
| 所属団体 |
(公社)全日本不動産協会東京都本部会員 (公社)首都圏不動産公正取引協議会加盟 |
||
| 取扱会社(8) | ハウスコム東東京(株)王子店 (情報提供媒体:SUUMO) | ||
|---|---|---|---|
| 住所 | 東京都北区王子1-5-2 テング第四 | ||
| 電話番号 | 0800-1700731 | 免許番号 | 東京都知事(1)第108283号 |
| 取引態様 | 仲介 | 物件管理番号 |
100460255725 ※お問い合わせの際には、担当者へ物件管理番号をお伝えください。 |
| 物件に関する情報 |
物件の所在地 : 東京都板橋区板橋2 /
交通の利便 : 東武東上線/下板橋駅 歩7分、都営三田線/板橋区役所前駅 歩7分、JR埼京線/板橋駅 歩12分 /
面積 : 18.04m² /
築年月 : 建築中(2025年11月) /
賃料 : 8.8万円 /
管理費又は共益費等 : 5,000円 /
礼金等 : 無料 /
敷金 : 無料、保証金等 : -、 償却、敷引 : - /
住宅総合保険等の損害保険料 : 要 /
その他 : 火災保険加入要18000円
合計6.05万円(内訳:24時間サポート1.65万円 ハウスクリーニング代4.4万円)
更新料 新賃料1.00ヶ月分
保証会社利用必 初回保証料 賃料等の50%、月額保証料 賃料等の1%
/ 駐車場 : 無
成約者特典BOOKOFF買取価格10%UP(景品限度額内)
セキュリティ面は、オートロック・TVインターホンなどを備え付けているので安心して暮らせます。宅配ボックス付きのマンションなので不在時の荷物受け取りもできます。こちらは賃料8.8万円の物件です。 |
||
| 所属団体 |
(公財)日本賃貸住宅管理協会会員 (公社)首都圏不動産公正取引協議会加盟 |
||
| 取扱会社(9) | アエラス練馬店 (株)アエラス.ER (情報提供媒体:SUUMO) | ||
|---|---|---|---|
| 住所 | 東京都練馬区練馬1-26-2 エーゲアンフロント・ビル 2階 | ||
| 電話番号 | 03-5912-0620 | 免許番号 | 国土交通大臣(1)第10724号 |
| 取引態様 | 仲介 | 物件管理番号 |
100461846158 ※お問い合わせの際には、担当者へ物件管理番号をお伝えください。 |
| 物件に関する情報 |
物件の所在地 : 東京都板橋区板橋2 /
交通の利便 : 東武東上線/下板橋駅 歩7分、都営三田線/板橋区役所前駅 歩7分、東武東上線/大山駅 歩9分 /
面積 : 18.04m² /
築年月 : 建築中(2025年11月) /
賃料 : 8.8万円 /
管理費又は共益費等 : 5,000円 /
礼金等 : 無料 /
敷金 : 無料、保証金等 : -、 償却、敷引 : - /
住宅総合保険等の損害保険料 : 要 /
その他 : 埼京線板橋駅徒歩12分/板橋郵便局まで561m/板橋区役所まで553m/更新手数料5000円(税抜)/火災保険18000円2年/退去時エアコン清掃費15000円(税抜)/短期解約違約金1年未満の解約で賃料2ヶ月2年未満の解約で賃料1か月解約予告期間2ヶ月/鍵交換代借主負担
合計6.05万円(内訳:24時間安心サポート16500円/室内清掃費用44000円)
普通借家 2年
保証会社利用必 初回:賃料等の50%、月額賃料等の1%
/ 駐車場 : 近隣駐車場
近隣148m25300円
オンラインで申込から契約手続き、LINEでのご相談も可能です
当物件は初期費用分割払い可(クレジットカード決済も可)/お客様のご希望に合わせた方法(店頭、オンライン等)で物件をご提案いたします。初期費用のお見積りや入居希望日のご相談もお気軽にお問い合わせください |
||
| 所属団体 |
(公社)全日本不動産協会東京都本部会員 (公社)首都圏不動産公正取引協議会加盟 |
||
| 取扱会社(10) | ハウスコム東東京(株)池袋西口店 (情報提供媒体:SUUMO) | ||
|---|---|---|---|
| 住所 | 東京都豊島区西池袋1-19-6 松長ビル2階 | ||
| 電話番号 | 0800-1700754 | 免許番号 | 東京都知事(1)第108283号 |
| 取引態様 | 仲介 | 物件管理番号 |
100459978010 ※お問い合わせの際には、担当者へ物件管理番号をお伝えください。 |
| 物件に関する情報 |
物件の所在地 : 東京都板橋区板橋2 /
交通の利便 : 東武東上線/下板橋駅 歩7分、都営三田線/板橋区役所前駅 歩7分、JR埼京線/板橋駅 歩12分 /
面積 : 18.04m² /
築年月 : 建築中(2025年11月) /
賃料 : 8.8万円 /
管理費又は共益費等 : 5,000円 /
礼金等 : 無料 /
敷金 : 無料、保証金等 : -、 償却、敷引 : - /
住宅総合保険等の損害保険料 : 要 /
その他 : 火災保険加入要18000円
合計6.05万円(内訳:24時間サポート1.65万円 ハウスクリーニング代4.4万円)
更新料 新賃料1.00ヶ月分
保証会社利用必 初回保証料 賃料等の50%、月額保証料 賃料等の1%
/ 駐車場 : 無
成約者特典BOOKOFF買取価格10%UP(景品限度額内)
セキュリティ面は、オートロック・TVインターホンなどを備え付けているので安心して暮らせます。宅配ボックス付きのマンションなので不在時の荷物受け取りもできます。こちらは賃料8.8万円の物件です。 |
||
| 所属団体 |
(公財)日本賃貸住宅管理協会会員 (公社)首都圏不動産公正取引協議会加盟 |
||
| 取扱会社(11) | アエラス目白店 (株)アエラス.ER (情報提供媒体:SUUMO) | ||
|---|---|---|---|
| 住所 | 東京都豊島区目白3-5-16 青山ビル 4階・5階 | ||
| 電話番号 | 03-6914-4811 | 免許番号 | 国土交通大臣(1)第10724号 |
| 取引態様 | 仲介 | 物件管理番号 |
100460212629 ※お問い合わせの際には、担当者へ物件管理番号をお伝えください。 |
| 物件に関する情報 |
物件の所在地 : 東京都板橋区板橋2 /
交通の利便 : 東武東上線/下板橋駅 歩7分、都営三田線/板橋区役所前駅 歩7分、東武東上線/大山駅 歩9分 /
面積 : 18.04m² /
築年月 : 建築中(2025年11月) /
賃料 : 8.8万円 /
管理費又は共益費等 : 5,000円 /
礼金等 : 無料 /
敷金 : 無料、保証金等 : -、 償却、敷引 : - /
住宅総合保険等の損害保険料 : 要 /
その他 : 埼京線板橋駅徒歩12分/板橋郵便局まで561m/板橋区役所まで553m/更新手数料5000円(税抜)/火災保険18000円2年/退去時エアコン清掃費15000円(税抜)/短期解約違約金1年未満の解約で賃料2ヶ月2年未満の解約で賃料1か月解約予告期間2ヶ月/鍵交換代借主負担
合計6.05万円(内訳:24時間安心サポート16500円/室内清掃費用44000円)
普通借家 2年
保証会社利用必 初回:賃料等の50%、月額賃料等の1%
/ 駐車場 : 近隣駐車場
近隣148m25300円
オンラインで申込から契約手続き、LINEでのご相談も可能です
当物件は初期費用分割払い可(クレジットカード決済も可)/お客様のご希望に合わせた方法(店頭、オンライン等)で物件をご提案いたします。初期費用のお見積りや入居希望日のご相談もお気軽にお問い合わせください |
||
| 所属団体 |
(公社)全日本不動産協会東京都本部会員 (公社)首都圏不動産公正取引協議会加盟 |
||
| 取扱会社(12) | ハウスコム東東京(株)練馬店 (情報提供媒体:SUUMO) | ||
|---|---|---|---|
| 住所 | 東京都練馬区練馬1-2-9 K&Iビル1階 | ||
| 電話番号 | 0800-1700747 | 免許番号 | 東京都知事(1)第108283号 |
| 取引態様 | 仲介 | 物件管理番号 |
100459984715 ※お問い合わせの際には、担当者へ物件管理番号をお伝えください。 |
| 物件に関する情報 |
物件の所在地 : 東京都板橋区板橋2 /
交通の利便 : 東武東上線/下板橋駅 歩7分、都営三田線/板橋区役所前駅 歩7分 /
面積 : 18.04m² /
築年月 : 建築中(2025年11月) /
賃料 : 8.8万円 /
管理費又は共益費等 : 5,000円 /
礼金等 : 無料 /
敷金 : 無料、保証金等 : -、 償却、敷引 : - /
住宅総合保険等の損害保険料 : 1.8万円2年 /
その他 : 合計7.7万円(内訳:24時間安心サポート1.65万円 基本クリーニング費4.4万円 エアコンクリーニング費1.65万円)
更新料 賃料1.00ヶ月分
法人希望
保証会社利用必 初回総賃料50% 月額保証料1%
/ 駐車場 : 無
成約者特典BOOKOFF買取価格10%UP(景品限度額内)
詳細はハウスコム練馬店()まで |
||
| 所属団体 |
(公財)日本賃貸住宅管理協会会員 (公社)首都圏不動産公正取引協議会加盟 |
||
| 取扱会社(13) | ハウス・トゥ・ハウス・ネットサービス(株)赤羽店(本店) (情報提供媒体:SUUMO) | ||
|---|---|---|---|
| 住所 | 東京都北区赤羽1-6-5 KAZAMAビル1階 | ||
| 電話番号 | 03-3903-9333 | 免許番号 | 国土交通大臣(4)第7400号 |
| 取引態様 | 仲介 | 物件管理番号 |
100460541330 ※お問い合わせの際には、担当者へ物件管理番号をお伝えください。 |
| 物件に関する情報 |
物件の所在地 : 東京都板橋区板橋2 /
交通の利便 : 都営三田線/板橋区役所前駅 歩7分、東武東上線/下板橋駅 歩7分、JR埼京線/板橋駅 歩12分 /
面積 : 18.04m² /
築年月 : 建築中(2025年11月) /
賃料 : 8.8万円 /
管理費又は共益費等 : 5,000円 /
礼金等 : 無料 /
敷金 : 無料、保証金等 : -、 償却、敷引 : - /
住宅総合保険等の損害保険料 : 1.8万円2年 /
その他 : 顔認証システムのオートロック・TVインターホンなどを設置しているので安全面でも優れております。解約予告2ヶ月前。短期解約違約金:1年未満は総賃料の2ヶ月分、1年以上2年未満は総賃料の1ヶ月分。更新手数料5000円+消費税。退去時にエアコンクリーニング費用1台あたり15000円+消費税がかかります。お車でご案内します。お気軽にお問い合わせ下さい。
合計6.05万円(内訳:24時間安心サポート1.65万円 ハウスクリーニング費用4.4万円)
更新料 新賃料1.00ヶ月分
事務所利用不可
普通借家 2年
保証会社利用必 初回:総賃料の50%、月次:総賃料の1%
/ 駐車場 : 無
2025年11月完成予定のデザイナーズマンション。
外干しできない時も居室の一部を物干しスペースにしなくて済む、浴室乾燥機があります。共用部には宅配ボックスが付いているため、好きなタイミングで荷物を受け取ることができます。 |
||
| 所属団体 |
(公社)全日本不動産協会東京都本部会員 (公社)首都圏不動産公正取引協議会加盟 |
||
| 取扱会社(14) | ハウス・トゥ・ハウス・ネットサービス(株)赤羽駅前店 (情報提供媒体:SUUMO) | ||
|---|---|---|---|
| 住所 | 東京都北区赤羽1-9-3 赤羽駅前ビル102 | ||
| 電話番号 | 03-5249-3191 | 免許番号 | 国土交通大臣(4)第7400号 |
| 取引態様 | 仲介 | 物件管理番号 |
100460542579 ※お問い合わせの際には、担当者へ物件管理番号をお伝えください。 |
| 物件に関する情報 |
物件の所在地 : 東京都板橋区板橋2 /
交通の利便 : 都営三田線/板橋区役所前駅 歩7分、東武東上線/下板橋駅 歩7分、JR埼京線/板橋駅 歩12分 /
面積 : 18.04m² /
築年月 : 建築中(2025年11月) /
賃料 : 8.8万円 /
管理費又は共益費等 : 5,000円 /
礼金等 : 無料 /
敷金 : 無料、保証金等 : -、 償却、敷引 : - /
住宅総合保険等の損害保険料 : 1.8万円2年 /
その他 : 顔認証システムのオートロック・TVインターホンなどを設置しているので安全面でも優れております。解約予告2ヶ月前。短期解約違約金:1年未満は総賃料の2ヶ月分、1年以上2年未満は総賃料の1ヶ月分。更新手数料5000円+消費税。退去時にエアコンクリーニング費用1台あたり15000円+消費税がかかります。お車でご案内します。お気軽にお問い合わせ下さい。
合計6.05万円(内訳:24時間安心サポート1.65万円 ハウスクリーニング費用4.4万円)
更新料 新賃料1.00ヶ月分
事務所利用不可
普通借家 2年
保証会社利用必 初回:総賃料の50%、月次:総賃料の1%
/ 駐車場 : 無
2025年11月完成予定のデザイナーズマンション。
外干しできない時も居室の一部を物干しスペースにしなくて済む、浴室乾燥機があります。共用部には宅配ボックスが付いているため、好きなタイミングで荷物を受け取ることができます。 |
||
| 所属団体 |
(公社)全日本不動産協会東京都本部会員 (公社)首都圏不動産公正取引協議会加盟 |
||
| 取扱会社(15) | ハウス・トゥ・ハウス・ネットサービス(株)王子店 (情報提供媒体:SUUMO) | ||
|---|---|---|---|
| 住所 | 東京都北区王子1-9-1 不二家王子ビル | ||
| 電話番号 | 03-5959-0888 | 免許番号 | 国土交通大臣(4)第7400号 |
| 取引態様 | 仲介 | 物件管理番号 |
100460490087 ※お問い合わせの際には、担当者へ物件管理番号をお伝えください。 |
| 物件に関する情報 |
物件の所在地 : 東京都板橋区板橋2 /
交通の利便 : 都営三田線/板橋区役所前駅 歩7分、東武東上線/下板橋駅 歩7分、JR埼京線/板橋駅 歩12分 /
面積 : 18.04m² /
築年月 : 建築中(2025年11月) /
賃料 : 8.8万円 /
管理費又は共益費等 : 5,000円 /
礼金等 : 無料 /
敷金 : 無料、保証金等 : -、 償却、敷引 : - /
住宅総合保険等の損害保険料 : 1.8万円2年 /
その他 : 顔認証システムのオートロック・TVインターホンなどを設置しているので安全面でも優れております。解約予告2ヶ月前。短期解約違約金:1年未満は総賃料の2ヶ月分、1年以上2年未満は総賃料の1ヶ月分。更新手数料5000円+消費税。退去時にエアコンクリーニング費用1台あたり15000円+消費税がかかります。お車でご案内します。お気軽にお問い合わせ下さい。
合計6.05万円(内訳:24時間安心サポート1.65万円 ハウスクリーニング費用4.4万円)
更新料 新賃料1.00ヶ月分
事務所利用不可
普通借家 2年
保証会社利用必 初回:総賃料の50%、月次:総賃料の1%
/ 駐車場 : 無
2025年11月完成予定のデザイナーズマンション。
外干しできない時も居室の一部を物干しスペースにしなくて済む、浴室乾燥機があります。共用部には宅配ボックスが付いているため、好きなタイミングで荷物を受け取ることができます。 |
||
| 所属団体 |
(公社)全日本不動産協会東京都本部会員 (公社)首都圏不動産公正取引協議会加盟 |
||
| 取扱会社(16) | ハウス・トゥ・ハウス・ネットサービス(株)板橋東口店 (情報提供媒体:SUUMO) | ||
|---|---|---|---|
| 住所 | 東京都北区滝野川6-84-8-1階 | ||
| 電話番号 | 03-3918-1115 | 免許番号 | 国土交通大臣(4)第7400号 |
| 取引態様 | 仲介 | 物件管理番号 |
100460590487 ※お問い合わせの際には、担当者へ物件管理番号をお伝えください。 |
| 物件に関する情報 |
物件の所在地 : 東京都板橋区板橋2 /
交通の利便 : 都営三田線/板橋区役所前駅 歩7分、東武東上線/下板橋駅 歩7分、JR埼京線/板橋駅 歩12分 /
面積 : 18.04m² /
築年月 : 建築中(2025年11月) /
賃料 : 8.8万円 /
管理費又は共益費等 : 5,000円 /
礼金等 : 無料 /
敷金 : 無料、保証金等 : -、 償却、敷引 : - /
住宅総合保険等の損害保険料 : 1.8万円2年 /
その他 : 顔認証システムのオートロック・TVインターホンなどを設置しているので安全面でも優れております。解約予告2ヶ月前。短期解約違約金:1年未満は総賃料の2ヶ月分、1年以上2年未満は総賃料の1ヶ月分。更新手数料5000円+消費税。退去時にエアコンクリーニング費用1台あたり15000円+消費税がかかります。お車でご案内します。お気軽にお問い合わせ下さい。
合計6.05万円(内訳:24時間安心サポート1.65万円 ハウスクリーニング費用4.4万円)
更新料 新賃料1.00ヶ月分
事務所利用不可
普通借家 2年
保証会社利用必 初回:総賃料の50%、月次:総賃料の1%
/ 駐車場 : 無
2025年11月完成予定のデザイナーズマンション。
外干しできない時も居室の一部を物干しスペースにしなくて済む、浴室乾燥機があります。共用部には宅配ボックスが付いているため、好きなタイミングで荷物を受け取ることができます。 |
||
| 所属団体 |
(公社)全日本不動産協会東京都本部会員 (公社)首都圏不動産公正取引協議会加盟 |
||

