クレエ浮間舟渡[4階]
情報公開日:2025/10/26(残り15日)
次回更新日は情報公開日より15日以内
物件画像
画像提供元:(有)板橋ハウジング板橋駅前店
この物件のタグ
この物件にお問い合わせ
クレエ浮間舟渡[4階]の物件情報
| 賃料/管理費等 |
13.1万円(管理費等 6,000円)
|
||
|---|---|---|---|
| 敷金 | 26.2万円 | 礼金 | 13.1万円 |
| 種別/構造 | マンション/RC | 築年月 | 2008年01月 |
| 敷金積み増し | ペット飼育の場合敷金3ヶ月(総額) | ||
| 所在地 |
東京都板橋区舟渡1
|
||
| 主要交通機関 |
JR埼京線/浮間舟渡駅 歩4分 都営三田線/蓮根駅 歩23分 JR埼京線/北赤羽駅 歩22分 |
||
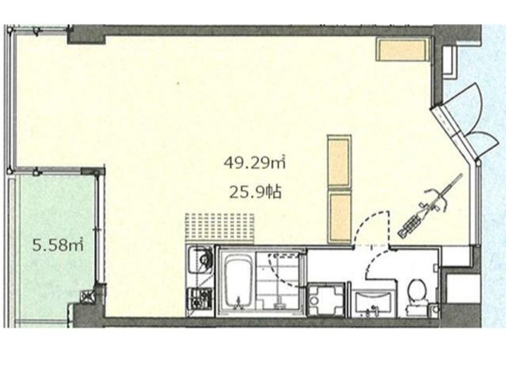
| 間取り | 1R | 面積 | 49.29m² |
| 間取り詳細 | 洋25.9 | 方位 | 北西 |
| 階数/部屋番号 | 4階/地上7階建 | 駐車場 | 無 |
| 特徴 |
|
||
| 設備/条件 | バストイレ別、バルコニー、エアコン、クロゼット、フローリング、シャワー付洗面台、TVインターホン、浴室乾燥機、室内洗濯置、シューズボックス、システムキッチン、追焚機能浴室、温水洗浄便座、脱衣所、エレベーター、洗面所独立、洗面化粧台、2口コンロ、駐輪場、宅配ボックス、CATV、光ファイバー、外壁タイル張り、BS・CS、対面式キッチン、ペット相談、照明付、オートバス、グリル付、保証人不要、CATVインターネット、二人入居相談、バイク置場、24時間緊急通報システム、ガスレンジ付、デザイナーズ、2沿線利用可、ディンプルキー、物置、駅まで平坦、ネット使用料不要、敷金2ヶ月、緑豊かな住宅地、床下収納、ダブルロックキー、24時間換気システム、平坦地、花火大会鑑賞、3駅以上利用可、駅徒歩5分以内、制震構造、敷地内ごみ置き場、都市ガス、間接照明、ダウンライト、高速ネット対応、礼金1ヶ月、保証会社利用可、全室照明付、通風良好 | ||
| 備考 |
ペット(小型犬・猫)飼育可(敷金1ヶ月積み増し、償却)。敷地内駐輪場なし、居室内保管可能。お客様のご要望に応じてご自宅でもLINEなどのリモート内見を利用してご来店時と変わらずスタッフに相談しながらお部屋探しが可能です。またIT重説や郵送契約で、来店せずに契約手続きまでサポートすることができます。ご不明な点等気になることが御座いましたらお気軽にお問い合わせください。 合計1.1万円(内訳:鍵交換代 11000円(税込み)) 二人入居可/ペット相談/事務所利用相談 普通借家 2年 保証会社利用必 宅建ハトさん保証、初回保証料68500円、2年目以降毎年1万円 ※物件に関する備考は各社異なりますのでご確認のうえお問い合わせください。 |
||
| 契約期間 | お問い合わせください。 | ||
|---|---|---|---|
| 入居可能時期 |
''25年11月中旬
|
||
| 初期費用 |
お問い合わせください。
|
||
| 住宅保険 | 2.1万円2年 | 現状空室状況 | お問い合わせください。 |
情報提供元:(有)板橋ハウジング板橋駅前店
画像提供元:(有)板橋ハウジング板橋駅前店
※各種情報と現状に差異がある場合は、現状優先となります。取り扱い不動産会社が複数ある場合は、住宅保険等、一部条件が異なる場合もございますので、取扱店舗までご確認下さいませ。
この物件にお問い合わせ
周辺施設
| コンビニ |
ファミリーマート 浮間舟渡駅前店 セブンイレブン北区浮間2丁目店 |
|||
|---|---|---|---|---|
| スーパー |
マルエツ浮間舟渡店 ベルク ス浮間舟渡店 |
|||
| ドラッグストア |
まこ薬局 こぐま薬局 |
|||
| 保育園 |
はぁもにぃ保育園 |
|||
|---|---|---|---|---|
| 幼稚園 |
明日香幼稚園 |
|||
| 小学校 |
板橋区立 舟渡小学校 |
|||
| 中学校 |
北区立 浮間中学校 |
|||
※周辺情報は不動産会社から提供された情報ではなく、弊サービスで独自に収集した情報です。
担当者のオススメポイント!
★駅徒歩4分★可動式収納★居室内にバイク・自転車保管可★
★ペット飼育可★インターネット無料★大型バイクも載せられる大型エレベーター★車寄せスペース★宅配BOX★グリル付き2口コンロ★折り畳み式キッチンカウンター★設備充実★お気軽にお問い合わせください♪
クレエ浮間舟渡[4階]の取扱会社情報 2件
| 取扱会社(1) | (有)板橋ハウジング板橋駅前店 (情報提供媒体:SUUMO) | ||
|---|---|---|---|
| 住所 | 東京都板橋区板橋1-10-11 モリオン板橋1階 | ||
| 電話番号 | 03-3962-8808 | 免許番号 | 東京都知事(5)第80586号 |
| 取引態様 | 仲介 | 物件管理番号 |
100469358974 ※お問い合わせの際には、担当者へ物件管理番号をお伝えください。 |
| 物件に関する情報 |
物件の所在地 : 東京都板橋区舟渡1 /
交通の利便 : JR埼京線/浮間舟渡駅 歩4分、都営三田線/蓮根駅 歩23分、JR埼京線/北赤羽駅 歩22分 /
面積 : 49.29m² /
築年月 : 2008年01月 /
賃料 : 13.1万円 /
管理費又は共益費等 : 6,000円 /
礼金等 : 1ヶ月 /
敷金 : 2ヶ月、保証金等 : -、 償却、敷引 : - /
住宅総合保険等の損害保険料 : 2.1万円2年 /
その他 : ペット(小型犬・猫)飼育可(敷金1ヶ月積み増し、償却)。敷地内駐輪場なし、居室内保管可能。お客様のご要望に応じてご自宅でもLINEなどのリモート内見を利用してご来店時と変わらずスタッフに相談しながらお部屋探しが可能です。またIT重説や郵送契約で、来店せずに契約手続きまでサポートすることができます。ご不明な点等気になることが御座いましたらお気軽にお問い合わせください。
合計1.1万円(内訳:鍵交換代 11000円(税込み))
二人入居可/ペット相談/事務所利用相談
普通借家 2年
保証会社利用必 宅建ハトさん保証、初回保証料68500円、2年目以降毎年1万円
/ 駐車場 : 無
★駅徒歩4分★可動式収納★居室内にバイク・自転車保管可★
★ペット飼育可★インターネット無料★大型バイクも載せられる大型エレベーター★車寄せスペース★宅配BOX★グリル付き2口コンロ★折り畳み式キッチンカウンター★設備充実★お気軽にお問い合わせください♪ |
||
| 所属団体 |
(公社)全日本不動産協会東京都本部会員 (公社)首都圏不動産公正取引協議会加盟 |
||
| 取扱会社(2) | 不動建設(株) (情報提供媒体:SUUMO) | ||
|---|---|---|---|
| 住所 | 東京都板橋区舟渡1-14-23 | ||
| 電話番号 | 03-3960-1811 | 免許番号 | 東京都知事(8)第59860号 |
| 取引態様 | 貸主 | 物件管理番号 |
100469434145 ※お問い合わせの際には、担当者へ物件管理番号をお伝えください。 |
| 物件に関する情報 |
物件の所在地 : 東京都板橋区舟渡1 /
交通の利便 : JR埼京線/浮間舟渡駅 歩4分、JR埼京線/北赤羽駅 歩21分、都営三田線/蓮根駅 歩25分 /
面積 : 49.29m² /
築年月 : 2007年12月 /
賃料 : 13.1万円 /
管理費又は共益費等 : 6,000円 /
礼金等 : 1ヶ月 /
敷金 : 2ヶ月、保証金等 : -、 償却、敷引 : 実費 /
住宅総合保険等の損害保険料 : 2.1万円2年 /
その他 : 巡回管理
合計1.1万円(内訳:鍵交換代/1.1万円)
保証会社 年間費用 年額 10000円
単身者可/二人入居可/ペット相談/楽器相談/ルームシェア相談
普通借家 2年
保証会社利用必 株式会社宅建ブレインズ 68500円(月額賃料等合計の50) 宅建ハトさん保証
敷引:実費
/ 駐車場 : 無
25帖超の広々ワンルーム!ペット可のデザイナーズマンション!
JR『浮間舟渡駅』徒歩4分の駅近物件! 大型バイクもポーチまで持ち込める大型エレベーター付デザイナーズマンション! 自由レイアウトが可能なワンフロアー空間に可動式大型間仕切収納3本付! |
||
| 所属団体 |
(公社)東京都宅地建物取引業協会会員 (公社)首都圏不動産公正取引協議会加盟 |
||

