ブエナビスタ京都上鳥羽[205号室]
情報公開日:2025/10/26(残り15日)
次回更新日は情報公開日より15日以内
物件画像
画像提供元:株式会社 京都ライフ/京都駅前店
この物件のタグ
この物件にお問い合わせ
ブエナビスタ京都上鳥羽[205号室]の物件情報
| 賃料/管理費等 |
6.5万円(管理費等 5,000円)
|
||
|---|---|---|---|
| 敷金 | 無料 | 礼金 | 無料 |
| 種別/構造 | マンション/RC | 築年月 | 1983年10月 |
| 所在地 |
京都府京都市南区上鳥羽奈須野町
|
||
| 主要交通機関 |
近鉄京都線/上鳥羽口 徒歩19分 京都市烏丸線/竹田 徒歩19分 |
||
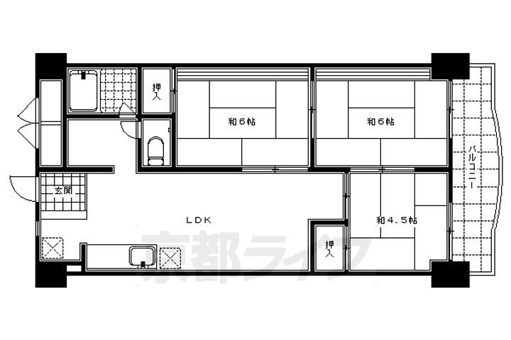
| 間取り | 3LDK | 面積 | 60.0m² |
| 間取り詳細 | 和室 6畳、和室 6畳、和室 4.5畳、LDK 10.5帖 | 方位 | 東 |
| 階数/部屋番号 | 2階/地上5階建 205号室 | 駐車場 | 空有 8,800円 |
| 特徴 |
|
||
| 設備/条件 | バス・トイレ別、追い焚き、独立洗面台、2人入居可、ペット相談、ガスコンロ、コンロ二口以上、2階以上の物件、フローリング、室内洗濯機置場、バルコニー、エレベーター、駐車場あり、駐輪場あり、バイク置き場あり、プロパンガス、宅配ボックス | ||
| 備考 |
京都市南区 上鳥羽エリアの3LDKマンションです。嬉しい3点セパレートなど充実の設備。コンビニ、ホームセンターなど近くにあって便利ですよ。ペットも相談可能です。 LIFE SUPPORT:1,100円 エアコンクリーニング代:13,200円 更新料:1ヶ月 保証会社:利用必須 初回:月額賃料等の40%、月額:支払い手数料880円、更新時:月額賃料等の20%/2年 ※物件に関する備考は各社異なりますのでご確認のうえお問い合わせください。 |
||
| 契約期間 | 2年 | ||
|---|---|---|---|
| 入居可能時期 |
お問い合わせください。
|
||
| 初期費用 |
お問い合わせください。
|
||
| 住宅保険 | お問い合わせください。 | 現状空室状況 | 空家 |
情報提供元:株式会社 京都ライフ/京都駅前店
画像提供元:株式会社 京都ライフ/京都駅前店
※各種情報と現状に差異がある場合は、現状優先となります。取り扱い不動産会社が複数ある場合は、住宅保険等、一部条件が異なる場合もございますので、取扱店舗までご確認下さいませ。
この物件にお問い合わせ
周辺施設
| コンビニ |
ローソン 京都南インター店 (576m) ローソン 京都南支店 (576m) |
|||
|---|---|---|---|---|
| スーパー |
業務スーパー下鳥羽店 (1371m) パケット新堀川店 (1426m) |
|||
| ドラッグストア |
上鳥羽薬局 (1053m) スギ薬局 在宅調剤センター京都伏見店 (1090m) |
|||
| 保育園 |
ヤクルトきっずすくーるマムズ (690m) |
|||
|---|---|---|---|---|
| 幼稚園 |
京都市立 竹田幼稚園 (1294m) |
|||
| 小学校 |
京都市立上鳥羽小学校 (933m) |
|||
※周辺情報は不動産会社から提供された情報ではなく、弊サービスで独自に収集した情報です。
担当者のオススメポイント!
ペット飼育可能。 ペット可 エレベーター 室内洗濯機 ルームシェア相談可能
電話でお問い合わせご希望の方
株式会社 京都ライフ 西大路店
営業時間: 09:30〜19:00 定休日: 年中無休
株式会社 京都ライフ 京都駅前店
営業時間: 09:30〜19:00 定休日: 年中無休
株式会社 京都ライフ 長岡店
営業時間: 09:30〜19:00 定休日: 年中無休
- ※電話経由でのお問い合せは、お祝い金プレゼントキャンペーンの適用になりませんのでご注意ください。
- ※電話でお問い合わせする場合は、光IP電話、及びIP電話からはご利用になれません。不動産会社の方からの電話番号によるお問合せはお断りしております。
ブエナビスタ京都上鳥羽[205号室]の取扱会社情報 3件
| 取扱会社(1) | 初期費用分割払い対応株式会社 京都ライフ 京都駅前店 | ||
|---|---|---|---|
| 住所 | 京都市下京区東洞院通七条下ル東塩小路町717-1 | ||
| 電話番号 | 075-351-1144 | 免許番号 | 京都府知事(11)第6353号 |
| 取引態様 | 専属 | 物件管理番号 |
11797-205 ※お問い合わせの際には、担当者へ物件管理番号をお伝えください。 |
| 連絡先 | 0037-6008-5173 | ||
| PR | エリアは最大限!お気軽に | ||
| 物件に関する情報 |
物件の所在地 : 京都府京都市南区上鳥羽奈須野町 /
交通の利便 : 近鉄京都線/上鳥羽口 徒歩19分、京都市烏丸線/竹田 徒歩19分 /
面積 : 60.0m² /
築年月 : 1983年10月 /
賃料 : 6.5万円 /
管理費又は共益費等 : 5,000円 /
礼金等 : 無料 /
敷金 : 無料、保証金等 : -、 償却、敷引 : - /
住宅総合保険等の損害保険料 : - /
その他 : 京都市南区 上鳥羽エリアの3LDKマンションです。嬉しい3点セパレートなど充実の設備。コンビニ、ホームセンターなど近くにあって便利ですよ。ペットも相談可能です。
LIFE SUPPORT:1,100円
エアコンクリーニング代:13,200円
更新料:1ヶ月
保証会社:利用必須 初回:月額賃料等の40%、月額:支払い手数料880円、更新時:月額賃料等の20%/2年
/ 駐車場 : 空有
8,800円
ペット飼育可能。 ペット可 エレベーター 室内洗濯機 ルームシェア相談可能
|
||
| 所属団体 |
京都府宅地建物取引業協会 公益社団法人近畿地区不動産公正取引協議会 全国宅地建物取引業保証協会 |
||
| 取扱会社(2) | 初期費用分割払い対応株式会社 京都ライフ 西大路店 | ||
|---|---|---|---|
| 住所 | 京都市南区唐橋西平垣町38-1 ルミエール唐橋1階 | ||
| 電話番号 | 075-585-6501 | 免許番号 | 京都府知事(11)第6353号 |
| 取引態様 | 専属 | 物件管理番号 |
11797-205-29 ※お問い合わせの際には、担当者へ物件管理番号をお伝えください。 |
| 連絡先 | 0037-6008-7903 | ||
| PR | JR西大路駅から東に徒歩1分! | ||
| 物件に関する情報 |
物件の所在地 : 京都府京都市南区上鳥羽奈須野町 /
交通の利便 : 近鉄京都線/上鳥羽口 徒歩19分、京都市烏丸線/竹田 徒歩19分 /
面積 : 60.0m² /
築年月 : 1983年10月 /
賃料 : 6.5万円 /
管理費又は共益費等 : 5,000円 /
礼金等 : 無料 /
敷金 : 無料、保証金等 : -、 償却、敷引 : - /
住宅総合保険等の損害保険料 : - /
その他 : 京都市南区 上鳥羽エリアの3LDKマンションです。嬉しい3点セパレートなど充実の設備。コンビニ、ホームセンターなど近くにあって便利ですよ。ペットも相談可能です。
LIFE SUPPORT:1,100円
エアコンクリーニング代:13,200円
更新料:1ヶ月
保証会社:利用必須 初回:月額賃料等の40%、月額:支払い手数料880円、更新時:月額賃料等の20%/2年
/ 駐車場 : 空有
8,800円
ペット飼育可能。 ペット可 エレベーター 室内洗濯機 ルームシェア相談可能
|
||
| 所属団体 |
京都府宅地建物取引業協会 公益社団法人近畿地区不動産公正取引協議会 全国宅地建物取引業保証協会 |
||
| 取扱会社(3) | 初期費用分割払い対応株式会社 京都ライフ 長岡店 | ||
|---|---|---|---|
| 住所 | 長岡京市開田3丁目1番地24 | ||
| 電話番号 | 075-957-4800 | 免許番号 | 京都府知事(11)第6353号 |
| 取引態様 | 専属 | 物件管理番号 |
11797-205-08 ※お問い合わせの際には、担当者へ物件管理番号をお伝えください。 |
| 連絡先 | 0037-6008-8710 | ||
| PR | 笑顔で楽しい部屋探し! | ||
| 物件に関する情報 |
物件の所在地 : 京都府京都市南区上鳥羽奈須野町 /
交通の利便 : 近鉄京都線/上鳥羽口 徒歩19分、京都市烏丸線/竹田 徒歩19分 /
面積 : 60.0m² /
築年月 : 1983年10月 /
賃料 : 6.5万円 /
管理費又は共益費等 : 5,000円 /
礼金等 : 無料 /
敷金 : 無料、保証金等 : -、 償却、敷引 : - /
住宅総合保険等の損害保険料 : - /
その他 : 京都市南区 上鳥羽エリアの3LDKマンションです。嬉しい3点セパレートなど充実の設備。コンビニ、ホームセンターなど近くにあって便利ですよ。ペットも相談可能です。
LIFE SUPPORT:1,100円
エアコンクリーニング代:13,200円
更新料:1ヶ月
保証会社:利用必須 初回:月額賃料等の40%、月額:支払い手数料880円、更新時:月額賃料等の20%/2年
/ 駐車場 : 空有
8,800円
ペット飼育可能。 ペット可 エレベーター 室内洗濯機 ルームシェア相談可能
|
||
| 所属団体 |
京都府宅地建物取引業協会 公益社団法人近畿地区不動産公正取引協議会 全国宅地建物取引業保証協会 |
||

