メインステージ板橋志村III[5階]
情報公開日:2025/10/24(残り15日)
次回更新日は情報公開日より15日以内
物件画像
画像提供元:(株)青山メインランド
この物件のタグ
この物件にお問い合わせ
メインステージ板橋志村III[5階]の物件情報
| 賃料/管理費等 |
14.65万円(管理費等 1.5万円)
|
||
|---|---|---|---|
| 敷金 | 無料 | 礼金 | 無料 |
| 種別/構造 | マンション/RC | 築年月 | 新築(2025年07月) |
| 所在地 |
東京都板橋区志村3
|
||
| 主要交通機関 |
都営三田線/志村三丁目駅 歩9分 都営三田線/志村坂上駅 歩7分 |
||
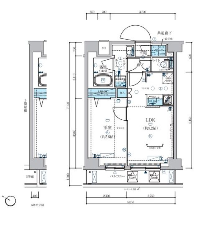
| 間取り | 1LDK | 面積 | 35.95m² |
| 間取り詳細 | 洋5.6 LDK9.2 | 方位 | 南西 |
| 階数/部屋番号 | 5階/地上7階建 | 駐車場 | 無 |
| 特徴 |
|
||
| 設備/条件 | バストイレ別、バルコニー、エアコン、ガスコンロ対応、クロゼット、浴室乾燥機、オートロック、室内洗濯置、シューズボックス、温水洗浄便座、エレベーター、2口コンロ、宅配ボックス、外壁タイル張り、即入居可、防犯カメラ、ペット相談、分譲賃貸、保証人不要、二人入居相談、ネット使用料不要、フリーレント、保証金不要、築2年以内、24時間換気システム、ルームシェア相談、人感照明センサー、未入居、2駅利用可、駅徒歩10分以内、24時間ゴミ出し可、風除室、敷地内ごみ置き場、南西向き、都市ガス、マルチメディアコンセント、敷金・礼金不要、LGBTフレンドリー、全室照明付 | ||
| 備考 |
巡回管理/フリーレント30日ネット込(シーファイブ)ペット可(敷1)保証会社必須(セゾン)引越し業者指定退去時要清掃代解約予告50日前電力業者指定有図面と現状が違う場合、現状優先とします。 合計10.12万円(内訳:退去時鍵交換費用(契約時請求) 29700円/ルームクリーニング費用(退去時請求) 55000円/AMLクラブサポート費用 16500円) (1)短期解約違約金有(1年未満=1ヶ月、半年未満=2ヶ月)(2)エアコンクリーニング費用(1台あたり16,500円税込み・退去時請求) 単身者可/ペット相談/事務所利用不可/ルームシェア相談/フリーレント1ヶ月 フリーレント30日 普通借家 2年 保証会社利用必 賃料と管理費の50%~ |
||
| 契約期間 | お問い合わせください。 | ||
|---|---|---|---|
| 入居可能時期 |
即入居可
|
||
| 初期費用 |
お問い合わせください。
|
||
| 住宅保険 | 2万円2年 | 現状空室状況 | お問い合わせください。 |
情報提供元:(株)青山メインランド
画像提供元:(株)青山メインランド
※各種情報と現状に差異がある場合は、現状優先となります。取り扱い不動産会社が複数ある場合は、住宅保険等、一部条件が異なる場合もございますので、取扱店舗までご確認下さいませ。
この物件にお問い合わせ
周辺施設
| コンビニ |
ローソン 志村3丁目店 ファミリーマート志村三丁目駅前店 |
|||
|---|---|---|---|---|
| スーパー |
サミット株式会社 志村店 株式会社三徳 志村店 |
|||
| ドラッグストア |
ココカラファイン 志村三丁目店 薬局トモズ 志村三丁目店 |
|||
| 保育園 |
ひまわりキッズガーデン 城山 |
|||
|---|---|---|---|---|
| 幼稚園 |
城山みどり幼稚園 |
|||
| 小学校 |
板橋区立志村小学校 |
|||
| 中学校 |
板橋区立志村第四中学校 |
|||
※周辺情報は不動産会社から提供された情報ではなく、弊サービスで独自に収集した情報です。
担当者のオススメポイント!
フリーレント30日ネット込(シーファイブ)ペット可(敷1)保証会社必須(セゾン)引越し業者指定退去時要清掃代解約予告50日前電力業者指定有図面と現状が違う場合、現状優先とします。
メインステージ板橋志村III[5階]の取扱会社情報 1件
| 取扱会社(1) | (株)青山メインランド (情報提供媒体:SUUMO) | ||
|---|---|---|---|
| 住所 | 東京都千代田区内神田1-7-6 北大手町ビル | ||
| 電話番号 | 0120-977865 | 免許番号 | 東京都知事(9)第54441号 |
| 取引態様 | 貸主 | 物件管理番号 |
100452489352 ※お問い合わせの際には、担当者へ物件管理番号をお伝えください。 |
| 物件に関する情報 |
物件の所在地 : 東京都板橋区志村3 /
交通の利便 : 都営三田線/志村三丁目駅 歩9分、都営三田線/志村坂上駅 歩7分 /
面積 : 35.95m² /
築年月 : 新築(2025年07月) /
賃料 : 14.65万円 /
管理費又は共益費等 : 1.5万円 /
礼金等 : 無料 /
敷金 : 無料、保証金等 : -、 償却、敷引 : - /
住宅総合保険等の損害保険料 : 2万円2年 /
その他 : 巡回管理/フリーレント30日ネット込(シーファイブ)ペット可(敷1)保証会社必須(セゾン)引越し業者指定退去時要清掃代解約予告50日前電力業者指定有図面と現状が違う場合、現状優先とします。
合計10.12万円(内訳:退去時鍵交換費用(契約時請求) 29700円/ルームクリーニング費用(退去時請求) 55000円/AMLクラブサポート費用 16500円)
(1)短期解約違約金有(1年未満=1ヶ月、半年未満=2ヶ月)(2)エアコンクリーニング費用(1台あたり16,500円税込み・退去時請求)
単身者可/ペット相談/事務所利用不可/ルームシェア相談/フリーレント1ヶ月 フリーレント30日
普通借家 2年
保証会社利用必 賃料と管理費の50%~
/ 駐車場 : 無
フリーレント30日ネット込(シーファイブ)ペット可(敷1)保証会社必須(セゾン)引越し業者指定退去時要清掃代解約予告50日前電力業者指定有図面と現状が違う場合、現状優先とします。
|
||
| 所属団体 |
(一社)全国住宅産業協会会員 (公社)首都圏不動産公正取引協議会加盟 |
||

