[テラスハウス] 東京都八王子市弐分方町 の賃貸【東京都 / 八王子市】
情報公開日:2026/01/28(残り15日)
次回更新日は情報公開日より15日以内
物件画像
画像提供元:ハウスコム西東京株式会社/八王子駅前店
この物件のタグ
[テラスハウス] 東京都八王子市弐分方町 の賃貸【東京都 / 八王子市】の物件情報
| 賃料/管理費等 |
14.0万円(管理費等 -)
|
||
|---|---|---|---|
| 敷金 | 14.0万円 | 礼金 | 14.0万円 |
| 種別/構造 | テラスハウス/木造 | 築年月 | 新築(2025年10月) |
| 所在地 |
東京都八王子市弐分方町
|
||
| 主要交通機関 | 中央本線/西八王子 バス20分 二分方入口バス停から徒歩4分 | ||
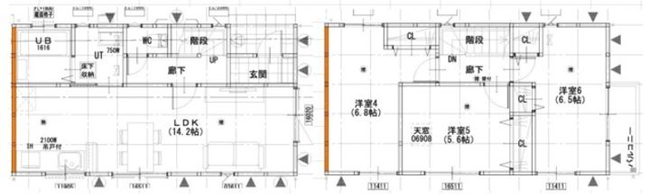
| 間取り | 3LDK | 面積 | 77.0m² |
| 間取り詳細 | 洋室 6.8帖、洋室 6.5帖、洋室 5.6帖、LDK 14.2帖 | 方位 | 南 |
| 階数/部屋番号 | 1階/地上2階建 | 駐車場 | 空有 敷地内 空き台数 1台 |
| 特徴 |
|
||
| 設備/条件 | エアコン、バス・トイレ別、追い焚き、浴室乾燥機、独立洗面台、温水洗浄便座、即入居可、2人入居可、保証人不要・代行、ペット相談、分譲賃貸、インターネット対応、システムキッチン、IHコンロ、コンロ二口以上、1階の物件、角部屋、南向き、フローリング、室内洗濯機置場、バルコニー、駐車場あり、駐輪場あり、バイク置き場あり、TVドアホン、床下収納 | ||
| 備考 |
室内写真は同ハウスメーカーの参考写真となります。 ペット飼育時敷金積み増し料金(償却)有り 月額スマートキー:1,650円 ホームマイスター24 :16,500円 火災保険:20,000円 更新料:1ヶ月 保証会社:利用必須 初回100パーセント 1年毎に15パーセント ※物件に関する備考は各社異なりますのでご確認のうえお問い合わせください。 |
||
| 契約期間 | 2年 | ||
|---|---|---|---|
| 入居可能時期 |
即入居可
|
||
| 初期費用 |
お問い合わせください。
|
||
| 住宅保険 | 要 | 現状空室状況 | お問い合わせください。 |
情報提供元:ハウスコム西東京株式会社/八王子駅前店
画像提供元:ハウスコム西東京株式会社/八王子駅前店
※各種情報と現状に差異がある場合は、現状優先となります。取り扱い不動産会社が複数ある場合は、住宅保険等、一部条件が異なる場合もございますので、取扱店舗までご確認下さいませ。
この物件にお問い合わせ
周辺施設
| コンビニ |
セブンーイレブン 八王子大楽寺店 セブン‐イレブン 八王子弐分方町店 |
|||
|---|---|---|---|---|
| スーパー |
スーパーオザム 大楽寺店 ニュー本庄鮮魚部大楽寺店 |
|||
| ドラッグストア |
ウエルシア薬局八王子弐分方店 さとう調剤薬局 |
|||
| 保育園 |
諏訪保育園 |
|||
|---|---|---|---|---|
| 幼稚園 |
八王子桑の実幼稚園 |
|||
| 小学校 |
八王子市立弐分方小学校 |
|||
| 中学校 |
八王子市立城山中学校 |
|||
※周辺情報は不動産会社から提供された情報ではなく、弊サービスで独自に収集した情報です。
担当者のオススメポイント!
通風良好なテラスハウスはいつでも気持ちの良い空間です。周辺に2駅あるので電車通勤しやすいです。
電話でお問い合わせご希望の方
ハウスコム西東京株式会社 八王子駅前店
営業時間: 10:00〜18:00 定休日: なし
ハウスコム西東京株式会社 八王子店
営業時間: 10:00〜18:00 定休日: なし
- ※電話経由でのお問い合せは、お祝い金プレゼントキャンペーンの適用になりませんのでご注意ください。
- ※電話でお問い合わせする場合は、光IP電話、及びIP電話からはご利用になれません。不動産会社の方からの電話番号によるお問合せはお断りしております。
[テラスハウス] 東京都八王子市弐分方町 の賃貸【東京都 / 八王子市】の取扱会社情報 4件
| 取扱会社(1) | ハウスコム西東京株式会社 八王子駅前店 | ||
|---|---|---|---|
| 住所 | 東京都八王子市旭町2-12 サンドラッグ八王子駅前ビル6階 | ||
| 電話番号 | 0800-170-0853 | 免許番号 | 東京都知事免許(1)第108225号 |
| 取引態様 | 仲介 | 物件管理番号 |
HC2-5086883-A-0078 ※お問い合わせの際には、担当者へ物件管理番号をお伝えください。 |
| 連絡先 | 0037-6008-0197 | ||
| 物件に関する情報 |
物件の所在地 : 東京都八王子市弐分方町 /
交通の利便 : 中央本線/西八王子 バス20分 二分方入口バス停から徒歩4分 /
面積 : 77.0m² /
築年月 : 新築(2025年10月) /
賃料 : 14.0万円 /
管理費又は共益費等 : - /
礼金等 : 1ヶ月 /
敷金 : 1ヶ月、保証金等 : -、 償却、敷引 : - /
住宅総合保険等の損害保険料 : 要 /
その他 : 室内写真は同ハウスメーカーの参考写真となります。 ペット飼育時敷金積み増し料金(償却)有り
月額スマートキー:1,650円
ホームマイスター24 :16,500円
火災保険:20,000円
更新料:1ヶ月
保証会社:利用必須 初回100パーセント 1年毎に15パーセント
/ 駐車場 : 空有
敷地内
空き台数 1台
通風良好なテラスハウスはいつでも気持ちの良い空間です。周辺に2駅あるので電車通勤しやすいです。
|
||
| 所属団体 |
公益社団法人 首都圏不動産公正取引協議会 - |
||
| 取扱会社(2) | アエラス橋本店 (株)アエラス.ER (情報提供媒体:SUUMO) | ||
|---|---|---|---|
| 住所 | 神奈川県相模原市緑区橋本3-29-9 フェイスビル 2階 | ||
| 電話番号 | 042-703-3881 | 免許番号 | 国土交通大臣(1)第10724号 |
| 取引態様 | 仲介 | 物件管理番号 |
100458391940 ※お問い合わせの際には、担当者へ物件管理番号をお伝えください。 |
| 物件に関する情報 |
物件の所在地 : 東京都八王子市弐分方町 /
交通の利便 : JR中央線/西八王子駅 歩47分、JR中央線/高尾駅 歩61分、京王高尾線/狭間駅 歩69分 /
面積 : 77.0m² /
築年月 : 新築(2025年10月) /
賃料 : 13.5万円 /
管理費又は共益費等 : - /
礼金等 : 1ヶ月 /
敷金 : 無料、保証金等 : -、 償却、敷引 : - /
住宅総合保険等の損害保険料 : 要 /
その他 : 諏訪保育園まで600m/加地医院まで752m/更新料新賃料の1ヶ月/スマートキー1、650円月額/駐車場1台(無料)/バイク置場/駐輪場/短期解約違約金あり(1年未満/1ヶ月分賃料)/ペット飼育時敷金1ヶ月積み増し(頭数・種類は要相談)/退去時クリーニング費用105、000円(税別)/町会費発生時、入居者加入と負担。/鍵交換代借主負担
合計1.65万円(内訳:その他費用ホームマイスター2416500円)
二人入居可/子供可/ペット相談
普通借家 2年
保証会社利用必 初回:賃料等の100%、継続保証料として年毎に賃料等の15%
/ 駐車場 : 近隣駐車場
近隣72m13200円
オンラインで申込から契約手続き、LINEでのご相談も可能です
当物件は初期費用分割払い可(クレジットカード決済も可)/お客様のご希望に合わせた方法(店頭、オンライン等)で物件をご提案いたします。初期費用のお見積りや入居希望日のご相談もお気軽にお問い合わせください |
||
| 所属団体 |
(公社)全日本不動産協会神奈川県本部会員 (公社)首都圏不動産公正取引協議会加盟 |
||
| 取扱会社(3) | ハウスコム西東京株式会社 八王子店 | ||
|---|---|---|---|
| 住所 | 東京都八王子市中町1-12 Def・Aビル 1階 | ||
| 電話番号 | 0800-170-0860 | 免許番号 | 東京都知事免許(1)第108225号 |
| 取引態様 | 仲介 | 物件管理番号 |
HC2-5086883-A-0023 ※お問い合わせの際には、担当者へ物件管理番号をお伝えください。 |
| 連絡先 | 0037-6008-8440 | ||
| 物件に関する情報 |
物件の所在地 : 東京都八王子市弐分方町 /
交通の利便 : 中央本線/西八王子 バス20分 二分方入口バス停から徒歩4分 /
面積 : 77.0m² /
築年月 : 新築(2025年10月) /
賃料 : 14.0万円 /
管理費又は共益費等 : - /
礼金等 : 1ヶ月 /
敷金 : 1ヶ月、保証金等 : -、 償却、敷引 : - /
住宅総合保険等の損害保険料 : 要 /
その他 : 室内写真は同ハウスメーカーの参考写真となります。 ペット飼育時敷金積み増し料金(償却)有り
月額スマートキー:1,650円
ホームマイスター24 :16,500円
火災保険:20,000円
更新料:1ヶ月
保証会社:利用必須 初回100パーセント 1年毎に15パーセント
/ 駐車場 : 空有
敷地内
空き台数 1台
通風良好なテラスハウスはいつでも気持ちの良い空間です。周辺に2駅あるので電車通勤しやすいです。
|
||
| 所属団体 |
公益社団法人 首都圏不動産公正取引協議会 - |
||
| 取扱会社(4) | アエラス立川店 (株)アエラス.ER (情報提供媒体:SUUMO) | ||
|---|---|---|---|
| 住所 | 東京都立川市曙町2-12-16 サワービル第一 6階 | ||
| 電話番号 | 042-548-0805 | 免許番号 | 国土交通大臣(1)第10724号 |
| 取引態様 | 仲介 | 物件管理番号 |
100457560741 ※お問い合わせの際には、担当者へ物件管理番号をお伝えください。 |
| 物件に関する情報 |
物件の所在地 : 東京都八王子市弐分方町 /
交通の利便 : JR中央線/西八王子駅 歩47分、JR中央線/高尾駅 歩61分、京王高尾線/狭間駅 歩69分 /
面積 : 77.0m² /
築年月 : 新築(2025年10月) /
賃料 : 13.5万円 /
管理費又は共益費等 : - /
礼金等 : 1ヶ月 /
敷金 : 無料、保証金等 : -、 償却、敷引 : - /
住宅総合保険等の損害保険料 : 要 /
その他 : 諏訪保育園まで600m/加地医院まで752m/更新料新賃料の1ヶ月/スマートキー1、650円月額/駐車場1台(無料)/バイク置場/駐輪場/短期解約違約金あり(1年未満/1ヶ月分賃料)/ペット飼育時敷金1ヶ月積み増し(頭数・種類は要相談)/退去時クリーニング費用105、000円(税別)/町会費発生時、入居者加入と負担。/鍵交換代借主負担
合計1.65万円(内訳:その他費用ホームマイスター2416500円)
二人入居可/子供可/ペット相談
普通借家 2年
保証会社利用必 初回:賃料等の100%、継続保証料として年毎に賃料等の15%
/ 駐車場 : 近隣駐車場
近隣72m13200円
オンラインで申込から契約手続き、LINEでのご相談も可能です
当物件は初期費用分割払い可(クレジットカード決済も可)/お客様のご希望に合わせた方法(店頭、オンライン等)で物件をご提案いたします。初期費用のお見積りや入居希望日のご相談もお気軽にお問い合わせください |
||
| 所属団体 |
(公社)全日本不動産協会東京都本部会員 (公社)首都圏不動産公正取引協議会加盟 |
||

