パティーナ中野[4階]
情報公開日:2025/10/14(残り15日)
次回更新日は情報公開日より15日以内
物件画像
画像提供元:(株)TOKYO NET WORTH
この物件のタグ
この物件にお問い合わせ
パティーナ中野[4階]の物件情報
| 賃料/管理費等 |
12.05万円(管理費等 9,500円)
|
||
|---|---|---|---|
| 敷金 | 無料 | 礼金 | 12.05万円 |
| 種別/構造 | マンション/RC | 築年月 | 2023年08月 |
| 敷金積み増し | ペット飼育の場合敷金1ヶ月(総額) | ||
| 所在地 |
東京都中野区新井4
|
||
| 主要交通機関 |
西武新宿線/沼袋駅 歩6分 JR中央線/中野駅 歩15分 |
||
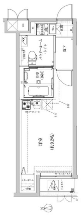
| 間取り | 1R | 面積 | 28.44m² |
| 間取り詳細 | 洋9.2 | 方位 | - |
| 階数/部屋番号 | 4階/地上4階建 | 駐車場 | 無 |
| 特徴 |
|
||
| 設備/条件 | バストイレ別、バルコニー、エアコン、クロゼット、TVインターホン、浴室乾燥機、オートロック、室内洗濯置、シューズボックス、システムキッチン、温水洗浄便座、エレベーター、洗面化粧台、2口コンロ、駐輪場、宅配ボックス、ペット相談、分譲賃貸、保証人不要、ネット使用料不要、築3年以内、2駅利用可、駅徒歩10分以内、敷地内ごみ置き場 | ||
| 備考 |
ルームクリーニング費44000円、エアコンクリーニング費11000円、シリンダー交換費16500円、短期解約違約金有 半年以内・・総賃料2ヶ月分 1年以内・・総賃料1ヶ月分、賃料口座振替手数料150円/月かかります。 ペット相談 保証会社利用必 (株)ルームバンクインシュア、初回保証料 総賃料50%、年間保証料10000円。 |
||
| 契約期間 | お問い合わせください。 | ||
|---|---|---|---|
| 入居可能時期 |
お問い合わせください。
|
||
| 初期費用 |
お問い合わせください。
|
||
| 住宅保険 | 1.8万円2年 | 現状空室状況 | お問い合わせください。 |
情報提供元:(株)TOKYO NET WORTH
画像提供元:(株)TOKYO NET WORTH
※各種情報と現状に差異がある場合は、現状優先となります。取り扱い不動産会社が複数ある場合は、住宅保険等、一部条件が異なる場合もございますので、取扱店舗までご確認下さいませ。
この物件にお問い合わせ
周辺施設
| コンビニ |
セブンイレブン中野沼袋駅前店 ファミリーマート 中野新井三丁目店 |
|||
|---|---|---|---|---|
| スーパー |
株式会社ライフコーポレーション 中野新井店 miniピアゴ新井5丁目店 |
|||
| ドラッグストア |
沼袋薬局 ドラッグストアスマイル 沼袋店 |
|||
| 保育園 |
中野りとるぱんぷきんず |
|||
|---|---|---|---|---|
| 幼稚園 |
沼袋幼稚園 |
|||
| 小学校 |
中野区立 令和小学校 |
|||
| 中学校 |
大妻中野中学校 |
|||
※周辺情報は不動産会社から提供された情報ではなく、弊サービスで独自に収集した情報です。
担当者のオススメポイント!
分譲賃貸マンション!
FGBB導入物件!インターネット無料使い放題!!(既存回線以外の回線をご使用頂くことは出来ません)
パティーナ中野[4階]の取扱会社情報 1件
| 取扱会社(1) | (株)TOKYO NET WORTH (情報提供媒体:SUUMO) | ||
|---|---|---|---|
| 住所 | 東京都港区赤坂2-13-6 | ||
| 電話番号 | 03-3582-2220 | 免許番号 | 東京都知事(4)第84009号 |
| 取引態様 | 代理 | 物件管理番号 |
100450531631 ※お問い合わせの際には、担当者へ物件管理番号をお伝えください。 |
| 物件に関する情報 |
物件の所在地 : 東京都中野区新井4 /
交通の利便 : 西武新宿線/沼袋駅 歩6分、JR中央線/中野駅 歩15分 /
面積 : 28.44m² /
築年月 : 2023年08月 /
賃料 : 12.05万円 /
管理費又は共益費等 : 9,500円 /
礼金等 : 1ヶ月 /
敷金 : 無料、保証金等 : -、 償却、敷引 : - /
住宅総合保険等の損害保険料 : 1.8万円2年 /
その他 : ルームクリーニング費44000円、エアコンクリーニング費11000円、シリンダー交換費16500円、短期解約違約金有 半年以内・・総賃料2ヶ月分 1年以内・・総賃料1ヶ月分、賃料口座振替手数料150円/月かかります。
ペット相談
保証会社利用必 (株)ルームバンクインシュア、初回保証料 総賃料50%、年間保証料10000円。
/ 駐車場 : 無
分譲賃貸マンション!
FGBB導入物件!インターネット無料使い放題!!(既存回線以外の回線をご使用頂くことは出来ません) |
||
| 所属団体 |
(公社)全日本不動産協会東京都本部会員 (公社)首都圏不動産公正取引協議会加盟 |
||

