朝日クレスパリオ中野新井薬師[7階]
情報公開日:2026/01/23(残り15日)
次回更新日は2026/01/31
物件画像
画像提供元:アエラス池袋店/現地案内センター (株)アエラス.FR
この物件のタグ
朝日クレスパリオ中野新井薬師[7階]の物件情報
| 賃料/管理費等 |
24.5万円(管理費等 1.5万円)
|
||
|---|---|---|---|
| 敷金 | 24.5万円 | 礼金 | 24.5万円 |
| 種別/構造 | マンション/SRC | 築年月 | 1996年04月 |
| 所在地 |
東京都中野区新井4
|
||
| 主要交通機関 |
西武新宿線/沼袋駅 歩7分 JR中央線/中野駅 歩16分 西武新宿線/新井薬師前駅 歩9分 |
||
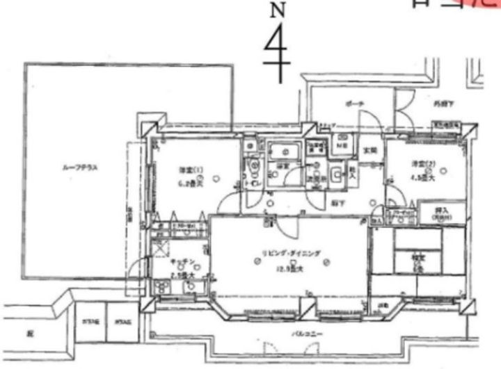
| 間取り | 3LDK | 面積 | 72.69m² |
| 間取り詳細 | 和4.5 洋7.9 洋4.5 | 方位 | 南 |
| 階数/部屋番号 | 7階/地上7階建 | 駐車場 | 近隣駐車場 近隣184m24200円 |
| 特徴 |
|
||
| 設備/条件 | バストイレ別、バルコニー、エアコン、ガスコンロ対応、オートロック、システムキッチン、南向き、追焚機能浴室、角住戸、温水洗浄便座、脱衣所、エレベーター、洗面所独立、洗面化粧台、2口コンロ、駐輪場、宅配ボックス、光ファイバー、外壁タイル張り、即入居可、2面採光、最上階、防犯カメラ、分譲賃貸、オートバス、敷金1ヶ月、二人入居相談、テラス、保証金不要、ルーフバルコニー、外壁コンクリート、3駅以上利用可、3沿線以上利用可、駅徒歩10分以内、高速ネット対応、礼金1ヶ月、初期費用カード決済可 | ||
| 備考 |
西武鉄道新宿線野方駅徒歩21分/中野りとるぱんぷきんずまで187m/横畠病院まで338m/火災保険加入必須/駐車場・駐輪場別途要契約/駐輪場代借主負担(使用時)/鍵交換代借主負担/室内清掃費用借主負担 二人入居可/子供可 定期借家 3年 保証会社利用必 初回:賃料等の50%、年間:10000円 ※物件に関する備考は各社異なりますのでご確認のうえお問い合わせください。 |
||
| 契約期間 | お問い合わせください。 | ||
|---|---|---|---|
| 入居可能時期 |
即入居可
|
||
| 初期費用 |
お問い合わせください。
|
||
| 住宅保険 | 要 | 現状空室状況 | お問い合わせください。 |
情報提供元:アエラス池袋店/現地案内センター (株)アエラス.FR
画像提供元:アエラス池袋店/現地案内センター (株)アエラス.FR
※各種情報と現状に差異がある場合は、現状優先となります。取り扱い不動産会社が複数ある場合は、住宅保険等、一部条件が異なる場合もございますので、取扱店舗までご確認下さいませ。
この物件にお問い合わせ
周辺施設
| コンビニ |
セブンイレブン 中野沼袋駅前店 ファミリーマート 沼袋駅北店 |
|||
|---|---|---|---|---|
| スーパー |
株式会社ライフコーポレーション 中野新井店 miniピアゴ新井5丁目店 |
|||
| ドラッグストア |
沼袋薬局 ドラッグストアスマイル 沼袋店 |
|||
| 保育園 |
中野りとるぱんぷきんず |
|||
|---|---|---|---|---|
| 幼稚園 |
沼袋幼稚園 |
|||
| 小学校 |
中野区立 令和小学校 |
|||
| 中学校 |
大妻中野中学校 |
|||
※周辺情報は不動産会社から提供された情報ではなく、弊サービスで独自に収集した情報です。
担当者のオススメポイント!
オンラインで申込から契約手続き、LINEでのご相談も可能です
当物件は初期費用分割払い可(クレジットカード決済も可)/お客様のご希望に合わせた方法(店頭、オンライン等)で物件をご提案いたします。初期費用のお見積りや入居希望日のご相談もお気軽にお問い合わせください
朝日クレスパリオ中野新井薬師[7階]の取扱会社情報 3件
| 取扱会社(1) | アエラス池袋店/現地案内センター (株)アエラス.FR (情報提供媒体:SUUMO) | ||
|---|---|---|---|
| 住所 | 東京都豊島区東池袋1-34-5 いちご東池袋ビル 3階6号室 | ||
| 電話番号 | 03-5338-5960 | 免許番号 | 国土交通大臣(1)第10206号 |
| 取引態様 | 仲介 | 物件管理番号 |
100473677206 ※お問い合わせの際には、担当者へ物件管理番号をお伝えください。 |
| 物件に関する情報 |
物件の所在地 : 東京都中野区新井4 /
交通の利便 : 西武新宿線/沼袋駅 歩7分、JR中央線/中野駅 歩16分、西武新宿線/新井薬師前駅 歩9分 /
面積 : 72.69m² /
築年月 : 1996年04月 /
賃料 : 24.5万円 /
管理費又は共益費等 : 1.5万円 /
礼金等 : 1ヶ月 /
敷金 : 1ヶ月、保証金等 : -、 償却、敷引 : - /
住宅総合保険等の損害保険料 : 要 /
その他 : 西武鉄道新宿線野方駅徒歩21分/中野りとるぱんぷきんずまで187m/横畠病院まで338m/火災保険加入必須/駐車場・駐輪場別途要契約/駐輪場代借主負担(使用時)/鍵交換代借主負担/室内清掃費用借主負担
二人入居可/子供可
定期借家 3年
保証会社利用必 初回:賃料等の50%、年間:10000円
/ 駐車場 : 近隣駐車場
近隣184m24200円
オンラインで申込から契約手続き、LINEでのご相談も可能です
当物件は初期費用分割払い可(クレジットカード決済も可)/お客様のご希望に合わせた方法(店頭、オンライン等)で物件をご提案いたします。初期費用のお見積りや入居希望日のご相談もお気軽にお問い合わせください |
||
| 所属団体 |
(公社)東京都宅地建物取引業協会会員 (公社)首都圏不動産公正取引協議会加盟 |
||
| 取扱会社(2) | アエラス目白店 (株)アエラス.ER (情報提供媒体:SUUMO) | ||
|---|---|---|---|
| 住所 | 東京都豊島区目白3-5-16 青山ビル 4階・5階 | ||
| 電話番号 | 03-6914-4811 | 免許番号 | 国土交通大臣(1)第10724号 |
| 取引態様 | 仲介 | 物件管理番号 |
100457511415 ※お問い合わせの際には、担当者へ物件管理番号をお伝えください。 |
| 物件に関する情報 |
物件の所在地 : 東京都中野区新井4 /
交通の利便 : 西武新宿線/沼袋駅 歩7分、JR中央線/中野駅 歩16分、西武新宿線/新井薬師前駅 歩9分 /
面積 : 72.69m² /
築年月 : 1996年04月 /
賃料 : 24.5万円 /
管理費又は共益費等 : 1.5万円 /
礼金等 : 1ヶ月 /
敷金 : 1ヶ月、保証金等 : -、 償却、敷引 : - /
住宅総合保険等の損害保険料 : 要 /
その他 : 西武鉄道新宿線野方駅徒歩21分/中野りとるぱんぷきんずまで187m/横畠病院まで338m/火災保険加入必須/駐車場・駐輪場別途要契約/駐輪場代借主負担(使用時)/鍵交換代借主負担/室内清掃費用借主負担
二人入居可/子供可
定期借家 3年
保証会社利用必 初回:賃料等の50%、年間:10000円
/ 駐車場 : 近隣駐車場
近隣184m24200円
オンラインで申込から契約手続き、LINEでのご相談も可能です
当物件は初期費用分割払い可(クレジットカード決済も可)/お客様のご希望に合わせた方法(店頭、オンライン等)で物件をご提案いたします。初期費用のお見積りや入居希望日のご相談もお気軽にお問い合わせください |
||
| 所属団体 |
(公社)全日本不動産協会東京都本部会員 (公社)首都圏不動産公正取引協議会加盟 |
||
| 取扱会社(3) | アエラス練馬店 (株)アエラス.ER (情報提供媒体:SUUMO) | ||
|---|---|---|---|
| 住所 | 東京都練馬区練馬1-26-2 エーゲアンフロント・ビル 2階 | ||
| 電話番号 | 03-5912-0620 | 免許番号 | 国土交通大臣(1)第10724号 |
| 取引態様 | 仲介 | 物件管理番号 |
100455732923 ※お問い合わせの際には、担当者へ物件管理番号をお伝えください。 |
| 物件に関する情報 |
物件の所在地 : 東京都中野区新井4 /
交通の利便 : 西武新宿線/沼袋駅 歩7分、JR中央線/中野駅 歩16分、西武新宿線/新井薬師前駅 歩9分 /
面積 : 72.69m² /
築年月 : 1996年04月 /
賃料 : 24.5万円 /
管理費又は共益費等 : 1.5万円 /
礼金等 : 1ヶ月 /
敷金 : 1ヶ月、保証金等 : -、 償却、敷引 : - /
住宅総合保険等の損害保険料 : 要 /
その他 : 西武鉄道新宿線野方駅徒歩21分/中野りとるぱんぷきんずまで187m/横畠病院まで338m/火災保険加入必須/駐車場・駐輪場別途要契約/駐輪場代借主負担(使用時)/鍵交換代借主負担/室内清掃費用借主負担
二人入居可/子供可
定期借家 3年
保証会社利用必 初回:賃料等の50%、年間:10000円
/ 駐車場 : 近隣駐車場
近隣184m24200円
オンラインで申込から契約手続き、LINEでのご相談も可能です
当物件は初期費用分割払い可(クレジットカード決済も可)/お客様のご希望に合わせた方法(店頭、オンライン等)で物件をご提案いたします。初期費用のお見積りや入居希望日のご相談もお気軽にお問い合わせください |
||
| 所属団体 |
(公社)全日本不動産協会東京都本部会員 (公社)首都圏不動産公正取引協議会加盟 |
||

